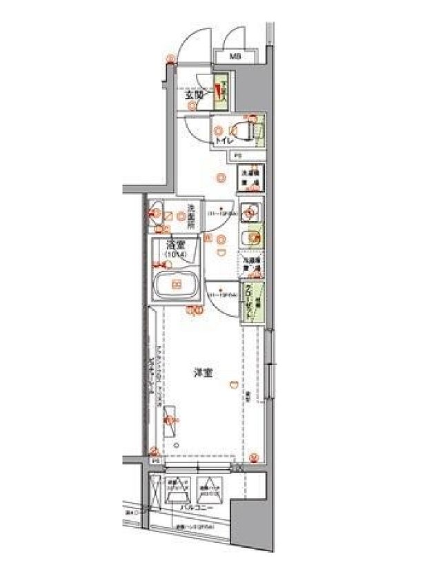
墨田区 13階建 2012年築1K/2階(東京都墨田区 / 両国駅)の賃貸
1/25
1/25
10.5万円
初期費用を知りたい管理費15,000円
- 敷金
- 10.5万円
- 保証金
- なし
- 礼金
- 10.5万円
- 広さ
- 25.73㎡
- 階数
- 2階 / 13階建
- 間取り
- 1K
- 建物
- マンション (鉄筋コンクリート)
- 築年数
- 築14年
- 向き
- 東
- 交通
- 総武線 / 両国駅徒歩4分
- 都営浅草線 / 浅草橋駅徒歩9分
- 住所
- 東京都墨田区両国1丁目13-3
コンビニエンスストア 208m
スーパーマーケット 351m
総合病院 546m
公園 613m
ドラッグストア 321m
銀行 608m
ポニークリーニング JR両国駅前店 534m
無料で10秒! カンタンお問い合わせ

墨田区 13階建 2012年築
敷
10.5万円礼
10.5万円特徴
バス・トイレ別
2階以上
エアコン付き
ペット相談可
駐車場あり
室内洗濯機置場
オートロック
洗面所独立
- 入居条件
- ペット相談、ペット可、二人入居可、保証人不要、初期費用カード決済可最新の空室状況が知りたい
- バス・トイレ
- バストイレ別、温水洗浄便座、浴室乾燥機、洗面所独立、シャワー付洗面化粧台、専用バス、専用トイレ
- キッチン
- システムキッチン、ガスコンロ対応、2口コンロ
- セキュリティ
- オートロック、防犯カメラ
- 室内設備
- 室内洗濯置、フローリング、インターネット対応、BS、CS、エアコン、クロゼット、全居室収納、シューズボックスお部屋の詳しい情報を知りたい
- 部屋の特徴
- バルコニー、二階以上写真を送ってほしい
- 共用部
- エレベーター、宅配ボックス、駐輪場、バイク置場
- その他の特徴
- 分譲賃貸、デザイナーズ、家賃保証付き、公営水道、下水、都市ガス
無料で10秒! カンタンお問い合わせ

墨田区 13階建 2012年築
敷
10.5万円礼
10.5万円不動産会社からのコメント
当物件はオンラインまたはお近くの店舗でご相談お申込を承ります
当物件は全物件仲介料半額の「住まいのリライフ」で取り扱っております。リライフは首都圏23店舗のネットワークで豊富な物件情報をご提供いたします。当物件に類似した未公開物件のご提案も可能です。お気軽にお問い合わせください。違約金有:短期違約金あり。
その他
- 駐車/駐輪
- 空無 / あり駐車可能な車種や台数を知りたい
- 入居時期
- 2026年5月下旬最新の空室状況が知りたい
- 損保
- 住宅保険: 要
- 保証人代行
- 加入要 費用: 初回月額総家賃50%~(最低3万)
- その他費用
初期費用を知りたい抗菌代(初回のみ):17,600円
入居サポート(初回のみ):21,450円
鍵交換費用:22,000円
事務手数料(初回のみ):11,000円
- 情報
情報登録日:2022/11/22
情報更新日:2026/4/10
次回更新予定日:2026/4/17
- 備考
- 現況: 居住中 償却・敷引金: 105,000円 更新料: 新賃料の1.5ヶ月分 契約期間: 2年 管理人: 巡回 総戸数: 59戸 自社管理番号: B8871R149692
取扱い会社
- 取扱い会社
- 株式会社 リライフ 浅草橋店条件が近い物件も紹介してほしい
- 免許番号
- 国土交通大臣(1)第10792号
- 取引態様
- 仲介
- 所在地
- 東京都台東区柳橋1-13-5 大島屋浅草橋ビル2階
- 電話番号
- 03-6756-7471
- 営業時間
- 10:00~18:30
- 定休日
- 毎週火・水曜日
- 所属団体名
- 公益社団法⼈東京都宅地建物取引業協会、公益社団法⼈全国宅地建物取引業保証協会
おすすめ物件 (20件)
賃貸マンション
GENOVIA浅草橋Ⅱ skygarden

総武線 / 浅草橋駅 徒歩8分
築5年 / 13階建
東京都台東区鳥越1丁目15-6

12.3万円 / 管理費10,000円
敷
無料礼
無料1K / 26.26㎡ / 8階
賃貸マンション
墨田区 9階建 2021年築

総武線 / 両国駅 徒歩10分
築5年 / 9階建
東京都墨田区千歳1丁目2-25

12.1万円 / 管理費10,000円
敷
12.1万円礼
12.1万円1K / 25.26㎡ / 6階
賃貸マンション
メイクスデザイン両国SOUTH

都営大江戸線 / 両国駅 徒歩12分
築9年 / 11階建
東京都墨田区石原3丁目14-9

12万円 / 管理費10,000円
敷
12万円礼
無料1K / 26.2㎡ / 2階
賃貸マンション
メインステージ両国

総武線 / 両国駅 徒歩3分
築16年 / 14階建
東京都墨田区両国3丁目22-2

11.2万円 / 管理費15,000円
敷
無料礼
5.6万円1K / 22.75㎡ / 2階
賃貸マンション
エストゥルースプラス両国

都営大江戸線 / 両国駅 徒歩6分
築2年 / 7階建
東京都墨田区石原1丁目29-10

11.45万円 / 管理費10,000円
敷
無料礼
無料1K / 26.52㎡ / 4階
賃貸マンション
パークアクシス浅草橋

都営浅草線 / 浅草橋駅 徒歩1分
築19年 / 地上14階地下1階建
東京都台東区柳橋2丁目6-2

12.4万円 / 管理費8,000円
敷
12.4万円礼
12.4万円ワンルーム / 22.94㎡ / 12階
賃貸マンション
レクシード両国駅前

総武線 / 両国駅 徒歩6分
築10年 / 11階建
東京都墨田区両国3丁目18-7

12.5万円 / 管理費10,000円
敷
12.5万円礼
12.5万円1K / 25.6㎡ / 11階
賃貸マンション
アルテシモ ストーリア

総武線 / 浅草橋駅 徒歩7分
築12年 / 8階建
東京都台東区浅草橋5丁目9-10

11.5万円 / 管理費10,000円
敷
11.5万円礼
11.5万円1K / 25.46㎡ / 3階
賃貸マンション
S-RESIDENCE両国park side

都営大江戸線 / 両国駅 徒歩5分
築5年 / 8階建
東京都墨田区石原1丁目25-6

12.15万円 / 管理費10,000円
敷
無料礼
12.15万円1K / 25.41㎡ / 3階
賃貸マンション
墨田区 10階建 2021年築

都営大江戸線 / 両国駅 徒歩4分
築5年 / 9階建
東京都墨田区緑1丁目6-4

10.4万円 / 管理費20,000円
敷
無料礼
10.4万円1K / 27.3㎡ / 3階
賃貸マンション
メインステージ両国駅前

都営大江戸線 / 両国駅 徒歩1分
築15年 / 12階建
東京都墨田区緑1丁目18-3

11.35万円 / 管理費15,000円
敷
無料礼
5.675万円1K / 22.27㎡ / 2階
賃貸マンション
ランドステージ両国

都営大江戸線 / 両国駅 徒歩2分
築17年 / 14階建
東京都墨田区緑1丁目20-12

12.1万円 / 管理費15,000円
敷
無料礼
6.05万円1K / 26.84㎡ / 5階
賃貸マンション
セジョリ墨田両国

都営大江戸線 / 両国駅 徒歩6分
築9年 / 7階建
東京都墨田区石原1丁目6-5

10.8万円 / 管理費25,000円
敷
無料礼
10.8万円1K / 26.06㎡ / 5階
賃貸マンション
ヴォーガコルテ浅草橋

都営浅草線 / 浅草橋駅 徒歩3分
築15年 / 9階建
東京都台東区柳橋1丁目15-6

11万円 / 管理費12,000円
敷
11万円礼
11万円1K / 25.85㎡ / 5階
賃貸マンション
メインステージ両国Ⅱ

都営大江戸線 / 両国駅 徒歩2分
築8年 / 11階建
東京都墨田区緑1丁目27-9

11.95万円 / 管理費15,000円
敷
無料礼
無料1K / 25.59㎡ / 8階
賃貸マンション
プライマル両国EAST

都営大江戸線 / 両国駅 徒歩9分
築6年 / 7階建
東京都墨田区亀沢3丁目

11.5万円 / 管理費10,000円
敷
11.5万円礼
無料ワンルーム / 25.27㎡ / 3階
賃貸マンション
ジェノヴィア浅草橋Ⅱスカイガーデン

総武線 / 浅草橋駅 徒歩8分
築5年 / 13階建
東京都台東区鳥越1丁目

12.5万円 / 管理費10,000円
敷
無料礼
無料1K / 26.26㎡ / 6階
賃貸マンション
GENOVIA浅草橋Ⅱ skygarden

総武線 / 浅草橋駅 徒歩8分
築5年 / 13階建
東京都台東区鳥越1丁目15-6

12.3万円 / 管理費10,000円
敷
無料礼
無料1K / 26.26㎡ / 8階
賃貸マンション
墨田区 9階建 2021年築

総武線 / 両国駅 徒歩10分
築5年 / 9階建
東京都墨田区千歳1丁目2-25

12.1万円 / 管理費10,000円
敷
12.1万円礼
12.1万円1K / 25.26㎡ / 6階
賃貸マンション
メイクスデザイン両国SOUTH

都営大江戸線 / 両国駅 徒歩12分
築9年 / 11階建
東京都墨田区石原3丁目14-9

12万円 / 管理費10,000円
敷
12万円礼
無料1K / 26.2㎡ / 2階
賃貸マンション
メインステージ両国

総武線 / 両国駅 徒歩3分
築16年 / 14階建
東京都墨田区両国3丁目22-2

11.2万円 / 管理費15,000円
敷
無料礼
5.6万円1K / 22.75㎡ / 2階
賃貸マンション
エストゥルースプラス両国

都営大江戸線 / 両国駅 徒歩6分
築2年 / 7階建
東京都墨田区石原1丁目29-10

11.45万円 / 管理費10,000円
敷
無料礼
無料1K / 26.52㎡ / 4階
賃貸マンション
パークアクシス浅草橋

都営浅草線 / 浅草橋駅 徒歩1分
築19年 / 地上14階地下1階建
東京都台東区柳橋2丁目6-2

12.4万円 / 管理費8,000円
敷
12.4万円礼
12.4万円ワンルーム / 22.94㎡ / 12階
賃貸マンション
レクシード両国駅前

総武線 / 両国駅 徒歩6分
築10年 / 11階建
東京都墨田区両国3丁目18-7

12.5万円 / 管理費10,000円
敷
12.5万円礼
12.5万円1K / 25.6㎡ / 11階
賃貸マンション
アルテシモ ストーリア

総武線 / 浅草橋駅 徒歩7分
築12年 / 8階建
東京都台東区浅草橋5丁目9-10

11.5万円 / 管理費10,000円
敷
11.5万円礼
11.5万円1K / 25.46㎡ / 3階
賃貸マンション
S-RESIDENCE両国park side

都営大江戸線 / 両国駅 徒歩5分
築5年 / 8階建
東京都墨田区石原1丁目25-6

12.15万円 / 管理費10,000円
敷
無料礼
12.15万円1K / 25.41㎡ / 3階
賃貸マンション
墨田区 10階建 2021年築

都営大江戸線 / 両国駅 徒歩4分
築5年 / 9階建
東京都墨田区緑1丁目6-4

10.4万円 / 管理費20,000円
敷
無料礼
10.4万円1K / 27.3㎡ / 3階
賃貸マンション
メインステージ両国駅前

都営大江戸線 / 両国駅 徒歩1分
築15年 / 12階建
東京都墨田区緑1丁目18-3

11.35万円 / 管理費15,000円
敷
無料礼
5.675万円1K / 22.27㎡ / 2階
賃貸マンション
ランドステージ両国

都営大江戸線 / 両国駅 徒歩2分
築17年 / 14階建
東京都墨田区緑1丁目20-12

12.1万円 / 管理費15,000円
敷
無料礼
6.05万円1K / 26.84㎡ / 5階
賃貸マンション
セジョリ墨田両国

都営大江戸線 / 両国駅 徒歩6分
築9年 / 7階建
東京都墨田区石原1丁目6-5

10.8万円 / 管理費25,000円
敷
無料礼
10.8万円1K / 26.06㎡ / 5階
賃貸マンション
ヴォーガコルテ浅草橋

都営浅草線 / 浅草橋駅 徒歩3分
築15年 / 9階建
東京都台東区柳橋1丁目15-6

11万円 / 管理費12,000円
敷
11万円礼
11万円1K / 25.85㎡ / 5階
賃貸マンション
メインステージ両国Ⅱ

都営大江戸線 / 両国駅 徒歩2分
築8年 / 11階建
東京都墨田区緑1丁目27-9

11.95万円 / 管理費15,000円
敷
無料礼
無料1K / 25.59㎡ / 8階
賃貸マンション
プライマル両国EAST

都営大江戸線 / 両国駅 徒歩9分
築6年 / 7階建
東京都墨田区亀沢3丁目

11.5万円 / 管理費10,000円
敷
11.5万円礼
無料ワンルーム / 25.27㎡ / 3階
賃貸マンション
ジェノヴィア浅草橋Ⅱスカイガーデン

総武線 / 浅草橋駅 徒歩8分
築5年 / 13階建
東京都台東区鳥越1丁目

12.5万円 / 管理費10,000円
敷
無料礼
無料1K / 26.26㎡ / 6階
同じ最寄り駅 × 同じ特徴 で探す
同じ市区町村 × 同じ特徴 で探す

































