サンクタス四谷・曙橋ルーセンシティ1LDK/2階/205(東京都新宿区 / 曙橋駅)の賃貸
1/30
1/30
25万円
初期費用を知りたい管理費15,000円
- 敷金
- 25万円
- 保証金
- なし
- 礼金
- 25万円
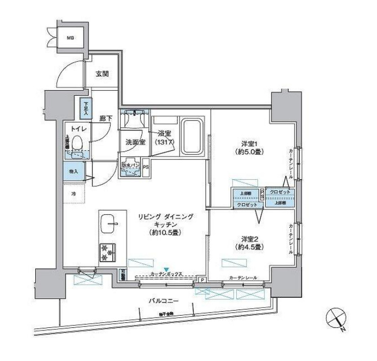
- 広さ
- 50.96㎡
- 階数
- 2階 / 地上8階地下1階建
- 間取り
- 1LDK
- 建物
- マンション (鉄筋コンクリート)
- 築年数
- 築21年
- 向き
- 東
- 交通
- 都営新宿線 / 曙橋駅徒歩2分
- 東京メトロ丸ノ内線 / 四谷三丁目駅徒歩9分
- 住所
- 東京都新宿区住吉町8-13
新宿区立牛込仲之小学校 530m
コンビニエンスストア 110m
スーパーマーケット 60m
総合病院 970m
曙橋駅(都営地下鉄 新宿線) 130m
無料で10秒! カンタンお問い合わせ
サンクタス四谷・曙橋ルーセンシティ
敷
25万円礼
25万円特徴
バス・トイレ別
2階以上
エアコン付き
ペット相談可
駐車場あり
室内洗濯機置場
オートロック
洗面所独立
- 入居条件
- 保証人不要、二人入居可、即入居可最新の空室状況が知りたい
- バス・トイレ
- 給湯、専用バス、オートバス、追焚機能浴室、浴室乾燥機、シャワー、専用トイレ、温水洗浄便座、バストイレ別、シャワー付洗面化粧台、洗面所独立
- キッチン
- ガスコンロ対応、3口以上コンロ、カウンターキッチン、システムキッチン
- セキュリティ
- オートロック、防犯カメラ、24時間セキュリティ
- 室内設備
- CATV、BS、CS、光ファイバー、インターネット対応、エアコン、冷房、照明付、クロゼット、シューズボックス、室内洗濯置、フローリング、ネット使用料不要お部屋の詳しい情報を知りたい
- 部屋の特徴
- バルコニー、角住戸、二階以上写真を送ってほしい
- 共用部
- エレベーター、宅配ボックス
- その他の特徴
- 定期借家、都市ガス、専用庭、分譲賃貸
無料で10秒! カンタンお問い合わせ
サンクタス四谷・曙橋ルーセンシティ
敷
25万円礼
25万円不動産会社からのコメント
曙橋駅徒歩1分/複数路線利用可能/敷地内ゴミ置き場/宅配BOX/分譲賃貸マンション/角部屋/床暖房
クリーニング代借主負担/保証会社プラン複数あり/定期借家契約2年/鍵交換代借主負担/火災保険要加入/インターネット一括契約/解約予告1か月前/駐輪場要確認
その他
- 駐車/駐輪
- 無 / なし駐車可能な車種や台数を知りたい
- 入居時期
- 損保
- 住宅保険: 要
- 保証人代行
- 加入要 費用: 初回保証料:総賃料の60%月額保証料:総賃料の1.5%
- その他費用
初期費用を知りたい24時間緊急対応費/月:1,210円
除菌消臭費:19,800円
- 情報
情報登録日:2026/4/20
情報更新日:2026/4/19
次回更新予定日:2026/4/28
- 備考
- 現況: 空家 更新料: 新賃料の1.0ヶ月分 契約期間: 2年 ※定期借家
取扱い会社
- 取扱い会社
- スタートライングループ株式会社 四谷店条件が近い物件も紹介してほしい
- 免許番号
- 東京都知事(6)第76891号
- 取引態様
- 仲介
- 所在地
- 東京都新宿区四谷1丁目18-4 フランセビル2階
- 電話番号
- 03-5357-7880
- 営業時間
- 10:00~19:00
- 定休日
- 水曜日(年末年始、GW、お盆)
- 所属団体名
- (公社)全日本不動産協会東京都本部
おすすめ物件 (20件)
賃貸マンション
エクセルシオール新宿河田町
都営新宿線 / 曙橋駅 徒歩13分
築2年 / 地上3階地下1階建
東京都新宿区河田町10-14
24.2万円 / 管理費10,000円
敷
無料礼
24.2万円1LDK / 46.49㎡ / 2階
賃貸マンション
新宿区四谷3丁目 13階建 2004年築

東京メトロ丸ノ内線 / 四谷三丁目駅 徒歩1分
築22年 / 地上13階地下1階建
東京都新宿区四谷3丁目

23万円 / 管理費なし
敷
23万円礼
23万円1LDK / 43.27㎡ / 13階
賃貸マンション
ズーム信濃町
東京メトロ丸ノ内線 / 四谷三丁目駅 徒歩6分
新築 / 13階建
東京都新宿区左門町21-2
27万円 / 管理費20,000円
敷
27万円礼
27万円1LDK / 44.97㎡ / 11階
賃貸マンション
グランスイート四谷プレシア

東京メトロ丸ノ内線 / 四谷三丁目駅 徒歩1分
築13年 / 13階建
東京都新宿区愛住町

23万円 / 管理費20,000円
敷
23万円礼
23万円1SLDK / 49.39㎡ / 8階
賃貸マンション
コスモリード新宿余丁町
都営新宿線 / 曙橋駅 徒歩11分
築19年 / 5階建
東京都新宿区余丁町4-11
25万円 / 管理費20,000円
敷
25万円礼
無料2LDK / 52.54㎡ / 4階
賃貸マンション
ジオ市谷仲之町
都営新宿線 / 曙橋駅 徒歩5分
新築 / 地上5階地下1階建
東京都新宿区市谷仲之町3-14
26万円 / 管理費20,000円
敷
26万円礼
26万円2LDK / 47.13㎡ / 5階
賃貸マンション
ジェノヴィア四谷三丁目グリーンヴェール
東京メトロ丸ノ内線 / 四谷三丁目駅 徒歩7分
築6年 / 10階建
東京都新宿区大京町18-17
25.5万円 / 管理費15,000円
敷
無料礼
無料1LDK / 42.36㎡ / 4階
賃貸マンション
MAITRI YOTSUYA

都営新宿線 / 曙橋駅 徒歩3分
築2年 / 12階建
東京都新宿区片町

23.2万円 / 管理費10,000円
敷
23.2万円礼
23.2万円2LDK / 45.79㎡ / 4階
賃貸マンション
エスティメゾン四谷坂町
都営新宿線 / 曙橋駅 徒歩3分
築18年 / 7階建
東京都新宿区四谷坂町
家賃カード決済可
24.9万円 / 管理費12,000円
敷
24.9万円礼
無料1LDK / 45.11㎡ / 4階
賃貸マンション
ZOOM信濃町
東京メトロ丸ノ内線 / 四谷三丁目駅 徒歩5分
新築 / 13階建
東京都新宿区左門町
家賃カード決済可
26.8万円 / 管理費20,000円
敷
26.8万円礼
26.8万円1LDK / 44.97㎡ / 10階
賃貸マンション
ガーデンクレスト
東京メトロ丸ノ内線 / 四谷三丁目駅 徒歩7分
築18年 / 10階建
東京都新宿区大京町24
24.8万円 / 管理費10,000円
敷
24.8万円礼
37.2万円2DK / 50.53㎡ / 6階
賃貸マンション
サンウッドフラッツ新宿四谷三丁目
東京メトロ丸ノ内線 / 四谷三丁目駅 徒歩6分
築1年 / 14階建
東京都新宿区信濃町
25.5万円 / 管理費25,000円
敷
25.5万円礼
25.5万円2LDK / 45.56㎡ / 2階
賃貸マンション
GENOVIA四谷三丁目greenveil

東京メトロ丸ノ内線 / 四谷三丁目駅 徒歩8分
築6年 / 10階建
東京都新宿区大京町18-17

25.5万円 / 管理費15,000円
敷
無料礼
無料1DK / 42.36㎡ / 4階
賃貸マンション
クラルテラセ新宿富久
都営新宿線 / 曙橋駅 徒歩3分
築3年 / 5階建
東京都新宿区富久町
23.9万円 / 管理費10,000円
敷
23.9万円礼
23.9万円1LDK / 45.49㎡ / 4階
賃貸マンション
ラティエラ四谷

東京メトロ丸ノ内線 / 四谷三丁目駅 徒歩2分
築1年 / 13階建
東京都新宿区愛住町

26.3万円 / 管理費12,000円
敷
26.3万円礼
無料2LDK / 41.02㎡ / 3階
賃貸マンション
河田町ガーデン1

都営新宿線 / 曙橋駅 徒歩6分
築23年 / 地上41階地下2階建
東京都新宿区河田町

24.78万円 / 管理費10,000円
敷
無料礼
24.78万円2LDK / 55.68㎡ / 5階
賃貸マンション
エクセルシオール新宿河田町
都営新宿線 / 曙橋駅 徒歩13分
築2年 / 地上3階地下1階建
東京都新宿区河田町10-14
24.2万円 / 管理費10,000円
敷
無料礼
24.2万円1LDK / 46.49㎡ / 2階
賃貸マンション
新宿区四谷3丁目 13階建 2004年築

東京メトロ丸ノ内線 / 四谷三丁目駅 徒歩1分
築22年 / 地上13階地下1階建
東京都新宿区四谷3丁目

23万円 / 管理費なし
敷
23万円礼
23万円1LDK / 43.27㎡ / 13階
賃貸マンション
ズーム信濃町
東京メトロ丸ノ内線 / 四谷三丁目駅 徒歩6分
新築 / 13階建
東京都新宿区左門町21-2
27万円 / 管理費20,000円
敷
27万円礼
27万円1LDK / 44.97㎡ / 11階
賃貸マンション
グランスイート四谷プレシア

東京メトロ丸ノ内線 / 四谷三丁目駅 徒歩1分
築13年 / 13階建
東京都新宿区愛住町

23万円 / 管理費20,000円
敷
23万円礼
23万円1SLDK / 49.39㎡ / 8階
賃貸マンション
コスモリード新宿余丁町
都営新宿線 / 曙橋駅 徒歩11分
築19年 / 5階建
東京都新宿区余丁町4-11
25万円 / 管理費20,000円
敷
25万円礼
無料2LDK / 52.54㎡ / 4階
賃貸マンション
ジオ市谷仲之町
都営新宿線 / 曙橋駅 徒歩5分
新築 / 地上5階地下1階建
東京都新宿区市谷仲之町3-14
26万円 / 管理費20,000円
敷
26万円礼
26万円2LDK / 47.13㎡ / 5階
賃貸マンション
ジェノヴィア四谷三丁目グリーンヴェール
東京メトロ丸ノ内線 / 四谷三丁目駅 徒歩7分
築6年 / 10階建
東京都新宿区大京町18-17
25.5万円 / 管理費15,000円
敷
無料礼
無料1LDK / 42.36㎡ / 4階
賃貸マンション
MAITRI YOTSUYA

都営新宿線 / 曙橋駅 徒歩3分
築2年 / 12階建
東京都新宿区片町

23.2万円 / 管理費10,000円
敷
23.2万円礼
23.2万円2LDK / 45.79㎡ / 4階
賃貸マンション
エスティメゾン四谷坂町
都営新宿線 / 曙橋駅 徒歩3分
築18年 / 7階建
東京都新宿区四谷坂町
家賃カード決済可
24.9万円 / 管理費12,000円
敷
24.9万円礼
無料1LDK / 45.11㎡ / 4階
賃貸マンション
ZOOM信濃町
東京メトロ丸ノ内線 / 四谷三丁目駅 徒歩5分
新築 / 13階建
東京都新宿区左門町
家賃カード決済可
26.8万円 / 管理費20,000円
敷
26.8万円礼
26.8万円1LDK / 44.97㎡ / 10階
賃貸マンション
ガーデンクレスト
東京メトロ丸ノ内線 / 四谷三丁目駅 徒歩7分
築18年 / 10階建
東京都新宿区大京町24
24.8万円 / 管理費10,000円
敷
24.8万円礼
37.2万円2DK / 50.53㎡ / 6階
賃貸マンション
サンウッドフラッツ新宿四谷三丁目
東京メトロ丸ノ内線 / 四谷三丁目駅 徒歩6分
築1年 / 14階建
東京都新宿区信濃町
25.5万円 / 管理費25,000円
敷
25.5万円礼
25.5万円2LDK / 45.56㎡ / 2階
賃貸マンション
GENOVIA四谷三丁目greenveil

東京メトロ丸ノ内線 / 四谷三丁目駅 徒歩8分
築6年 / 10階建
東京都新宿区大京町18-17

25.5万円 / 管理費15,000円
敷
無料礼
無料1DK / 42.36㎡ / 4階
賃貸マンション
クラルテラセ新宿富久
都営新宿線 / 曙橋駅 徒歩3分
築3年 / 5階建
東京都新宿区富久町
23.9万円 / 管理費10,000円
敷
23.9万円礼
23.9万円1LDK / 45.49㎡ / 4階
賃貸マンション
ラティエラ四谷

東京メトロ丸ノ内線 / 四谷三丁目駅 徒歩2分
築1年 / 13階建
東京都新宿区愛住町

26.3万円 / 管理費12,000円
敷
26.3万円礼
無料2LDK / 41.02㎡ / 3階
賃貸マンション
河田町ガーデン1

都営新宿線 / 曙橋駅 徒歩6分
築23年 / 地上41階地下2階建
東京都新宿区河田町

24.78万円 / 管理費10,000円
敷
無料礼
24.78万円2LDK / 55.68㎡ / 5階
同じ最寄り駅 で探す
同じ最寄り駅 × 同じ特徴 で探す
同じ市区町村 × 同じ特徴 で探す








