江東区南砂 8階建 1990年築3DK/6階/601(東京都江東区 / 南砂町駅)の賃貸
1/34
1/34
18万円
初期費用を知りたい管理費10,000円
- 敷金
- 18万円
- 保証金
- なし
- 礼金
- 18万円
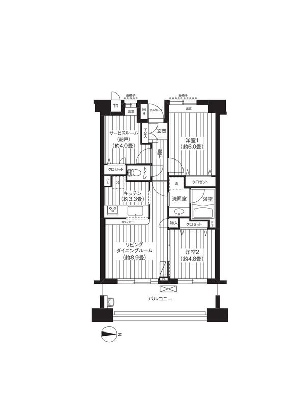
- 広さ
- 60㎡
- 階数
- 6階 / 8階建
- 間取り
- 3DK
- 建物
- マンション (鉄筋コンクリート)
- 築年数
- 築36年
- 向き
- 南
- 交通
- 東京メトロ東西線 / 南砂町駅徒歩7分
- 東京メトロ東西線 / 東陽町駅徒歩11分
- 東京メトロ東西線 / 木場駅徒歩23分
- 住所
- 東京都江東区南砂2丁目37-1
セブン-イレブン江東南砂2丁目店 982m
くすりの福太郎南砂2丁目店 1000m
薬 マツモトキヨシ 東陽町店 1035m
西友東陽町店 1064m
江東区文化センター内郵便局 1078m
江東区役所江東区文化センター 1091m
江東区防災センター 1190m
江東区役所 1313m
南砂小学校 110m
南砂中学校 265m
コンビニ 5m
スーパー 621m
無料で10秒! カンタンお問い合わせ
)
江東区南砂 8階建 1990年築
敷
18万円礼
18万円特徴
バス・トイレ別
2階以上
エアコン付き
ペット相談可
駐車場あり
室内洗濯機置場
オートロック
洗面所独立
- 入居条件
- 事務所可、二人入居可最新の空室状況が知りたい
- バス・トイレ
- 給湯、シャワー、追焚機能浴室、バストイレ別、洗面所独立、温水洗浄便座
- キッチン
- ガスキッチン、コンロ2口以上、システムキッチン、ガスコンロ対応
- セキュリティ
- オートロック、24時間緊急通報システム、防犯カメラ、オートロック、24時間緊急通報システム
- 室内設備
- エアコン、BS、CS、CATV、インターホン、インターネット対応、フローリング、室内洗濯置、クロゼット、押入、シューズボックス、光ファイバーお部屋の詳しい情報を知りたい
- 部屋の特徴
- 角住戸、バルコニー、二階以上写真を送ってほしい
- 共用部
- エレベーター、宅配ボックス、敷地内ごみ置き場、駐輪場
- その他の特徴
- 都市ガス、駐車場あり
無料で10秒! カンタンお問い合わせ
)
江東区南砂 8階建 1990年築
敷
18万円礼
18万円その他
- 駐車/駐輪
- 有り(敷地内) 費用: 33,000円 距離: 0m 備考: 平置き / あり駐車可能な車種や台数を知りたい
- 入居時期
- 損保
- -
- 保証人代行
- 保証人: 不要
- その他費用
- 情報
情報登録日:2026/3/31
情報更新日:2026/3/29
次回更新予定日:2026/4/20
- 備考
- 更新料: 180000円 退去時費用備考: 退去時費用は借主負担 その他: 退去時のクリーニング¥80300円、エアコンクリーニング代¥11000は敷金からご精算いたします。 保証会社利用必須 初回:総賃料60%~ 更新料10000円 月額864円 その他初期費用 144100円 業者管理CD: 112227095
取扱い会社
- 取扱い会社
- アパマンショップ浅草駅前店 株式会社 アップル条件が近い物件も紹介してほしい
- 免許番号
- 国土交通大臣(5)6971
- 取引態様
- 一般媒介
- 所在地
- 東京都台東区雷門2丁目
- 電話番号
- 03-5830-8867
- 所属団体名
- (公社)東京都宅地建物取引業協会,(公社) 首都圏不動産公正取引協議会加盟
おすすめ物件 (6件)
賃貸マンション
セボーンミナミスナ
東京メトロ東西線 / 南砂町駅 徒歩13分
築3年 / 7階建
東京都江東区東砂8丁目7-14
17.5万円 / 管理費11,000円
敷
無料礼
17.5万円1LDK / 50.61㎡ / 5階
賃貸マンション
恒陽千石マンションB棟

東京メトロ東西線 / 東陽町駅 徒歩18分
築45年 / 5階建
東京都江東区千石3丁目

19.8万円 / 管理費12,000円
敷
19.8万円礼
19.8万円3LDK / 64.01㎡ / 3階
賃貸マンション
パークビューステージ東陽町

東京メトロ東西線 / 東陽町駅 徒歩13分
築24年 / 13階建
東京都江東区南砂1丁目

18.2万円 / 管理費8,500円
敷
18.2万円礼
36.4万円2SLDK / 57.78㎡ / 6階
賃貸マンション
グランカーサ西葛西
東京メトロ東西線 / 南砂町駅 徒歩33分
新築 / 7階建
東京都江戸川区西葛西2丁目4-25
19.9万円 / 管理費15,000円
敷
無料礼
無料2SLDK / 54.23㎡ / 3階
賃貸マンション
SEBON MINAMISUNA (セボーンミナミスナ)
)
東京メトロ東西線 / 南砂町駅 徒歩13分
築3年 / 7階建
東京都江東区東砂8丁目7-14
)
17.5万円 / 管理費11,000円
敷
17.5万円礼
17.5万円1LDK / 50.61㎡ / 5階
賃貸マンション
レピドール福田Ⅰ
)
東京メトロ東西線 / 南砂町駅 徒歩7分
築36年 / 8階建
東京都江東区南砂2丁目37-1
)
18万円 / 管理費10,000円
敷
18万円礼
18万円3DK / 60㎡ / 6階
賃貸マンション
セボーンミナミスナ
東京メトロ東西線 / 南砂町駅 徒歩13分
築3年 / 7階建
東京都江東区東砂8丁目7-14
17.5万円 / 管理費11,000円
敷
無料礼
17.5万円1LDK / 50.61㎡ / 5階
賃貸マンション
恒陽千石マンションB棟

東京メトロ東西線 / 東陽町駅 徒歩18分
築45年 / 5階建
東京都江東区千石3丁目

19.8万円 / 管理費12,000円
敷
19.8万円礼
19.8万円3LDK / 64.01㎡ / 3階
賃貸マンション
パークビューステージ東陽町

東京メトロ東西線 / 東陽町駅 徒歩13分
築24年 / 13階建
東京都江東区南砂1丁目

18.2万円 / 管理費8,500円
敷
18.2万円礼
36.4万円2SLDK / 57.78㎡ / 6階
賃貸マンション
グランカーサ西葛西
東京メトロ東西線 / 南砂町駅 徒歩33分
新築 / 7階建
東京都江戸川区西葛西2丁目4-25
19.9万円 / 管理費15,000円
敷
無料礼
無料2SLDK / 54.23㎡ / 3階
賃貸マンション
SEBON MINAMISUNA (セボーンミナミスナ)
)
東京メトロ東西線 / 南砂町駅 徒歩13分
築3年 / 7階建
東京都江東区東砂8丁目7-14
)
17.5万円 / 管理費11,000円
敷
17.5万円礼
17.5万円1LDK / 50.61㎡ / 5階
賃貸マンション
レピドール福田Ⅰ
)
東京メトロ東西線 / 南砂町駅 徒歩7分
築36年 / 8階建
東京都江東区南砂2丁目37-1
)
18万円 / 管理費10,000円
敷
18万円礼
18万円3DK / 60㎡ / 6階
)
)
)
)
)
)
)
)
)
)
)
)
)
)
)
)
)
)
)
)
)
)
)
)
)
)
)
)
)
)
)
)
)


)
