クレイシア森下ステーションサイト1K/7階(東京都江東区 / 森下駅)の賃貸
1/20
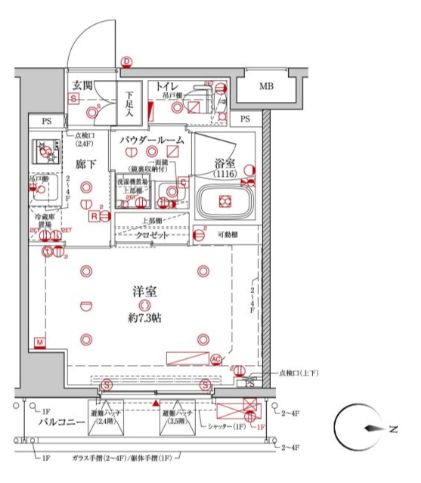
1/20
11.8万円
初期費用を知りたい管理費12,000円
- 敷金
- 11.8万円
- 保証金
- なし
- 礼金
- 11.8万円
- 広さ
- 25.5㎡
- 階数
- 7階 / 9階建
- 間取り
- 1K
- 建物
- マンション (鉄筋コンクリート)
- 築年数
- 築5年
- 向き
- 西
- 交通
- 都営大江戸線 / 森下駅徒歩3分
- 東京メトロ半蔵門線 / 清澄白河駅徒歩10分
- 住所
- 東京都江東区森下1丁目
コンビニエンスストア 237m
スーパーマーケット 211m
総合病院 273m
公園 884m
ドラッグストア 113m
(株)富士マート 森下店 330m
無料で10秒! カンタンお問い合わせ

クレイシア森下ステーションサイト
敷
11.8万円礼
11.8万円特徴
バス・トイレ別
2階以上
エアコン付き
ペット相談可
駐車場あり
室内洗濯機置場
オートロック
洗面所独立
- 入居条件
- 初期費用カード決済可、ペット不可、保証人不要最新の空室状況が知りたい
- バス・トイレ
- 専用バス、専用トイレ、バストイレ別、シャワー、給湯、追焚機能浴室、シャワー付洗面化粧台、温水洗浄便座、浴室乾燥機、洗面所独立、オートバス
- キッチン
- ガスコンロ対応、2口コンロ、システムキッチン
- セキュリティ
- オートロック、防犯カメラ
- 室内設備
- エアコン、室内洗濯置、CS、BS、フローリング、光ファイバー、ネット使用料不要、クロゼット、シューズボックス、照明付お部屋の詳しい情報を知りたい
- 部屋の特徴
- バルコニー、二階以上写真を送ってほしい
- 共用部
- エレベーター、宅配ボックス、駐輪場、バイク置場、敷地内駐車場
- その他の特徴
- 公営水道、都市ガス、下水、デザイナーズ、分譲賃貸、駐車場あり
無料で10秒! カンタンお問い合わせ

クレイシア森下ステーションサイト
敷
11.8万円礼
11.8万円不動産会社からのコメント
★エリア最大級★経験豊富なスタッフが多数在籍しております♪ 初期費用クレジット支払可能!オンライン
FAST ASSIST241100円(月額) 初期費用クレジット支払可能!オンライン内覧・オンライン契約等弊社に一度も来店せずとも問題ありません♪弊社ではネットに掲載されている物件も全てご紹介可能になりますので気になる物件は全て申し付けください★
その他
- 駐車/駐輪
- 空有 費用: 20,000円 / あり駐車可能な車種や台数を知りたい
- 入居時期
- 2026年4月上旬最新の空室状況が知りたい
- 損保
- 住宅保険: 要
- 保証人代行
- 加入要 会社名: 新日本信用保証 費用: 初回:総賃料の40% 1年毎に1万円の更新料
- その他費用
初期費用を知りたいエアコン清掃費:14,300円
除菌消臭:8,800円
鍵交換費用:35,200円
- 情報
情報登録日:2026/2/7
情報更新日:2026/2/21
次回更新予定日:2026/3/7
- 備考
- 現況: 居住中 更新料: 新賃料の1.0ヶ月分 契約期間: 2年 管理人: 巡回 その他交通: 東京都新宿線 浜町駅 徒歩14分 自社管理番号: 6666235
取扱い会社
- 取扱い会社
- 株式会社リブマックスリーシング 神田店条件が近い物件も紹介してほしい
- 免許番号
- 国土交通大臣 (3) 第8116号
- 取引態様
- 仲介
- 所在地
- 東京都千代田区鍛冶町2丁目1-1 ズイホウビル 6階
- 電話番号
- 03-5295-1515
- 定休日
- 無し(年末年始、GW、夏季)
- 所属団体名
- 公益社団法人 全国宅地建物取引業保証協会
おすすめ物件 (20件)
賃貸マンション
ドゥーエ両国Ⅲ

都営新宿線 / 森下駅 徒歩8分
築4年 / 11階建
東京都墨田区緑1丁目2-5

12.9万円 / 管理費10,000円
敷
12.9万円礼
12.9万円2K / 25.53㎡ / 9階
賃貸マンション
CITY SPIRE森下

都営大江戸線 / 森下駅 徒歩9分
築19年 / 10階建
東京都墨田区千歳1丁目5-1

12万円 / 管理費10,000円
敷
12万円礼
12万円1K / 25.95㎡ / 9階
賃貸マンション
パークアクシス両国

都営新宿線 / 森下駅 徒歩10分
築14年 / 11階建
東京都墨田区緑1丁目5-13

13.2万円 / 管理費8,000円
敷
13.2万円礼
13.2万円1K / 25.04㎡ / 9階
賃貸マンション
ハーモニーレジデンス森下ステーションフロント

都営新宿線 / 森下駅 徒歩1分
築12年 / 11階建
東京都江東区新大橋3丁目8-9

12.4万円 / 管理費15,000円
敷
無料礼
無料1K / 25.5㎡ / 6階
賃貸マンション
S-RESIDENCE両国緑

都営大江戸線 / 森下駅 徒歩8分
築4年 / 10階建
東京都墨田区緑2丁目5-6

11.6万円 / 管理費12,000円
敷
11.6万円礼
11.6万円1K / 25.72㎡ / 4階
賃貸マンション
コンフォリア両国サウス

都営新宿線 / 森下駅 徒歩7分
築15年 / 9階建
東京都墨田区千歳2丁目14-8

12.8万円 / 管理費8,000円
敷
12.8万円礼
無料1K / 26.84㎡ / 8階
賃貸マンション
GRAN PASEO菊川

都営大江戸線 / 森下駅 徒歩6分
築7年 / 7階建
東京都墨田区菊川1丁目9-7

13.2万円 / 管理費10,000円
敷
無料礼
無料1DK / 26.58㎡ / 2階
賃貸マンション
墨田区 10階建 2021年築

都営大江戸線 / 森下駅 徒歩7分
築5年 / 9階建
東京都墨田区緑1丁目6-4

12.7万円 / 管理費11,000円
敷
無料礼
12.7万円1K / 25.9㎡ / 6階
賃貸マンション
パークアクシス森下

都営大江戸線 / 森下駅 徒歩4分
築5年 / 12階建
東京都江東区新大橋2丁目13-12

12.8万円 / 管理費10,000円
敷
12.8万円礼
無料ワンルーム / 25.73㎡ / 7階
賃貸マンション
オーキッドレジデンス森下

都営新宿線 / 森下駅 徒歩9分
築6年 / 11階建
東京都墨田区緑1丁目1-10

13万円 / 管理費10,000円
敷
13万円礼
無料1K / 25.78㎡ / 2階
賃貸マンション
アーバネックス森下Ⅲ

都営新宿線 / 森下駅 徒歩2分
築7年 / 11階建
東京都江東区新大橋2丁目6-4

13.7万円 / 管理費10,000円
敷
13.7万円礼
無料1DK / 25.21㎡ / 9階
賃貸マンション
墨田区 13階建 2021年築
都営新宿線 / 森下駅 徒歩6分
築5年 / 13階建
東京都墨田区両国4丁目2-5
13.1万円 / 管理費10,000円
敷
13.1万円礼
13.1万円1K / 25.67㎡ / 10階
賃貸マンション
メインステージ森下Ⅱ

都営新宿線 / 森下駅 徒歩6分
築10年 / 11階建
東京都江東区新大橋2丁目18-6

11.7万円 / 管理費15,000円
敷
無料礼
11.7万円1K / 25.5㎡ / 6階
賃貸マンション
オーキッドレジデンス両国

都営新宿線 / 森下駅 徒歩10分
築6年 / 8階建
東京都墨田区緑1丁目6-1

12.6万円 / 管理費12,000円
敷
12.6万円礼
無料ワンルーム / 26.69㎡ / 5階
賃貸マンション
メインステージ森下駅前
都営新宿線 / 森下駅 徒歩4分
築12年 / 8階建
東京都江東区新大橋3丁目
家賃カード決済可
12.3万円 / 管理費15,000円
敷
無料礼
無料1K / 25.8㎡ / 8階
賃貸マンション
ルクレ森下レジデンス

都営新宿線 / 森下駅 徒歩3分
築19年 / 12階建
東京都江東区新大橋1丁目

11.7万円 / 管理費10,000円
敷
無料礼
無料ワンルーム / 25.91㎡ / 4階
賃貸マンション
メインステージ水天宮前
都営大江戸線 / 清澄白河駅 徒歩12分
築7年 / 12階建
東京都江東区佐賀2丁目
家賃カード決済可
12.25万円 / 管理費15,000円
敷
無料礼
12.25万円1K / 26.66㎡ / 10階
賃貸マンション
ベルシード門前仲町Ⅱ

都営大江戸線 / 清澄白河駅 徒歩14分
築4年 / 8階建
東京都江東区永代2丁目37-20

11.7万円 / 管理費15,000円
敷
無料礼
11.7万円1K / 25.69㎡ / 8階
賃貸マンション
ドゥーエ両国Ⅲ

都営新宿線 / 森下駅 徒歩8分
築4年 / 11階建
東京都墨田区緑1丁目2-5

12.9万円 / 管理費10,000円
敷
12.9万円礼
12.9万円2K / 25.53㎡ / 9階
賃貸マンション
CITY SPIRE森下

都営大江戸線 / 森下駅 徒歩9分
築19年 / 10階建
東京都墨田区千歳1丁目5-1

12万円 / 管理費10,000円
敷
12万円礼
12万円1K / 25.95㎡ / 9階
賃貸マンション
パークアクシス両国

都営新宿線 / 森下駅 徒歩10分
築14年 / 11階建
東京都墨田区緑1丁目5-13

13.2万円 / 管理費8,000円
敷
13.2万円礼
13.2万円1K / 25.04㎡ / 9階
賃貸マンション
ハーモニーレジデンス森下ステーションフロント

都営新宿線 / 森下駅 徒歩1分
築12年 / 11階建
東京都江東区新大橋3丁目8-9

12.4万円 / 管理費15,000円
敷
無料礼
無料1K / 25.5㎡ / 6階
賃貸マンション
S-RESIDENCE両国緑

都営大江戸線 / 森下駅 徒歩8分
築4年 / 10階建
東京都墨田区緑2丁目5-6

11.6万円 / 管理費12,000円
敷
11.6万円礼
11.6万円1K / 25.72㎡ / 4階
賃貸マンション
コンフォリア両国サウス

都営新宿線 / 森下駅 徒歩7分
築15年 / 9階建
東京都墨田区千歳2丁目14-8

12.8万円 / 管理費8,000円
敷
12.8万円礼
無料1K / 26.84㎡ / 8階
賃貸マンション
GRAN PASEO菊川

都営大江戸線 / 森下駅 徒歩6分
築7年 / 7階建
東京都墨田区菊川1丁目9-7

13.2万円 / 管理費10,000円
敷
無料礼
無料1DK / 26.58㎡ / 2階
賃貸マンション
墨田区 10階建 2021年築

都営大江戸線 / 森下駅 徒歩7分
築5年 / 9階建
東京都墨田区緑1丁目6-4

12.7万円 / 管理費11,000円
敷
無料礼
12.7万円1K / 25.9㎡ / 6階
賃貸マンション
パークアクシス森下

都営大江戸線 / 森下駅 徒歩4分
築5年 / 12階建
東京都江東区新大橋2丁目13-12

12.8万円 / 管理費10,000円
敷
12.8万円礼
無料ワンルーム / 25.73㎡ / 7階
賃貸マンション
オーキッドレジデンス森下

都営新宿線 / 森下駅 徒歩9分
築6年 / 11階建
東京都墨田区緑1丁目1-10

13万円 / 管理費10,000円
敷
13万円礼
無料1K / 25.78㎡ / 2階
賃貸マンション
アーバネックス森下Ⅲ

都営新宿線 / 森下駅 徒歩2分
築7年 / 11階建
東京都江東区新大橋2丁目6-4

13.7万円 / 管理費10,000円
敷
13.7万円礼
無料1DK / 25.21㎡ / 9階
賃貸マンション
墨田区 13階建 2021年築
都営新宿線 / 森下駅 徒歩6分
築5年 / 13階建
東京都墨田区両国4丁目2-5
13.1万円 / 管理費10,000円
敷
13.1万円礼
13.1万円1K / 25.67㎡ / 10階
賃貸マンション
メインステージ森下Ⅱ

都営新宿線 / 森下駅 徒歩6分
築10年 / 11階建
東京都江東区新大橋2丁目18-6

11.7万円 / 管理費15,000円
敷
無料礼
11.7万円1K / 25.5㎡ / 6階
賃貸マンション
オーキッドレジデンス両国

都営新宿線 / 森下駅 徒歩10分
築6年 / 8階建
東京都墨田区緑1丁目6-1

12.6万円 / 管理費12,000円
敷
12.6万円礼
無料ワンルーム / 26.69㎡ / 5階
賃貸マンション
メインステージ森下駅前
都営新宿線 / 森下駅 徒歩4分
築12年 / 8階建
東京都江東区新大橋3丁目
家賃カード決済可
12.3万円 / 管理費15,000円
敷
無料礼
無料1K / 25.8㎡ / 8階
賃貸マンション
ルクレ森下レジデンス

都営新宿線 / 森下駅 徒歩3分
築19年 / 12階建
東京都江東区新大橋1丁目

11.7万円 / 管理費10,000円
敷
無料礼
無料ワンルーム / 25.91㎡ / 4階
賃貸マンション
メインステージ水天宮前
都営大江戸線 / 清澄白河駅 徒歩12分
築7年 / 12階建
東京都江東区佐賀2丁目
家賃カード決済可
12.25万円 / 管理費15,000円
敷
無料礼
12.25万円1K / 26.66㎡ / 10階
賃貸マンション
ベルシード門前仲町Ⅱ

都営大江戸線 / 清澄白河駅 徒歩14分
築4年 / 8階建
東京都江東区永代2丁目37-20

11.7万円 / 管理費15,000円
敷
無料礼
11.7万円1K / 25.69㎡ / 8階
同じ最寄り駅 × 同じ特徴 で探す
同じ市区町村 × 同じ特徴 で探す
























