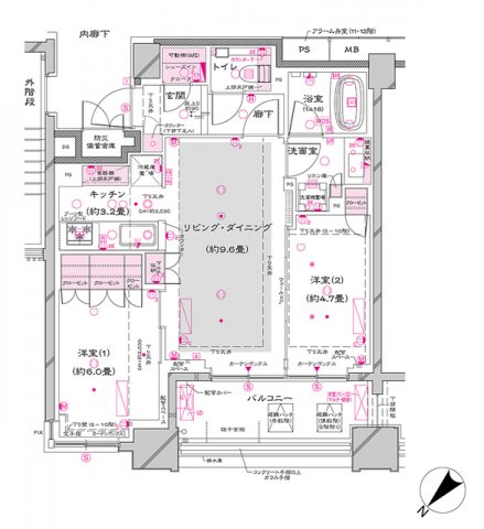
オーパスレジデンス銀座イースト2LDK/5階(東京都中央区 / 築地駅)の賃貸
1/24
1/24
35.7万円
初期費用を知りたい管理費15,000円
- 敷金
- 35.7万円
- 保証金
- なし
- 礼金
- 無料
- 広さ
- 55.38㎡
- 階数
- 5階 / 12階建
- 間取り
- 2LDK
- 建物
- マンション (鉄筋コンクリート)
- 築年数
- 築5年
- 向き
- 北西
- 交通
- 東京メトロ日比谷線 / 築地駅徒歩5分
- 東京メトロ有楽町線 / 新富町駅徒歩7分
- 住所
- 東京都中央区築地7丁目
コンビニエンスストア 67m
スーパーマーケット 139m
商店街 1183m
ニューみ乃り屋 228m
無料で10秒! カンタンお問い合わせ

オーパスレジデンス銀座イースト
敷
35.7万円礼
無料特徴
バス・トイレ別
2階以上
エアコン付き
ペット相談可
駐車場あり
室内洗濯機置場
オートロック
洗面所独立
- 入居条件
- 初期費用カード決済可、二人入居可、ペット可、保証人不要最新の空室状況が知りたい
- バス・トイレ
- 専用バス、専用トイレ、バストイレ別、給湯、追焚機能浴室、シャワー付洗面化粧台、温水洗浄便座、浴室乾燥機、洗面所独立、オートバス
- キッチン
- ガスコンロ対応、3口以上コンロ、システムキッチン、カウンターキッチン、食器洗乾燥機
- セキュリティ
- オートロック、防犯カメラ
- 室内設備
- エアコン、室内洗濯置、CS、BS、フローリング、光ファイバー、床暖房、ネット使用料不要、クロゼット、シューズボックス、シューズインクロゼット、照明付お部屋の詳しい情報を知りたい
- 部屋の特徴
- バルコニー、角住戸、二階以上写真を送ってほしい
- 共用部
- エレベーター、宅配ボックス、駐輪場
- その他の特徴
- 公営水道、都市ガス、下水、バリアフリー、デザイナーズ、分譲賃貸
無料で10秒! カンタンお問い合わせ

オーパスレジデンス銀座イースト
敷
35.7万円礼
無料同じ建物で掲載中の物件 (8件)
不動産会社からのコメント
★エリア最大級★経験豊富なスタッフが多数在籍しております♪ 初期費用クレジット支払可能!オンライン
★エリア最大級★経験豊富なスタッフが多数在籍しております♪ 初期費用クレジット支払可能!オンライン内覧・オンライン契約等弊社に一度も来店せずとも問題ありません♪弊社ではネットに掲載されている物件も全てご紹介可能になりますので気になる物件は全て申し付けください★
その他
- 駐車/駐輪
- 無 / あり駐車可能な車種や台数を知りたい
- 入居時期
- 2026年5月中旬最新の空室状況が知りたい
- 損保
- 住宅保険: 要
- 保証人代行
- 加入要 費用: 初回保証委託料(最低15,000円):月額賃料等の50%、 2年目以降:10,000円/年
- その他費用
初期費用を知りたい鍵交換費用:44,000円
- 情報
情報登録日:2026/2/23
情報更新日:2026/5/8
次回更新予定日:2026/5/22
- 備考
- 現況: 居住中 更新料: 新賃料の1.0ヶ月分 契約期間: 2年 管理人: 巡回 その他交通: 東京都浅草線 東銀座駅 徒歩12分 自社管理番号: 6725569
取扱い会社
- 取扱い会社
- 株式会社リブマックスリーシング 新橋駅前店条件が近い物件も紹介してほしい
- 免許番号
- 国土交通大臣 (4) 第8116号
- 取引態様
- 仲介
- 所在地
- 東京都港区新橋2丁目6-7 花菱ビル 5F
- 電話番号
- 03-3503-5050
- 定休日
- 無し(年末年始、GW、夏季)
- 所属団体名
- 公益社団法人 全国宅地建物取引業保証協会
おすすめ物件 (6件)
賃貸マンション
THE MAYFAIR

東京メトロ日比谷線 / 築地駅 徒歩1分
新築 / 26階建
東京都中央区築地3丁目3-8

36.9万円 / 管理費10,000円
敷
36.9万円礼
無料2LDK / 57.59㎡ / 12階
賃貸マンション
HF銀座レジデンスイースト|HF GINZA RESIDENCE EAST
東京メトロ日比谷線 / 築地駅 徒歩4分
築21年 / 13階建
東京都中央区築地7丁目7-8
34.9万円 / 管理費8,000円
敷
34.9万円礼
無料2LDK / 62.19㎡ / 13階
賃貸マンション
プライムガーデン銀座八丁堀
東京メトロ有楽町線 / 新富町駅 徒歩5分
築1年 / 12階建
東京都中央区入船1丁目4-5
34万円 / 管理費15,000円
敷
34万円礼
無料3LDK / 54.79㎡ / 12階
賃貸マンション
ザ メイフェア
東京メトロ日比谷線 / 築地駅 徒歩1分
新築 / 14階建
東京都中央区築地3丁目3
36.6万円 / 管理費10,000円
敷
36.6万円礼
36.6万円2LDK / 61.91㎡ / 3階
賃貸マンション
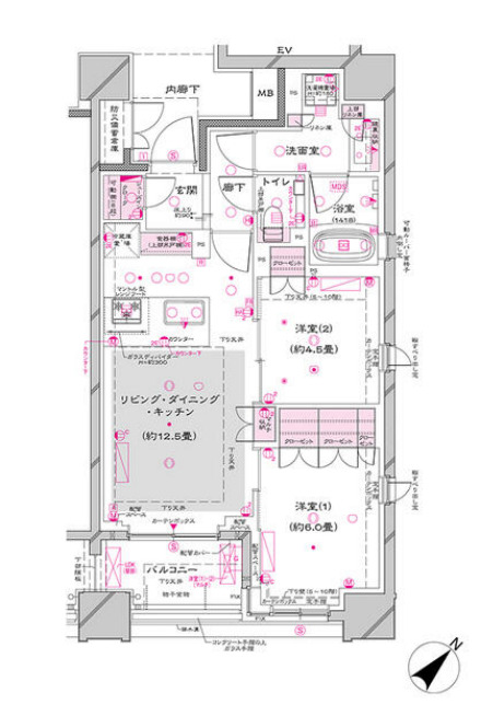
オーパスレジデンス銀座イースト

東京メトロ日比谷線 / 築地駅 徒歩5分
築5年 / 12階建
東京都中央区築地7丁目

34.4万円 / 管理費15,000円
敷
34.4万円礼
無料2LDK / 55.38㎡ / 6階
賃貸マンション
HF銀座レジデンスEAST
東京メトロ日比谷線 / 築地駅 徒歩4分
築21年 / 13階建
東京都中央区築地7丁目7-8
家賃カード決済可
34.9万円 / 管理費8,000円
敷
34.9万円礼
無料2LDK / 62.19㎡ / 13階
賃貸マンション
THE MAYFAIR

東京メトロ日比谷線 / 築地駅 徒歩1分
新築 / 26階建
東京都中央区築地3丁目3-8

36.9万円 / 管理費10,000円
敷
36.9万円礼
無料2LDK / 57.59㎡ / 12階
賃貸マンション
HF銀座レジデンスイースト|HF GINZA RESIDENCE EAST
東京メトロ日比谷線 / 築地駅 徒歩4分
築21年 / 13階建
東京都中央区築地7丁目7-8
34.9万円 / 管理費8,000円
敷
34.9万円礼
無料2LDK / 62.19㎡ / 13階
賃貸マンション
プライムガーデン銀座八丁堀
東京メトロ有楽町線 / 新富町駅 徒歩5分
築1年 / 12階建
東京都中央区入船1丁目4-5
34万円 / 管理費15,000円
敷
34万円礼
無料3LDK / 54.79㎡ / 12階
賃貸マンション
ザ メイフェア
東京メトロ日比谷線 / 築地駅 徒歩1分
新築 / 14階建
東京都中央区築地3丁目3
36.6万円 / 管理費10,000円
敷
36.6万円礼
36.6万円2LDK / 61.91㎡ / 3階
賃貸マンション
オーパスレジデンス銀座イースト

東京メトロ日比谷線 / 築地駅 徒歩5分
築5年 / 12階建
東京都中央区築地7丁目

34.4万円 / 管理費15,000円
敷
34.4万円礼
無料2LDK / 55.38㎡ / 6階
賃貸マンション
HF銀座レジデンスEAST
東京メトロ日比谷線 / 築地駅 徒歩4分
築21年 / 13階建
東京都中央区築地7丁目7-8
家賃カード決済可
34.9万円 / 管理費8,000円
敷
34.9万円礼
無料2LDK / 62.19㎡ / 13階
同じ最寄り駅 × 同じ特徴 で探す
同じ市区町村 × 同じ特徴 で探す






























