レオパレスシェモアⅢ1K/1階/103(東京都新宿区 / 下落合駅)の賃貸
1/14
1/14
10.4万円
初期費用を知りたい管理費5,500円
- 敷金
- 無料
- 保証金
- なし
- 礼金
- 10.4万円
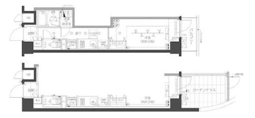
- 広さ
- 19.87㎡
- 階数
- 1階 / 3階建
- 間取り
- 1K
- 建物
- マンション (鉄骨)
- 築年数
- 築17年
- 向き
- 交通
- 西武新宿線 / 下落合駅徒歩7分
- 山手線 / 高田馬場駅徒歩10分
- 西武新宿線 / 中井駅徒歩18分
- 住所
- 東京都新宿区下落合1丁目11-10
BIGBOX高田馬場 792m
スーパーオオゼキ高田馬場店 449m
セブン-イレブン 高田馬場3丁目中央店 223m
どらっぐぱぱす 下落合店 393m
ゲオ北新宿店 939m
カレーハウス CoCo壱番屋 新宿高田馬場店 468m
無料で10秒! カンタンお問い合わせ

レオパレスシェモアⅢ
敷
無料礼
10.4万円特徴
バス・トイレ別
2階以上
エアコン付き
ペット相談可
駐車場あり
室内洗濯機置場
オートロック
洗面所独立
- 入居条件
- 敷金不要最新の空室状況が知りたい
- バス・トイレ
- バストイレ別、浴室乾燥機、温水洗浄便座
- セキュリティ
- 防犯カメラ、オートロック
- 室内設備
- 家具付、インターネット対応、エアコン、室内洗濯置お部屋の詳しい情報を知りたい
- 部屋の特徴
- バルコニー写真を送ってほしい
- その他の特徴
- 駐車場あり、都市ガス、公営水道、下水
無料で10秒! カンタンお問い合わせ

レオパレスシェモアⅢ
敷
無料礼
10.4万円不動産会社からのコメント
環境維持費550円/ベーシックプラン 月額3630円/退去時清掃費41800円環境維持費 1ヶ月550円/引落手数料 524円/短期解約違約金(1年未満の解約は賃料の1ヶ月分)
その他
- 駐車/駐輪
- 近隣 費用: 36,300円(税込) 距離: 388m / なし駐車可能な車種や台数を知りたい
- 入居時期
- 2026年4月下旬最新の空室状況が知りたい
- 損保
- 住宅保険: 要
- 保証人代行
- 保証人代行: 必須 保証人代行会社: その他 月額賃料等の100%(初回保証料)、2年目以降は1万円/年
- その他費用
初期費用を知りたい室内清掃費:41,800円
鍵交換費:16,500円
- 情報
情報登録日:2026/3/25
情報更新日:2026/3/20
次回更新予定日:2026/4/7
- 備考
- 契約期間: 2年
取扱い会社
- 取扱い会社
- アエラス目白店 (株式会社アエラス.ER)条件が近い物件も紹介してほしい
- 免許番号
- 国土交通大臣(1)第10724号
- 取引態様
- 仲介
- 所在地
- 東京都豊島区目白3丁目5-16 青山ビル 4階・5階
- 電話番号
- 03-6914-4811
- 営業時間
- 10:00~19:00
- 定休日
- 年中無休(年末年始などを除く)
- 所属団体名
- 全日本不動産協会
おすすめ物件 (20件)
賃貸マンション
S-RESIDENCE 雑司が谷

山手線 / 高田馬場駅 徒歩12分
築8年 / 8階建
東京都豊島区高田2丁目2-13

11.3万円 / 管理費14,000円
敷
無料礼
11.3万円1K / 25.75㎡ / 3階
賃貸マンション
リヴシティ西早稲田

東京メトロ東西線 / 高田馬場駅 徒歩8分
築12年 / 6階建
東京都新宿区西早稲田3丁目30-30

12.4万円 / 管理費5,000円
敷
無料礼
12.4万円1K / 25.96㎡ / 4階
賃貸マンション
新宿区 12階建 2002年築

東京メトロ東西線 / 高田馬場駅 徒歩6分
築24年 / 12階建
東京都新宿区下落合2丁目5-2

11.4万円 / 管理費11,000円
敷
無料礼
11.4万円1K / 23.08㎡ / 9階
賃貸マンション
コンフォリア中落合

西武新宿線 / 下落合駅 徒歩6分
築15年 / 3階建
東京都新宿区中落合2丁目16-29

11.4万円 / 管理費10,000円
敷
11.4万円礼
無料1K / 29.54㎡ / 1階
賃貸マンション
レガリス新宿落合

都営大江戸線 / 中井駅 徒歩5分
築8年 / 4階建
東京都新宿区上落合1丁目

11.7万円 / 管理費10,000円
敷
11.7万円礼
11.7万円1K / 25.38㎡ / 1階
賃貸マンション
エテルノ高田馬場

東京メトロ東西線 / 高田馬場駅 徒歩4分
築20年 / 6階建
東京都豊島区高田3丁目

8.8万円 / 管理費10,000円
敷
8.8万円礼
17.6万円ワンルーム / 19.13㎡ / 5階
賃貸マンション
新宿区 3階建 2021年築

山手線 / 高田馬場駅 徒歩6分
築5年 / 3階建
東京都新宿区高田馬場4丁目22-17

11.7万円 / 管理費15,000円
敷
11.7万円礼
11.7万円1K / 25.08㎡ / 1階
賃貸マンション
レジディア中落合 B棟

西武新宿線 / 下落合駅 徒歩5分
築18年 / 7階建
東京都新宿区中落合1丁目5-3

10.5万円 / 管理費15,000円
敷
無料礼
無料ワンルーム / 24.09㎡ / 3階
賃貸マンション
新宿区 5階建 2006年築

西武新宿線 / 中井駅 徒歩8分
築20年 / 5階建
東京都新宿区中落合4丁目1-17

10.5万円 / 管理費7,000円
敷
無料礼
無料1K / 20.16㎡ / 4階
賃貸マンション
CREAL高田馬場Ⅱ

西武新宿線 / 下落合駅 徒歩5分
築7年 / 4階建
東京都新宿区高田馬場3丁目28-12

10.7万円 / 管理費8,000円
敷
無料礼
10.7万円ワンルーム / 23.15㎡ / 4階
賃貸マンション
ZOOM高田馬場WEST

西武新宿線 / 下落合駅 徒歩3分
築4年 / 6階建
東京都新宿区高田馬場3丁目45-10

11.7万円 / 管理費6,000円
敷
11.7万円礼
11.7万円1K / 26.09㎡ / 1階
賃貸マンション
レジディア上落合(旧パシフィックレジデンス上落合)

都営大江戸線 / 中井駅 徒歩2分
築20年 / 地上6階地下1階建
東京都新宿区上落合3丁目6-14

11万円 / 管理費15,000円
敷
無料礼
無料1K / 20.7㎡ / 3階
賃貸マンション
PASEO高田馬場Ⅲ

東京メトロ東西線 / 高田馬場駅 徒歩7分
築5年 / 4階建
東京都豊島区高田3丁目2-15

12.3万円 / 管理費20,000円
敷
12.3万円礼
12.3万円1K / 25.48㎡ / 1階
賃貸マンション
レジディア中落合 C棟

西武新宿線 / 下落合駅 徒歩5分
築18年 / 7階建
東京都新宿区中落合1丁目5-2

11.6万円 / 管理費15,000円
敷
無料礼
無料1K / 24.49㎡ / 6階
賃貸マンション
メイクスデザイン高田馬場
山手線 / 高田馬場駅 徒歩7分
築13年 / 7階建
東京都新宿区下落合2丁目
12万円 / 管理費10,000円
敷
無料礼
12万円ワンルーム / 26.03㎡ / 2階
賃貸マンション
ルネサンスコート高田馬場Patria

山手線 / 高田馬場駅 徒歩7分
築3年 / 4階建
東京都新宿区高田馬場3丁目

11.4万円 / 管理費10,000円
敷
11.4万円礼
無料1K / 20.51㎡ / 1階
賃貸マンション
LaDouceur中落合【ラドゥセール中落合】
西武新宿線 / 中井駅 徒歩2分
築5年 / 10階建
東京都新宿区中落合1丁目
12.4万円 / 管理費10,000円
敷
無料礼
無料1K / 25.07㎡ / 4階
賃貸マンション
S-RESIDENCE 雑司が谷

山手線 / 高田馬場駅 徒歩12分
築8年 / 8階建
東京都豊島区高田2丁目2-13

11.3万円 / 管理費14,000円
敷
無料礼
11.3万円1K / 25.75㎡ / 3階
賃貸マンション
リヴシティ西早稲田

東京メトロ東西線 / 高田馬場駅 徒歩8分
築12年 / 6階建
東京都新宿区西早稲田3丁目30-30

12.4万円 / 管理費5,000円
敷
無料礼
12.4万円1K / 25.96㎡ / 4階
賃貸マンション
新宿区 12階建 2002年築

東京メトロ東西線 / 高田馬場駅 徒歩6分
築24年 / 12階建
東京都新宿区下落合2丁目5-2

11.4万円 / 管理費11,000円
敷
無料礼
11.4万円1K / 23.08㎡ / 9階
賃貸マンション
コンフォリア中落合

西武新宿線 / 下落合駅 徒歩6分
築15年 / 3階建
東京都新宿区中落合2丁目16-29

11.4万円 / 管理費10,000円
敷
11.4万円礼
無料1K / 29.54㎡ / 1階
賃貸マンション
レガリス新宿落合

都営大江戸線 / 中井駅 徒歩5分
築8年 / 4階建
東京都新宿区上落合1丁目

11.7万円 / 管理費10,000円
敷
11.7万円礼
11.7万円1K / 25.38㎡ / 1階
賃貸マンション
エテルノ高田馬場

東京メトロ東西線 / 高田馬場駅 徒歩4分
築20年 / 6階建
東京都豊島区高田3丁目

8.8万円 / 管理費10,000円
敷
8.8万円礼
17.6万円ワンルーム / 19.13㎡ / 5階
賃貸マンション
新宿区 3階建 2021年築

山手線 / 高田馬場駅 徒歩6分
築5年 / 3階建
東京都新宿区高田馬場4丁目22-17

11.7万円 / 管理費15,000円
敷
11.7万円礼
11.7万円1K / 25.08㎡ / 1階
賃貸マンション
レジディア中落合 B棟

西武新宿線 / 下落合駅 徒歩5分
築18年 / 7階建
東京都新宿区中落合1丁目5-3

10.5万円 / 管理費15,000円
敷
無料礼
無料ワンルーム / 24.09㎡ / 3階
賃貸マンション
新宿区 5階建 2006年築

西武新宿線 / 中井駅 徒歩8分
築20年 / 5階建
東京都新宿区中落合4丁目1-17

10.5万円 / 管理費7,000円
敷
無料礼
無料1K / 20.16㎡ / 4階
賃貸マンション
CREAL高田馬場Ⅱ

西武新宿線 / 下落合駅 徒歩5分
築7年 / 4階建
東京都新宿区高田馬場3丁目28-12

10.7万円 / 管理費8,000円
敷
無料礼
10.7万円ワンルーム / 23.15㎡ / 4階
賃貸マンション
ZOOM高田馬場WEST

西武新宿線 / 下落合駅 徒歩3分
築4年 / 6階建
東京都新宿区高田馬場3丁目45-10

11.7万円 / 管理費6,000円
敷
11.7万円礼
11.7万円1K / 26.09㎡ / 1階
賃貸マンション
レジディア上落合(旧パシフィックレジデンス上落合)

都営大江戸線 / 中井駅 徒歩2分
築20年 / 地上6階地下1階建
東京都新宿区上落合3丁目6-14

11万円 / 管理費15,000円
敷
無料礼
無料1K / 20.7㎡ / 3階
賃貸マンション
PASEO高田馬場Ⅲ

東京メトロ東西線 / 高田馬場駅 徒歩7分
築5年 / 4階建
東京都豊島区高田3丁目2-15

12.3万円 / 管理費20,000円
敷
12.3万円礼
12.3万円1K / 25.48㎡ / 1階
賃貸マンション
レジディア中落合 C棟

西武新宿線 / 下落合駅 徒歩5分
築18年 / 7階建
東京都新宿区中落合1丁目5-2

11.6万円 / 管理費15,000円
敷
無料礼
無料1K / 24.49㎡ / 6階
賃貸マンション
メイクスデザイン高田馬場
山手線 / 高田馬場駅 徒歩7分
築13年 / 7階建
東京都新宿区下落合2丁目
12万円 / 管理費10,000円
敷
無料礼
12万円ワンルーム / 26.03㎡ / 2階
賃貸マンション
ルネサンスコート高田馬場Patria

山手線 / 高田馬場駅 徒歩7分
築3年 / 4階建
東京都新宿区高田馬場3丁目

11.4万円 / 管理費10,000円
敷
11.4万円礼
無料1K / 20.51㎡ / 1階
賃貸マンション
LaDouceur中落合【ラドゥセール中落合】
西武新宿線 / 中井駅 徒歩2分
築5年 / 10階建
東京都新宿区中落合1丁目
12.4万円 / 管理費10,000円
敷
無料礼
無料1K / 25.07㎡ / 4階





















