ザ・パークハビオ明大前1K/10階/1004(東京都世田谷区 / 明大前駅)の賃貸
1/23
1/23
14.3万円
初期費用を知りたい管理費10,000円
- 敷金
- 14.3万円
- 保証金
- なし
- 礼金
- 14.3万円
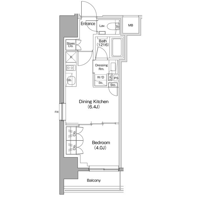
- 広さ
- 25.93㎡
- 階数
- 10階 / 12階建
- 間取り
- 1K
- 建物
- マンション (鉄筋コンクリート)
- 築年数
- 築4年
- 向き
- 北
- 交通
- 京王線 / 明大前駅徒歩3分
- 京王線 / 代田橋駅徒歩12分
- 京王線 / 下高井戸駅徒歩12分
- 住所
- 東京都世田谷区松原2丁目43番6号
セブンイレブン 261m
東京消防庁杉並消防署永福出張所 941m
西友下高井戸店 798m
西友下高井戸店 850m
ローソン 1009m
(株)京王ストア/代田橋店 988m
キッチンコート 1092m
永福町駅 1214m
新泉小学校 795m
和泉中学校 795m
コンビニ 130m
スーパー 260m
無料で10秒! カンタンお問い合わせ
)
ザ・パークハビオ明大前
敷
14.3万円礼
14.3万円特徴
バス・トイレ別
2階以上
エアコン付き
ペット相談可
駐車場あり
室内洗濯機置場
オートロック
洗面所独立
- 入居条件
- ペット可、楽器相談最新の空室状況が知りたい
- バス・トイレ
- 給湯、シャワー、追焚機能浴室、バストイレ別、浴室乾燥機、洗面所独立、温水洗浄便座
- キッチン
- ガスキッチン、コンロ2口以上、システムキッチン
- セキュリティ
- オートロック、24時間緊急通報システム、防犯カメラ、オートロック、24時間緊急通報システム
- 室内設備
- エアコン、冷房、暖房、BS、CS、CATV、インターホン、インターネット対応、フローリング、室内洗濯置、クロゼット、押入、照明付、シューズボックス、24時間換気システム、光ファイバーお部屋の詳しい情報を知りたい
- 部屋の特徴
- ベランダ、陽当り良好、バルコニー、二階以上写真を送ってほしい
- 共用部
- エレベーター、宅配ボックス、敷地内ごみ置き場、駐輪場
- その他の特徴
- 地デジ対応、駐車場あり
無料で10秒! カンタンお問い合わせ
)
ザ・パークハビオ明大前
敷
14.3万円礼
14.3万円その他
- 駐車/駐輪
- 有り(敷地内) 費用: 33,000円 距離: 0m / あり駐車可能な車種や台数を知りたい
- 入居時期
- 2026年3月中旬最新の空室状況が知りたい
- 損保
- -
- 保証人代行
- 保証人: 不要
- その他費用
- 情報
情報登録日:2025/12/28
情報更新日:2026/2/28
次回更新予定日:2026/3/17
- 備考
- 退去時費用備考: 退去費用実費精算 バルコニー面積: 5.04㎡ その他: 近隣工事有 駆付けサポート24借主加入 保証会社未使用時敷金2か月 ペット・楽器相談(諸条件弊社募集図面要確認) SOHO使用応相談(敷金1か月積増) 民泊不可 鍵交換必須/退去時:室内清掃・エアコン洗浄費借主負担 付属施設空状況要確認 保証会社利用必須 SBIギャランティ 初年度保証料:賃料等合計額の40%(最低保証料2万円)2年目以降:1年毎8千円 その他初期費用 33000円 業者管理CD: 94055767
取扱い会社
- 取扱い会社
- アパマンショップ下北沢店 株式会社 アップル条件が近い物件も紹介してほしい
- 免許番号
- 国土交通大臣(5)6971
- 取引態様
- 一般媒介
- 所在地
- 東京都世田谷区北沢2丁目
- 電話番号
- 03-6858-2626
- 所属団体名
- (公社)埼玉県宅地建物取引業協会,(公社) 首都圏不動産公正取引協議会加盟
おすすめ物件 (1件)
賃貸マンション
コンフォリア下北沢

京王線 / 代田橋駅 徒歩8分
築21年 / 11階建
東京都世田谷区羽根木1丁目9-14

12.7万円 / 管理費6,000円
敷
12.7万円礼
無料1K / 25㎡ / 5階
賃貸マンション
コンフォリア下北沢

京王線 / 代田橋駅 徒歩8分
築21年 / 11階建
東京都世田谷区羽根木1丁目9-14

12.7万円 / 管理費6,000円
敷
12.7万円礼
無料1K / 25㎡ / 5階
)
)
)
)
)
)
)
)
)
)
)
)
)
)
)
)
)
)
)
)
)
)


)
