Brillia ist 浅草2LDK/6階/601(東京都台東区 / 浅草駅)の賃貸
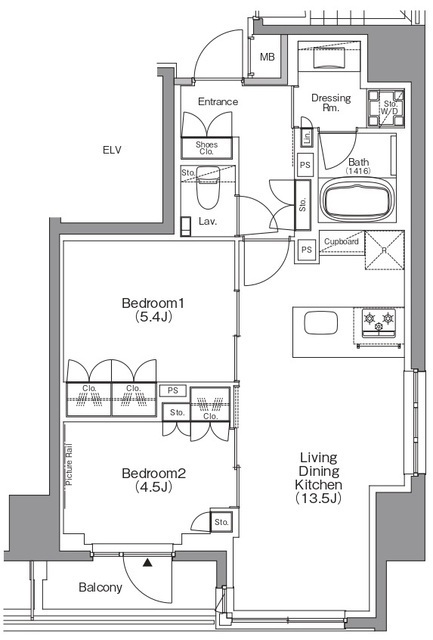
1/29
1/29
23.6万円
初期費用を知りたい管理費15,000円
- 敷金
- 23.6万円
- 保証金
- なし
- 礼金
- 無料
- 広さ
- 45.79㎡
- 階数
- 6階 / 15階建
- 間取り
- 2LDK
- 建物
- マンション (鉄筋コンクリート)
- 築年数
- 新築
- 向き
- 北
- 交通
- つくばエクスプレス / 浅草駅徒歩1分
- 東京メトロ銀座線 / 田原町駅徒歩6分
- 住所
- 東京都台東区西浅草2丁目27-12
スーパーマーケット 277m
無料で10秒! カンタンお問い合わせ

Brillia ist 浅草
敷
23.6万円礼
無料特徴
バス・トイレ別
2階以上
エアコン付き
ペット相談可
駐車場あり
室内洗濯機置場
オートロック
洗面所独立
- 入居条件
- 二人入居可、ペット相談、保証人不要、初期費用カード決済可、ルームシェア不可、礼金不要、即入居可、フリーレント最新の空室状況が知りたい
- バス・トイレ
- 給湯、追焚機能浴室、シャワー付洗面化粧台、温水洗浄便座、浴室乾燥機、洗面所独立、オートバス、専用バス、バストイレ別、シャワー
- キッチン
- システムキッチン、ガスコンロ対応、3口以上コンロ
- セキュリティ
- 防犯カメラ、オートロック
- 室内設備
- CS、BS、クロゼット、シューズボックス、照明付、エアコン、室内洗濯置、フローリング、光ファイバー、ネット使用料不要お部屋の詳しい情報を知りたい
- 部屋の特徴
- 角住戸、バルコニー、二階以上写真を送ってほしい
- 共用部
- 宅配ボックス、駐輪場、エレベーター
- その他の特徴
- 外壁タイル張り、公営水道、都市ガス、下水
無料で10秒! カンタンお問い合わせ

Brillia ist 浅草
敷
23.6万円礼
無料同じ建物で掲載中の物件 (40件)
不動産会社からのコメント
★仲介手数料無料物件です★初期費用カード決済も承りますので、詳細はお気軽にお問い合わせくださいませ。
駅徒歩5分以内、新築、エレベーター、フリーレント、ペット相談、24時間緊急対応、防犯カメラ、オートロック、24Hゴミ出し可、宅配ボックス、角部屋、フローリング、バストイレ別、人感センサー、火災報知器、照明機器、追い焚き、浴室乾燥機、オートバス、温水洗浄便座、シャンプードレッサー、BS+CS
その他
- 駐車/駐輪
- 空無 / あり駐車可能な車種や台数を知りたい
- 入居時期
- 損保
- 住宅保険: 要
- 保証人代行
- 加入要 会社名: 日本レンタル保証株式会社 費用: 当社指定の保証会社利用必須。(初回保証料:賃料等の50%、月額支払手数料:賃料等の1%)
- その他費用
初期費用を知りたい室内清掃費用:50,600円
- 情報
情報登録日:2026/4/17
情報更新日:2026/4/17
次回更新予定日:2026/4/24
- 備考
- 現況: 空家 状態: 未入居 更新料: 新賃料の1.0ヶ月分 フリーレント: 2ヶ月 契約期間: 2年 管理人: 巡回 総戸数: 68戸 自社管理番号: 14199281
取扱い会社
- 取扱い会社
- 株式会社メインストリーム 本店条件が近い物件も紹介してほしい
- 免許番号
- 東京都知事免許 (01)第110887号
- 取引態様
- 仲介
- 所在地
- 東京都千代田区外神田1-16-8 GEEKS秋葉原9階
- 電話番号
- 03-3525-8300
- 営業時間
- 10:00~19:00
- 定休日
- 毎週水曜日(夏季、年末年始、GW休暇)
- 所属団体名
- 公益社団法人不動産保証協会
おすすめ物件 (19件)
賃貸マンション
プラウドフラット上野松が谷

つくばエクスプレス / 浅草駅 徒歩10分
築5年 / 地上10階地下1階建
東京都台東区松が谷4丁目19-7

24.5万円 / 管理費15,000円
敷
24.5万円礼
無料2LDK / 50.22㎡ / 4階
賃貸マンション
nidoMOTOASAKUSA

東京メトロ銀座線 / 田原町駅 徒歩6分
新築 / 13階建
東京都台東区元浅草4丁目2-13

21.6万円 / 管理費15,000円
敷
無料礼
無料2LDK / 40.5㎡ / 8階
賃貸マンション
デュオフラッツ浅草田原町

東京メトロ銀座線 / 田原町駅 徒歩5分
築2年 / 13階建
東京都台東区寿3丁目21-5

家賃カード決済可
23.6万円 / 管理費10,000円
敷
23.6万円礼
11.8万円2LDK / 43.03㎡ / 11階
賃貸マンション
ルミークアン入谷
つくばエクスプレス / 浅草駅 徒歩8分
築1年 / 15階建
東京都台東区入谷2丁目6-7
23.3万円 / 管理費20,000円
敷
無料礼
無料2LDK / 51.69㎡ / 4階
賃貸マンション
ニド元浅草(nido MOTOASAKUSA)
東京メトロ銀座線 / 田原町駅 徒歩6分
新築 / 13階建
東京都台東区元浅草4丁目2-13
23.5万円 / 管理費15,000円
敷
無料礼
無料2LDK / 40.5㎡ / 2階
賃貸マンション
プライムアーバン浅草テラス
つくばエクスプレス / 浅草駅 徒歩5分
築3年 / 15階建
東京都台東区浅草2丁目20-2
21.7万円 / 管理費20,000円
敷
無料礼
無料2LDK / 46.52㎡ / 3階
賃貸マンション
台東区 15階建 2025年築
東京メトロ銀座線 / 浅草駅 徒歩7分
新築 / 15階建
東京都台東区駒形1丁目4-17
24.4万円 / 管理費25,000円
敷
24.4万円礼
48.8万円2LDK / 50.96㎡ / 2階
賃貸マンション
リバーレ浅草ウエスト

東京メトロ銀座線 / 田原町駅 徒歩2分
築10年 / 15階建
東京都台東区寿2丁目8-10

24.4万円 / 管理費10,000円
敷
24.4万円礼
24.4万円2LDK / 49.21㎡ / 4階
賃貸マンション
Brillia ist 浅草

つくばエクスプレス / 浅草駅 徒歩1分
新築 / 15階建
東京都台東区西浅草2丁目27-12

22.7万円 / 管理費15,000円
敷
22.7万円礼
無料2LDK / 45.79㎡ / 6階
賃貸マンション
アーバンパーク押上

東京メトロ銀座線 / 浅草駅 徒歩17分
築2年 / 7階建
東京都墨田区向島3丁目9-5

22.9万円 / 管理費20,000円
敷
無料礼
無料2LDK / 46.01㎡ / 3階
賃貸マンション
パークキューブ浅草田原町

つくばエクスプレス / 浅草駅 徒歩7分
築20年 / 15階建
東京都台東区寿3丁目19-7

22.5万円 / 管理費10,000円
敷
22.5万円礼
22.5万円1SLDK / 50㎡ / 9階
賃貸マンション
ジオエント上野稲荷町
つくばエクスプレス / 浅草駅 徒歩10分
新築 / 14階建
東京都台東区松が谷1丁目
家賃カード決済可
25.6万円 / 管理費20,000円
敷
25.6万円礼
無料2LDK / 50.15㎡ / 2階
賃貸マンション
クリオラベルヴィ元浅草

東京メトロ銀座線 / 田原町駅 徒歩8分
築3年 / 13階建
東京都台東区元浅草3丁目16-12

25.5万円 / 管理費20,000円
敷
25.5万円礼
無料2LDK / 50.92㎡ / 13階
賃貸マンション
プラウドフラット浅草

東京メトロ銀座線 / 浅草駅 徒歩8分
築6年 / 9階建
東京都台東区浅草6丁目18-9

23.9万円 / 管理費15,000円
敷
23.9万円礼
23.9万円1LDK / 50.22㎡ / 8階
賃貸マンション
ルフォンプログレ浅草入谷

つくばエクスプレス / 浅草駅 徒歩8分
築4年 / 14階建
東京都台東区千束2丁目17-7

21.7万円 / 管理費25,000円
敷
21.7万円礼
21.7万円2LDK / 50.4㎡ / 3階
賃貸マンション
アスブルーム奥浅草

東京メトロ銀座線 / 浅草駅 徒歩17分
築2年 / 8階建
東京都台東区浅草5丁目52-1

22.2万円 / 管理費15,000円
敷
無料礼
22.2万円2LDK / 51.31㎡ / 6階
賃貸マンション
ブリリアイスト浅草

つくばエクスプレス / 浅草駅 徒歩1分
新築 / 15階建
東京都台東区西浅草2丁目

25万円 / 管理費15,000円
敷
25万円礼
無料2LDK / 48.63㎡ / 2階
賃貸マンション
ザ・パークハビオ本所吾妻橋

都営浅草線 / 浅草駅 徒歩13分
新築 / 11階建
東京都墨田区本所3丁目

24.6万円 / 管理費20,000円
敷
24.6万円礼
無料2LDK / 55.4㎡ / 3階
賃貸マンション
プラウドフラット上野松が谷

つくばエクスプレス / 浅草駅 徒歩10分
築5年 / 地上10階地下1階建
東京都台東区松が谷4丁目19-7

24.5万円 / 管理費15,000円
敷
24.5万円礼
無料2LDK / 50.22㎡ / 4階
賃貸マンション
nidoMOTOASAKUSA

東京メトロ銀座線 / 田原町駅 徒歩6分
新築 / 13階建
東京都台東区元浅草4丁目2-13

21.6万円 / 管理費15,000円
敷
無料礼
無料2LDK / 40.5㎡ / 8階
賃貸マンション
デュオフラッツ浅草田原町

東京メトロ銀座線 / 田原町駅 徒歩5分
築2年 / 13階建
東京都台東区寿3丁目21-5

家賃カード決済可
23.6万円 / 管理費10,000円
敷
23.6万円礼
11.8万円2LDK / 43.03㎡ / 11階
賃貸マンション
ルミークアン入谷
つくばエクスプレス / 浅草駅 徒歩8分
築1年 / 15階建
東京都台東区入谷2丁目6-7
23.3万円 / 管理費20,000円
敷
無料礼
無料2LDK / 51.69㎡ / 4階
賃貸マンション
ニド元浅草(nido MOTOASAKUSA)
東京メトロ銀座線 / 田原町駅 徒歩6分
新築 / 13階建
東京都台東区元浅草4丁目2-13
23.5万円 / 管理費15,000円
敷
無料礼
無料2LDK / 40.5㎡ / 2階
賃貸マンション
プライムアーバン浅草テラス
つくばエクスプレス / 浅草駅 徒歩5分
築3年 / 15階建
東京都台東区浅草2丁目20-2
21.7万円 / 管理費20,000円
敷
無料礼
無料2LDK / 46.52㎡ / 3階
賃貸マンション
台東区 15階建 2025年築
東京メトロ銀座線 / 浅草駅 徒歩7分
新築 / 15階建
東京都台東区駒形1丁目4-17
24.4万円 / 管理費25,000円
敷
24.4万円礼
48.8万円2LDK / 50.96㎡ / 2階
賃貸マンション
リバーレ浅草ウエスト

東京メトロ銀座線 / 田原町駅 徒歩2分
築10年 / 15階建
東京都台東区寿2丁目8-10

24.4万円 / 管理費10,000円
敷
24.4万円礼
24.4万円2LDK / 49.21㎡ / 4階
賃貸マンション
Brillia ist 浅草

つくばエクスプレス / 浅草駅 徒歩1分
新築 / 15階建
東京都台東区西浅草2丁目27-12

22.7万円 / 管理費15,000円
敷
22.7万円礼
無料2LDK / 45.79㎡ / 6階
賃貸マンション
アーバンパーク押上

東京メトロ銀座線 / 浅草駅 徒歩17分
築2年 / 7階建
東京都墨田区向島3丁目9-5

22.9万円 / 管理費20,000円
敷
無料礼
無料2LDK / 46.01㎡ / 3階
賃貸マンション
パークキューブ浅草田原町

つくばエクスプレス / 浅草駅 徒歩7分
築20年 / 15階建
東京都台東区寿3丁目19-7

22.5万円 / 管理費10,000円
敷
22.5万円礼
22.5万円1SLDK / 50㎡ / 9階
賃貸マンション
ジオエント上野稲荷町
つくばエクスプレス / 浅草駅 徒歩10分
新築 / 14階建
東京都台東区松が谷1丁目
家賃カード決済可
25.6万円 / 管理費20,000円
敷
25.6万円礼
無料2LDK / 50.15㎡ / 2階
賃貸マンション
クリオラベルヴィ元浅草

東京メトロ銀座線 / 田原町駅 徒歩8分
築3年 / 13階建
東京都台東区元浅草3丁目16-12

25.5万円 / 管理費20,000円
敷
25.5万円礼
無料2LDK / 50.92㎡ / 13階
賃貸マンション
プラウドフラット浅草

東京メトロ銀座線 / 浅草駅 徒歩8分
築6年 / 9階建
東京都台東区浅草6丁目18-9

23.9万円 / 管理費15,000円
敷
23.9万円礼
23.9万円1LDK / 50.22㎡ / 8階
賃貸マンション
ルフォンプログレ浅草入谷

つくばエクスプレス / 浅草駅 徒歩8分
築4年 / 14階建
東京都台東区千束2丁目17-7

21.7万円 / 管理費25,000円
敷
21.7万円礼
21.7万円2LDK / 50.4㎡ / 3階
賃貸マンション
アスブルーム奥浅草

東京メトロ銀座線 / 浅草駅 徒歩17分
築2年 / 8階建
東京都台東区浅草5丁目52-1

22.2万円 / 管理費15,000円
敷
無料礼
22.2万円2LDK / 51.31㎡ / 6階
賃貸マンション
ブリリアイスト浅草

つくばエクスプレス / 浅草駅 徒歩1分
新築 / 15階建
東京都台東区西浅草2丁目

25万円 / 管理費15,000円
敷
25万円礼
無料2LDK / 48.63㎡ / 2階
賃貸マンション
ザ・パークハビオ本所吾妻橋

都営浅草線 / 浅草駅 徒歩13分
新築 / 11階建
東京都墨田区本所3丁目

24.6万円 / 管理費20,000円
敷
24.6万円礼
無料2LDK / 55.4㎡ / 3階





















































