ザ・レジデンス・オブ・トーキョーH20ウエストタワー1K/7階(東京都台東区 / 三ノ輪駅)の賃貸
1/21
1/21
10万円
初期費用を知りたい管理費10,000円
- 敷金
- 10万円
- 保証金
- なし
- 礼金
- 10万円
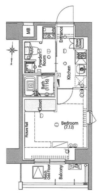
- 広さ
- 25.37㎡
- 階数
- 7階 / 10階建
- 間取り
- 1K
- 建物
- マンション (鉄筋コンクリート)
- 築年数
- 築5年
- 向き
- 西
- 交通
- 東京メトロ日比谷線 / 三ノ輪駅徒歩6分
- 東京メトロ日比谷線 / 入谷駅徒歩8分
- 住所
- 東京都台東区竜泉2丁目
コンビニエンスストア 126m
スーパーマーケット 160m
まいばすけっと 台東下谷3丁目店 183m
無料で10秒! カンタンお問い合わせ

ザ・レジデンス・オブ・トーキョーH20ウエストタワー
敷
10万円礼
10万円特徴
バス・トイレ別
2階以上
エアコン付き
ペット相談可
駐車場あり
室内洗濯機置場
オートロック
洗面所独立
- 入居条件
- 初期費用カード決済可、楽器不可、事務所(SOHO)不可、ペット相談、保証人不要最新の空室状況が知りたい
- バス・トイレ
- 専用バス、専用トイレ、バストイレ別、シャワー、温水洗浄便座、浴室乾燥機、洗面所独立
- キッチン
- ガスコンロ対応、2口コンロ、システムキッチン
- セキュリティ
- オートロック、防犯カメラ
- 室内設備
- エアコン、室内洗濯置、フローリング、光ファイバー、ネット使用料不要、クロゼット、シューズボックス、照明付お部屋の詳しい情報を知りたい
- 部屋の特徴
- バルコニー、角住戸、二階以上写真を送ってほしい
- 共用部
- エレベーター、宅配ボックス、駐輪場、バイク置場
- その他の特徴
- 公営水道、都市ガス、下水
無料で10秒! カンタンお問い合わせ

ザ・レジデンス・オブ・トーキョーH20ウエストタワー
敷
10万円礼
10万円同じ建物で掲載中の物件 (1件)
不動産会社からのコメント
★エリア最大級★経験豊富なスタッフが多数在籍しております♪
初期費用クレジット支払可能!オンライン内覧・オンライン契約等弊社に一度も来店せずとも問題ありません♪弊社ではネットに掲載されている物件も全てご紹介可能になりますので気になる物件は全て申し付けください★
その他
- 駐車/駐輪
- 要確認 / あり駐車可能な車種や台数を知りたい
- 入居時期
- 2026年2月下旬最新の空室状況が知りたい
- 損保
- 住宅保険: 要
- 保証人代行
- 加入要 費用: 初回:総賃料50% 年間:10000円 月額手数料:440円
- その他費用
初期費用を知りたい室内清掃費用:52,800円
エアコン清掃費:11,000円
鍵交換費用:22,000円
- 情報
情報登録日:2026/1/5
情報更新日:2026/1/30
次回更新予定日:2026/2/13
- 備考
- 現況: 居住中 更新料: 新賃料の1.5ヶ月分 契約期間: 2年 その他交通: 京浜東北・根岸線 鶯谷駅 徒歩18分 自社管理番号: 6560798
取扱い会社
- 取扱い会社
- 株式会社リブマックスリーシング 神田店条件が近い物件も紹介してほしい
- 免許番号
- 国土交通大臣 (3) 第8116号
- 取引態様
- 仲介
- 所在地
- 東京都千代田区鍛冶町2丁目1-1 ズイホウビル 6階
- 電話番号
- 03-5295-1515
- 定休日
- 無し(年末年始、GW、夏季)
- 所属団体名
- 公益社団法人 全国宅地建物取引業保証協会
おすすめ物件 (20件)
賃貸マンション
プラウドフラット浅草アベニュー

東京メトロ日比谷線 / 入谷駅 徒歩11分
築3年 / 15階建
東京都台東区千束1丁目

11.5万円 / 管理費10,000円
敷
11.5万円礼
11.5万円ワンルーム / 25.08㎡ / 7階
賃貸マンション
HY’s MINOWA II

東京メトロ日比谷線 / 三ノ輪駅 徒歩7分
新築 / 8階建
東京都荒川区東日暮里2丁目

10.85万円 / 管理費15,000円
敷
無料礼
無料ワンルーム / 25.02㎡ / 4階
賃貸マンション
アルファレジデンシア南千住

東京メトロ日比谷線 / 三ノ輪駅 徒歩7分
新築 / 15階建
東京都荒川区南千住1丁目

10.9万円 / 管理費10,000円
敷
10.9万円礼
無料1K / 25.72㎡ / 5階
賃貸マンション
ハーモニーレジデンスグローバルキャピタル

東京メトロ日比谷線 / 入谷駅 徒歩5分
築3年 / 14階建
東京都台東区竜泉1丁目

11.7万円 / 管理費15,000円
敷
11.7万円礼
11.7万円1DK / 25.35㎡ / 11階
賃貸マンション
グランフォース上野入谷

東京メトロ日比谷線 / 入谷駅 徒歩1分
築13年 / 14階建
東京都台東区入谷1丁目

家賃カード決済可
9.9万円 / 管理費11,000円
敷
9.9万円礼
9.9万円1K / 26.1㎡ / 2階
賃貸マンション
Log浅草classic
東京メトロ日比谷線 / 入谷駅 徒歩7分
築4年 / 13階建
東京都台東区松が谷3丁目20-10
12万円 / 管理費10,000円
敷
無料礼
無料1K / 25.81㎡ / 5階
賃貸マンション
コンフォリア・リヴ根岸二丁目
東京メトロ日比谷線 / 入谷駅 徒歩12分
築4年 / 13階建
東京都台東区根岸2丁目15-1
11.8万円 / 管理費8,000円
敷
11.8万円礼
11.8万円1DK / 25.11㎡ / 7階
賃貸マンション
グランカーサ三ノ輪II
東京メトロ日比谷線 / 三ノ輪駅 徒歩5分
築3年 / 10階建
東京都台東区日本堤2丁目18-4
11.7万円 / 管理費10,000円
敷
無料礼
無料1DK / 25.31㎡ / 5階
賃貸マンション
ザ・パークハビオ根岸三丁目
東京メトロ日比谷線 / 入谷駅 徒歩7分
築9年 / 8階建
東京都台東区根岸3丁目13-7
11.5万円 / 管理費10,000円
敷
11.5万円礼
11.5万円ワンルーム / 25.12㎡ / 7階
賃貸マンション
アーバンパーク三ノ輪II
東京メトロ日比谷線 / 三ノ輪駅 徒歩3分
築2年 / 13階建
東京都台東区竜泉2丁目19-17
12万円 / 管理費15,000円
敷
無料礼
無料1K / 25.91㎡ / 8階
賃貸マンション
パークアクシス台東根岸
東京メトロ日比谷線 / 入谷駅 徒歩8分
築17年 / 14階建
東京都台東区根岸5丁目2-1
11.1万円 / 管理費8,000円
敷
11.1万円礼
11.1万円1K / 25.23㎡ / 3階
賃貸マンション
ジェノヴィア三ノ輪IIスカイガーデン
東京メトロ日比谷線 / 三ノ輪駅 徒歩10分
築6年 / 13階建
東京都台東区日本堤2丁目3-2
10.2万円 / 管理費10,000円
敷
無料礼
無料1K / 25.8㎡ / 7階
賃貸マンション
台東区 14階建 2025年築
東京メトロ日比谷線 / 三ノ輪駅 徒歩7分
築1年 / 14階建
東京都台東区竜泉1丁目34-13
10.55万円 / 管理費15,000円
敷
10.55万円礼
10.55万円1DK / 25.57㎡ / 7階
賃貸マンション
プレスタイル入谷Ⅱ

東京メトロ日比谷線 / 入谷駅 徒歩6分
築14年 / 11階建
東京都台東区入谷2丁目

10.5万円 / 管理費10,000円
敷
10.5万円礼
無料1K / 25.08㎡ / 11階
賃貸マンション
ザ・レジデンス・オブ・トーキョーH20ステーションフロント
東京メトロ日比谷線 / 三ノ輪駅 徒歩4分
築3年 / 12階建
東京都荒川区東日暮里1丁目6-2
10.95万円 / 管理費10,000円
敷
10.95万円礼
10.95万円2K / 25.35㎡ / 11階
賃貸マンション
ジェノヴィア浅草Ⅲグリーンヴェール

東京メトロ日比谷線 / 三ノ輪駅 徒歩13分
築10年 / 10階建
東京都台東区千束3丁目27-13

10.4万円 / 管理費15,000円
敷
10.4万円礼
10.4万円1K / 25.73㎡ / 6階
賃貸マンション
メインステージ浅草入谷I

東京メトロ日比谷線 / 入谷駅 徒歩9分
築5年 / 15階建
東京都台東区千束2丁目

11.2万円 / 管理費15,000円
敷
無料礼
11.2万円1K / 26.68㎡ / 10階
賃貸マンション
プレセダンヒルズ三ノ輪

東京メトロ日比谷線 / 三ノ輪駅 徒歩7分
築9年 / 10階建
東京都台東区竜泉3丁目

8.45万円 / 管理費10,000円
敷
無料礼
8.45万円1K / 25.92㎡ / 7階
賃貸マンション
インセンス上野根岸

東京メトロ日比谷線 / 入谷駅 徒歩10分
築6年 / 地上10階地下9階建
東京都台東区根岸3丁目

10.6万円 / 管理費15,000円
敷
10.6万円礼
10.6万円1K / 26.08㎡ / 5階
賃貸マンション
ベルグレード浅草

東京メトロ日比谷線 / 入谷駅 徒歩14分
築4年 / 11階建
東京都台東区浅草5丁目

10万円 / 管理費15,000円
敷
10万円礼
10万円1K / 25.07㎡ / 6階
賃貸マンション
プラウドフラット浅草アベニュー

東京メトロ日比谷線 / 入谷駅 徒歩11分
築3年 / 15階建
東京都台東区千束1丁目

11.5万円 / 管理費10,000円
敷
11.5万円礼
11.5万円ワンルーム / 25.08㎡ / 7階
賃貸マンション
HY’s MINOWA II

東京メトロ日比谷線 / 三ノ輪駅 徒歩7分
新築 / 8階建
東京都荒川区東日暮里2丁目

10.85万円 / 管理費15,000円
敷
無料礼
無料ワンルーム / 25.02㎡ / 4階
賃貸マンション
アルファレジデンシア南千住

東京メトロ日比谷線 / 三ノ輪駅 徒歩7分
新築 / 15階建
東京都荒川区南千住1丁目

10.9万円 / 管理費10,000円
敷
10.9万円礼
無料1K / 25.72㎡ / 5階
賃貸マンション
ハーモニーレジデンスグローバルキャピタル

東京メトロ日比谷線 / 入谷駅 徒歩5分
築3年 / 14階建
東京都台東区竜泉1丁目

11.7万円 / 管理費15,000円
敷
11.7万円礼
11.7万円1DK / 25.35㎡ / 11階
賃貸マンション
グランフォース上野入谷

東京メトロ日比谷線 / 入谷駅 徒歩1分
築13年 / 14階建
東京都台東区入谷1丁目

家賃カード決済可
9.9万円 / 管理費11,000円
敷
9.9万円礼
9.9万円1K / 26.1㎡ / 2階
賃貸マンション
Log浅草classic
東京メトロ日比谷線 / 入谷駅 徒歩7分
築4年 / 13階建
東京都台東区松が谷3丁目20-10
12万円 / 管理費10,000円
敷
無料礼
無料1K / 25.81㎡ / 5階
賃貸マンション
コンフォリア・リヴ根岸二丁目
東京メトロ日比谷線 / 入谷駅 徒歩12分
築4年 / 13階建
東京都台東区根岸2丁目15-1
11.8万円 / 管理費8,000円
敷
11.8万円礼
11.8万円1DK / 25.11㎡ / 7階
賃貸マンション
グランカーサ三ノ輪II
東京メトロ日比谷線 / 三ノ輪駅 徒歩5分
築3年 / 10階建
東京都台東区日本堤2丁目18-4
11.7万円 / 管理費10,000円
敷
無料礼
無料1DK / 25.31㎡ / 5階
賃貸マンション
ザ・パークハビオ根岸三丁目
東京メトロ日比谷線 / 入谷駅 徒歩7分
築9年 / 8階建
東京都台東区根岸3丁目13-7
11.5万円 / 管理費10,000円
敷
11.5万円礼
11.5万円ワンルーム / 25.12㎡ / 7階
賃貸マンション
アーバンパーク三ノ輪II
東京メトロ日比谷線 / 三ノ輪駅 徒歩3分
築2年 / 13階建
東京都台東区竜泉2丁目19-17
12万円 / 管理費15,000円
敷
無料礼
無料1K / 25.91㎡ / 8階
賃貸マンション
パークアクシス台東根岸
東京メトロ日比谷線 / 入谷駅 徒歩8分
築17年 / 14階建
東京都台東区根岸5丁目2-1
11.1万円 / 管理費8,000円
敷
11.1万円礼
11.1万円1K / 25.23㎡ / 3階
賃貸マンション
ジェノヴィア三ノ輪IIスカイガーデン
東京メトロ日比谷線 / 三ノ輪駅 徒歩10分
築6年 / 13階建
東京都台東区日本堤2丁目3-2
10.2万円 / 管理費10,000円
敷
無料礼
無料1K / 25.8㎡ / 7階
賃貸マンション
台東区 14階建 2025年築
東京メトロ日比谷線 / 三ノ輪駅 徒歩7分
築1年 / 14階建
東京都台東区竜泉1丁目34-13
10.55万円 / 管理費15,000円
敷
10.55万円礼
10.55万円1DK / 25.57㎡ / 7階
賃貸マンション
プレスタイル入谷Ⅱ

東京メトロ日比谷線 / 入谷駅 徒歩6分
築14年 / 11階建
東京都台東区入谷2丁目

10.5万円 / 管理費10,000円
敷
10.5万円礼
無料1K / 25.08㎡ / 11階
賃貸マンション
ザ・レジデンス・オブ・トーキョーH20ステーションフロント
東京メトロ日比谷線 / 三ノ輪駅 徒歩4分
築3年 / 12階建
東京都荒川区東日暮里1丁目6-2
10.95万円 / 管理費10,000円
敷
10.95万円礼
10.95万円2K / 25.35㎡ / 11階
賃貸マンション
ジェノヴィア浅草Ⅲグリーンヴェール

東京メトロ日比谷線 / 三ノ輪駅 徒歩13分
築10年 / 10階建
東京都台東区千束3丁目27-13

10.4万円 / 管理費15,000円
敷
10.4万円礼
10.4万円1K / 25.73㎡ / 6階
賃貸マンション
メインステージ浅草入谷I

東京メトロ日比谷線 / 入谷駅 徒歩9分
築5年 / 15階建
東京都台東区千束2丁目

11.2万円 / 管理費15,000円
敷
無料礼
11.2万円1K / 26.68㎡ / 10階
賃貸マンション
プレセダンヒルズ三ノ輪

東京メトロ日比谷線 / 三ノ輪駅 徒歩7分
築9年 / 10階建
東京都台東区竜泉3丁目

8.45万円 / 管理費10,000円
敷
無料礼
8.45万円1K / 25.92㎡ / 7階
賃貸マンション
インセンス上野根岸

東京メトロ日比谷線 / 入谷駅 徒歩10分
築6年 / 地上10階地下9階建
東京都台東区根岸3丁目

10.6万円 / 管理費15,000円
敷
10.6万円礼
10.6万円1K / 26.08㎡ / 5階
賃貸マンション
ベルグレード浅草

東京メトロ日比谷線 / 入谷駅 徒歩14分
築4年 / 11階建
東京都台東区浅草5丁目

10万円 / 管理費15,000円
敷
10万円礼
10万円1K / 25.07㎡ / 6階
同じ最寄り駅 × 同じ特徴 で探す
同じ市区町村 × 同じ特徴 で探す





















