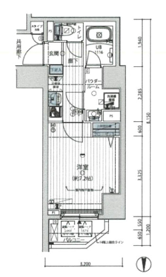
第1ホーユービル2K/3階(東京都江東区 / 西大島駅)の賃貸
1/19
1/19
8.8万円
初期費用を知りたい管理費3,000円
- 敷金
- 8.8万円
- 保証金
- なし
- 礼金
- 8.8万円
- 広さ
- 36㎡
- 階数
- 3階 / 4階建
- 間取り
- 2K
- 建物
- マンション (鉄骨)
- 築年数
- 築46年
- 向き
- 東
- 交通
- 都営新宿線 / 西大島駅徒歩3分
- 都営新宿線 / 住吉駅徒歩9分
- 東京メトロ半蔵門線 / 住吉駅徒歩9分
- 住所
- 東京都江東区大島1
若草幼稚園(幼稚園・保育園)まで340m
さと(飲食店)まで30m
ファミリーマート(コンビニ)まで70m
セブンイレブン(コンビニ)まで90m
大島4丁目団地ショッピングモール(ショッピングセンター)まで470m
ダイエー(ショッピングセンター)まで550m
無料で10秒! カンタンお問い合わせ
第1ホーユービル
敷
8.8万円礼
8.8万円特徴
バス・トイレ別
2階以上
エアコン付き
ペット相談可
駐車場あり
室内洗濯機置場
オートロック
洗面所独立
- 入居条件
- 即入居可最新の空室状況が知りたい
- バス・トイレ
- バストイレ別
- 室内設備
- エアコン、シューズボックスお部屋の詳しい情報を知りたい
- 部屋の特徴
- バルコニー、二階以上写真を送ってほしい
- 共用部
- 駐輪場
- その他の特徴
- 都市ガス
無料で10秒! カンタンお問い合わせ
第1ホーユービル
敷
8.8万円礼
8.8万円同じ建物で掲載中の物件 (1件)
不動産会社からのコメント
取扱店舗:ミニミニ森下店 03-5669-3272
感染症予防対策を行いながら、店頭でもお部屋をご紹介しております。来店不要のオンライン接客、内見、契約サービスも利用できます。
その他
- 駐車/駐輪
- 要確認 / あり駐車可能な車種や台数を知りたい
- 入居時期
- 損保
- 2.3万円2年
- 保証人代行
- -
- その他費用
合計6.16万円(内訳:鍵交換料2.64万円/消毒料1.76万円/入居安心サービス料1.76万円) 初期費用を知りたい- 情報
情報登録日:2026/1/20
情報更新日:2026/4/6
次回更新予定日:2026/4/22
- 備考
- 保証会社: 保証会社利用必 エルズサポート株式会社 家賃保証会社 初回保証料 賃料等 (下限25,000円)50% その他:ほか初期費用: 合計6.16万円(内訳:鍵交換料2.64万円/消毒料1.76万円/入居安心サービス料1.76万円)
取扱い会社
- 取扱い会社
- 株式会社ミニミニ城東 ミニミニ森下店条件が近い物件も紹介してほしい
- 免許番号
- 国土交通大臣免許(5)第6271号
- 取引態様
- 一般媒介
- 所在地
- 東京都江東区森下2-2-5 M-KIwaseビル1F
- 電話番号
- 03-5669-3272
- 営業時間
- 10:00~18:00
- 定休日
- 毎週水曜日定休(4~12 月)、GW(5/2~5/6)、臨時(6/9、7/7)、夏季(8/11~8/15)、年末年始休
おすすめ物件 (14件)
賃貸マンション
パティーナ住吉
東京メトロ半蔵門線 / 住吉駅 徒歩7分
築10年 / 8階建
東京都江東区住吉1丁目2-7
10.7万円 / 管理費15,000円
敷
10.7万円礼
10.7万円1K / 26.36㎡ / 3階
賃貸マンション
錦糸町ハイタウン
都営新宿線 / 住吉駅 徒歩11分
築48年 / 地上14階地下1階建
東京都墨田区江東橋4丁目21-6
10.5万円 / 管理費なし
敷
10.5万円礼
10.5万円1K / 27.9㎡ / 9階
賃貸マンション
シャングリラ

都営新宿線 / 西大島駅 徒歩9分
築19年 / 7階建
東京都江東区亀戸1丁目33-7

8.5万円 / 管理費10,000円
敷
8.5万円礼
4.25万円1K / 26.7㎡ / 2階
賃貸マンション
墨田区 13階建 2013年築
都営新宿線 / 住吉駅 徒歩10分
築13年 / 13階建
東京都墨田区江東橋2丁目
家賃カード決済可
10.2万円 / 管理費15,000円
敷
10.2万円礼
10.2万円1K / 26.65㎡ / 4階
賃貸マンション
プラウドタワー亀戸

都営新宿線 / 西大島駅 徒歩5分
築17年 / 20階建
東京都江東区大島2丁目33-10

9.8万円 / 管理費8,000円
敷
9.8万円礼
9.8万円ワンルーム / 28.94㎡ / 2階
賃貸マンション
OJIMAHOLIC

都営新宿線 / 西大島駅 徒歩23分
新築 / 8階建
東京都江東区北砂5丁目16-4

9.9万円 / 管理費10,000円
敷
9.9万円礼
9.9万円1K / 35.78㎡ / 8階
賃貸マンション
ワコーレ錦糸町マンション

東京メトロ半蔵門線 / 住吉駅 徒歩11分
築48年 / 8階建
東京都墨田区江東橋2丁目8-1

9.7万円 / 管理費なし
敷
9.7万円礼
9.7万円2DK / 40.46㎡ / 4階
賃貸マンション
グランシアタワー亀戸

都営新宿線 / 西大島駅 徒歩18分
築11年 / 12階建
東京都江東区亀戸4丁目23-2

10万円 / 管理費15,000円
敷
10万円礼
10万円1K / 26.48㎡ / 12階
賃貸マンション
ロメック錦糸町
)
都営新宿線 / 住吉駅 徒歩10分
築14年 / 13階建
東京都墨田区江東橋2丁目11-12
)
10.2万円 / 管理費15,000円
敷
10.2万円礼
10.2万円1K / 26.65㎡ / 4階
賃貸マンション
江東区亀戸 7階建 2001年築
)
都営新宿線 / 西大島駅 徒歩7分
築25年 / 7階建
東京都江東区亀戸1丁目
)
9.1万円 / 管理費9,000円
敷
9.1万円礼
9.1万円ワンルーム / 28.55㎡ / 5階
賃貸マンション
パティーナ住吉
東京メトロ半蔵門線 / 住吉駅 徒歩7分
築10年 / 8階建
東京都江東区住吉1丁目2-7
10.7万円 / 管理費15,000円
敷
10.7万円礼
10.7万円1K / 26.36㎡ / 3階
賃貸マンション
錦糸町ハイタウン
都営新宿線 / 住吉駅 徒歩11分
築48年 / 地上14階地下1階建
東京都墨田区江東橋4丁目21-6
10.5万円 / 管理費なし
敷
10.5万円礼
10.5万円1K / 27.9㎡ / 9階
賃貸マンション
シャングリラ

都営新宿線 / 西大島駅 徒歩9分
築19年 / 7階建
東京都江東区亀戸1丁目33-7

8.5万円 / 管理費10,000円
敷
8.5万円礼
4.25万円1K / 26.7㎡ / 2階
賃貸マンション
墨田区 13階建 2013年築
都営新宿線 / 住吉駅 徒歩10分
築13年 / 13階建
東京都墨田区江東橋2丁目
家賃カード決済可
10.2万円 / 管理費15,000円
敷
10.2万円礼
10.2万円1K / 26.65㎡ / 4階
賃貸マンション
プラウドタワー亀戸

都営新宿線 / 西大島駅 徒歩5分
築17年 / 20階建
東京都江東区大島2丁目33-10

9.8万円 / 管理費8,000円
敷
9.8万円礼
9.8万円ワンルーム / 28.94㎡ / 2階
賃貸マンション
OJIMAHOLIC

都営新宿線 / 西大島駅 徒歩23分
新築 / 8階建
東京都江東区北砂5丁目16-4

9.9万円 / 管理費10,000円
敷
9.9万円礼
9.9万円1K / 35.78㎡ / 8階
賃貸マンション
ワコーレ錦糸町マンション

東京メトロ半蔵門線 / 住吉駅 徒歩11分
築48年 / 8階建
東京都墨田区江東橋2丁目8-1

9.7万円 / 管理費なし
敷
9.7万円礼
9.7万円2DK / 40.46㎡ / 4階
賃貸マンション
グランシアタワー亀戸

都営新宿線 / 西大島駅 徒歩18分
築11年 / 12階建
東京都江東区亀戸4丁目23-2

10万円 / 管理費15,000円
敷
10万円礼
10万円1K / 26.48㎡ / 12階
賃貸マンション
ロメック錦糸町
)
都営新宿線 / 住吉駅 徒歩10分
築14年 / 13階建
東京都墨田区江東橋2丁目11-12
)
10.2万円 / 管理費15,000円
敷
10.2万円礼
10.2万円1K / 26.65㎡ / 4階
賃貸マンション
江東区亀戸 7階建 2001年築
)
都営新宿線 / 西大島駅 徒歩7分
築25年 / 7階建
東京都江東区亀戸1丁目
)
9.1万円 / 管理費9,000円
敷
9.1万円礼
9.1万円ワンルーム / 28.55㎡ / 5階





)
)
)
)