ザ・パークハビオSOHO代々木公園1K/6階/602(東京都渋谷区 / 参宮橋駅)の賃貸
1/24
1/24
22.7万円
初期費用を知りたい管理費25,000円
- 敷金
- 22.7万円
- 保証金
- なし
- 礼金
- 無料
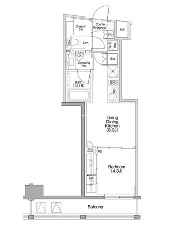
- 広さ
- 35.68㎡
- 階数
- 6階 / 7階建
- 間取り
- 1K
- 建物
- マンション (鉄筋コンクリート)
- 築年数
- 築4年
- 向き
- 東
- 交通
- 小田急小田原線 / 参宮橋駅徒歩4分
- 小田急小田原線 / 代々木八幡駅徒歩11分
- 住所
- 東京都渋谷区代々木5丁目57-2
コンビニエンスストア 210m
スーパーマーケット 280m
無料で10秒! カンタンお問い合わせ
ザ・パークハビオSOHO代々木公園
敷
22.7万円礼
無料特徴
バス・トイレ別
2階以上
エアコン付き
ペット相談可
駐車場あり
室内洗濯機置場
オートロック
洗面所独立
- 入居条件
- 楽器相談、保証人不要、ペット相談、初期費用カード決済可、即入居可最新の空室状況が知りたい
- バス・トイレ
- 給湯、専用バス、オートバス、追焚機能浴室、浴室乾燥機、シャワー、専用トイレ、温水洗浄便座、バストイレ別、シャワー付洗面化粧台、洗面所独立
- キッチン
- ガスコンロ対応、2口コンロ、システムキッチン
- セキュリティ
- オートロック、防犯カメラ
- 室内設備
- インターネット対応、光ファイバー、エアコン、照明付、クロゼット、全居室収納、シューズボックス、シューズインクロゼット、室内洗濯置、フローリング、ネット使用料不要お部屋の詳しい情報を知りたい
- 部屋の特徴
- バルコニー、二階以上写真を送ってほしい
- 共用部
- エレベーター、宅配ボックス
- その他の特徴
- 公営水道、都市ガス
無料で10秒! カンタンお問い合わせ
ザ・パークハビオSOHO代々木公園
敷
22.7万円礼
無料不動産会社からのコメント
★ヘヤギメ下北沢店にてご契約いただいた方は仲介手数料0円★
★ヘヤギメ!下北沢店は駅から徒歩2分。地域に根付いた不動産会社です。物件のこと地域のことなんでもお尋ねください。物件の現地でのお待ち合わせやオンラインでご対応も可能です。お気軽にお問合せください。
その他
- 駐車/駐輪
- 要確認 / なし駐車可能な車種や台数を知りたい
- 入居時期
- 損保
- 住宅保険: 要
- 保証人代行
- 加入要 会社名: 日本セーフティー 費用: 0.50ヶ月 初年度委託料:賃料等合計額の50%(最低保証料2万円)2年目以降:1年毎1万円
- その他費用
初期費用を知りたい鍵交換費用:44,000円
コワーキングスペース利用料/月:1,100円
- 情報
情報登録日:2025/1/6
情報更新日:2026/4/17
次回更新予定日:2026/4/25
- 備考
- 現況: 空家 更新料: 新賃料の1.0ヶ月分 契約期間: 2年 バルコニー面積: 3.66㎡
取扱い会社
- 取扱い会社
- 株式会社S-FIT ヘヤギメ!下北沢店条件が近い物件も紹介してほしい
- 免許番号
- 国土交通大臣(3) 第7352号
- 取引態様
- 仲介
- 所在地
- 東京都世田谷区北沢2-19-15 平和ビル2F
- 電話番号
- 03-5433-2727
- 営業時間
- 10:00~18:00
- 定休日
- 水曜日(1月から3月無休)
- 所属団体名
- 全日本不動産協会
おすすめ物件 (7件)
賃貸マンション
オーキッドレジデンス渋谷富ヶ谷

小田急小田原線 / 代々木八幡駅 徒歩9分
築2年 / 13階建
東京都渋谷区富ヶ谷2丁目14-3

24万円 / 管理費15,000円
敷
24万円礼
無料1LDK / 37.83㎡ / 6階
賃貸マンション
ザ・パークハビオSOHO代々木公園

小田急小田原線 / 参宮橋駅 徒歩4分
築4年 / 7階建
東京都渋谷区代々木5丁目

23万円 / 管理費25,000円
敷
23万円礼
23万円1LDK / 33.53㎡ / 4階
賃貸マンション
クリオ渋谷ラ・モード

小田急小田原線 / 代々木八幡駅 徒歩5分
築22年 / 11階建
東京都渋谷区富ヶ谷1丁目

23万円 / 管理費15,000円
敷
無料礼
無料1LDK / 35.57㎡ / 5階
賃貸マンション
ザ・パークハビオ代々木

小田急小田原線 / 参宮橋駅 徒歩6分
築1年 / 地上9階地下1階建
東京都渋谷区代々木3丁目46-1

23.2万円 / 管理費20,000円
敷
23.2万円礼
23.2万円1LDK / 33.26㎡ / 2階
賃貸マンション
渋谷区代々木4丁目 4階建 2023年築

小田急小田原線 / 参宮橋駅 徒歩5分
築3年 / 地上4階地下1階建
東京都渋谷区代々木4丁目

22.9万円 / 管理費10,000円
敷
無料礼
11.45万円2K / 39.99㎡ / 3階
賃貸マンション
ドゥーエ代々木

小田急小田原線 / 参宮橋駅 徒歩8分
築21年 / 6階建
東京都渋谷区代々木4丁目35-9

22万円 / 管理費10,000円
敷
22万円礼
22万円1LDK / 40.88㎡ / 5階
賃貸マンション
ガーデン富ヶ谷

小田急小田原線 / 代々木八幡駅 徒歩8分
築11年 / 地上3階地下1階建
東京都渋谷区富ヶ谷2丁目33-8

21.8万円 / 管理費10,000円
敷
21.8万円礼
21.8万円ワンルーム / 33.76㎡ / 2階
賃貸マンション
オーキッドレジデンス渋谷富ヶ谷

小田急小田原線 / 代々木八幡駅 徒歩9分
築2年 / 13階建
東京都渋谷区富ヶ谷2丁目14-3

24万円 / 管理費15,000円
敷
24万円礼
無料1LDK / 37.83㎡ / 6階
賃貸マンション
ザ・パークハビオSOHO代々木公園

小田急小田原線 / 参宮橋駅 徒歩4分
築4年 / 7階建
東京都渋谷区代々木5丁目

23万円 / 管理費25,000円
敷
23万円礼
23万円1LDK / 33.53㎡ / 4階
賃貸マンション
クリオ渋谷ラ・モード

小田急小田原線 / 代々木八幡駅 徒歩5分
築22年 / 11階建
東京都渋谷区富ヶ谷1丁目

23万円 / 管理費15,000円
敷
無料礼
無料1LDK / 35.57㎡ / 5階
賃貸マンション
ザ・パークハビオ代々木

小田急小田原線 / 参宮橋駅 徒歩6分
築1年 / 地上9階地下1階建
東京都渋谷区代々木3丁目46-1

23.2万円 / 管理費20,000円
敷
23.2万円礼
23.2万円1LDK / 33.26㎡ / 2階
賃貸マンション
渋谷区代々木4丁目 4階建 2023年築

小田急小田原線 / 参宮橋駅 徒歩5分
築3年 / 地上4階地下1階建
東京都渋谷区代々木4丁目

22.9万円 / 管理費10,000円
敷
無料礼
11.45万円2K / 39.99㎡ / 3階
賃貸マンション
ドゥーエ代々木

小田急小田原線 / 参宮橋駅 徒歩8分
築21年 / 6階建
東京都渋谷区代々木4丁目35-9

22万円 / 管理費10,000円
敷
22万円礼
22万円1LDK / 40.88㎡ / 5階
賃貸マンション
ガーデン富ヶ谷

小田急小田原線 / 代々木八幡駅 徒歩8分
築11年 / 地上3階地下1階建
東京都渋谷区富ヶ谷2丁目33-8

21.8万円 / 管理費10,000円
敷
21.8万円礼
21.8万円ワンルーム / 33.76㎡ / 2階




