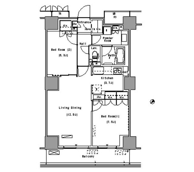
パークアクシス豊洲1LDK/4階(東京都江東区 / 豊洲駅)の賃貸
1/23
1/23
27.8万円
初期費用を知りたい管理費7,000円
- 敷金
- 27.8万円
- 保証金
- なし
- 礼金
- 無料
- 広さ
- 58.21㎡
- 階数
- 4階 / 地上20階地下1階建
- 間取り
- 1LDK
- 建物
- マンション (鉄筋コンクリート)
- 築年数
- 築18年
- 向き
- 北西
- 交通
- 東京メトロ有楽町線 / 豊洲駅徒歩8分
- 東京メトロ有楽町線 / 月島駅徒歩15分
- 住所
- 東京都江東区豊洲2丁目
コンビニエンスストア 548m
スーパーマーケット 186m
サカガミ グランルパ豊洲店 467m
無料で10秒! カンタンお問い合わせ

パークアクシス豊洲
敷
27.8万円礼
無料特徴
バス・トイレ別
2階以上
エアコン付き
ペット相談可
駐車場あり
室内洗濯機置場
オートロック
洗面所独立
- 入居条件
- 初期費用カード決済可、楽器相談、二人入居可、ペット可、保証人不要、即入居可最新の空室状況が知りたい
- バス・トイレ
- 専用バス、専用トイレ、バストイレ別、給湯、追焚機能浴室、シャワー付洗面化粧台、温水洗浄便座、浴室乾燥機、洗面所独立、オートバス
- キッチン
- IHクッキングヒーター、3口以上コンロ、システムキッチン、カウンターキッチン
- セキュリティ
- オートロック、防犯カメラ
- 室内設備
- エアコン、室内洗濯置、CS、BS、フローリング、光ファイバー、床暖房、クロゼット、シューズボックス、照明付お部屋の詳しい情報を知りたい
- 部屋の特徴
- バルコニー、二階以上写真を送ってほしい
- 共用部
- エレベーター、宅配ボックス、駐輪場、バイク置場
- その他の特徴
- 公営水道、都市ガス、下水、バリアフリー、デザイナーズ、フロントサービス、分譲賃貸
無料で10秒! カンタンお問い合わせ

パークアクシス豊洲
敷
27.8万円礼
無料同じ建物で掲載中の物件 (34件)
不動産会社からのコメント
★エリア最大級★経験豊富なスタッフが多数在籍しております♪? 初期費用クレジット支払可能!オンライン
有楽町線豊洲駅周辺への引っ越しをお考えなら「パークアクシス豊洲」。暮らしに便利なサカガミ グランルパ豊洲店(スーパー)がこちらから467mのところにあります。室内設備は洗面所独立・浴室乾燥機など大変充実しております。当社では有楽町線豊洲周辺の賃貸情報を数多く取り扱っております。引っ越しを検討しているなら、お気軽にご連絡ください。
その他
- 駐車/駐輪
- 要確認 / あり駐車可能な車種や台数を知りたい
- 入居時期
- 損保
- 住宅保険: 要
- 保証人代行
- 加入要 費用: 初回保証料:総賃料の50% 年間更新料:9,600円
- その他費用
初期費用を知りたい室内清掃費用:108,852円
鍵交換費用:16,500円
- 情報
情報登録日:2026/4/22
情報更新日:2026/4/22
次回更新予定日:2026/5/6
- 備考
- 現況: 空家 更新料: 新賃料の1.0ヶ月分 契約期間: 2年 管理人: 常駐 その他交通: ゆりかもめ 新豊洲駅 徒歩15分 自社管理番号: 6894718
取扱い会社
- 取扱い会社
- 株式会社リブマックスリーシング 新橋駅前店条件が近い物件も紹介してほしい
- 免許番号
- 国土交通大臣 (3) 第8116号
- 取引態様
- 仲介
- 所在地
- 東京都港区新橋2丁目6-7 花菱ビル 5F
- 電話番号
- 03-3503-5050
- 定休日
- 無し(年末年始、GW、夏季)
- 所属団体名
- 公益社団法人 全国宅地建物取引業保証協会
おすすめ物件 (6件)
賃貸マンション
江東区 21階建 2008年築
新交通ゆりかもめ / 豊洲駅 徒歩8分
築18年 / 地上20階地下1階建
東京都江東区豊洲1丁目2-39
29.8万円 / 管理費7,000円
敷
29.8万円礼
29.8万円2LDK / 61.47㎡ / 6階
賃貸マンション
江東区 13階建 2025年築
新交通ゆりかもめ / 豊洲駅 徒歩14分
築1年 / 13階建
東京都江東区枝川1丁目14-10
27.3万円 / 管理費12,000円
敷
27.3万円礼
無料2LDK / 64.02㎡ / 3階
賃貸マンション
ザ東京タワーズミッドタワー

東京メトロ有楽町線 / 月島駅 徒歩19分
築18年 / 地上58階地下2階建
東京都中央区勝どき6丁目

26.1万円 / 管理費15,000円
敷
52.2万円礼
26.1万円1LDK / 55.52㎡ / 7階
賃貸マンション
リバーシティ21イーストタワーズⅡ

東京メトロ有楽町線 / 月島駅 徒歩8分
築26年 / 地上43階地下2階建
東京都中央区佃2丁目1‐2

26.6万円 / 管理費10,000円
敷
26.6万円礼
26.6万円1LDK / 55.57㎡ / 28階
賃貸マンション
中央区月島1丁目 地上12階地下1階建 2015年築

東京メトロ有楽町線 / 月島駅 徒歩2分
築11年 / 13階建
東京都中央区月島1丁目

26.9万円 / 管理費なし
敷
26.9万円礼
無料1LDK / 49.1㎡ / 5階
賃貸マンション
江東区 21階建 2008年築
新交通ゆりかもめ / 豊洲駅 徒歩8分
築18年 / 地上20階地下1階建
東京都江東区豊洲1丁目2-39
29.8万円 / 管理費7,000円
敷
29.8万円礼
29.8万円2LDK / 61.47㎡ / 6階
賃貸マンション
江東区 13階建 2025年築
新交通ゆりかもめ / 豊洲駅 徒歩14分
築1年 / 13階建
東京都江東区枝川1丁目14-10
27.3万円 / 管理費12,000円
敷
27.3万円礼
無料2LDK / 64.02㎡ / 3階
賃貸マンション
ザ東京タワーズミッドタワー

東京メトロ有楽町線 / 月島駅 徒歩19分
築18年 / 地上58階地下2階建
東京都中央区勝どき6丁目

26.1万円 / 管理費15,000円
敷
52.2万円礼
26.1万円1LDK / 55.52㎡ / 7階
賃貸マンション
リバーシティ21イーストタワーズⅡ

東京メトロ有楽町線 / 月島駅 徒歩8分
築26年 / 地上43階地下2階建
東京都中央区佃2丁目1‐2

26.6万円 / 管理費10,000円
敷
26.6万円礼
26.6万円1LDK / 55.57㎡ / 28階
賃貸マンション
中央区月島1丁目 地上12階地下1階建 2015年築

東京メトロ有楽町線 / 月島駅 徒歩2分
築11年 / 13階建
東京都中央区月島1丁目

26.9万円 / 管理費なし
敷
26.9万円礼
無料1LDK / 49.1㎡ / 5階
同じ最寄り駅 × 同じ特徴 で探す
同じ市区町村 × 同じ特徴 で探す
















































)
)
)
)


