レーヴスカイツリー押上1R/5階(東京都墨田区 / 押上駅)の賃貸
1/26
1/26
10.2万円
初期費用を知りたい管理費17,000円
- 敷金
- なし
- 保証金
- 10.2万円
- 礼金
- 10.2万円
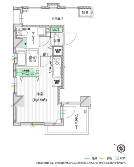
- 広さ
- 26.37㎡
- 階数
- 5階 / 9階建
- 間取り
- 1R
- 建物
- マンション (鉄筋コンクリート)
- 築年数
- 築6年
- 向き
- 交通
- 東京メトロ半蔵門線 / 押上駅徒歩4分
- 東武伊勢崎線 / 曳舟駅徒歩10分
- 住所
- 東京都墨田区向島3丁目
コンビニエンスストア 157m
スーパーマーケット 155m
総合病院 318m
セブンイレブン 向島店 404m
無料で10秒! カンタンお問い合わせ

レーヴスカイツリー押上
敷
無料礼
10.2万円特徴
バス・トイレ別
2階以上
エアコン付き
ペット相談可
駐車場あり
室内洗濯機置場
オートロック
洗面所独立
- 入居条件
- 初期費用カード決済可、楽器不可、事務所(SOHO)不可、ペット相談最新の空室状況が知りたい
- バス・トイレ
- 専用バス、専用トイレ、バストイレ別、シャワー、給湯、温水洗浄便座、浴室乾燥機、洗面所独立
- キッチン
- ガスコンロ対応、2口コンロ、システムキッチン
- セキュリティ
- オートロック、防犯カメラ
- 室内設備
- エアコン、室内洗濯置、CS、BS、フローリング、インターネット対応、ネット使用料不要、クロゼット、シューズボックス、照明付お部屋の詳しい情報を知りたい
- 部屋の特徴
- バルコニー、角住戸、二階以上写真を送ってほしい
- 共用部
- エレベーター、宅配ボックス
- その他の特徴
- 公営水道、都市ガス、下水、外壁タイル張り、分譲賃貸
無料で10秒! カンタンお問い合わせ

レーヴスカイツリー押上
敷
無料礼
10.2万円不動産会社からのコメント
★駅近1R★インターネット無料★ペット飼育相談可☆角部屋・2面採光で通風良好☆オートロック・防犯カメ
ベルプラス(家財保険/設備24時間駆け付け等)2200円(月額) 初期費用クレジットカード決済可能です!お気軽にお問い合わせください♪
その他
- 駐車/駐輪
- 要確認 / なし駐車可能な車種や台数を知りたい
- 入居時期
- 2026年4月上旬最新の空室状況が知りたい
- 損保
- 住宅保険: 要
- 保証人代行
- 加入要 費用: リロ 初回:月額総賃料の50% 月次:1,000円
- その他費用
初期費用を知りたい鍵交換費用:33,000円
室内抗菌代:16,500円
- 情報
情報登録日:2026/2/8
情報更新日:2026/2/21
次回更新予定日:2026/3/7
- 備考
- 現況: 居住中 更新料: 新賃料の1.5ヶ月分 契約期間: 2年 管理人: 巡回 その他交通: 東京都浅草線 本所吾妻橋駅 徒歩13分 自社管理番号: 6671850
取扱い会社
- 取扱い会社
- 株式会社リブマックスリーシング 日本橋馬喰町店条件が近い物件も紹介してほしい
- 免許番号
- 国土交通大臣 (3) 第8116号
- 取引態様
- 仲介
- 所在地
- 東京都中央区日本橋馬喰町1丁目7-20 ホテルリブマックス東京馬喰町 1F
- 電話番号
- 03-3668-1171
- 定休日
- 水曜日(年末年始、GW、夏季)
- 所属団体名
- 公益社団法人 全国宅地建物取引業保証協会
おすすめ物件 (19件)
賃貸マンション
ジェノヴィア押上スカイガーデン
京成押上線 / 押上駅 徒歩12分
築5年 / 10階建
東京都江東区亀戸3丁目16-11
11.8万円 / 管理費15,000円
敷
無料礼
無料1K / 25.95㎡ / 7階
賃貸マンション
墨田区横川5丁目 5階建 2022年築

東京メトロ半蔵門線 / 押上駅 徒歩7分
築4年 / 5階建
東京都墨田区横川5丁目

9.3万円 / 管理費12,000円
敷
無料礼
無料ワンルーム / 17.49㎡ / 4階
賃貸マンション
フェルクルールプレスト押上Ⅱ

東京メトロ半蔵門線 / 押上駅 徒歩13分
築9年 / 9階建
東京都江東区亀戸3丁目18-8

9万円 / 管理費20,000円
敷
無料礼
2万円1K / 25.84㎡ / 8階
賃貸マンション
AXAS墨田アジールコート

東武伊勢崎線 / 曳舟駅 徒歩15分
築12年 / 9階建
東京都墨田区東向島3丁目12-4

9.7万円 / 管理費15,000円
敷
無料礼
9.7万円1K / 25.52㎡ / 7階
賃貸マンション
墨田区向島5丁目 12階建 2021年築

東京メトロ半蔵門線 / 押上駅 徒歩10分
築5年 / 12階建
東京都墨田区向島5丁目

11.5万円 / 管理費15,000円
敷
無料礼
無料ワンルーム / 25.56㎡ / 12階
賃貸マンション
プレディアンスフォート錦糸町HYs

京成押上線 / 押上駅 徒歩10分
築11年 / 7階建
東京都墨田区横川2丁目6-5

10万円 / 管理費8,000円
敷
無料礼
10万円1K / 25.22㎡ / 3階
賃貸マンション
アーバンパーク東向島

東武亀戸線 / 曳舟駅 徒歩15分
新築 / 5階建
東京都墨田区堤通1丁目18-26

10.9万円 / 管理費12,000円
敷
無料礼
無料1DK / 26.53㎡ / 4階
賃貸マンション
セジョリ押上イースト

東京メトロ半蔵門線 / 押上駅 徒歩12分
築7年 / 7階建
東京都墨田区文花1丁目11-12

8.4万円 / 管理費11,000円
敷
無料礼
8.4万円1K / 25.95㎡ / 2階
賃貸マンション
ジェノヴィア本所吾妻橋Ⅱスカイガーデン

東京メトロ半蔵門線 / 押上駅 徒歩14分
築4年 / 7階建
東京都墨田区本所4丁目9-1

10.9万円 / 管理費10,000円
敷
無料礼
無料1K / 26.04㎡ / 3階
賃貸マンション
ラ・グラース押上Ⅱ

東京メトロ半蔵門線 / 押上駅 徒歩5分
築10年 / 7階建
東京都墨田区押上1丁目45-4

10.2万円 / 管理費8,000円
敷
10.2万円礼
10.2万円ワンルーム / 25.09㎡ / 3階
賃貸マンション
プレール・ドゥーク押上Ⅳ

東京メトロ半蔵門線 / 押上駅 徒歩8分
築8年 / 12階建
東京都墨田区向島3丁目

9.9万円 / 管理費8,000円
敷
無料礼
9.9万円1K / 25.5㎡ / 9階
賃貸マンション
ARCOBALENO OSHIAGE BLOSSOM

東京メトロ半蔵門線 / 押上駅 徒歩10分
新築 / 7階建
東京都墨田区文花1丁目

10.6万円 / 管理費15,000円
敷
無料礼
10.6万円1K / 25.84㎡ / 3階
賃貸マンション
トレステラレジデンス押上

東京メトロ半蔵門線 / 押上駅 徒歩8分
築6年 / 12階建
東京都墨田区向島3丁目

10.7万円 / 管理費20,000円
敷
無料礼
無料1K / 25.55㎡ / 2階
賃貸マンション
プレセダンヒルズ押上

都営浅草線 / 押上駅 徒歩8分
築8年 / 12階建
東京都墨田区向島2丁目13-11

10.5万円 / 管理費5,000円
敷
無料礼
10.5万円1K / 25.7㎡ / 8階
賃貸マンション
ジェノヴィア墨田文花スカイガーデン

東京メトロ半蔵門線 / 押上駅 徒歩17分
築8年 / 5階建
東京都墨田区文花2丁目11-5

10万円 / 管理費10,000円
敷
無料礼
10万円1K / 25.95㎡ / 5階
賃貸マンション
ジェノヴィア押上スカイガーデン
京成押上線 / 押上駅 徒歩12分
築5年 / 10階建
東京都江東区亀戸3丁目16-11
11.8万円 / 管理費15,000円
敷
無料礼
無料1K / 25.95㎡ / 7階
賃貸マンション
墨田区横川5丁目 5階建 2022年築

東京メトロ半蔵門線 / 押上駅 徒歩7分
築4年 / 5階建
東京都墨田区横川5丁目

9.3万円 / 管理費12,000円
敷
無料礼
無料ワンルーム / 17.49㎡ / 4階
賃貸マンション
フェルクルールプレスト押上Ⅱ

東京メトロ半蔵門線 / 押上駅 徒歩13分
築9年 / 9階建
東京都江東区亀戸3丁目18-8

9万円 / 管理費20,000円
敷
無料礼
2万円1K / 25.84㎡ / 8階
賃貸マンション
AXAS墨田アジールコート

東武伊勢崎線 / 曳舟駅 徒歩15分
築12年 / 9階建
東京都墨田区東向島3丁目12-4

9.7万円 / 管理費15,000円
敷
無料礼
9.7万円1K / 25.52㎡ / 7階
賃貸マンション
墨田区向島5丁目 12階建 2021年築

東京メトロ半蔵門線 / 押上駅 徒歩10分
築5年 / 12階建
東京都墨田区向島5丁目

11.5万円 / 管理費15,000円
敷
無料礼
無料ワンルーム / 25.56㎡ / 12階
賃貸マンション
プレディアンスフォート錦糸町HYs

京成押上線 / 押上駅 徒歩10分
築11年 / 7階建
東京都墨田区横川2丁目6-5

10万円 / 管理費8,000円
敷
無料礼
10万円1K / 25.22㎡ / 3階
賃貸マンション
アーバンパーク東向島

東武亀戸線 / 曳舟駅 徒歩15分
新築 / 5階建
東京都墨田区堤通1丁目18-26

10.9万円 / 管理費12,000円
敷
無料礼
無料1DK / 26.53㎡ / 4階
賃貸マンション
セジョリ押上イースト

東京メトロ半蔵門線 / 押上駅 徒歩12分
築7年 / 7階建
東京都墨田区文花1丁目11-12

8.4万円 / 管理費11,000円
敷
無料礼
8.4万円1K / 25.95㎡ / 2階
賃貸マンション
ジェノヴィア本所吾妻橋Ⅱスカイガーデン

東京メトロ半蔵門線 / 押上駅 徒歩14分
築4年 / 7階建
東京都墨田区本所4丁目9-1

10.9万円 / 管理費10,000円
敷
無料礼
無料1K / 26.04㎡ / 3階
賃貸マンション
ラ・グラース押上Ⅱ

東京メトロ半蔵門線 / 押上駅 徒歩5分
築10年 / 7階建
東京都墨田区押上1丁目45-4

10.2万円 / 管理費8,000円
敷
10.2万円礼
10.2万円ワンルーム / 25.09㎡ / 3階
賃貸マンション
プレール・ドゥーク押上Ⅳ

東京メトロ半蔵門線 / 押上駅 徒歩8分
築8年 / 12階建
東京都墨田区向島3丁目

9.9万円 / 管理費8,000円
敷
無料礼
9.9万円1K / 25.5㎡ / 9階
賃貸マンション
ARCOBALENO OSHIAGE BLOSSOM

東京メトロ半蔵門線 / 押上駅 徒歩10分
新築 / 7階建
東京都墨田区文花1丁目

10.6万円 / 管理費15,000円
敷
無料礼
10.6万円1K / 25.84㎡ / 3階
賃貸マンション
トレステラレジデンス押上

東京メトロ半蔵門線 / 押上駅 徒歩8分
築6年 / 12階建
東京都墨田区向島3丁目

10.7万円 / 管理費20,000円
敷
無料礼
無料1K / 25.55㎡ / 2階
賃貸マンション
プレセダンヒルズ押上

都営浅草線 / 押上駅 徒歩8分
築8年 / 12階建
東京都墨田区向島2丁目13-11

10.5万円 / 管理費5,000円
敷
無料礼
10.5万円1K / 25.7㎡ / 8階
賃貸マンション
ジェノヴィア墨田文花スカイガーデン

東京メトロ半蔵門線 / 押上駅 徒歩17分
築8年 / 5階建
東京都墨田区文花2丁目11-5

10万円 / 管理費10,000円
敷
無料礼
10万円1K / 25.95㎡ / 5階
同じ最寄り駅 × 同じ特徴 で探す
同じ市区町村 × 同じ特徴 で探す

































