メイクスデザイン南青山1K/12階/1204(東京都港区 / 表参道駅)の賃貸
1/30
1/30
16.2万円
初期費用を知りたい管理費11,000円
- 敷金
- 無料
- 保証金
- なし
- 礼金
- 16.2万円
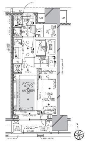
- 広さ
- 26.39㎡
- 階数
- 12階 / 12階建
- 間取り
- 1K
- 建物
- マンション (鉄筋コンクリート)
- 築年数
- 築14年
- 向き
- 北西
- 交通
- 東京メトロ半蔵門線 / 表参道駅徒歩12分
- 山手線 / 渋谷駅徒歩12分
- 住所
- 東京都港区南青山7丁目10-6
コンビニエンスストア 1m
スーパーマーケット 376m
総合病院 1m
セブンイレブン 港区南青山7丁目中央店 24m
無料で10秒! カンタンお問い合わせ

メイクスデザイン南青山
敷
無料礼
16.2万円特徴
バス・トイレ別
2階以上
エアコン付き
ペット相談可
駐車場あり
室内洗濯機置場
オートロック
洗面所独立
- 入居条件
- 初期費用カード決済可、ペット不可、保証人不要最新の空室状況が知りたい
- バス・トイレ
- 専用バス、専用トイレ、バストイレ別、シャワー、温水洗浄便座、浴室乾燥機、洗面所独立
- キッチン
- ガスコンロ対応、2口コンロ、システムキッチン
- セキュリティ
- オートロック、防犯カメラ
- 室内設備
- エアコン、室内洗濯置、フローリング、冷蔵庫付、インターネット対応、家具・家電付、ネット使用料不要、クロゼット、シューズボックス、照明付お部屋の詳しい情報を知りたい
- 部屋の特徴
- バルコニー、角住戸、二階以上、最上階写真を送ってほしい
- 共用部
- エレベーター、宅配ボックス、駐輪場
- その他の特徴
- 公営水道、都市ガス、下水、デザイナーズ、定期借家、分譲賃貸
無料で10秒! カンタンお問い合わせ

メイクスデザイン南青山
敷
無料礼
16.2万円不動産会社からのコメント
★モニター付きオートロックで安心のセキュリティ ★宅配ボックス・浴室乾燥機など充実の設備 ★初期費用ク
リブクラブ2200円(月額) SBI少額短期保険800円(月額) 口座振替手数料330円(月額) ★モニター付きオートロックで安心のセキュリティ ★宅配ボックス・浴室乾燥機など充実の設備 ★初期費用クレジットカード決済可能です!お気軽にお問合せ下さい。
その他
- 駐車/駐輪
- 要確認 / あり駐車可能な車種や台数を知りたい
- 入居時期
- 損保
- 住宅保険: 要
- 保証人代行
- 加入要 費用: 初回保証料:総賃料の100% 更新時:20,000円/年毎 初回保証料:総賃料の100% 更新時:20,000円/年毎
- その他費用
初期費用を知りたい鍵交換費用:33,000円
退去時クリーンコート代:55,000円
事務手数料:22,000円
- 情報
情報登録日:2024/9/2
情報更新日:2026/4/28
次回更新予定日:2026/5/13
- 備考
- 現況: 居住中 更新料: 新賃料の1.0ヶ月分 契約期間: 2年 ※定期借家 その他交通: 東京地下鉄日比谷線 広尾駅 徒歩14分 自社管理番号: 3157839
取扱い会社
- 取扱い会社
- 株式会社リブマックスリーシング 日本橋茅場町店条件が近い物件も紹介してほしい
- 免許番号
- 国土交通大臣 (3) 第8116号
- 取引態様
- 仲介
- 所在地
- 東京都中央区日本橋茅場町3丁目7-3 ホテルリブマックス日本橋茅場町 1F
- 電話番号
- 03-5644-1200
- 定休日
- 水曜日(年末年始、GW、夏季)
- 所属団体名
- 公益社団法人 全国宅地建物取引業保証協会
おすすめ物件 (20件)
賃貸マンション
メイクスデザイン南青山

山手線 / 渋谷駅 徒歩12分
築14年 / 12階建
東京都港区南青山7丁目10-6

15.9万円 / 管理費11,000円
敷
無料礼
15.9万円1K / 26.39㎡ / 12階
賃貸マンション
プレミアムキューブG渋谷神南

東京メトロ銀座線 / 渋谷駅 徒歩10分
築11年 / 15階建
東京都渋谷区神南1丁目

15万円 / 管理費15,000円
敷
15万円礼
15万円1K / 24.12㎡ / 5階
賃貸マンション
パークフラッツ渋谷代官山
山手線 / 渋谷駅 徒歩5分
築21年 / 9階建
東京都渋谷区東1丁目27-2
18万円 / 管理費10,000円
敷
18万円礼
18万円1DK / 30.33㎡ / 4階
賃貸マンション
パークハビオ渋谷

山手線 / 渋谷駅 徒歩4分
築14年 / 地上14階地下1階建
東京都渋谷区渋谷3丁目

16.7万円 / 管理費12,000円
敷
16.7万円礼
16.7万円ワンルーム / 25.17㎡ / 10階
賃貸マンション
ピアース渋谷

山手線 / 渋谷駅 徒歩7分
築4年 / 地上14階地下1階建
東京都渋谷区桜丘町

17.9万円 / 管理費16,000円
敷
17.9万円礼
17.9万円1DK / 27.66㎡ / 7階
賃貸マンション
レジディア渋谷

山手線 / 渋谷駅 徒歩7分
築20年 / 地上11階地下1階建
東京都渋谷区宇田川町

16.8万円 / 管理費15,000円
敷
無料礼
無料ワンルーム / 26.02㎡ / 10階
賃貸マンション
88.HANEZAWA

東京メトロ千代田線 / 表参道駅 徒歩13分
築8年 / 5階建
東京都渋谷区広尾3丁目

18万円 / 管理費8,000円
敷
18万円礼
18万円ワンルーム / 33.98㎡ / 5階
賃貸マンション
PASEO神宮前

東京メトロ千代田線 / 表参道駅 徒歩10分
築7年 / 4階建
東京都渋谷区神宮前3丁目

17万円 / 管理費15,000円
敷
無料礼
無料ワンルーム / 26.07㎡ / 3階
賃貸マンション
目黒区青葉台4丁目 地上18階地下1階建 2022年築

東京メトロ銀座線 / 渋谷駅 徒歩12分
築4年 / 18階建
東京都目黒区青葉台4丁目4-12

17.9万円 / 管理費10,000円
敷
17.9万円礼
17.9万円ワンルーム / 26.72㎡ / 10階
賃貸マンション
ルシヤージュ神宮前
東京メトロ千代田線 / 表参道駅 徒歩9分
築22年 / 地上5階地下1階建
東京都渋谷区神宮前3
17.5万円 / 管理費15,000円
敷
17.5万円礼
17.5万円ワンルーム / 33.14㎡ / 3階
賃貸マンション
パセオ神宮前(PASEO神宮前)
東京メトロ半蔵門線 / 表参道駅 徒歩9分
築7年 / 地上4階地下1階建
東京都渋谷区神宮前3丁目13-20
17万円 / 管理費15,000円
敷
無料礼
無料ワンルーム / 26.07㎡ / 3階
賃貸マンション
NJKマーキス表参道【NJK MARQUIS OMOTESANDO】
東京メトロ銀座線 / 表参道駅 徒歩6分
築12年 / 15階建
東京都渋谷区渋谷2
14.9万円 / 管理費10,000円
敷
14.9万円礼
14.9万円ワンルーム / 24.57㎡ / 3階
賃貸マンション
ペイサージュ渋谷ファースト

山手線 / 渋谷駅 徒歩4分
築24年 / 8階建
東京都渋谷区渋谷3丁目

15.5万円 / 管理費14,000円
敷
15.5万円礼
15.5万円ワンルーム / 35.83㎡ / 4階
賃貸マンション
渋谷区道玄坂1丁目 11階建 2000年築

山手線 / 渋谷駅 徒歩5分
築26年 / 11階建
東京都渋谷区道玄坂1丁目

15.5万円 / 管理費10,000円
敷
15.5万円礼
15.5万円1DK / 29.04㎡ / 4階
賃貸マンション
ザ・パークハビオ渋谷クロス

山手線 / 渋谷駅 徒歩11分
築4年 / 11階建
東京都目黒区青葉台3丁目1-1

17.5万円 / 管理費10,000円
敷
17.5万円礼
17.5万円1K / 25.56㎡ / 7階
賃貸マンション
渋谷区神宮前3丁目 地上5階地下1階建 2004年築

東京メトロ銀座線 / 表参道駅 徒歩9分
築22年 / 5階建
東京都渋谷区神宮前3丁目18-6

14.7万円 / 管理費10,000円
敷
14.7万円礼
14.7万円1K / 26.59㎡ / 2階
賃貸マンション
ビバリーホームズ代官山

東急田園都市線 / 渋谷駅 徒歩6分
築10年 / 5階建
東京都渋谷区鶯谷町17-10

15.5万円 / 管理費10,000円
敷
15.5万円礼
15.5万円1K / 30.63㎡ / 4階
賃貸マンション
シーフォルム外苑前

東京メトロ半蔵門線 / 表参道駅 徒歩10分
築9年 / 10階建
東京都港区北青山2丁目

家賃カード決済可
16.3万円 / 管理費10,000円
敷
16.3万円礼
16.3万円1K / 28.17㎡ / 2階
賃貸マンション
メイクスデザイン南青山

山手線 / 渋谷駅 徒歩12分
築14年 / 12階建
東京都港区南青山7丁目10-6

15.9万円 / 管理費11,000円
敷
無料礼
15.9万円1K / 26.39㎡ / 12階
賃貸マンション
プレミアムキューブG渋谷神南

東京メトロ銀座線 / 渋谷駅 徒歩10分
築11年 / 15階建
東京都渋谷区神南1丁目

15万円 / 管理費15,000円
敷
15万円礼
15万円1K / 24.12㎡ / 5階
賃貸マンション
パークフラッツ渋谷代官山
山手線 / 渋谷駅 徒歩5分
築21年 / 9階建
東京都渋谷区東1丁目27-2
18万円 / 管理費10,000円
敷
18万円礼
18万円1DK / 30.33㎡ / 4階
賃貸マンション
パークハビオ渋谷

山手線 / 渋谷駅 徒歩4分
築14年 / 地上14階地下1階建
東京都渋谷区渋谷3丁目

16.7万円 / 管理費12,000円
敷
16.7万円礼
16.7万円ワンルーム / 25.17㎡ / 10階
賃貸マンション
ピアース渋谷

山手線 / 渋谷駅 徒歩7分
築4年 / 地上14階地下1階建
東京都渋谷区桜丘町

17.9万円 / 管理費16,000円
敷
17.9万円礼
17.9万円1DK / 27.66㎡ / 7階
賃貸マンション
レジディア渋谷

山手線 / 渋谷駅 徒歩7分
築20年 / 地上11階地下1階建
東京都渋谷区宇田川町

16.8万円 / 管理費15,000円
敷
無料礼
無料ワンルーム / 26.02㎡ / 10階
賃貸マンション
88.HANEZAWA

東京メトロ千代田線 / 表参道駅 徒歩13分
築8年 / 5階建
東京都渋谷区広尾3丁目

18万円 / 管理費8,000円
敷
18万円礼
18万円ワンルーム / 33.98㎡ / 5階
賃貸マンション
PASEO神宮前

東京メトロ千代田線 / 表参道駅 徒歩10分
築7年 / 4階建
東京都渋谷区神宮前3丁目

17万円 / 管理費15,000円
敷
無料礼
無料ワンルーム / 26.07㎡ / 3階
賃貸マンション
目黒区青葉台4丁目 地上18階地下1階建 2022年築

東京メトロ銀座線 / 渋谷駅 徒歩12分
築4年 / 18階建
東京都目黒区青葉台4丁目4-12

17.9万円 / 管理費10,000円
敷
17.9万円礼
17.9万円ワンルーム / 26.72㎡ / 10階
賃貸マンション
ルシヤージュ神宮前
東京メトロ千代田線 / 表参道駅 徒歩9分
築22年 / 地上5階地下1階建
東京都渋谷区神宮前3
17.5万円 / 管理費15,000円
敷
17.5万円礼
17.5万円ワンルーム / 33.14㎡ / 3階
賃貸マンション
パセオ神宮前(PASEO神宮前)
東京メトロ半蔵門線 / 表参道駅 徒歩9分
築7年 / 地上4階地下1階建
東京都渋谷区神宮前3丁目13-20
17万円 / 管理費15,000円
敷
無料礼
無料ワンルーム / 26.07㎡ / 3階
賃貸マンション
NJKマーキス表参道【NJK MARQUIS OMOTESANDO】
東京メトロ銀座線 / 表参道駅 徒歩6分
築12年 / 15階建
東京都渋谷区渋谷2
14.9万円 / 管理費10,000円
敷
14.9万円礼
14.9万円ワンルーム / 24.57㎡ / 3階
賃貸マンション
ペイサージュ渋谷ファースト

山手線 / 渋谷駅 徒歩4分
築24年 / 8階建
東京都渋谷区渋谷3丁目

15.5万円 / 管理費14,000円
敷
15.5万円礼
15.5万円ワンルーム / 35.83㎡ / 4階
賃貸マンション
渋谷区道玄坂1丁目 11階建 2000年築

山手線 / 渋谷駅 徒歩5分
築26年 / 11階建
東京都渋谷区道玄坂1丁目

15.5万円 / 管理費10,000円
敷
15.5万円礼
15.5万円1DK / 29.04㎡ / 4階
賃貸マンション
ザ・パークハビオ渋谷クロス

山手線 / 渋谷駅 徒歩11分
築4年 / 11階建
東京都目黒区青葉台3丁目1-1

17.5万円 / 管理費10,000円
敷
17.5万円礼
17.5万円1K / 25.56㎡ / 7階
賃貸マンション
渋谷区神宮前3丁目 地上5階地下1階建 2004年築

東京メトロ銀座線 / 表参道駅 徒歩9分
築22年 / 5階建
東京都渋谷区神宮前3丁目18-6

14.7万円 / 管理費10,000円
敷
14.7万円礼
14.7万円1K / 26.59㎡ / 2階
賃貸マンション
ビバリーホームズ代官山

東急田園都市線 / 渋谷駅 徒歩6分
築10年 / 5階建
東京都渋谷区鶯谷町17-10

15.5万円 / 管理費10,000円
敷
15.5万円礼
15.5万円1K / 30.63㎡ / 4階
賃貸マンション
シーフォルム外苑前

東京メトロ半蔵門線 / 表参道駅 徒歩10分
築9年 / 10階建
東京都港区北青山2丁目

家賃カード決済可
16.3万円 / 管理費10,000円
敷
16.3万円礼
16.3万円1K / 28.17㎡ / 2階
同じ最寄り駅 × 同じ特徴 で探す
同じ市区町村 × 同じ特徴 で探す



































