台東区 12階建 2025年築1LDK/3階(東京都台東区 / 稲荷町駅)の賃貸
1/30
1/30
16万円
初期費用を知りたい管理費10,000円
- 敷金
- 16万円
- 保証金
- なし
- 礼金
- 16万円
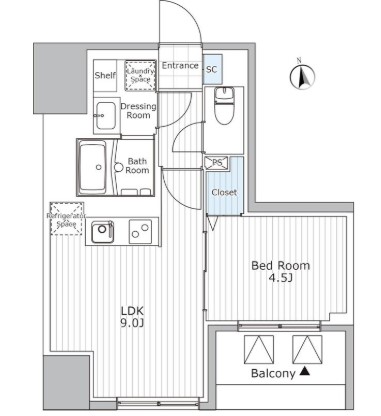
- 広さ
- 35.09㎡
- 階数
- 3階 / 12階建
- 間取り
- 1LDK
- 建物
- マンション (鉄筋コンクリート)
- 築年数
- 築1年
- 向き
- 南
- 交通
- 東京メトロ銀座線 / 稲荷町駅徒歩6分
- 山手線 / 上野駅徒歩7分
- 住所
- 東京都台東区東上野5丁目24-12
上野駅(JR東日本 山手線) 1000m
無料で10秒! カンタンお問い合わせ
台東区 12階建 2025年築
敷
16万円礼
16万円特徴
バス・トイレ別
2階以上
エアコン付き
ペット相談可
駐車場あり
室内洗濯機置場
オートロック
洗面所独立
- 入居条件
- 保証人不要、二人入居可最新の空室状況が知りたい
- バス・トイレ
- 給湯、専用バス、オートバス、追焚機能浴室、浴室乾燥機、シャワー、専用トイレ、温水洗浄便座、バストイレ別、シャワー付洗面化粧台、洗面所独立
- キッチン
- ガスコンロ対応、2口コンロ、システムキッチン
- セキュリティ
- オートロック、防犯カメラ
- 室内設備
- BS、CS、インターネット対応、光ファイバー、エアコン、冷房、照明付、クロゼット、全居室収納、シューズボックス、室内洗濯置、フローリング、ネット使用料不要お部屋の詳しい情報を知りたい
- 部屋の特徴
- バルコニー、二階以上写真を送ってほしい
- 共用部
- エレベーター、宅配ボックス、駐輪場
- その他の特徴
- 下水、公営水道、都市ガス、外壁タイル張り
無料で10秒! カンタンお問い合わせ
台東区 12階建 2025年築
敷
16万円礼
16万円同じ建物で掲載中の物件 (7件)
不動産会社からのコメント
インターネット無料!オートロック・宅配ボックス・浴室乾燥・独立洗面台付き!上野駅徒歩7分
駐輪場1住戸1台込 法人契約時礼金2カ月
その他
- 駐車/駐輪
- 要確認 / あり駐車可能な車種や台数を知りたい
- 入居時期
- 2026年5月下旬最新の空室状況が知りたい
- 損保
- 住宅保険: 要
- 保証人代行
- 加入要 会社名: その他 費用: 0.50ヶ月 2年目以降10000円/年
- その他費用
初期費用を知りたい口座振替手数料/月:220円
駐輪ステッカー代:1,100円
室内清掃費用:59,400円
鍵交換費用:33,000円
- 情報
情報登録日:2026/4/5
情報更新日:2026/4/4
次回更新予定日:2026/4/20
- 備考
- 現況: 居住中 更新料: 新賃料の1.0ヶ月分 契約期間: 2年 総戸数: 41戸
取扱い会社
- 取扱い会社
- スタートライングループ株式会社 台東蔵前店条件が近い物件も紹介してほしい
- 免許番号
- 東京都知事(6)第76891号
- 取引態様
- 仲介
- 所在地
- 東京都台東区蔵前3-17-4 蔵前妙見屋ビル4F
- 電話番号
- 03-5829-3585
- 営業時間
- 10:00~19:00
- 定休日
- 受付:年中無休/店舗:水曜日(年末年始/GW/お盆)
- 所属団体名
- 公益社団法人全日本不動産協会
おすすめ物件 (20件)
賃貸マンション
nidoMOTOASAKUSA

東京メトロ銀座線 / 稲荷町駅 徒歩8分
新築 / 13階建
東京都台東区元浅草4丁目2-13

18万円 / 管理費10,000円
敷
無料礼
無料1K / 28.95㎡ / 2階
賃貸マンション
コンフォリア東上野

東京メトロ銀座線 / 稲荷町駅 徒歩3分
築2年 / 地上15階地下1階建
東京都台東区東上野6丁目1-14

14.7万円 / 管理費8,000円
敷
14.7万円礼
無料1K / 25.16㎡ / 9階
賃貸マンション
パークアクシス元浅草ステージ

東京メトロ銀座線 / 稲荷町駅 徒歩8分
築18年 / 地上16階地下1階建
東京都台東区元浅草1丁目8-11

16.4万円 / 管理費8,000円
敷
16.4万円礼
16.4万円1K / 33.31㎡ / 13階
賃貸マンション
台東区 9階建 2019年築

東京メトロ銀座線 / 稲荷町駅 徒歩10分
築7年 / 9階建
東京都台東区北上野2丁目14-9

14.4万円 / 管理費11,000円
敷
無料礼
14.4万円1K / 26.43㎡ / 5階
賃貸マンション
HF上野レジデンスEAST

東京メトロ銀座線 / 稲荷町駅 徒歩2分
築9年 / 15階建
東京都台東区東上野5丁目4-15

16.5万円 / 管理費11,000円
敷
16.5万円礼
無料1LDK / 35.69㎡ / 7階
賃貸マンション
フレンシア御徒町

東京メトロ日比谷線 / 上野駅 徒歩7分
築3年 / 13階建
東京都台東区東上野1丁目20-4

14.4万円 / 管理費10,000円
敷
28.8万円礼
無料1DK / 25.21㎡ / 6階
賃貸マンション
レジディア新御徒町

東京メトロ銀座線 / 稲荷町駅 徒歩4分
築19年 / 15階建
東京都台東区元浅草1丁目21-5

15万円 / 管理費20,000円
敷
15万円礼
15万円1DK / 30.24㎡ / 3階
賃貸マンション
Palazzo Kubota

山手線 / 上野駅 徒歩4分
築17年 / 8階建
東京都台東区東上野3丁目24-10

17万円 / 管理費13,000円
敷
無料礼
17万円1DK / 39.06㎡ / 7階
賃貸マンション
リビオメゾン上野松が谷

山手線 / 上野駅 徒歩11分
築4年 / 14階建
東京都台東区松が谷3丁目4-2

14.7万円 / 管理費10,000円
敷
14.7万円礼
14.7万円1DK / 30㎡ / 5階
賃貸マンション
ルジェンテ・バリュ上野

高崎線 / 上野駅 徒歩4分
築9年 / 地上13階地下1階建
東京都台東区上野7丁目12-12

17.7万円 / 管理費12,000円
敷
無料礼
17.7万円1LDK / 33.46㎡ / 3階
賃貸マンション
ルフォンプログレ上野稲荷町

東京メトロ銀座線 / 稲荷町駅 徒歩5分
築4年 / 15階建
東京都台東区元浅草2丁目2-2

14.5万円 / 管理費15,000円
敷
14.5万円礼
無料1DK / 26.7㎡ / 10階
賃貸マンション
台東区 13階建 2020年築

東京メトロ銀座線 / 稲荷町駅 徒歩4分
築6年 / 13階建
東京都台東区東上野3丁目1-2

15.5万円 / 管理費11,000円
敷
無料礼
15.5万円1K / 28.22㎡ / 11階
賃貸マンション
台東区 13階建 2019年築

東京メトロ銀座線 / 稲荷町駅 徒歩6分
築7年 / 13階建
東京都台東区元浅草3丁目18-16

14.5万円 / 管理費11,000円
敷
無料礼
14.5万円1K / 26.45㎡ / 13階
賃貸マンション
カスタリア北上野

北陸新幹線 / 上野駅 徒歩10分
築21年 / 14階建
東京都台東区北上野1丁目15-5

15.5万円 / 管理費8,000円
敷
15.5万円礼
15.5万円1LDK / 36.5㎡ / 9階
賃貸マンション
Log上野駅前

山手線 / 上野駅 徒歩3分
築9年 / 14階建
東京都台東区東上野4丁目10-12

17万円 / 管理費15,000円
敷
17万円礼
17万円1LDK / 40.45㎡ / 9階
賃貸マンション
アーバネックス北上野
山手線 / 上野駅 徒歩17分
築1年 / 13階建
東京都台東区北上野2丁目14-7
15.3万円 / 管理費12,000円
敷
15.3万円礼
無料1LDK / 27.14㎡ / 10階
賃貸マンション
台東区 11階建 2007年築
山手線 / 上野駅 徒歩9分
築19年 / 11階建
東京都台東区東上野6丁目27-5
17万円 / 管理費12,000円
敷
無料礼
無料1LDK / 39.04㎡ / 10階
賃貸マンション
台東区 15階建 2022年築
東京メトロ銀座線 / 稲荷町駅 徒歩5分
築4年 / 15階建
東京都台東区元浅草2丁目1-2
14.2万円 / 管理費15,000円
敷
14.2万円礼
14.2万円1DK / 25.35㎡ / 5階
賃貸マンション
ブランシエスタ上野
東京メトロ日比谷線 / 上野駅 徒歩3分
築1年 / 13階建
東京都台東区東上野3丁目36-6
家賃カード決済可
17.9万円 / 管理費12,000円
敷
17.9万円礼
17.9万円1LDK / 33.73㎡ / 6階
賃貸マンション
nidoMOTOASAKUSA

東京メトロ銀座線 / 稲荷町駅 徒歩8分
新築 / 13階建
東京都台東区元浅草4丁目2-13

18万円 / 管理費10,000円
敷
無料礼
無料1K / 28.95㎡ / 2階
賃貸マンション
コンフォリア東上野

東京メトロ銀座線 / 稲荷町駅 徒歩3分
築2年 / 地上15階地下1階建
東京都台東区東上野6丁目1-14

14.7万円 / 管理費8,000円
敷
14.7万円礼
無料1K / 25.16㎡ / 9階
賃貸マンション
パークアクシス元浅草ステージ

東京メトロ銀座線 / 稲荷町駅 徒歩8分
築18年 / 地上16階地下1階建
東京都台東区元浅草1丁目8-11

16.4万円 / 管理費8,000円
敷
16.4万円礼
16.4万円1K / 33.31㎡ / 13階
賃貸マンション
台東区 9階建 2019年築

東京メトロ銀座線 / 稲荷町駅 徒歩10分
築7年 / 9階建
東京都台東区北上野2丁目14-9

14.4万円 / 管理費11,000円
敷
無料礼
14.4万円1K / 26.43㎡ / 5階
賃貸マンション
HF上野レジデンスEAST

東京メトロ銀座線 / 稲荷町駅 徒歩2分
築9年 / 15階建
東京都台東区東上野5丁目4-15

16.5万円 / 管理費11,000円
敷
16.5万円礼
無料1LDK / 35.69㎡ / 7階
賃貸マンション
フレンシア御徒町

東京メトロ日比谷線 / 上野駅 徒歩7分
築3年 / 13階建
東京都台東区東上野1丁目20-4

14.4万円 / 管理費10,000円
敷
28.8万円礼
無料1DK / 25.21㎡ / 6階
賃貸マンション
レジディア新御徒町

東京メトロ銀座線 / 稲荷町駅 徒歩4分
築19年 / 15階建
東京都台東区元浅草1丁目21-5

15万円 / 管理費20,000円
敷
15万円礼
15万円1DK / 30.24㎡ / 3階
賃貸マンション
Palazzo Kubota

山手線 / 上野駅 徒歩4分
築17年 / 8階建
東京都台東区東上野3丁目24-10

17万円 / 管理費13,000円
敷
無料礼
17万円1DK / 39.06㎡ / 7階
賃貸マンション
リビオメゾン上野松が谷

山手線 / 上野駅 徒歩11分
築4年 / 14階建
東京都台東区松が谷3丁目4-2

14.7万円 / 管理費10,000円
敷
14.7万円礼
14.7万円1DK / 30㎡ / 5階
賃貸マンション
ルジェンテ・バリュ上野

高崎線 / 上野駅 徒歩4分
築9年 / 地上13階地下1階建
東京都台東区上野7丁目12-12

17.7万円 / 管理費12,000円
敷
無料礼
17.7万円1LDK / 33.46㎡ / 3階
賃貸マンション
ルフォンプログレ上野稲荷町

東京メトロ銀座線 / 稲荷町駅 徒歩5分
築4年 / 15階建
東京都台東区元浅草2丁目2-2

14.5万円 / 管理費15,000円
敷
14.5万円礼
無料1DK / 26.7㎡ / 10階
賃貸マンション
台東区 13階建 2020年築

東京メトロ銀座線 / 稲荷町駅 徒歩4分
築6年 / 13階建
東京都台東区東上野3丁目1-2

15.5万円 / 管理費11,000円
敷
無料礼
15.5万円1K / 28.22㎡ / 11階
賃貸マンション
台東区 13階建 2019年築

東京メトロ銀座線 / 稲荷町駅 徒歩6分
築7年 / 13階建
東京都台東区元浅草3丁目18-16

14.5万円 / 管理費11,000円
敷
無料礼
14.5万円1K / 26.45㎡ / 13階
賃貸マンション
カスタリア北上野

北陸新幹線 / 上野駅 徒歩10分
築21年 / 14階建
東京都台東区北上野1丁目15-5

15.5万円 / 管理費8,000円
敷
15.5万円礼
15.5万円1LDK / 36.5㎡ / 9階
賃貸マンション
Log上野駅前

山手線 / 上野駅 徒歩3分
築9年 / 14階建
東京都台東区東上野4丁目10-12

17万円 / 管理費15,000円
敷
17万円礼
17万円1LDK / 40.45㎡ / 9階
賃貸マンション
アーバネックス北上野
山手線 / 上野駅 徒歩17分
築1年 / 13階建
東京都台東区北上野2丁目14-7
15.3万円 / 管理費12,000円
敷
15.3万円礼
無料1LDK / 27.14㎡ / 10階
賃貸マンション
台東区 11階建 2007年築
山手線 / 上野駅 徒歩9分
築19年 / 11階建
東京都台東区東上野6丁目27-5
17万円 / 管理費12,000円
敷
無料礼
無料1LDK / 39.04㎡ / 10階
賃貸マンション
台東区 15階建 2022年築
東京メトロ銀座線 / 稲荷町駅 徒歩5分
築4年 / 15階建
東京都台東区元浅草2丁目1-2
14.2万円 / 管理費15,000円
敷
14.2万円礼
14.2万円1DK / 25.35㎡ / 5階
賃貸マンション
ブランシエスタ上野
東京メトロ日比谷線 / 上野駅 徒歩3分
築1年 / 13階建
東京都台東区東上野3丁目36-6
家賃カード決済可
17.9万円 / 管理費12,000円
敷
17.9万円礼
17.9万円1LDK / 33.73㎡ / 6階
同じ最寄り駅 × 同じ特徴 で探す
同じ市区町村 × 同じ特徴 で探す




