シーフォルム板橋31DK/7階/701(東京都板橋区 / 新板橋駅)の賃貸
1/27
1/27
13.3万円
初期費用を知りたい管理費10,000円
- 敷金
- 無料
- 保証金
- なし
- 礼金
- 無料
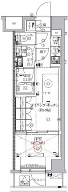
- 広さ
- 25.86㎡
- 階数
- 7階 / 13階建
- 間取り
- 1DK
- 建物
- マンション (鉄筋コンクリート)
- 築年数
- 新築
- 向き
- 北
- 交通
- 都営三田線 / 新板橋駅徒歩2分
- 埼京線 / 板橋駅徒歩6分
- 東武東上線 / 下板橋駅徒歩8分
- 住所
- 東京都板橋区板橋1丁目47-10
コープ 板橋駅前店 185m
ファミリーマート 板橋駅西口店 109m
ウエルシア板橋新板橋店 79m
TSUTAYA JR板橋駅前店 198m
中華食堂日高屋板橋駅西口店 182m
田中医院 232m
無料で10秒! カンタンお問い合わせ

シーフォルム板橋3
敷
無料礼
無料特徴
バス・トイレ別
2階以上
エアコン付き
ペット相談可
駐車場あり
室内洗濯機置場
オートロック
洗面所独立
- 入居条件
- 二人入居相談、事務所不可、ペット相談、ルームシェア不可、敷金不要、礼金不要、即入居可最新の空室状況が知りたい
- バス・トイレ
- 洗面台、バストイレ別、オートバス、浴室乾燥機、追焚機能浴室、脱衣所、温水洗浄便座、洗面所独立
- キッチン
- ガスコンロ対応、1口コンロ、カウンターキッチン、システムキッチン
- セキュリティ
- 防犯カメラ、オートロック
- 室内設備
- 乾燥機付、インターネット対応、ネット使用料不要、エアコン、室内洗濯置、フローリング、全居室フローリングお部屋の詳しい情報を知りたい
- 部屋の特徴
- 二階以上、角住戸、バルコニー写真を送ってほしい
- 共用部
- 敷地内ごみ置き場、宅配ボックス、エレベーター、バイク置場、駐輪場
- その他の特徴
- 駐車場あり、都市ガス、公営水道、下水、外壁タイル張り
無料で10秒! カンタンお問い合わせ

シーフォルム板橋3
敷
無料礼
無料同じ建物で掲載中の物件 (1件)
不動産会社からのコメント
平置き月額¥550/4台/ラック式屋内19台屋外16台上段月額¥330/下段月額¥550/ミニバイク置き場月額¥3300屋根なし2台/退去時清掃費A/B/Ctype¥52800/退去時清掃費D/E/F/Gtype¥82500/火災保険料A/B/Ctype¥20000/2年/ペット飼育小型犬または猫2匹まで可(敷金1ヶ月追加)/駐輪場代借主負担(使用時)/鍵交換代借主負担
その他
- 駐車/駐輪
- 近隣 費用: 33,000円(税込) 距離: 234m / あり駐車可能な車種や台数を知りたい
- 入居時期
- 損保
- 住宅保険: 要
- 保証人代行
- 保証人代行: 必須 保証人代行会社: その他 初回:賃料等の40%、以降毎年:10000円(賃料等15万円以上:14000円)
- その他費用
- 情報
情報登録日:2025/11/18
情報更新日:2025/12/13
次回更新予定日:2025/12/25
- 備考
- 退去時清掃費D/E/F/Gtype¥82500/火災保険料A/B/Ctype¥20000/2年/ペット飼育小型犬または猫2匹まで可(敷金1ヶ月追加)/駐輪場代借主負担(使用時)/鍵交換代借主負担 契約期間: 2年
取扱い会社
- 取扱い会社
- アエラス赤羽店 (株式会社アエラス.PR)条件が近い物件も紹介してほしい
- 免許番号
- 国土交通大臣(1)第10782号
- 取引態様
- 仲介
- 所在地
- 東京都北区赤羽南1丁目6-5 鈴木ビル 2階
- 電話番号
- 03-5249-4441
- 営業時間
- 10:00~19:00
- 定休日
- 年中無休(年末年始などを除く)
- 所属団体名
- 全日本不動産協会
おすすめ物件 (20件)
賃貸マンション
ARKMARK池袋本町

東武東上線 / 下板橋駅 徒歩8分
新築 / 8階建
東京都豊島区池袋本町2丁目17-19

12.35万円 / 管理費15,000円
敷
無料礼
無料1K / 26.3㎡ / 7階
賃貸マンション
ザ・パークハビオ滝野川

埼京線 / 板橋駅 徒歩11分
築2年 / 14階建
東京都北区滝野川6丁目1-1

13万円 / 管理費15,000円
敷
13万円礼
13万円1DK / 25.8㎡ / 11階
賃貸マンション
ルフォンプログレ滝野川

埼京線 / 板橋駅 徒歩8分
築10年 / 13階建
東京都北区滝野川6丁目44-12

12.8万円 / 管理費10,000円
敷
12.8万円礼
12.8万円1K / 25.6㎡ / 11階
賃貸マンション
HF西巣鴨レジデンスⅡ

埼京線 / 板橋駅 徒歩12分
築4年 / 4階建
東京都北区滝野川3丁目37-4

11.3万円 / 管理費15,000円
敷
11.3万円礼
11.3万円1DK / 25.52㎡ / 4階
賃貸マンション
SYFORME ITABASHI

埼京線 / 板橋駅 徒歩8分
築4年 / 7階建
東京都北区滝野川7丁目45-16

11.7万円 / 管理費10,000円
敷
11.7万円礼
11.7万円2K / 26.39㎡ / 2階
賃貸マンション
GENOVIA北池袋skygarden

埼京線 / 板橋駅 徒歩5分
新築 / 6階建
東京都北区滝野川7丁目

13.35万円 / 管理費10,000円
敷
無料礼
無料2K / 27.54㎡ / 4階
賃貸マンション
PREMIUM CUBE 池袋本町

東武東上線 / 下板橋駅 徒歩6分
築2年 / 7階建
東京都豊島区池袋本町3丁目

13.45万円 / 管理費15,000円
敷
無料礼
無料1DK / 30.56㎡ / 5階
賃貸マンション
コンフォリア滝野川

埼京線 / 板橋駅 徒歩10分
築7年 / 15階建
東京都北区滝野川7丁目48-2

12.1万円 / 管理費8,000円
敷
12.1万円礼
無料1DK / 25.92㎡ / 3階
賃貸マンション
セジョリ池袋本町

東武東上線 / 下板橋駅 徒歩8分
築2年 / 7階建
東京都豊島区池袋本町2丁目29-12

11.85万円 / 管理費10,000円
敷
無料礼
無料1K / 25.59㎡ / 5階
賃貸マンション
JR埼京線 板橋駅 13階建 築11年
埼京線 / 板橋駅 徒歩8分
築10年 / 13階建
東京都北区滝野川6
12.8万円 / 管理費10,000円
敷
12.8万円礼
12.8万円1K / 25.6㎡ / 11階
賃貸マンション
CREATIF池袋本町
東武東上線 / 下板橋駅 徒歩8分
築1年 / 地上5階地下1階建
東京都豊島区池袋本町2
家賃カード決済可
13.7万円 / 管理費10,000円
敷
無料礼
無料1LDK / 30.14㎡ / 5階
賃貸マンション
板橋区板橋1丁目 9階建 2017年築

都営三田線 / 新板橋駅 徒歩3分
築8年 / 9階建
東京都板橋区板橋1丁目

12.9万円 / 管理費12,000円
敷
無料礼
無料1K / 25.66㎡ / 2階
賃貸マンション
板橋区熊野町 10階建 2019年築

東武東上線 / 下板橋駅 徒歩8分
築6年 / 10階建
東京都板橋区熊野町

12.2万円 / 管理費18,000円
敷
無料礼
無料1DK / 25.38㎡ / 7階
賃貸マンション
板橋区板橋4丁目 14階建 2011年築

都営三田線 / 新板橋駅 徒歩5分
築14年 / 14階建
東京都板橋区板橋4丁目

12.4万円 / 管理費11,000円
敷
無料礼
12.4万円1K / 22.95㎡ / 7階
賃貸マンション
ジェノヴィア北池袋スカイガーデン

埼京線 / 板橋駅 徒歩5分
新築 / 6階建
東京都北区滝野川7丁目25-14

13.7万円 / 管理費10,000円
敷
無料礼
無料1DK / 28.2㎡ / 6階
賃貸マンション
ARKMARK池袋本町

東武東上線 / 下板橋駅 徒歩8分
新築 / 8階建
東京都豊島区池袋本町2丁目17-19

12.35万円 / 管理費15,000円
敷
無料礼
無料1K / 26.3㎡ / 7階
賃貸マンション
ザ・パークハビオ滝野川

埼京線 / 板橋駅 徒歩11分
築2年 / 14階建
東京都北区滝野川6丁目1-1

13万円 / 管理費15,000円
敷
13万円礼
13万円1DK / 25.8㎡ / 11階
賃貸マンション
ルフォンプログレ滝野川

埼京線 / 板橋駅 徒歩8分
築10年 / 13階建
東京都北区滝野川6丁目44-12

12.8万円 / 管理費10,000円
敷
12.8万円礼
12.8万円1K / 25.6㎡ / 11階
賃貸マンション
HF西巣鴨レジデンスⅡ

埼京線 / 板橋駅 徒歩12分
築4年 / 4階建
東京都北区滝野川3丁目37-4

11.3万円 / 管理費15,000円
敷
11.3万円礼
11.3万円1DK / 25.52㎡ / 4階
賃貸マンション
SYFORME ITABASHI

埼京線 / 板橋駅 徒歩8分
築4年 / 7階建
東京都北区滝野川7丁目45-16

11.7万円 / 管理費10,000円
敷
11.7万円礼
11.7万円2K / 26.39㎡ / 2階
賃貸マンション
GENOVIA北池袋skygarden

埼京線 / 板橋駅 徒歩5分
新築 / 6階建
東京都北区滝野川7丁目

13.35万円 / 管理費10,000円
敷
無料礼
無料2K / 27.54㎡ / 4階
賃貸マンション
PREMIUM CUBE 池袋本町

東武東上線 / 下板橋駅 徒歩6分
築2年 / 7階建
東京都豊島区池袋本町3丁目

13.45万円 / 管理費15,000円
敷
無料礼
無料1DK / 30.56㎡ / 5階
賃貸マンション
コンフォリア滝野川

埼京線 / 板橋駅 徒歩10分
築7年 / 15階建
東京都北区滝野川7丁目48-2

12.1万円 / 管理費8,000円
敷
12.1万円礼
無料1DK / 25.92㎡ / 3階
賃貸マンション
セジョリ池袋本町

東武東上線 / 下板橋駅 徒歩8分
築2年 / 7階建
東京都豊島区池袋本町2丁目29-12

11.85万円 / 管理費10,000円
敷
無料礼
無料1K / 25.59㎡ / 5階
賃貸マンション
JR埼京線 板橋駅 13階建 築11年
埼京線 / 板橋駅 徒歩8分
築10年 / 13階建
東京都北区滝野川6
12.8万円 / 管理費10,000円
敷
12.8万円礼
12.8万円1K / 25.6㎡ / 11階
賃貸マンション
CREATIF池袋本町
東武東上線 / 下板橋駅 徒歩8分
築1年 / 地上5階地下1階建
東京都豊島区池袋本町2
家賃カード決済可
13.7万円 / 管理費10,000円
敷
無料礼
無料1LDK / 30.14㎡ / 5階
賃貸マンション
板橋区板橋1丁目 9階建 2017年築

都営三田線 / 新板橋駅 徒歩3分
築8年 / 9階建
東京都板橋区板橋1丁目

12.9万円 / 管理費12,000円
敷
無料礼
無料1K / 25.66㎡ / 2階
賃貸マンション
板橋区熊野町 10階建 2019年築

東武東上線 / 下板橋駅 徒歩8分
築6年 / 10階建
東京都板橋区熊野町

12.2万円 / 管理費18,000円
敷
無料礼
無料1DK / 25.38㎡ / 7階
賃貸マンション
板橋区板橋4丁目 14階建 2011年築

都営三田線 / 新板橋駅 徒歩5分
築14年 / 14階建
東京都板橋区板橋4丁目

12.4万円 / 管理費11,000円
敷
無料礼
12.4万円1K / 22.95㎡ / 7階
賃貸マンション
ジェノヴィア北池袋スカイガーデン

埼京線 / 板橋駅 徒歩5分
新築 / 6階建
東京都北区滝野川7丁目25-14

13.7万円 / 管理費10,000円
敷
無料礼
無料1DK / 28.2㎡ / 6階

































