ルキシア薬院1SLDK/3階(福岡県福岡市中央区 / 薬院駅)の賃貸
1/15
1/15
13.5万円
初期費用を知りたい管理費5,500円
- 敷金
- 13.5万円
- 保証金
- なし
- 礼金
- 27万円
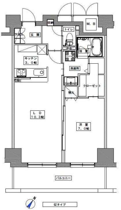
- 広さ
- 50.5㎡
- 階数
- 3階 / 14階建
- 間取り
- 1SLDK
- 建物
- マンション (鉄筋コンクリート)
- 築年数
- 築13年
- 向き
- 南東
- 交通
- 西鉄天神大牟田線 / 薬院駅徒歩6分
- 地下鉄七隈線 / 渡辺通駅徒歩8分
- 地下鉄七隈線 / 薬院大通駅徒歩11分
- 住所
- 福岡県福岡市中央区白金1
ローソン福岡白金一丁目店(コンビニ)まで76m
無料で10秒! カンタンお問い合わせ
ルキシア薬院
敷
13.5万円礼
27万円特徴
バス・トイレ別
2階以上
エアコン付き
ペット相談可
駐車場あり
室内洗濯機置場
オートロック
洗面所独立
- 入居条件
- ペット相談最新の空室状況が知りたい
- バス・トイレ
- バストイレ別、浴室乾燥機、追焚機能浴室、温水洗浄便座、脱衣所、洗面所独立、洗面化粧台、洗面所にドア
- キッチン
- ガスコンロ対応、システムキッチン、2口コンロ、3口以上コンロ、カウンターキッチン、グリル付
- セキュリティ
- オートロック、防犯カメラ
- 室内設備
- エアコン、クロゼット、フローリング、室内洗濯置、シューズボックス、CATV、全居室収納、全居室洋室、全居室フローリング、ネット専用回線、24時間換気システム、玄関収納お部屋の詳しい情報を知りたい
- 部屋の特徴
- バルコニー、陽当り良好、通風良好、二階以上写真を送ってほしい
- 共用部
- エレベーター、駐輪場、宅配ボックス、バイク置場、敷地内ごみ置き場
- その他の特徴
- 保証会社利用可
無料で10秒! カンタンお問い合わせ
ルキシア薬院
敷
13.5万円礼
27万円同じ建物で掲載中の物件 (1件)
不動産会社からのコメント
★スマホで簡単! ご自宅から楽々! オンラインでお部屋探し♪
お客様のライフスタイルを考慮し、最適なお部屋をご提供致します。また、ただお部屋を探して終わりではなく、その後のフォローも含め、お客様と末永い関係を築いていければと考えております。
その他
- 駐車/駐輪
- 要確認 / あり駐車可能な車種や台数を知りたい
- 入居時期
- 2026年4月下旬最新の空室状況が知りたい
- 損保
- 1.66万円2年
- 保証人代行
- -
- その他費用
合計4.4万円(内訳:鍵交換代 44000円) 初期費用を知りたい- 情報
情報登録日:2026/3/21
情報更新日:2026/3/19
次回更新予定日:2026/4/4
- 備考
- 契約期間: 普通借家 2年 保証会社: 保証会社利用必 保証料:賃料等の50%(最低2万)、月額保証料:賃料等の1%(更新料無) その他:ペット飼育(小型犬1匹相談可 敷金+1ケ月) / 条件: ペット相談 / ほか初期費用: 合計4.4万円(内訳:鍵交換代 44000円)
取扱い会社
- 取扱い会社
- 株式会社ビッグ 福岡ブランチ条件が近い物件も紹介してほしい
- 免許番号
- 国土交通大臣(3)第7765号
- 取引態様
- 一般媒介
- 所在地
- 福岡県福岡市中央区今泉1-20-2 天神MENT4階
- 電話番号
- 092-762-3302
- 定休日
- なし(GW・お盆・年末年始)
おすすめ物件 (14件)
賃貸アパート
地下鉄七隈線 桜坂駅 3階建 新築
地下鉄七隈線 / 薬院大通駅 徒歩35分
新築 / 3階建
福岡県福岡市中央区小笹3
12.8万円 / 管理費7,000円
敷
無料礼
12.8万円2LDK / 55.17㎡ / 3階
賃貸アパート
Gentiana scabra
地下鉄七隈線 / 薬院大通駅 徒歩35分
新築 / 3階建
福岡県福岡市中央区小笹3
12.8万円 / 管理費7,000円
敷
無料礼
12.8万円2LDK / 55.17㎡ / 3階
賃貸マンション
quador Contigo高宮
地下鉄七隈線 / 薬院駅 徒歩25分
築1年 / 4階建
福岡県福岡市南区大楠3
14.8万円 / 管理費8,300円
敷
無料礼
14.8万円1LDK / 50.14㎡ / 2階
賃貸マンション
天神プレイス イースト
西鉄天神大牟田線 / 薬院駅 徒歩6分
築18年 / 17階建
福岡県福岡市中央区今泉1
13.4万円 / 管理費5,000円
敷
無料礼
26.8万円1LDK / 54.08㎡ / 12階
賃貸マンション
シャーメゾン西高宮
西鉄天神大牟田線 / 薬院駅 徒歩27分
築2年 / 3階建
福岡県福岡市南区高宮2
13.9万円 / 管理費7,000円
敷
無料礼
27.8万円1LDK / 58.47㎡ / 2階
賃貸マンション
西鉄天神大牟田線 薬院駅 17階建 築19年
西鉄天神大牟田線 / 薬院駅 徒歩6分
築18年 / 17階建
福岡県福岡市中央区今泉1
13.4万円 / 管理費5,000円
敷
無料礼
26.8万円1LDK / 54.08㎡ / 12階
賃貸マンション
アクタス薬院グランプレイス
西鉄天神大牟田線 / 薬院駅 徒歩13分
築4年 / 15階建
福岡県福岡市中央区白金2
13.8万円 / 管理費10,000円
敷
無料礼
27.6万円1LDK / 43.35㎡ / 15階
賃貸マンション
西鉄天神大牟田線 西鉄平尾駅 15階建 築4年
西鉄天神大牟田線 / 薬院駅 徒歩13分
築4年 / 15階建
福岡県福岡市中央区白金2
13.8万円 / 管理費10,000円
敷
無料礼
27.6万円1LDK / 43.35㎡ / 15階
賃貸マンション
JR鹿児島本線 博多駅 15階建 築18年
西鉄天神大牟田線 / 薬院駅 徒歩14分
築18年 / 15階建
福岡県福岡市博多区住吉3
11.6万円 / 管理費5,000円
敷
無料礼
無料1LDK / 44.09㎡ / 3階
賃貸マンション
レジデンス住吉

地下鉄七隈線 / 渡辺通駅 徒歩1分
築18年 / 15階建
福岡県福岡市博多区住吉3-5-5

11.6万円 / 管理費5,000円
敷
無料礼
無料1LDK / 44.09㎡ / 3階
賃貸マンション
quador Contigo平和

地下鉄七隈線 / 薬院大通駅 徒歩26分
新築 / 5階建
福岡県福岡市中央区平和3丁目

12.8万円 / 管理費8,300円
敷
無料礼
無料1LDK / 45.28㎡ / 2階
賃貸マンション
天神プレイス EAST棟

西鉄天神大牟田線 / 薬院駅 徒歩5分
築18年 / 17階建
福岡県福岡市中央区今泉1丁目

13.4万円 / 管理費5,000円
敷
無料礼
26.8万円1LDK / 54.08㎡ / 12階
賃貸マンション
MODERN PALAZZO South薬院

地下鉄七隈線 / 薬院駅 徒歩9分
新築 / 12階建
福岡県福岡市中央区大宮1丁目

15万円 / 管理費5,000円
敷
無料礼
無料2LDK / 44.73㎡ / 7階
賃貸アパート
地下鉄七隈線 桜坂駅 3階建 新築
地下鉄七隈線 / 薬院大通駅 徒歩35分
新築 / 3階建
福岡県福岡市中央区小笹3
12.8万円 / 管理費7,000円
敷
無料礼
12.8万円2LDK / 55.17㎡ / 3階
賃貸アパート
Gentiana scabra
地下鉄七隈線 / 薬院大通駅 徒歩35分
新築 / 3階建
福岡県福岡市中央区小笹3
12.8万円 / 管理費7,000円
敷
無料礼
12.8万円2LDK / 55.17㎡ / 3階
賃貸マンション
quador Contigo高宮
地下鉄七隈線 / 薬院駅 徒歩25分
築1年 / 4階建
福岡県福岡市南区大楠3
14.8万円 / 管理費8,300円
敷
無料礼
14.8万円1LDK / 50.14㎡ / 2階
賃貸マンション
天神プレイス イースト
西鉄天神大牟田線 / 薬院駅 徒歩6分
築18年 / 17階建
福岡県福岡市中央区今泉1
13.4万円 / 管理費5,000円
敷
無料礼
26.8万円1LDK / 54.08㎡ / 12階
賃貸マンション
シャーメゾン西高宮
西鉄天神大牟田線 / 薬院駅 徒歩27分
築2年 / 3階建
福岡県福岡市南区高宮2
13.9万円 / 管理費7,000円
敷
無料礼
27.8万円1LDK / 58.47㎡ / 2階
賃貸マンション
西鉄天神大牟田線 薬院駅 17階建 築19年
西鉄天神大牟田線 / 薬院駅 徒歩6分
築18年 / 17階建
福岡県福岡市中央区今泉1
13.4万円 / 管理費5,000円
敷
無料礼
26.8万円1LDK / 54.08㎡ / 12階
賃貸マンション
アクタス薬院グランプレイス
西鉄天神大牟田線 / 薬院駅 徒歩13分
築4年 / 15階建
福岡県福岡市中央区白金2
13.8万円 / 管理費10,000円
敷
無料礼
27.6万円1LDK / 43.35㎡ / 15階
賃貸マンション
西鉄天神大牟田線 西鉄平尾駅 15階建 築4年
西鉄天神大牟田線 / 薬院駅 徒歩13分
築4年 / 15階建
福岡県福岡市中央区白金2
13.8万円 / 管理費10,000円
敷
無料礼
27.6万円1LDK / 43.35㎡ / 15階
賃貸マンション
JR鹿児島本線 博多駅 15階建 築18年
西鉄天神大牟田線 / 薬院駅 徒歩14分
築18年 / 15階建
福岡県福岡市博多区住吉3
11.6万円 / 管理費5,000円
敷
無料礼
無料1LDK / 44.09㎡ / 3階
賃貸マンション
レジデンス住吉

地下鉄七隈線 / 渡辺通駅 徒歩1分
築18年 / 15階建
福岡県福岡市博多区住吉3-5-5

11.6万円 / 管理費5,000円
敷
無料礼
無料1LDK / 44.09㎡ / 3階
賃貸マンション
quador Contigo平和

地下鉄七隈線 / 薬院大通駅 徒歩26分
新築 / 5階建
福岡県福岡市中央区平和3丁目

12.8万円 / 管理費8,300円
敷
無料礼
無料1LDK / 45.28㎡ / 2階
賃貸マンション
天神プレイス EAST棟

西鉄天神大牟田線 / 薬院駅 徒歩5分
築18年 / 17階建
福岡県福岡市中央区今泉1丁目

13.4万円 / 管理費5,000円
敷
無料礼
26.8万円1LDK / 54.08㎡ / 12階
賃貸マンション
MODERN PALAZZO South薬院

地下鉄七隈線 / 薬院駅 徒歩9分
新築 / 12階建
福岡県福岡市中央区大宮1丁目

15万円 / 管理費5,000円
敷
無料礼
無料2LDK / 44.73㎡ / 7階
同じ最寄り駅 × 同じ特徴 で探す
)
