荒川区 10階建 2006年築1R/6階(東京都荒川区 / 南千住駅)の賃貸
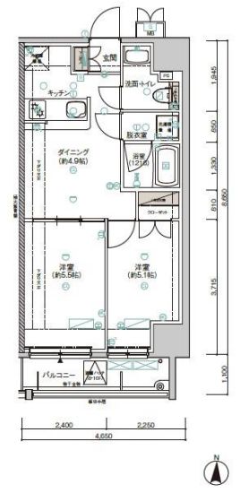
1/30
1/30
13.4万円
初期費用を知りたい管理費8,000円
- 敷金
- 13.4万円
- 保証金
- なし
- 礼金
- 13.4万円
- 広さ
- 40.23㎡
- 階数
- 6階 / 10階建
- 間取り
- 1R
- 建物
- マンション (鉄筋コンクリート)
- 築年数
- 築20年
- 向き
- 南
- 交通
- 東京メトロ日比谷線 / 南千住駅徒歩9分
- つくばエクスプレス / 南千住駅徒歩11分
- 住所
- 東京都荒川区南千住3丁目41-7
荒川区立汐入小学校 160m
コンビニエンスストア 380m
スーパーマーケット 450m
総合病院 260m
南千住駅(東京メトロ 日比谷線) 1110m
無料で10秒! カンタンお問い合わせ
荒川区 10階建 2006年築
敷
13.4万円礼
13.4万円特徴
バス・トイレ別
2階以上
エアコン付き
ペット相談可
駐車場あり
室内洗濯機置場
オートロック
洗面所独立
- 入居条件
- 楽器不可、保証人不要、事務所(SOHO)不可、ペット相談、ペット可、小型犬可、小型犬相談、大型犬不可、猫可、猫相談、中型犬不可、二人入居可最新の空室状況が知りたい
- バス・トイレ
- 給湯、専用バス、オートバス、追焚機能浴室、浴室乾燥機、シャワー、専用トイレ、温水洗浄便座、バストイレ別、洗面所独立
- キッチン
- ディスポーザー、ガスコンロ対応、3口以上コンロ、カウンターキッチン、システムキッチン
- セキュリティ
- オートロック、防犯カメラ、24時間セキュリティ
- 室内設備
- インターネット対応、光ファイバー、エアコン、冷房、クロゼット、シューズボックス、シューズインクロゼット、室内洗濯置、フローリングお部屋の詳しい情報を知りたい
- 部屋の特徴
- バルコニー、二階以上写真を送ってほしい
- 共用部
- エレベーター、宅配ボックス、駐輪場
- その他の特徴
- 定期借家、下水、公営水道、都市ガス
無料で10秒! カンタンお問い合わせ
荒川区 10階建 2006年築
敷
13.4万円礼
13.4万円不動産会社からのコメント
南千住駅徒歩9分 ペット相談可 オートロック 宅配ボックス 追い焚き・浴室乾燥機・カウンターキッチン
▼再契約手数料1.1ヶ月分▼ペット:小型犬・猫2匹まで、飼育の際は要別途契約(3300円/月)▼1年未満解約違約金賃料1ヶ月分▼解約予告1ヶ月前
その他
- 駐車/駐輪
- 無 / あり駐車可能な車種や台数を知りたい
- 入居時期
- 2026年6月下旬最新の空室状況が知りたい
- 損保
- 住宅保険: 要
- 保証人代行
- 加入要 会社名: その他 費用: 初期費用:賃料等の40%、月次保証料:賃料等の1%
- その他費用
初期費用を知りたい鍵交換費用:22,000円
- 情報
情報登録日:2026/4/24
情報更新日:2026/4/23
次回更新予定日:2026/5/1
- 備考
- 現況: 居住中 契約期間: 3年 ※定期借家
取扱い会社
- 取扱い会社
- スタートライングループ株式会社 三ノ輪店条件が近い物件も紹介してほしい
- 免許番号
- 東京都知事(6)第76891号
- 取引態様
- 仲介
- 所在地
- 東京都台東区根岸5丁目22-6 ブロッケンビル3F
- 電話番号
- 03-5849-4921
- 営業時間
- 10:00~19:00
- 定休日
- 水曜日(年末年始、GW、お盆)
- 所属団体名
- (公社)全日本不動産協会東京都本部
おすすめ物件 (8件)
賃貸マンション
ロイヤルパークスシーサー南千住
東京メトロ日比谷線 / 南千住駅 徒歩9分
築20年 / 10階建
東京都荒川区南千住3丁目41-7
13.1万円 / 管理費8,000円
敷
13.1万円礼
13.1万円ワンルーム / 42.01㎡ / 3階
賃貸マンション
スアヴィス三ノ輪
常磐線 / 南千住駅 徒歩19分
築2年 / 9階建
東京都台東区三ノ輪1丁目8-1
12.55万円 / 管理費8,300円
敷
無料礼
18.825万円1DK / 30.55㎡ / 8階
賃貸マンション
エルフォルテ東京EAST

常磐線 / 南千住駅 徒歩10分
築6年 / 11階建
東京都台東区日本堤2丁目

15.4万円 / 管理費20,000円
敷
15.4万円礼
15.4万円1LDK / 40.6㎡ / 2階
賃貸アパート
グラナーデ南千住
東京メトロ日比谷線 / 南千住駅 徒歩9分
築2年 / 3階建
東京都荒川区南千住6丁目59-7
13.4万円 / 管理費6,000円
敷
無料礼
13.4万円1LDK / 33.42㎡ / 2階
賃貸マンション
レオーネ南千住Ⅲ

東京メトロ日比谷線 / 南千住駅 徒歩10分
築6年 / 10階建
東京都台東区清川2丁目14-2

15.1万円 / 管理費15,000円
敷
無料礼
無料2DK / 40.22㎡ / 10階
賃貸マンション
ライジングプレイス浅草EAST

常磐線 / 南千住駅 徒歩14分
築11年 / 9階建
東京都台東区清川1丁目18-7

14.9万円 / 管理費15,000円
敷
無料礼
無料1LDK / 41.56㎡ / 6階
賃貸マンション
スプランディッド南千住DUE

東京メトロ日比谷線 / 南千住駅 徒歩11分
築2年 / 33階建
東京都台東区清川2丁目5-10

14万円 / 管理費10,500円
敷
無料礼
14万円1LDK / 31.5㎡ / 12階
賃貸マンション
ロイヤルパークスシーサー南千住
東京メトロ日比谷線 / 南千住駅 徒歩9分
築20年 / 10階建
東京都荒川区南千住3丁目41-7
13.1万円 / 管理費8,000円
敷
13.1万円礼
13.1万円ワンルーム / 42.01㎡ / 3階
賃貸マンション
スアヴィス三ノ輪
常磐線 / 南千住駅 徒歩19分
築2年 / 9階建
東京都台東区三ノ輪1丁目8-1
12.55万円 / 管理費8,300円
敷
無料礼
18.825万円1DK / 30.55㎡ / 8階
賃貸マンション
エルフォルテ東京EAST

常磐線 / 南千住駅 徒歩10分
築6年 / 11階建
東京都台東区日本堤2丁目

15.4万円 / 管理費20,000円
敷
15.4万円礼
15.4万円1LDK / 40.6㎡ / 2階
賃貸アパート
グラナーデ南千住
東京メトロ日比谷線 / 南千住駅 徒歩9分
築2年 / 3階建
東京都荒川区南千住6丁目59-7
13.4万円 / 管理費6,000円
敷
無料礼
13.4万円1LDK / 33.42㎡ / 2階
賃貸マンション
レオーネ南千住Ⅲ

東京メトロ日比谷線 / 南千住駅 徒歩10分
築6年 / 10階建
東京都台東区清川2丁目14-2

15.1万円 / 管理費15,000円
敷
無料礼
無料2DK / 40.22㎡ / 10階
賃貸マンション
ライジングプレイス浅草EAST

常磐線 / 南千住駅 徒歩14分
築11年 / 9階建
東京都台東区清川1丁目18-7

14.9万円 / 管理費15,000円
敷
無料礼
無料1LDK / 41.56㎡ / 6階
賃貸マンション
スプランディッド南千住DUE

東京メトロ日比谷線 / 南千住駅 徒歩11分
築2年 / 33階建
東京都台東区清川2丁目5-10

14万円 / 管理費10,500円
敷
無料礼
14万円1LDK / 31.5㎡ / 12階



