ロングハウス21K/3階(東京都大田区 / 大鳥居駅)の賃貸
1/20
1/20
9.1万円
初期費用を知りたい管理費5,800円
- 敷金
- 無料
- 保証金
- なし
- 礼金
- 13.65万円
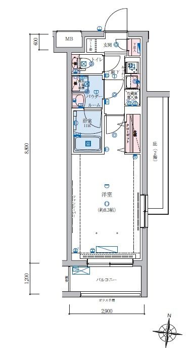
- 広さ
- 27.3㎡
- 階数
- 3階 / 4階建
- 間取り
- 1K
- 建物
- マンション (鉄筋コンクリート)
- 築年数
- 築19年
- 向き
- 南
- 交通
- 京急空港線 / 大鳥居駅徒歩5分
- 京急空港線 / 穴守稲荷駅徒歩7分
- 東京モノレール / 天空橋駅徒歩15分
- 住所
- 東京都大田区羽田1
リコス羽田1丁目店(スーパー)まで243m
まいばすけっと大鳥居駅南店(スーパー)まで364m
まいばすけっと穴守稲荷店(スーパー)まで462m
セブンイレブン大田区羽田1丁目店(コンビニ)まで348m
ファミリーマート羽田二丁目店(コンビニ)まで351m
セブンイレブン大田区萩中3丁目店(コンビニ)まで426m
無料で10秒! カンタンお問い合わせ
ロングハウス2
敷
無料礼
13.65万円特徴
バス・トイレ別
2階以上
エアコン付き
ペット相談可
駐車場あり
室内洗濯機置場
オートロック
洗面所独立
- 入居条件
- 保証人不要、保証金不要最新の空室状況が知りたい
- バス・トイレ
- バストイレ別、浴室乾燥機、追焚機能浴室、温水洗浄便座、脱衣所、洗面所独立、オートバス、洗面所にドア
- キッチン
- システムキッチン、2口コンロ
- セキュリティ
- オートロック、防犯カメラ
- 室内設備
- エアコン、クロゼット、フローリング、室内洗濯置、シューズボックス、全居室洋室、全居室フローリングお部屋の詳しい情報を知りたい
- 部屋の特徴
- バルコニー、陽当り良好、二階以上写真を送ってほしい
- 共用部
- エレベーター、宅配ボックス、敷地内ごみ置き場
- その他の特徴
- 都市ガス、保証会社利用可
無料で10秒! カンタンお問い合わせ
ロングハウス2
敷
無料礼
13.65万円不動産会社からのコメント
駅近徒歩5分の好立地!鉄筋コンクリート造のマンション!
バストイレ別、独立洗面台つき。お部屋も広々7畳ございます。
その他
- 駐車/駐輪
- 要確認 / なし駐車可能な車種や台数を知りたい
- 入居時期
- 損保
- 1.5万円2年
- 保証人代行
- -
- その他費用
合計5.33万円(内訳:退去時クリーニング代50000円 鍵交換代3300円) 初期費用を知りたい- 情報
情報登録日:2026/2/4
情報更新日:2026/2/3
次回更新予定日:2026/2/19
- 備考
- 保証会社: 保証会社利用必 初回保証料:22000円 月額保証料:総賃料2.2% その他:ほか初期費用: 合計5.33万円(内訳:退去時クリーニング代50000円 鍵交換代3300円) / ほか諸費用: 更新料:新賃料1ヵ月 更新事務手数料22000円 町会費:月額200円 24時間サポート代:月額330円
取扱い会社
- 取扱い会社
- 株式会社ルームコネクト条件が近い物件も紹介してほしい
- 免許番号
- 東京都知事(1)第103938号
- 取引態様
- 一般媒介
- 所在地
- 東京都品川区上大崎2丁目15-19 MG目黒駅前3F
- 電話番号
- 03-4530-3883
- 営業時間
- 10:00~19:00
- 定休日
- 水曜日
- 所属団体名
- 公益社団法人全国宅地建物取引業保証協会
おすすめ物件 (11件)
賃貸マンション
ARCOBALENO HANEDA

京急空港線 / 大鳥居駅 徒歩7分
築5年 / 5階建
東京都大田区本羽田3丁目1-13

9.5万円 / 管理費15,000円
敷
無料礼
9.5万円1K / 25.83㎡ / 3階
賃貸マンション
ハーモニーレジデンス羽田天空橋

東京モノレール / 天空橋駅 徒歩8分
築3年 / 4階建
東京都大田区羽田6丁目

10.4万円 / 管理費15,000円
敷
10.4万円礼
10.4万円1DK / 25.75㎡ / 3階
賃貸マンション
XEBEC大鳥居ASYLCOURT

京急空港線 / 大鳥居駅 徒歩6分
築5年 / 9階建
東京都大田区西糀谷3丁目

10.4万円 / 管理費15,000円
敷
無料礼
10.4万円1K / 25.68㎡ / 3階
賃貸マンション
ルーブル大鳥居伍番館

京急空港線 / 大鳥居駅 徒歩3分
築12年 / 9階建
東京都大田区東糀谷3丁目7-2

8.2万円 / 管理費10,000円
敷
無料礼
8.2万円1K / 25.48㎡ / 4階
賃貸マンション
ル・リオン大鳥居
京急空港線 / 大鳥居駅 徒歩4分
築14年 / 10階建
東京都大田区東糀谷2丁目14-15
8.65万円 / 管理費8,000円
敷
無料礼
8.65万円1K / 20.03㎡ / 4階
賃貸マンション
大田区 4階建 2023年築
東京モノレール / 天空橋駅 徒歩6分
築3年 / 4階建
東京都大田区羽田6丁目8-7
10.45万円 / 管理費15,000円
敷
10.45万円礼
10.45万円1DK / 22.7㎡ / 3階
賃貸マンション
ラフィスタ川崎大師
京急空港線 / 大鳥居駅 徒歩34分
築8年 / 7階建
神奈川県川崎市川崎区中瀬3丁目15-3
7.3万円 / 管理費10,000円
敷
無料礼
7.3万円1K / 21.7㎡ / 7階
賃貸マンション
ARCOBALENO HANEDA

京急空港線 / 大鳥居駅 徒歩7分
築5年 / 5階建
東京都大田区本羽田3丁目1-13

9.5万円 / 管理費15,000円
敷
無料礼
9.5万円1K / 25.83㎡ / 3階
賃貸マンション
ハーモニーレジデンス羽田天空橋

東京モノレール / 天空橋駅 徒歩8分
築3年 / 4階建
東京都大田区羽田6丁目

10.4万円 / 管理費15,000円
敷
10.4万円礼
10.4万円1DK / 25.75㎡ / 3階
賃貸マンション
XEBEC大鳥居ASYLCOURT

京急空港線 / 大鳥居駅 徒歩6分
築5年 / 9階建
東京都大田区西糀谷3丁目

10.4万円 / 管理費15,000円
敷
無料礼
10.4万円1K / 25.68㎡ / 3階
賃貸マンション
ルーブル大鳥居伍番館

京急空港線 / 大鳥居駅 徒歩3分
築12年 / 9階建
東京都大田区東糀谷3丁目7-2

8.2万円 / 管理費10,000円
敷
無料礼
8.2万円1K / 25.48㎡ / 4階
賃貸マンション
ル・リオン大鳥居
京急空港線 / 大鳥居駅 徒歩4分
築14年 / 10階建
東京都大田区東糀谷2丁目14-15
8.65万円 / 管理費8,000円
敷
無料礼
8.65万円1K / 20.03㎡ / 4階
賃貸マンション
大田区 4階建 2023年築
東京モノレール / 天空橋駅 徒歩6分
築3年 / 4階建
東京都大田区羽田6丁目8-7
10.45万円 / 管理費15,000円
敷
10.45万円礼
10.45万円1DK / 22.7㎡ / 3階
賃貸マンション
ラフィスタ川崎大師
京急空港線 / 大鳥居駅 徒歩34分
築8年 / 7階建
神奈川県川崎市川崎区中瀬3丁目15-3
7.3万円 / 管理費10,000円
敷
無料礼
7.3万円1K / 21.7㎡ / 7階








