ブルックサイドレジデンス木場1LDK/2階(東京都江東区 / 木場駅)の賃貸
1/4
1/4
20.4万円
初期費用を知りたい管理費20,000円
家賃割引サービス適用で最大2年間4.8万円割引
- 敷金
- 20.4万円
- 保証金
- なし
- 礼金
- 無料
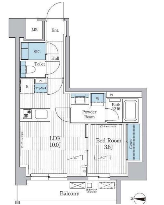
- 広さ
- 39.87㎡
- 階数
- 2階 / 18階建
- 間取り
- 1LDK
- 建物
- マンション (鉄筋コンクリート)
- 築年数
- 新築
- 向き
- 北
- 交通
- 東京メトロ東西線 / 木場駅徒歩9分
- 京葉線 / 潮見駅徒歩21分
- 住所
- 東京都江東区塩浜2丁目8-1
江東区立枝川小学校 860m
コンビニエンスストア 150m
スーパーマーケット 310m
総合病院 500m
木場駅(東京メトロ 東西線) 1040m
無料で10秒! カンタンお問い合わせ
ブルックサイドレジデンス木場
敷
20.4万円礼
無料特徴
バス・トイレ別
2階以上
エアコン付き
ペット相談可
駐車場あり
室内洗濯機置場
オートロック
洗面所独立
- 入居条件
- 保証人不要、ペット相談、ペット可、小型犬可、小型犬相談、二人入居可最新の空室状況が知りたい
- バス・トイレ
- 給湯、専用バス、オートバス、追焚機能浴室、浴室乾燥機、シャワー、専用トイレ、バストイレ別、洗面所独立
- キッチン
- ガスコンロ対応、2口コンロ、システムキッチン
- セキュリティ
- オートロック
- 室内設備
- インターネット対応、光ファイバー、エアコン、冷房、クロゼット、全居室収納、シューズボックス、室内洗濯置、フローリングお部屋の詳しい情報を知りたい
- 部屋の特徴
- バルコニー、二階以上写真を送ってほしい
- 共用部
- エレベーター、宅配ボックス
- その他の特徴
- 定期借家、下水、公営水道、都市ガス
無料で10秒! カンタンお問い合わせ
ブルックサイドレジデンス木場
敷
20.4万円礼
無料同じ建物で掲載中の物件 (49件)
不動産会社からのコメント
新築 礼金0 木場駅徒歩9分 ペット相談可 追焚 独立洗面台 浴室乾燥機 宅配ロッカー オートロック
退去時ACクリーニング費用借主負担 1年未満短期解約違約金(1カ月) 法人契約敷金礼金1ヶ月積み増し
その他
- 駐車/駐輪
- 要確認 / なし駐車可能な車種や台数を知りたい
- 入居時期
- 2026年3月中旬最新の空室状況が知りたい
- 損保
- 住宅保険: 要
- 保証人代行
- 加入要 会社名: その他 費用: 初回月額賃料等の50% 2年目以降10000円 口座振替手数料:300円/月
- その他費用
初期費用を知りたい室内清掃費用:48,400円
口座振替事務手数料/月:110円
- 情報
情報登録日:2026/1/26
情報更新日:2026/1/25
次回更新予定日:2026/2/4
- 備考
- 現況: 未完成 状態: 未入居 契約期間: 2年 ※定期借家
取扱い会社
- 取扱い会社
- スタートライングループ株式会社 パークサイド木場店条件が近い物件も紹介してほしい
- 免許番号
- 東京都知事(6)第76891号
- 取引態様
- 仲介
- 所在地
- 東京都江東区木場2-19-14 山加ビル1F
- 電話番号
- 03-6240-3376
- 営業時間
- 10:00~19:00
- 定休日
- 受付:年中無休/店舗:水曜日(年末年始/GW/お盆)
- 所属団体名
- 公益社団法人全日本不動産協会
おすすめ物件 (10件)
賃貸マンション
パークアクシス東陽町レジデンス

東京メトロ東西線 / 木場駅 徒歩13分
築4年 / 12階建
東京都江東区東陽5丁目31-12

20.4万円 / 管理費18,000円
敷
20.4万円礼
無料1LDK / 37.59㎡ / 2階
賃貸マンション
ブランシエスタ木場
東京メトロ東西線 / 木場駅 徒歩7分
新築 / 11階建
東京都江東区木場6丁目15-6
21.5万円 / 管理費20,000円
敷
21.5万円礼
無料2LDK / 39.19㎡ / 4階
賃貸マンション
江東区 13階建 2025年築
京葉線 / 潮見駅 徒歩20分
新築 / 13階建
東京都江東区枝川1丁目14-10
20.8万円 / 管理費12,000円
敷
20.8万円礼
無料2LDK / 39.8㎡ / 3階
賃貸マンション
パークアクシス木場

東京メトロ東西線 / 木場駅 徒歩2分
築12年 / 13階建
東京都江東区木場2丁目18-4

19.8万円 / 管理費12,000円
敷
19.8万円礼
無料1LDK / 37.49㎡ / 8階
賃貸マンション
クレストコート木場

東京メトロ東西線 / 木場駅 徒歩4分
築4年 / 12階建
東京都江東区東陽3丁目6-7

18.5万円 / 管理費15,000円
敷
無料礼
無料1LDK / 38.34㎡ / 5階
賃貸マンション
コンフォリア・リヴ木場

東京メトロ東西線 / 木場駅 徒歩2分
築2年 / 15階建
東京都江東区木場5丁目4-7

18.9万円 / 管理費10,000円
敷
18.9万円礼
無料2DK / 36.92㎡ / 6階
賃貸マンション
trias313

東京メトロ東西線 / 木場駅 徒歩5分
新築 / 5階建
東京都江東区東陽3丁目13-8

20.7万円 / 管理費18,000円
敷
無料礼
無料2LDK / 40.06㎡ / 4階
賃貸マンション
クレストコート東陽町
東京メトロ東西線 / 木場駅 徒歩9分
新築 / 14階建
東京都江東区東陽3丁目22
22.3万円 / 管理費15,000円
敷
22.3万円礼
無料2LDK / 39.39㎡ / 6階
賃貸マンション
ブルックサイドレジデンス木場
東京メトロ東西線 / 木場駅 徒歩9分
新築 / 18階建
東京都江東区塩浜2丁目8-1
21.9万円 / 管理費30,000円
敷
21.9万円礼
無料2LDK / 46.63㎡ / 3階
賃貸マンション
パークアクシス東陽町レジデンス

東京メトロ東西線 / 木場駅 徒歩13分
築4年 / 12階建
東京都江東区東陽5丁目31-12

20.4万円 / 管理費18,000円
敷
20.4万円礼
無料1LDK / 37.59㎡ / 2階
賃貸マンション
ブランシエスタ木場
東京メトロ東西線 / 木場駅 徒歩7分
新築 / 11階建
東京都江東区木場6丁目15-6
21.5万円 / 管理費20,000円
敷
21.5万円礼
無料2LDK / 39.19㎡ / 4階
賃貸マンション
江東区 13階建 2025年築
京葉線 / 潮見駅 徒歩20分
新築 / 13階建
東京都江東区枝川1丁目14-10
20.8万円 / 管理費12,000円
敷
20.8万円礼
無料2LDK / 39.8㎡ / 3階
賃貸マンション
パークアクシス木場

東京メトロ東西線 / 木場駅 徒歩2分
築12年 / 13階建
東京都江東区木場2丁目18-4

19.8万円 / 管理費12,000円
敷
19.8万円礼
無料1LDK / 37.49㎡ / 8階
賃貸マンション
クレストコート木場

東京メトロ東西線 / 木場駅 徒歩4分
築4年 / 12階建
東京都江東区東陽3丁目6-7

18.5万円 / 管理費15,000円
敷
無料礼
無料1LDK / 38.34㎡ / 5階
賃貸マンション
コンフォリア・リヴ木場

東京メトロ東西線 / 木場駅 徒歩2分
築2年 / 15階建
東京都江東区木場5丁目4-7

18.9万円 / 管理費10,000円
敷
18.9万円礼
無料2DK / 36.92㎡ / 6階
賃貸マンション
trias313

東京メトロ東西線 / 木場駅 徒歩5分
新築 / 5階建
東京都江東区東陽3丁目13-8

20.7万円 / 管理費18,000円
敷
無料礼
無料2LDK / 40.06㎡ / 4階
賃貸マンション
クレストコート東陽町
東京メトロ東西線 / 木場駅 徒歩9分
新築 / 14階建
東京都江東区東陽3丁目22
22.3万円 / 管理費15,000円
敷
22.3万円礼
無料2LDK / 39.39㎡ / 6階
賃貸マンション
ブルックサイドレジデンス木場
東京メトロ東西線 / 木場駅 徒歩9分
新築 / 18階建
東京都江東区塩浜2丁目8-1
21.9万円 / 管理費30,000円
敷
21.9万円礼
無料2LDK / 46.63㎡ / 3階
同じ最寄り駅 × 同じ特徴 で探す
同じ市区町村 × 同じ特徴 で探す





)
)
)
)
)
)
)
)
)
)
