LOC’S MUSASHINAKAHARA1K/3階/309(神奈川県川崎市中原区 / 武蔵中原駅)の賃貸
1/18
1/18
10.8万円
初期費用を知りたい管理費8,000円
- 敷金
- 10.8万円
- 保証金
- なし
- 礼金
- 10.8万円
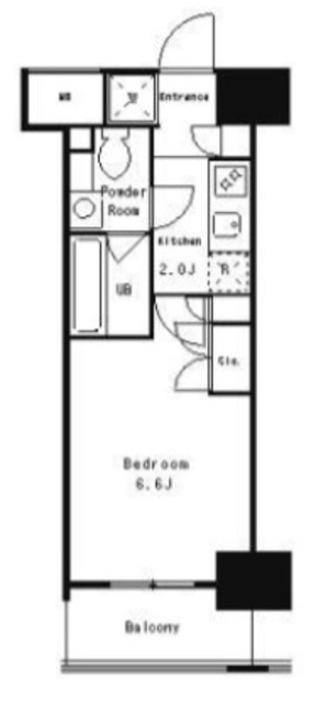
- 広さ
- 25.47㎡
- 階数
- 3階 / 5階建
- 間取り
- 1K
- 建物
- マンション (鉄筋コンクリート)
- 築年数
- 築2年
- 向き
- 東
- 交通
- 南武線 / 武蔵中原駅徒歩6分
- 南武線 / 武蔵小杉駅徒歩29分
- 住所
- 神奈川県川崎市中原区上小田中3丁目1-1
コンビニエンスストア 406m
ドラッグストア 390m
無料で10秒! カンタンお問い合わせ

LOC’S MUSASHINAKAHARA
敷
10.8万円礼
10.8万円特徴
バス・トイレ別
2階以上
エアコン付き
ペット相談可
駐車場あり
室内洗濯機置場
オートロック
洗面所独立
- 入居条件
- 保証人不要、初期費用カード決済可最新の空室状況が知りたい
- バス・トイレ
- 温水洗浄便座、浴室乾燥機、洗面所独立、専用バス、バストイレ別
- キッチン
- システムキッチン、2口コンロ
- セキュリティ
- 防犯カメラ、オートロック
- 室内設備
- クロゼット、エアコン、室内洗濯置、フローリングお部屋の詳しい情報を知りたい
- 部屋の特徴
- バルコニー、二階以上写真を送ってほしい
- 共用部
- 宅配ボックス、敷地内駐車場
- その他の特徴
- デザイナーズ、公営水道、都市ガス、下水、駐車場あり
無料で10秒! カンタンお問い合わせ

LOC’S MUSASHINAKAHARA
敷
10.8万円礼
10.8万円その他
- 駐車/駐輪
- 空有 費用: 19,800円 税: 税込み 空き数: 1 / なし駐車可能な車種や台数を知りたい
- 入居時期
- 2026年3月中旬最新の空室状況が知りたい
- 損保
- 住宅保険: 要
- 保証人代行
- 加入要 会社名: その他 費用: 初回契約時:50%、更新時:10000円
- その他費用
- 情報
情報登録日:2026/2/1
情報更新日:2026/2/1
次回更新予定日:2026/2/8
- 備考
- 現況: 居住中 更新料: 新賃料の1.0ヶ月分 契約期間: 2年 総戸数: 116戸 その他交通: JR南武線武蔵新城駅 徒歩11分 自社管理番号: 13622793
取扱い会社
- 取扱い会社
- 株式会社日商ベックス 川崎駅前店条件が近い物件も紹介してほしい
- 免許番号
- 国土交通大臣(10)第3273号
- 取引態様
- 仲介
- 所在地
- 神奈川県川崎市川崎区砂子2丁目3-3 KAGAYA M BLD 2階
- 電話番号
- 044-589-9040
- 定休日
- 水曜日(夏季休暇、年末年始等)
- 所属団体名
- 全国住宅産業協会
おすすめ物件 (18件)
賃貸マンション
川崎市中原区中丸子 7階建 2022年築

湘南新宿ライン高海 / 武蔵小杉駅 徒歩19分
築4年 / 7階建
神奈川県川崎市中原区中丸子592-3

10.45万円 / 管理費6,500円
敷
無料礼
10.45万円1K / 25.52㎡ / 4階
賃貸マンション
レアライズ武蔵小杉Ⅱ

湘南新宿ライン宇須 / 武蔵小杉駅 徒歩10分
築2年 / 7階建
神奈川県川崎市中原区上丸子山王町1丁目1447-2

10.5万円 / 管理費10,000円
敷
無料礼
10.5万円1K / 22.25㎡ / 2階
賃貸マンション
川崎市中原区市ノ坪 7階建 2015年築

東急東横線 / 武蔵小杉駅 徒歩6分
築11年 / 7階建
神奈川県川崎市中原区市ノ坪

10.7万円 / 管理費11,000円
敷
無料礼
10.7万円1K / 20.59㎡ / 6階
賃貸マンション
リブリ・新丸子

東急東横線 / 武蔵小杉駅 徒歩15分
築11年 / 8階建
神奈川県川崎市中原区上丸子八幡町605-4

10.7万円 / 管理費6,000円
敷
無料礼
26.75万円1K / 26.03㎡ / 3階
賃貸マンション
川崎市中原区小杉町2丁目 5階建 2019年築

東急東横線 / 武蔵小杉駅 徒歩10分
築7年 / 5階建
神奈川県川崎市中原区小杉町2丁目207-3

12.45万円 / 管理費16,000円
敷
無料礼
12.45万円1DK / 25.52㎡ / 4階
賃貸マンション
川崎市中原区上丸子山王町2丁目 7階建 2007年築

東急東横線 / 武蔵小杉駅 徒歩6分
築19年 / 7階建
神奈川県川崎市中原区上丸子山王町2丁目

11.8万円 / 管理費11,000円
敷
無料礼
11.8万円1K / 24.45㎡ / 3階
賃貸マンション
ルーブル武蔵中原伍番館

南武線 / 武蔵中原駅 徒歩9分
新築 / 5階建
神奈川県川崎市中原区下小田中4丁目17-32

10.5万円 / 管理費9,000円
敷
無料礼
10.5万円1K / 25.53㎡ / 2階
賃貸マンション
パークキューブ武蔵小杉

南武線 / 武蔵小杉駅 徒歩7分
築17年 / 14階建
神奈川県川崎市 中原区新丸子東2丁目890-1

12万円 / 管理費7,000円
敷
12万円礼
無料1K / 22.42㎡ / 13階
賃貸マンション
CS1913

東急東横線 / 武蔵小杉駅 徒歩5分
築17年 / 5階建
神奈川県川崎市 中原区新丸子東1丁目982-2

9万円 / 管理費3,000円
敷
9万円礼
9万円ワンルーム / 20.94㎡ / 5階
賃貸マンション
パロス・コート

南武線 / 武蔵中原駅 徒歩22分
築17年 / 5階建
神奈川県川崎市 中原区上小田中1丁目28-6

9.2万円 / 管理費6,000円
敷
9.2万円礼
9.2万円1K / 26.4㎡ / 3階
賃貸マンション
ルミエール武蔵中原

南武線 / 武蔵中原駅 徒歩3分
築12年 / 5階建
神奈川県川崎市中原区下小田中2丁目3-14

11万円 / 管理費10,500円
敷
無料礼
22万円1DK / 29.94㎡ / 3階
賃貸マンション
川崎市中原区 6階建 2016年築
湘南新宿ライン宇須 / 武蔵小杉駅 徒歩6分
築10年 / 6階建
神奈川県川崎市中原区中丸子246-1
9.5万円 / 管理費15,000円
敷
無料礼
無料1K / 20.9㎡ / 2階
賃貸マンション
ARCOBALENO MUSASHIKOSUGI
湘南新宿ライン高海 / 武蔵小杉駅 徒歩12分
築5年 / 7階建
神奈川県川崎市中原区市ノ坪361-7
9.4万円 / 管理費15,000円
敷
無料礼
4.7万円1K / 21.5㎡ / 7階
賃貸マンション
川崎市中原区 7階建 2020年築
横須賀線 / 武蔵小杉駅 徒歩10分
築6年 / 7階建
神奈川県川崎市中原区市ノ坪365
9.6万円 / 管理費10,000円
敷
無料礼
9.6万円1K / 20.7㎡ / 6階
賃貸マンション
川崎市中原区 9階建 2022年築
横須賀線 / 武蔵小杉駅 徒歩5分
築4年 / 9階建
神奈川県川崎市中原区新丸子東2丁目896-25
12.3万円 / 管理費10,000円
敷
無料礼
無料1K / 20.6㎡ / 7階
賃貸マンション
ロアール武蔵新城

南武線 / 武蔵中原駅 徒歩16分
築9年 / 11階建
神奈川県川崎市中原区新城3丁目9-3

9万円 / 管理費10,000円
敷
無料礼
9万円1K / 20.52㎡ / 11階
賃貸マンション
川崎市中原区 4階建 2026年築
南武線 / 武蔵小杉駅 徒歩13分
新築 / 4階建
神奈川県川崎市中原区上丸子天神町315-1
11.75万円 / 管理費9,100円
敷
11.75万円礼
11.75万円1K / 25.1㎡ / 4階
賃貸マンション
川崎市中原区中丸子 7階建 2022年築

湘南新宿ライン高海 / 武蔵小杉駅 徒歩19分
築4年 / 7階建
神奈川県川崎市中原区中丸子592-3

10.45万円 / 管理費6,500円
敷
無料礼
10.45万円1K / 25.52㎡ / 4階
賃貸マンション
レアライズ武蔵小杉Ⅱ

湘南新宿ライン宇須 / 武蔵小杉駅 徒歩10分
築2年 / 7階建
神奈川県川崎市中原区上丸子山王町1丁目1447-2

10.5万円 / 管理費10,000円
敷
無料礼
10.5万円1K / 22.25㎡ / 2階
賃貸マンション
川崎市中原区市ノ坪 7階建 2015年築

東急東横線 / 武蔵小杉駅 徒歩6分
築11年 / 7階建
神奈川県川崎市中原区市ノ坪

10.7万円 / 管理費11,000円
敷
無料礼
10.7万円1K / 20.59㎡ / 6階
賃貸マンション
リブリ・新丸子

東急東横線 / 武蔵小杉駅 徒歩15分
築11年 / 8階建
神奈川県川崎市中原区上丸子八幡町605-4

10.7万円 / 管理費6,000円
敷
無料礼
26.75万円1K / 26.03㎡ / 3階
賃貸マンション
川崎市中原区小杉町2丁目 5階建 2019年築

東急東横線 / 武蔵小杉駅 徒歩10分
築7年 / 5階建
神奈川県川崎市中原区小杉町2丁目207-3

12.45万円 / 管理費16,000円
敷
無料礼
12.45万円1DK / 25.52㎡ / 4階
賃貸マンション
川崎市中原区上丸子山王町2丁目 7階建 2007年築

東急東横線 / 武蔵小杉駅 徒歩6分
築19年 / 7階建
神奈川県川崎市中原区上丸子山王町2丁目

11.8万円 / 管理費11,000円
敷
無料礼
11.8万円1K / 24.45㎡ / 3階
賃貸マンション
ルーブル武蔵中原伍番館

南武線 / 武蔵中原駅 徒歩9分
新築 / 5階建
神奈川県川崎市中原区下小田中4丁目17-32

10.5万円 / 管理費9,000円
敷
無料礼
10.5万円1K / 25.53㎡ / 2階
賃貸マンション
パークキューブ武蔵小杉

南武線 / 武蔵小杉駅 徒歩7分
築17年 / 14階建
神奈川県川崎市 中原区新丸子東2丁目890-1

12万円 / 管理費7,000円
敷
12万円礼
無料1K / 22.42㎡ / 13階
賃貸マンション
CS1913

東急東横線 / 武蔵小杉駅 徒歩5分
築17年 / 5階建
神奈川県川崎市 中原区新丸子東1丁目982-2

9万円 / 管理費3,000円
敷
9万円礼
9万円ワンルーム / 20.94㎡ / 5階
賃貸マンション
パロス・コート

南武線 / 武蔵中原駅 徒歩22分
築17年 / 5階建
神奈川県川崎市 中原区上小田中1丁目28-6

9.2万円 / 管理費6,000円
敷
9.2万円礼
9.2万円1K / 26.4㎡ / 3階
賃貸マンション
ルミエール武蔵中原

南武線 / 武蔵中原駅 徒歩3分
築12年 / 5階建
神奈川県川崎市中原区下小田中2丁目3-14

11万円 / 管理費10,500円
敷
無料礼
22万円1DK / 29.94㎡ / 3階
賃貸マンション
川崎市中原区 6階建 2016年築
湘南新宿ライン宇須 / 武蔵小杉駅 徒歩6分
築10年 / 6階建
神奈川県川崎市中原区中丸子246-1
9.5万円 / 管理費15,000円
敷
無料礼
無料1K / 20.9㎡ / 2階
賃貸マンション
ARCOBALENO MUSASHIKOSUGI
湘南新宿ライン高海 / 武蔵小杉駅 徒歩12分
築5年 / 7階建
神奈川県川崎市中原区市ノ坪361-7
9.4万円 / 管理費15,000円
敷
無料礼
4.7万円1K / 21.5㎡ / 7階
賃貸マンション
川崎市中原区 7階建 2020年築
横須賀線 / 武蔵小杉駅 徒歩10分
築6年 / 7階建
神奈川県川崎市中原区市ノ坪365
9.6万円 / 管理費10,000円
敷
無料礼
9.6万円1K / 20.7㎡ / 6階
賃貸マンション
川崎市中原区 9階建 2022年築
横須賀線 / 武蔵小杉駅 徒歩5分
築4年 / 9階建
神奈川県川崎市中原区新丸子東2丁目896-25
12.3万円 / 管理費10,000円
敷
無料礼
無料1K / 20.6㎡ / 7階
賃貸マンション
ロアール武蔵新城

南武線 / 武蔵中原駅 徒歩16分
築9年 / 11階建
神奈川県川崎市中原区新城3丁目9-3

9万円 / 管理費10,000円
敷
無料礼
9万円1K / 20.52㎡ / 11階
賃貸マンション
川崎市中原区 4階建 2026年築
南武線 / 武蔵小杉駅 徒歩13分
新築 / 4階建
神奈川県川崎市中原区上丸子天神町315-1
11.75万円 / 管理費9,100円
敷
11.75万円礼
11.75万円1K / 25.1㎡ / 4階

















