N’s PARK Residence 高田馬場1K/6階/601(東京都新宿区 / 下落合駅)の賃貸
1/30
1/30
12.4万円
初期費用を知りたい管理費15,000円
適用で最大2年間4.8万円割引
本物件のヘヤワリ適用可否については、不動産会社へご確認ください。
- 敷金
- 12.4万円
- 保証金
- なし
- 礼金
- 18.6万円
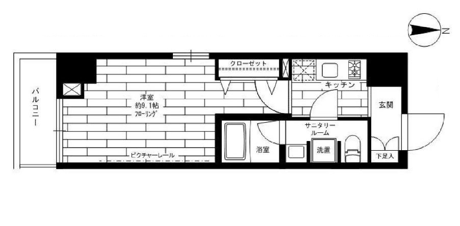
- 広さ
- 30.09㎡
- 階数
- 6階 / 9階建
- 間取り
- 1K
- 建物
- マンション (鉄筋コンクリート)
- 築年数
- 築7年
- 向き
- 西
- 交通
- 西武新宿線 / 下落合駅徒歩5分
- 山手線 / 高田馬場駅徒歩10分
- 住所
- 東京都新宿区下落合1丁目10-9
コンビニエンスストア 298m
スーパーマーケット 396m
ドラッグストア 316m
BIGBOX 880m
無料で10秒! カンタンお問い合わせ
N’s PARK Residence 高田馬場
敷
12.4万円礼
18.6万円特徴
バス・トイレ別
2階以上
エアコン付き
ペット相談可
駐車場あり
室内洗濯機置場
オートロック
洗面所独立
- 入居条件
- 保証人不要、二人入居可最新の空室状況が知りたい
- バス・トイレ
- 追焚機能浴室、浴室乾燥機、温水洗浄便座、給湯、専用バス、シャワー、専用トイレ、バストイレ別、洗面所独立
- キッチン
- ガスコンロ対応、3口以上コンロ、システムキッチン
- セキュリティ
- 防犯カメラ、オートロック、24時間セキュリティ
- 室内設備
- BS、トランクルーム、シューズボックス、フローリング、エアコン、室内洗濯置、インターネット対応、ネット使用料不要お部屋の詳しい情報を知りたい
- 部屋の特徴
- バルコニー、角住戸、眺望が良い、二階以上写真を送ってほしい
- 共用部
- エレベーター、宅配ボックス、駐輪場、バイク置場、敷地内駐車場
- その他の特徴
- 都市ガス、外壁タイル張り、駐車場あり
無料で10秒! カンタンお問い合わせ
N’s PARK Residence 高田馬場
敷
12.4万円礼
18.6万円同じ建物で掲載中の物件 (1件)
不動産会社からのコメント
お部屋探しはタウンハウジング御茶ノ水店にお任せ!
初期費用のクレジット払いご相談可能ですので、ご要望の方はお気軽にお問い合わせください!
その他
- 駐車/駐輪
- 空有 費用: 27,000円 税: 税込み 距離: 0m / あり駐車可能な車種や台数を知りたい
- 入居時期
- 2026年3月上旬最新の空室状況が知りたい
- 損保
- 住宅保険: 要
- 保証人代行
- 加入要 会社名: その他 費用: 保証料:賃料等の50%(最低2万)、月次保証料:賃料等の1%(更新料無)
- その他費用
初期費用を知りたい除菌消臭費用:11,000円
自治会費/月:100円
- 情報
情報登録日:2026/2/26
情報更新日:2026/2/25
次回更新予定日:2026/3/5
- 備考
- 現況: 居住中 更新料: 124,000円 契約期間: 2年 総戸数: 76戸
取扱い会社
- 取扱い会社
- 株式会社タウンハウジング 御茶ノ水店条件が近い物件も紹介してほしい
- 免許番号
- 国土交通大臣(1)9926号
- 取引態様
- 仲介
- 所在地
- 東京都千代田区神田小川町3丁目 20 第2龍名館ビル1階
- 電話番号
- 03-5577-0020
- 営業時間
- 10:00~19:00
- 定休日
- 水曜日
- 所属団体名
- 東京都宅地建物取引業協会
おすすめ物件 (20件)
賃貸マンション
レジディア目白

東京メトロ東西線 / 高田馬場駅 徒歩10分
築27年 / 地上10階地下1階建
東京都豊島区高田2丁目7-2

13.1万円 / 管理費20,000円
敷
無料礼
無料ワンルーム / 33㎡ / 8階
賃貸マンション
プロスタイルウェルス西早稲田

東京メトロ東西線 / 高田馬場駅 徒歩10分
築9年 / 12階建
東京都新宿区西早稲田3丁目31-2

12万円 / 管理費8,000円
敷
12万円礼
12万円1K / 25.31㎡ / 5階
賃貸マンション
S-RESIDENCE 雑司が谷

山手線 / 高田馬場駅 徒歩12分
築8年 / 8階建
東京都豊島区高田2丁目2-13

11.4万円 / 管理費14,000円
敷
無料礼
11.4万円1K / 25.53㎡ / 4階
賃貸マンション
ステージグランデ目白学習院下

東京メトロ東西線 / 高田馬場駅 徒歩13分
築7年 / 12階建
東京都豊島区高田2丁目4-16

12.7万円 / 管理費5,000円
敷
12.7万円礼
12.7万円1K / 28.2㎡ / 2階
賃貸マンション
新宿区西落合1丁目 4階建 2018年築

西武新宿線 / 下落合駅 徒歩8分
築8年 / 4階建
東京都新宿区西落合1丁目

13.7万円 / 管理費10,000円
敷
無料礼
無料1K / 30.6㎡ / 2階
賃貸マンション
レジディア中落合B棟
西武新宿線 / 下落合駅 徒歩5分
築18年 / 7階建
東京都新宿区中落合1丁目
10.5万円 / 管理費15,000円
敷
無料礼
無料ワンルーム / 24.09㎡ / 3階
賃貸マンション
パークアクシス高田馬場テラス
東京メトロ東西線 / 高田馬場駅 徒歩5分
築13年 / 6階建
東京都新宿区高田馬場2丁目
12.8万円 / 管理費10,000円
敷
12.8万円礼
12.8万円1K / 25.69㎡ / 5階
賃貸マンション
シーズンフラッツ高田馬場リバーサイドサウス
西武新宿線 / 下落合駅 徒歩7分
築4年 / 6階建
東京都新宿区高田馬場3丁目
14.3万円 / 管理費10,000円
敷
無料礼
無料1LDK / 28.32㎡ / 2階
賃貸マンション
フェニックス高田馬場弐番館
西武新宿線 / 高田馬場駅 徒歩10分
築19年 / 5階建
東京都新宿区高田馬場4丁目37-11
13.2万円 / 管理費16,000円
敷
13.2万円礼
13.2万円1LDK / 39.77㎡ / 3階
賃貸マンション
ジェノヴィア新宿中落合スカイガーデン
西武新宿線 / 下落合駅 徒歩12分
築7年 / 9階建
東京都新宿区中落合2丁目12-29
11.6万円 / 管理費15,000円
敷
無料礼
17.4万円1K / 25.85㎡ / 4階
賃貸マンション
THE PREMIUM CUBE G 東中野

西武新宿線 / 下落合駅 徒歩13分
築3年 / 5階建
東京都中野区東中野5丁目20-7

14万円 / 管理費15,000円
敷
14万円礼
14万円1K / 28.87㎡ / 2階
賃貸マンション
ZOOM新宿下落合

西武新宿線 / 下落合駅 徒歩3分
築8年 / 11階建
東京都新宿区下落合4丁目2-6

14.2万円 / 管理費11,000円
敷
無料礼
14.2万円ワンルーム / 25.36㎡ / 3階
賃貸マンション
N’s PARK Residence 高田馬場

西武新宿線 / 下落合駅 徒歩5分
築7年 / 9階建
東京都新宿区下落合1丁目

12.5万円 / 管理費15,000円
敷
12.5万円礼
18.75万円1K / 31.08㎡ / 2階
賃貸マンション
新宿区西早稲田2丁目 7階建 2006年築

東京メトロ東西線 / 高田馬場駅 徒歩9分
築20年 / 7階建
東京都新宿区西早稲田2丁目

13.1万円 / 管理費10,000円
敷
13.1万円礼
13.1万円1K / 30.02㎡ / 5階
賃貸マンション
レガリス高田馬場Ⅱ

西武新宿線 / 下落合駅 徒歩5分
築1年 / 9階建
東京都新宿区下落合1丁目

12.5万円 / 管理費15,000円
敷
12.5万円礼
12.5万円ワンルーム / 26.22㎡ / 3階
賃貸マンション
ルーブル高田馬場

山手線 / 高田馬場駅 徒歩9分
築23年 / 5階建
東京都新宿区高田馬場4丁目

12.38万円 / 管理費16,200円
敷
無料礼
12.38万円1K / 29.16㎡ / 5階
賃貸マンション
新宿区中落合1丁目 6階建 2022年築

西武新宿線 / 下落合駅 徒歩5分
築4年 / 6階建
東京都新宿区中落合1丁目

14.3万円 / 管理費10,000円
敷
14.3万円礼
14.3万円1LDK / 33.6㎡ / 2階
賃貸マンション
ザ・プレミアムスイート高田馬場

東京メトロ東西線 / 高田馬場駅 徒歩6分
築21年 / 15階建
東京都新宿区高田馬場2丁目

13万円 / 管理費10,000円
敷
無料礼
13万円ワンルーム / 34.81㎡ / 9階
賃貸マンション
The Well Mejiro
山手線 / 高田馬場駅 徒歩8分
築8年 / 地上3階地下1階建
東京都新宿区下落合2
12.7万円 / 管理費8,000円
敷
12.7万円礼
12.7万円1K / 25.65㎡ / 2階
賃貸マンション
レジディア目白

東京メトロ東西線 / 高田馬場駅 徒歩10分
築27年 / 地上10階地下1階建
東京都豊島区高田2丁目7-2

13.1万円 / 管理費20,000円
敷
無料礼
無料ワンルーム / 33㎡ / 8階
賃貸マンション
プロスタイルウェルス西早稲田

東京メトロ東西線 / 高田馬場駅 徒歩10分
築9年 / 12階建
東京都新宿区西早稲田3丁目31-2

12万円 / 管理費8,000円
敷
12万円礼
12万円1K / 25.31㎡ / 5階
賃貸マンション
S-RESIDENCE 雑司が谷

山手線 / 高田馬場駅 徒歩12分
築8年 / 8階建
東京都豊島区高田2丁目2-13

11.4万円 / 管理費14,000円
敷
無料礼
11.4万円1K / 25.53㎡ / 4階
賃貸マンション
ステージグランデ目白学習院下

東京メトロ東西線 / 高田馬場駅 徒歩13分
築7年 / 12階建
東京都豊島区高田2丁目4-16

12.7万円 / 管理費5,000円
敷
12.7万円礼
12.7万円1K / 28.2㎡ / 2階
賃貸マンション
新宿区西落合1丁目 4階建 2018年築

西武新宿線 / 下落合駅 徒歩8分
築8年 / 4階建
東京都新宿区西落合1丁目

13.7万円 / 管理費10,000円
敷
無料礼
無料1K / 30.6㎡ / 2階
賃貸マンション
レジディア中落合B棟
西武新宿線 / 下落合駅 徒歩5分
築18年 / 7階建
東京都新宿区中落合1丁目
10.5万円 / 管理費15,000円
敷
無料礼
無料ワンルーム / 24.09㎡ / 3階
賃貸マンション
パークアクシス高田馬場テラス
東京メトロ東西線 / 高田馬場駅 徒歩5分
築13年 / 6階建
東京都新宿区高田馬場2丁目
12.8万円 / 管理費10,000円
敷
12.8万円礼
12.8万円1K / 25.69㎡ / 5階
賃貸マンション
シーズンフラッツ高田馬場リバーサイドサウス
西武新宿線 / 下落合駅 徒歩7分
築4年 / 6階建
東京都新宿区高田馬場3丁目
14.3万円 / 管理費10,000円
敷
無料礼
無料1LDK / 28.32㎡ / 2階
賃貸マンション
フェニックス高田馬場弐番館
西武新宿線 / 高田馬場駅 徒歩10分
築19年 / 5階建
東京都新宿区高田馬場4丁目37-11
13.2万円 / 管理費16,000円
敷
13.2万円礼
13.2万円1LDK / 39.77㎡ / 3階
賃貸マンション
ジェノヴィア新宿中落合スカイガーデン
西武新宿線 / 下落合駅 徒歩12分
築7年 / 9階建
東京都新宿区中落合2丁目12-29
11.6万円 / 管理費15,000円
敷
無料礼
17.4万円1K / 25.85㎡ / 4階
賃貸マンション
THE PREMIUM CUBE G 東中野

西武新宿線 / 下落合駅 徒歩13分
築3年 / 5階建
東京都中野区東中野5丁目20-7

14万円 / 管理費15,000円
敷
14万円礼
14万円1K / 28.87㎡ / 2階
賃貸マンション
ZOOM新宿下落合

西武新宿線 / 下落合駅 徒歩3分
築8年 / 11階建
東京都新宿区下落合4丁目2-6

14.2万円 / 管理費11,000円
敷
無料礼
14.2万円ワンルーム / 25.36㎡ / 3階
賃貸マンション
N’s PARK Residence 高田馬場

西武新宿線 / 下落合駅 徒歩5分
築7年 / 9階建
東京都新宿区下落合1丁目

12.5万円 / 管理費15,000円
敷
12.5万円礼
18.75万円1K / 31.08㎡ / 2階
賃貸マンション
新宿区西早稲田2丁目 7階建 2006年築

東京メトロ東西線 / 高田馬場駅 徒歩9分
築20年 / 7階建
東京都新宿区西早稲田2丁目

13.1万円 / 管理費10,000円
敷
13.1万円礼
13.1万円1K / 30.02㎡ / 5階
賃貸マンション
レガリス高田馬場Ⅱ

西武新宿線 / 下落合駅 徒歩5分
築1年 / 9階建
東京都新宿区下落合1丁目

12.5万円 / 管理費15,000円
敷
12.5万円礼
12.5万円ワンルーム / 26.22㎡ / 3階
賃貸マンション
ルーブル高田馬場

山手線 / 高田馬場駅 徒歩9分
築23年 / 5階建
東京都新宿区高田馬場4丁目

12.38万円 / 管理費16,200円
敷
無料礼
12.38万円1K / 29.16㎡ / 5階
賃貸マンション
新宿区中落合1丁目 6階建 2022年築

西武新宿線 / 下落合駅 徒歩5分
築4年 / 6階建
東京都新宿区中落合1丁目

14.3万円 / 管理費10,000円
敷
14.3万円礼
14.3万円1LDK / 33.6㎡ / 2階
賃貸マンション
ザ・プレミアムスイート高田馬場

東京メトロ東西線 / 高田馬場駅 徒歩6分
築21年 / 15階建
東京都新宿区高田馬場2丁目

13万円 / 管理費10,000円
敷
無料礼
13万円ワンルーム / 34.81㎡ / 9階
賃貸マンション
The Well Mejiro
山手線 / 高田馬場駅 徒歩8分
築8年 / 地上3階地下1階建
東京都新宿区下落合2
12.7万円 / 管理費8,000円
敷
12.7万円礼
12.7万円1K / 25.65㎡ / 2階
同じ最寄り駅 × 同じ特徴 で探す
同じ市区町村 × 同じ特徴 で探す
