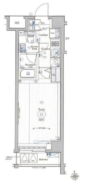
Ludens中板橋MAXIV1R/4階/401(東京都板橋区 / 中板橋駅)の賃貸
1/28
1/28
7.25万円
初期費用を知りたい管理費10,000円
- 敷金
- 無料
- 保証金
- なし
- 礼金
- 無料
- 広さ
- 18.94㎡
- 階数
- 4階 / 4階建
- 間取り
- 1R
- 建物
- マンション (鉄筋コンクリート)
- 築年数
- 築6年
- 向き
- 東
- 交通
- 東武東上線 / 中板橋駅徒歩8分
- 東武東上線 / 大山駅徒歩14分
- 都営三田線 / 板橋本町駅徒歩15分
- 都営三田線 / 板橋区役所前駅徒歩17分
- 住所
- 東京都板橋区中板橋1-14
まいばすけっと 中板橋駅前 420m
セブン-イレブン 中板橋南店 317m
どらっぐぱぱす 中板橋店 423m
EQUiAときわ台 1320m
矢沢医院 169m
板橋大山公園 435m
無料で10秒! カンタンお問い合わせ

Ludens中板橋MAXIV
敷
無料礼
無料特徴
バス・トイレ別
2階以上
エアコン付き
ペット相談可
駐車場あり
室内洗濯機置場
オートロック
洗面所独立
- 入居条件
- 保証人不要、敷金不要、礼金不要最新の空室状況が知りたい
- バス・トイレ
- シャワー、給湯、洗面台、バストイレ別、浴室乾燥機、脱衣所、洗面所独立
- キッチン
- IHクッキングヒーター、1口コンロ
- セキュリティ
- オートロック
- 室内設備
- インターネット対応、エアコン、シューズボックス、2面採光、室内洗濯置お部屋の詳しい情報を知りたい
- 部屋の特徴
- 二階以上、角住戸、最上階写真を送ってほしい
- 共用部
- 敷地内ごみ置き場、宅配ボックス
- その他の特徴
- 玄関ホール、駐車場あり、都市ガス、公営水道、下水
無料で10秒! カンタンお問い合わせ

Ludens中板橋MAXIV
敷
無料礼
無料不動産会社からのコメント
24時間安心サポート 2年毎16500円/エアコン清掃費用借主負担(退去時)/短期解約違約金有(1年未満の解約は賃料の2ヶ月分、2年未満の解約は賃料の1ヶ月分)/家賃エポスカード払い可
その他
- 駐車/駐輪
- 近隣 費用: 16,500円(税込) 距離: 651m / なし駐車可能な車種や台数を知りたい
- 入居時期
- 2026年4月下旬最新の空室状況が知りたい
- 損保
- 住宅保険: 要
- 保証人代行
- 連帯保証人: 不要 保証人代行: 必須 保証人代行会社: その他 月額賃料等の50%(初回保証料)、月額賃料等の1%/月
- その他費用
初期費用を知りたい室内清掃費:55,000円
鍵交換費:44,000円
- 情報
情報登録日:2026/3/22
情報更新日:2026/3/21
次回更新予定日:2026/4/2
- 備考
- 契約期間: 2年
取扱い会社
- 取扱い会社
- ソレイユ恵比寿店 (株式会社ソレイユ)条件が近い物件も紹介してほしい
- 免許番号
- 国土交通大臣(5)第7031号
- 取引態様
- 仲介
- 所在地
- 東京都渋谷区恵比寿1丁目7-13 麻仁ビル恵比寿 2階
- 電話番号
- 03-5793-5773
- 営業時間
- 10:00~19:00
- 定休日
- 毎週水曜日・第2火曜日
- 所属団体名
- 全日本不動産協会
おすすめ物件 (20件)
賃貸マンション
都営三田線 本蓮沼駅 6階建 築8年
都営三田線 / 板橋本町駅 徒歩10分
築7年 / 6階建
東京都板橋区泉町
8.5万円 / 管理費8,000円
敷
無料礼
8.5万円1K / 25.8㎡ / 5階
賃貸マンション
ル・リオンプレズン池袋ウエスト
東武東上線 / 大山駅 徒歩14分
築20年 / 地上5階地下1階建
東京都板橋区中丸町21-4
8.5万円 / 管理費10,000円
敷
8.5万円礼
8.5万円1K / 24.22㎡ / 4階
賃貸アパート
グランフィオーレ

東武東上線 / 中板橋駅 徒歩16分
築8年 / 3階建
東京都板橋区常盤台1丁目31-11

6.9万円 / 管理費3,000円
敷
無料礼
無料ワンルーム / 13.47㎡ / 3階
賃貸アパート
グランクオール板橋本町イーストレジデンス

都営三田線 / 板橋本町駅 徒歩7分
築5年 / 3階建
東京都板橋区本町4-8

7.9万円 / 管理費3,000円
敷
無料礼
7.9万円1K / 19.33㎡ / 3階
賃貸マンション
メイクスデザイン板橋本町Ⅱ

東武東上線 / 中板橋駅 徒歩9分
築11年 / 7階建
東京都板橋区双葉町39-4

8.8万円 / 管理費12,000円
敷
8.8万円礼
8.8万円1K / 25.95㎡ / 3階
賃貸マンション
スカイコートパレス千川
)
東武東上線 / 大山駅 徒歩16分
築10年 / 4階建
東京都豊島区高松3丁目8-13
)
9.2万円 / 管理費13,000円
敷
9.2万円礼
9.2万円1K / 25.5㎡ / 3階
賃貸マンション
プレール・ドゥーク板橋本町II
都営三田線 / 板橋本町駅 徒歩6分
築18年 / 14階建
東京都板橋区宮本町
7.6万円 / 管理費8,000円
敷
無料礼
7.6万円1K / 22.72㎡ / 8階
賃貸マンション
都営三田線 本蓮沼駅 6階建 築8年
都営三田線 / 板橋本町駅 徒歩10分
築7年 / 6階建
東京都板橋区泉町
8.5万円 / 管理費8,000円
敷
無料礼
8.5万円1K / 25.8㎡ / 5階
賃貸マンション
ル・リオンプレズン池袋ウエスト
東武東上線 / 大山駅 徒歩14分
築20年 / 地上5階地下1階建
東京都板橋区中丸町21-4
8.5万円 / 管理費10,000円
敷
8.5万円礼
8.5万円1K / 24.22㎡ / 4階
賃貸アパート
グランフィオーレ

東武東上線 / 中板橋駅 徒歩16分
築8年 / 3階建
東京都板橋区常盤台1丁目31-11

6.9万円 / 管理費3,000円
敷
無料礼
無料ワンルーム / 13.47㎡ / 3階
賃貸アパート
グランクオール板橋本町イーストレジデンス

都営三田線 / 板橋本町駅 徒歩7分
築5年 / 3階建
東京都板橋区本町4-8

7.9万円 / 管理費3,000円
敷
無料礼
7.9万円1K / 19.33㎡ / 3階
賃貸マンション
メイクスデザイン板橋本町Ⅱ

東武東上線 / 中板橋駅 徒歩9分
築11年 / 7階建
東京都板橋区双葉町39-4

8.8万円 / 管理費12,000円
敷
8.8万円礼
8.8万円1K / 25.95㎡ / 3階
賃貸マンション
スカイコートパレス千川
)
東武東上線 / 大山駅 徒歩16分
築10年 / 4階建
東京都豊島区高松3丁目8-13
)
9.2万円 / 管理費13,000円
敷
9.2万円礼
9.2万円1K / 25.5㎡ / 3階
賃貸マンション
プレール・ドゥーク板橋本町II
都営三田線 / 板橋本町駅 徒歩6分
築18年 / 14階建
東京都板橋区宮本町
7.6万円 / 管理費8,000円
敷
無料礼
7.6万円1K / 22.72㎡ / 8階
同じ最寄り駅 で探す
同じ最寄り駅 × 同じ特徴 で探す
同じ市区町村 × 同じ特徴 で探す
































)
)





