豊島区池袋3丁目 3階建 2010年築1K/3階/301(東京都豊島区 / 池袋駅)の賃貸
1/28
1/28
10.5万円
初期費用を知りたい管理費3,000円
- 敷金
- 10.5万円
- 保証金
- なし
- 礼金
- 無料
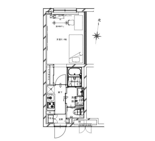
- 広さ
- 27.9㎡
- 階数
- 3階 / 3階建
- 間取り
- 1K
- 建物
- アパート (木造)
- 築年数
- 築16年
- 向き
- 西
- 交通
- 山手線 / 池袋駅徒歩9分
- 東京メトロ有楽町線 / 要町駅徒歩10分
- 住所
- 東京都豊島区池袋3丁目36-8
無料で10秒! カンタンお問い合わせ

豊島区池袋3丁目 3階建 2010年築
敷
10.5万円礼
無料特徴
バス・トイレ別
2階以上
エアコン付き
ペット相談可
駐車場あり
室内洗濯機置場
オートロック
洗面所独立
- 入居条件
- 二人入居可、ペット相談、即入居可最新の空室状況が知りたい
- バス・トイレ
- 専用バス、専用トイレ、バストイレ別、シャワー、給湯、追焚機能浴室、洗面所独立
- キッチン
- ガスコンロ対応、2口コンロ、システムキッチン
- セキュリティ
- オートロック
- 室内設備
- エアコン、室内洗濯置、フローリング、インターネット対応、クロゼット、シューズボックス、照明付お部屋の詳しい情報を知りたい
- 部屋の特徴
- ロフト、バルコニー、角住戸、二階以上、最上階写真を送ってほしい
- 共用部
- 宅配ボックス、駐輪場
- その他の特徴
- 公営水道、都市ガス、下水
無料で10秒! カンタンお問い合わせ

豊島区池袋3丁目 3階建 2010年築
敷
10.5万円礼
無料不動産会社からのコメント
火災保険加入要
その他
- 駐車/駐輪
- 要確認 / あり駐車可能な車種や台数を知りたい
- 入居時期
- 損保
- 住宅保険: 要
- 保証人代行
- 加入要 費用: 初回保証料50%、1年毎に1万円
- その他費用
- 情報
情報登録日:2026/2/15
情報更新日:2026/2/15
次回更新予定日:2026/2/23
- 備考
- 更新料: 新賃料の1.0ヶ月分 契約期間: 2年 自社管理番号: HC1-663654-301-0109
取扱い会社
- 取扱い会社
- ハウスコム東東京株式会社 成増店条件が近い物件も紹介してほしい
- 免許番号
- 東京都知事(1)第108283号
- 取引態様
- 仲介
- 所在地
- 東京都板橋区 成増3丁目3−11 成増アクト2 1F
- 電話番号
- 03-3939-8456
- 定休日
- 水曜定休
- 所属団体名
- 公益社団法人首都圏不動産公正取引協議会、公益財団法人日本賃貸住宅管理協会
おすすめ物件 (12件)
賃貸マンション
豊島区 13階建 2007年築

東京メトロ丸ノ内線 / 池袋駅 徒歩14分
築19年 / 13階建
東京都豊島区上池袋3丁目32-18

10.5万円 / 管理費10,000円
敷
10.5万円礼
10.5万円ワンルーム / 29.46㎡ / 6階
賃貸マンション
ハーモニーレジデンス池袋ウエスト

東京メトロ丸ノ内線 / 池袋駅 徒歩10分
築5年 / 5階建
東京都豊島区西池袋4丁目8-2

12.15万円 / 管理費15,000円
敷
無料礼
6.075万円2K / 25.43㎡ / 4階
賃貸マンション
AXAS池袋レジデンス

東京メトロ丸ノ内線 / 池袋駅 徒歩11分
築10年 / 11階建
東京都豊島区池袋1丁目16-26

12.3万円 / 管理費5,000円
敷
無料礼
12.3万円1K / 25.51㎡ / 5階
賃貸マンション
S-RESIDENCE池袋Norte

山手線 / 池袋駅 徒歩12分
築8年 / 11階建
東京都豊島区池袋本町1丁目

11.4万円 / 管理費14,000円
敷
無料礼
11.4万円1K / 25.67㎡ / 6階
賃貸マンション
豊島区西池袋4丁目 5階建 2021年築

東京メトロ有楽町線 / 要町駅 徒歩11分
築5年 / 5階建
東京都豊島区西池袋4丁目8-2

12.45万円 / 管理費15,000円
敷
12.45万円礼
12.45万円2K / 25.88㎡ / 3階
賃貸マンション
板橋区中丸町 14階建 2020年築

東京メトロ有楽町線 / 要町駅 徒歩10分
築6年 / 14階建
東京都板橋区中丸町

11.5万円 / 管理費15,000円
敷
11.5万円礼
11.5万円1K / 27.69㎡ / 7階
賃貸マンション
板橋区中丸町 14階建 2020年築

東京メトロ有楽町線 / 要町駅 徒歩10分
築6年 / 14階建
東京都板橋区中丸町

12万円 / 管理費15,000円
敷
12万円礼
12万円1K / 25.02㎡ / 12階
賃貸マンション
豊島区西池袋4丁目 5階建 2021年築

東京メトロ有楽町線 / 要町駅 徒歩11分
築5年 / 5階建
東京都豊島区西池袋4丁目8-2

12.4万円 / 管理費15,000円
敷
12.4万円礼
12.4万円2K / 25.43㎡ / 2階
賃貸マンション
ハーモニーレジデンス池袋#003

東京メトロ副都心線 / 池袋駅 徒歩6分
築10年 / 12階建
東京都豊島区池袋1丁目

10.9万円 / 管理費15,000円
敷
無料礼
無料1K / 20.65㎡ / 8階
賃貸マンション
リアルワン要町

東京メトロ副都心線 / 要町駅 徒歩9分
新築 / 4階建
東京都豊島区千早2丁目21-10

11.1万円 / 管理費1,500円
敷
11.1万円礼
無料1K / 25.65㎡ / 4階
賃貸マンション
PREMIUM CUBE 池袋要町

東京メトロ有楽町線 / 要町駅 徒歩10分
築6年 / 14階建
東京都板橋区中丸町8-3

11.5万円 / 管理費15,000円
敷
11.5万円礼
11.5万円1K / 27.69㎡ / 7階
賃貸マンション
ラフィスタ池袋
東京メトロ副都心線 / 要町駅 徒歩4分
築11年 / 10階建
東京都豊島区池袋3丁目
9.5万円 / 管理費15,000円
敷
9.5万円礼
9.5万円1K / 20.34㎡ / 7階
賃貸マンション
豊島区 13階建 2007年築

東京メトロ丸ノ内線 / 池袋駅 徒歩14分
築19年 / 13階建
東京都豊島区上池袋3丁目32-18

10.5万円 / 管理費10,000円
敷
10.5万円礼
10.5万円ワンルーム / 29.46㎡ / 6階
賃貸マンション
ハーモニーレジデンス池袋ウエスト

東京メトロ丸ノ内線 / 池袋駅 徒歩10分
築5年 / 5階建
東京都豊島区西池袋4丁目8-2

12.15万円 / 管理費15,000円
敷
無料礼
6.075万円2K / 25.43㎡ / 4階
賃貸マンション
AXAS池袋レジデンス

東京メトロ丸ノ内線 / 池袋駅 徒歩11分
築10年 / 11階建
東京都豊島区池袋1丁目16-26

12.3万円 / 管理費5,000円
敷
無料礼
12.3万円1K / 25.51㎡ / 5階
賃貸マンション
S-RESIDENCE池袋Norte

山手線 / 池袋駅 徒歩12分
築8年 / 11階建
東京都豊島区池袋本町1丁目

11.4万円 / 管理費14,000円
敷
無料礼
11.4万円1K / 25.67㎡ / 6階
賃貸マンション
豊島区西池袋4丁目 5階建 2021年築

東京メトロ有楽町線 / 要町駅 徒歩11分
築5年 / 5階建
東京都豊島区西池袋4丁目8-2

12.45万円 / 管理費15,000円
敷
12.45万円礼
12.45万円2K / 25.88㎡ / 3階
賃貸マンション
板橋区中丸町 14階建 2020年築

東京メトロ有楽町線 / 要町駅 徒歩10分
築6年 / 14階建
東京都板橋区中丸町

11.5万円 / 管理費15,000円
敷
11.5万円礼
11.5万円1K / 27.69㎡ / 7階
賃貸マンション
板橋区中丸町 14階建 2020年築

東京メトロ有楽町線 / 要町駅 徒歩10分
築6年 / 14階建
東京都板橋区中丸町

12万円 / 管理費15,000円
敷
12万円礼
12万円1K / 25.02㎡ / 12階
賃貸マンション
豊島区西池袋4丁目 5階建 2021年築

東京メトロ有楽町線 / 要町駅 徒歩11分
築5年 / 5階建
東京都豊島区西池袋4丁目8-2

12.4万円 / 管理費15,000円
敷
12.4万円礼
12.4万円2K / 25.43㎡ / 2階
賃貸マンション
ハーモニーレジデンス池袋#003

東京メトロ副都心線 / 池袋駅 徒歩6分
築10年 / 12階建
東京都豊島区池袋1丁目

10.9万円 / 管理費15,000円
敷
無料礼
無料1K / 20.65㎡ / 8階
賃貸マンション
リアルワン要町

東京メトロ副都心線 / 要町駅 徒歩9分
新築 / 4階建
東京都豊島区千早2丁目21-10

11.1万円 / 管理費1,500円
敷
11.1万円礼
無料1K / 25.65㎡ / 4階
賃貸マンション
PREMIUM CUBE 池袋要町

東京メトロ有楽町線 / 要町駅 徒歩10分
築6年 / 14階建
東京都板橋区中丸町8-3

11.5万円 / 管理費15,000円
敷
11.5万円礼
11.5万円1K / 27.69㎡ / 7階
賃貸マンション
ラフィスタ池袋
東京メトロ副都心線 / 要町駅 徒歩4分
築11年 / 10階建
東京都豊島区池袋3丁目
9.5万円 / 管理費15,000円
敷
9.5万円礼
9.5万円1K / 20.34㎡ / 7階
同じ最寄り駅 × 同じ特徴 で探す
同じ市区町村 × 同じ特徴 で探す



























