SYFORME OMIYA1LDK/9階/902(埼玉県さいたま市大宮区 / 大宮駅)の賃貸
1/22
1/22
12.85万円
初期費用を知りたい管理費12,000円
- 敷金
- 12.85万円
- 保証金
- なし
- 礼金
- 12.85万円
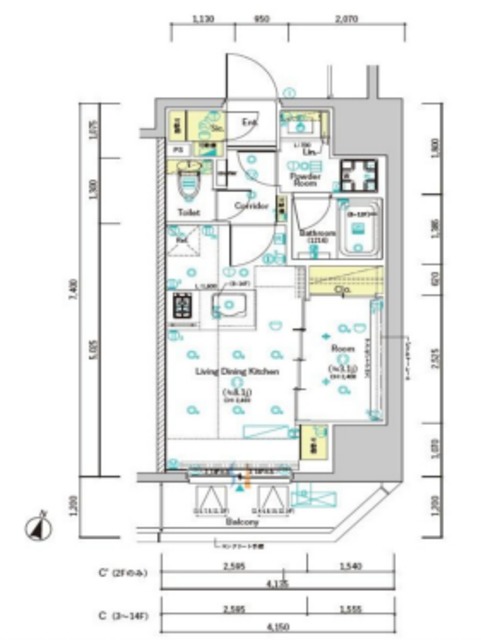
- 広さ
- 30.37㎡
- 階数
- 9階 / 14階建
- 間取り
- 1LDK
- 建物
- マンション (鉄筋コンクリート)
- 築年数
- 築1年
- 向き
- 南
- 交通
- 京浜東北線 / 大宮駅徒歩8分
- 東北本線 / さいたま新都心駅徒歩20分
- 東武野田線 / 北大宮駅徒歩23分
- 住所
- 埼玉県さいたま市 大宮区仲町3丁目49
大宮門街 383m
ザ・ガーデン自由が丘大宮大門店 382m
セブンイレブンさいたま下町3丁目店 203m
ウエルシア大宮門街EAST店 396m
ノジマ大宮タカシマヤ店 436m
カフェ・ベローチェ大宮大門町店 529m
無料で10秒! カンタンお問い合わせ

SYFORME OMIYA
敷
12.85万円礼
12.85万円特徴
バス・トイレ別
2階以上
エアコン付き
ペット相談可
駐車場あり
室内洗濯機置場
オートロック
洗面所独立
- 入居条件
- 二人入居相談、子供可、ペット相談、即入居可最新の空室状況が知りたい
- バス・トイレ
- 洗面台、バストイレ別、オートバス、浴室乾燥機、追焚機能浴室、脱衣所、温水洗浄便座、洗面所独立
- キッチン
- ガスコンロ対応、3口以上コンロ、カウンターキッチン、システムキッチン
- セキュリティ
- 防犯カメラ、オートロック
- 室内設備
- CS、インターネット対応、CATV、BS、ネット使用料不要、エアコン、室内洗濯置、フローリング、全居室フローリングお部屋の詳しい情報を知りたい
- 部屋の特徴
- 二階以上、角住戸、バルコニー写真を送ってほしい
- 共用部
- 宅配ボックス、エレベーター、駐輪場
- その他の特徴
- 定期借家、駐車場あり、都市ガス、公営水道、下水、デザイナーズ、外壁タイル張り、分譲賃貸
無料で10秒! カンタンお問い合わせ

SYFORME OMIYA
敷
12.85万円礼
12.85万円同じ建物で掲載中の物件 (15件)
不動産会社からのコメント
退去時清掃費¥59400/敷金1ヶ月積み増し/CATVでBS、CS視聴可(CATV、BS別途契約要、有償)/SYLAプレミアムクラブ費用 24200円(契約時)、2年後の更新以降は2年毎26400円/駐輪場(利用時):利用料等借主負担
その他
- 駐車/駐輪
- 近隣 費用: 33,000円(税込) 距離: 251m / あり駐車可能な車種や台数を知りたい
- 入居時期
- 損保
- 住宅保険: 要
- 保証人代行
- 保証人代行: 必須 保証人代行会社: その他 初回:賃料等の40%、以降:10000円/年(賃料等15万円以上の場合:14000円/年)
- その他費用
- 情報
情報登録日:2026/3/6
情報更新日:2026/3/3
次回更新予定日:2026/3/17
- 備考
- 契約期間: 2年 ※定期借家
取扱い会社
- 取扱い会社
- アエラス南浦和店 (株式会社アエラス)条件が近い物件も紹介してほしい
- 免許番号
- 国土交通大臣(3)第8522号
- 取引態様
- 仲介
- 所在地
- 埼玉県さいたま市南区南浦和2丁目35-8 サンライト南浦和3番館 1階
- 電話番号
- 048-811-1055
- 営業時間
- 10:00~19:00
- 定休日
- 年中無休(年末年始などを除く)
- 所属団体名
- 全日本不動産協会
おすすめ物件 (1件)
賃貸マンション
ドゥーエ大宮II
埼玉新都市交通伊奈線 / 大宮駅 徒歩9分
築2年 / 10階建
埼玉県さいたま市大宮区大成町1
家賃カード決済可
13万円 / 管理費15,000円
敷
13万円礼
13万円1LDK / 30.25㎡ / 2階
賃貸マンション
ドゥーエ大宮II
埼玉新都市交通伊奈線 / 大宮駅 徒歩9分
築2年 / 10階建
埼玉県さいたま市大宮区大成町1
家賃カード決済可
13万円 / 管理費15,000円
敷
13万円礼
13万円1LDK / 30.25㎡ / 2階
同じ最寄り駅 で探す
同じ最寄り駅 × 同じ特徴 で探す






















