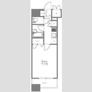
大田区蒲田本町 3階建 2019年築1K/2階/202(東京都大田区 / 京急蒲田駅)の賃貸
1/21
1/21
6.9万円
初期費用を知りたい管理費3,000円
- 敷金
- 無料
- 保証金
- なし
- 礼金
- 無料
- 広さ
- 15.17㎡
- 階数
- 2階 / 3階建
- 間取り
- 1K
- 建物
- アパート (木造)
- 築年数
- 築7年
- 向き
- 西
- 交通
- 京急本線 / 京急蒲田駅徒歩10分
- 京急本線 / 雑色駅徒歩11分
- 京浜東北線 / 蒲田駅徒歩11分
- 住所
- 東京都大田区蒲田本町2丁目
セブン-イレブン西蒲田環八通り店 1083m
ローソン新蒲田一丁目店 1191m
miniピアゴ 1143m
大田西糀谷郵便局 1281m
セブン-イレブン川崎大師駅北店 4311m
(株)イトーヨーカ堂/川崎港町店 3601m
ファミリーマート川崎大師駅前店 4287m
まいばすけっと川崎大師駅前店 4356m
志茂田小学校ことばの教室 716m
御幸中学校 3885m
コンビニ 259m
スーパー 564m
無料で10秒! カンタンお問い合わせ
)
大田区蒲田本町 3階建 2019年築
敷
無料礼
無料特徴
バス・トイレ別
2階以上
エアコン付き
ペット相談可
駐車場あり
室内洗濯機置場
オートロック
洗面所独立
- バス・トイレ
- 給湯、シャワー、バストイレ別、浴室乾燥機
- キッチン
- ガスキッチン、システムキッチン
- セキュリティ
- オートロック、オートロック
- 室内設備
- エアコン、冷蔵庫付、インターホン、フローリング、室内洗濯置、クロゼット、シューズボックスお部屋の詳しい情報を知りたい
- 部屋の特徴
- 二階以上写真を送ってほしい
- その他の特徴
- 都市ガス
無料で10秒! カンタンお問い合わせ
)
大田区蒲田本町 3階建 2019年築
敷
無料礼
無料その他
- 駐車/駐輪
- 無し / なし駐車可能な車種や台数を知りたい
- 入居時期
- 損保
- 住宅保険: 要 20000円
- 保証人代行
- 保証人: 不要
- その他費用
- 情報
情報登録日:2026/3/12
情報更新日:2026/5/8
次回更新予定日:2026/5/27
- 備考
- 更新料: 69000円 退去時費用備考: 退去時クリーニング費用は借主実費負担とする。 その他: 短期解約違約金:1年未満:総賃料1ヶ月分 保証会社利用必須 初回:総賃料の60% 更新保証料:10000円/年 その他初期費用 41800円 業者管理CD: 112147541
取扱い会社
- 取扱い会社
- アパマンショップ目黒西口店 株式会社 アップル条件が近い物件も紹介してほしい
- 免許番号
- 国土交通大臣(5)6971
- 取引態様
- 一般媒介
- 所在地
- 東京都品川区上大崎2丁目
- 電話番号
- 03-6867-1010
- 所属団体名
- (公社)東京都宅地建物取引協会,(公社) 首都圏不動産公正取引協議会加盟
おすすめ物件 (20件)
賃貸マンション
プレール・ドゥーク蒲田

京急本線 / 京急蒲田駅 徒歩8分
築16年 / 11階建
東京都大田区蒲田2丁目23-2

8.4万円 / 管理費11,000円
敷
8.4万円礼
8.4万円1K / 21.53㎡ / 9階
賃貸マンション
ルーブル蒲田七番館

東急多摩川線 / 蒲田駅 徒歩10分
築15年 / 8階建
東京都大田区新蒲田1丁目15-4

8.5万円 / 管理費14,000円
敷
無料礼
8.5万円1K / 20.76㎡ / 2階
賃貸マンション
グリーン リーフ

京浜東北線 / 蒲田駅 徒歩11分
築15年 / 3階建
東京都大田区西蒲田4丁目13-13

8.6万円 / 管理費4,000円
敷
4.3万円礼
12.9万円1K / 23.94㎡ / 3階
賃貸マンション
スカイコート蒲田EAST

京急本線 / 京急蒲田駅 徒歩4分
築17年 / 5階建
東京都大田区東蒲田2丁目36-19

8.5万円 / 管理費10,000円
敷
無料礼
8.5万円1K / 22.11㎡ / 3階
賃貸マンション
ステージファースト大森西

京浜東北線 / 蒲田駅 徒歩26分
築28年 / 7階建
東京都大田区大森西5丁目

8.4万円 / 管理費5,000円
敷
無料礼
8.4万円1K / 18.99㎡ / 5階
賃貸マンション
ル・リオン多摩川グランドコート

京急本線 / 雑色駅 徒歩7分
築20年 / 5階建
東京都大田区西六郷4丁目2-9

8.7万円 / 管理費5,000円
敷
無料礼
8.7万円1K / 20.48㎡ / 2階
賃貸マンション
大田区仲六郷 7階建 2013年築
)
京急本線 / 雑色駅 徒歩6分
築13年 / 7階建
東京都大田区仲六郷1丁目
)
8.2万円 / 管理費10,000円
敷
8.2万円礼
8.2万円1K / 20.59㎡ / 5階
賃貸マンション
大田区中央 8階建 2001年築
)
東急多摩川線 / 蒲田駅 徒歩22分
築25年 / 8階建
東京都大田区中央8丁目
)
7.9万円 / 管理費8,000円
敷
7.9万円礼
7.9万円1K / 20.68㎡ / 3階
賃貸マンション
大田区 8階建 2005年築

京急本線 / 京急蒲田駅 徒歩18分
築21年 / 8階建
東京都大田区萩中2丁目4-7

8.7万円 / 管理費11,000円
敷
無料礼
8.7万円1K / 18.85㎡ / 5階
賃貸マンション
エクセルピア羽田2番館

京急空港線 / 大鳥居駅 徒歩7分
築31年 / 8階建
東京都大田区東糀谷2丁目1-20

6.8万円 / 管理費7,000円
敷
6.8万円礼
6.8万円ワンルーム / 19.5㎡ / 5階
賃貸マンション
WITHSPACE多摩川

京浜東北線 / 蒲田駅 徒歩20分
築6年 / 5階建
東京都大田区多摩川1丁目7-6

7万円 / 管理費5,000円
敷
7万円礼
無料ワンルーム / 17.08㎡ / 4階
賃貸アパート
大森グレースメゾン

京急本線 / 京急蒲田駅 徒歩28分
築20年 / 2階建
東京都大田区大森東2丁目26-14

7.6万円 / 管理費4,000円
敷
7.6万円礼
7.6万円1K / 23.54㎡ / 2階
賃貸マンション
プレール・ドゥーク蒲田

京急本線 / 京急蒲田駅 徒歩8分
築16年 / 11階建
東京都大田区蒲田2丁目23-2

8.4万円 / 管理費11,000円
敷
8.4万円礼
8.4万円1K / 21.53㎡ / 9階
賃貸マンション
ルーブル蒲田七番館

東急多摩川線 / 蒲田駅 徒歩10分
築15年 / 8階建
東京都大田区新蒲田1丁目15-4

8.5万円 / 管理費14,000円
敷
無料礼
8.5万円1K / 20.76㎡ / 2階
賃貸マンション
グリーン リーフ

京浜東北線 / 蒲田駅 徒歩11分
築15年 / 3階建
東京都大田区西蒲田4丁目13-13

8.6万円 / 管理費4,000円
敷
4.3万円礼
12.9万円1K / 23.94㎡ / 3階
賃貸マンション
スカイコート蒲田EAST

京急本線 / 京急蒲田駅 徒歩4分
築17年 / 5階建
東京都大田区東蒲田2丁目36-19

8.5万円 / 管理費10,000円
敷
無料礼
8.5万円1K / 22.11㎡ / 3階
賃貸マンション
ステージファースト大森西

京浜東北線 / 蒲田駅 徒歩26分
築28年 / 7階建
東京都大田区大森西5丁目

8.4万円 / 管理費5,000円
敷
無料礼
8.4万円1K / 18.99㎡ / 5階
賃貸マンション
ル・リオン多摩川グランドコート

京急本線 / 雑色駅 徒歩7分
築20年 / 5階建
東京都大田区西六郷4丁目2-9

8.7万円 / 管理費5,000円
敷
無料礼
8.7万円1K / 20.48㎡ / 2階
賃貸マンション
大田区仲六郷 7階建 2013年築
)
京急本線 / 雑色駅 徒歩6分
築13年 / 7階建
東京都大田区仲六郷1丁目
)
8.2万円 / 管理費10,000円
敷
8.2万円礼
8.2万円1K / 20.59㎡ / 5階
賃貸マンション
大田区中央 8階建 2001年築
)
東急多摩川線 / 蒲田駅 徒歩22分
築25年 / 8階建
東京都大田区中央8丁目
)
7.9万円 / 管理費8,000円
敷
7.9万円礼
7.9万円1K / 20.68㎡ / 3階
賃貸マンション
大田区 8階建 2005年築

京急本線 / 京急蒲田駅 徒歩18分
築21年 / 8階建
東京都大田区萩中2丁目4-7

8.7万円 / 管理費11,000円
敷
無料礼
8.7万円1K / 18.85㎡ / 5階
賃貸マンション
エクセルピア羽田2番館

京急空港線 / 大鳥居駅 徒歩7分
築31年 / 8階建
東京都大田区東糀谷2丁目1-20

6.8万円 / 管理費7,000円
敷
6.8万円礼
6.8万円ワンルーム / 19.5㎡ / 5階
賃貸マンション
WITHSPACE多摩川

京浜東北線 / 蒲田駅 徒歩20分
築6年 / 5階建
東京都大田区多摩川1丁目7-6

7万円 / 管理費5,000円
敷
7万円礼
無料ワンルーム / 17.08㎡ / 4階
賃貸アパート
大森グレースメゾン

京急本線 / 京急蒲田駅 徒歩28分
築20年 / 2階建
東京都大田区大森東2丁目26-14

7.6万円 / 管理費4,000円
敷
7.6万円礼
7.6万円1K / 23.54㎡ / 2階
)
)
)
)
)
)
)
)
)
)
)
)
)
)
)
)
)
)
)
)









)
)
)
)

