メインステージ十条1K/6階/603(東京都北区 / 十条駅)の賃貸
1/27
1/27
5.9万円
初期費用を知りたい管理費6,000円
- 敷金
- 5.9万円
- 保証金
- なし
- 礼金
- 5.9万円
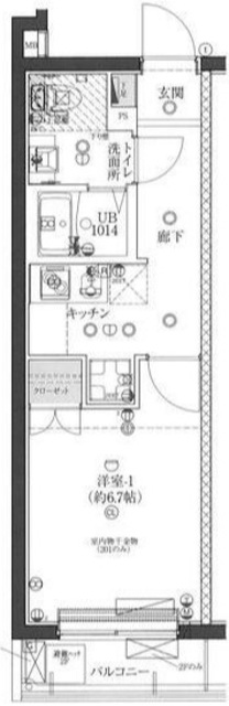
- 広さ
- 22.04㎡
- 階数
- 6階 / 7階建
- 間取り
- 1K
- 建物
- マンション (鉄筋コンクリート)
- 築年数
- 築35年
- 向き
- 南
- 交通
- 埼京線 / 十条駅徒歩12分
- 都営三田線 / 板橋本町駅徒歩13分
- 京浜東北線 / 東十条駅徒歩14分
- 住所
- 東京都北区上十条5丁目8-10
J&MALL 930m
オーケー十条店 322m
ローソン 北区上十条五丁目店 237m
サンドラッグ十条銀座店 708m
ゲオ板橋本町店 926m
ガスト板橋本町店 570m
無料で10秒! カンタンお問い合わせ

メインステージ十条
敷
5.9万円礼
5.9万円特徴
バス・トイレ別
2階以上
エアコン付き
ペット相談可
駐車場あり
室内洗濯機置場
オートロック
洗面所独立
- バス・トイレ
- シャワー、給湯、洗面台
- キッチン
- ガスコンロ対応、1口コンロ
- 室内設備
- インターネット対応、CATV、BS、エアコン、室内洗濯置、フローリングお部屋の詳しい情報を知りたい
- 部屋の特徴
- 二階以上、角住戸、バルコニー写真を送ってほしい
- 共用部
- エレベーター、駐輪場
- その他の特徴
- 駐車場あり、都市ガス、公営水道、下水、外壁タイル張り、分譲賃貸
無料で10秒! カンタンお問い合わせ

メインステージ十条
敷
5.9万円礼
5.9万円同じ建物で掲載中の物件 (1件)
不動産会社からのコメント
家財保険料相当額毎月600円/緊急サポート24 毎月1650円/更新登録手数料5500円/退去時清掃費35000円(税別)/CATVでBSCS視聴可(CATVBS別途契約要有償)
その他
- 駐車/駐輪
- 近隣 費用: 21,000円(税込) 距離: 530m / あり駐車可能な車種や台数を知りたい
- 入居時期
- 2026年3月下旬最新の空室状況が知りたい
- 損保
- 住宅保険: 要
- 保証人代行
- 保証人代行: 必須 保証人代行会社: その他 初回:賃料等の50%~、初回登録手数料:5500円(税込)、初回:賃料等の50%、毎月:1千円
- その他費用
初期費用を知りたい鍵交換費:29,700円
初回登録手数料:5,500円
- 情報
情報登録日:2026/2/17
情報更新日:2026/3/13
次回更新予定日:2026/3/29
- 備考
- 契約期間: 2年
取扱い会社
- 取扱い会社
- アエラス大山店 (株式会社アエラス.GR)条件が近い物件も紹介してほしい
- 免許番号
- 東京都知事(3)第92342号
- 取引態様
- 仲介
- 所在地
- 東京都板橋区大山町31-1 松長ビル 3階
- 電話番号
- 03-5964-5586
- 営業時間
- 10:00~19:00
- 定休日
- 年中無休(年末年始などを除く)
- 所属団体名
- 全日本不動産協会
おすすめ物件 (20件)
賃貸マンション
メインステージ十条

埼京線 / 十条駅 徒歩12分
築35年 / 7階建
東京都北区上十条5丁目8-10

5.9万円 / 管理費6,000円
敷
5.9万円礼
5.9万円1K / 22.04㎡ / 6階
賃貸マンション
M′s Square

京浜東北線 / 東十条駅 徒歩12分
築4年 / 4階建
東京都北区赤羽西2丁目3-6

7.8万円 / 管理費12,000円
敷
無料礼
7.8万円ワンルーム / 20.34㎡ / 2階
賃貸マンション
プレール・ドゥーク東京NORTHⅡ

京浜東北線 / 東十条駅 徒歩5分
築19年 / 9階建
東京都北区中十条3丁目34-11

7.9万円 / 管理費8,000円
敷
無料礼
7.9万円1K / 20.13㎡ / 3階
賃貸マンション
GROWS TOKIWADAI

都営三田線 / 板橋本町駅 徒歩28分
築12年 / 5階建
東京都板橋区南常盤台2丁目18-6

7.6万円 / 管理費10,000円
敷
無料礼
7.6万円1K / 25.73㎡ / 4階
賃貸マンション
北区赤羽西 4階建 2022年築
)
京浜東北線 / 東十条駅 徒歩13分
築4年 / 4階建
東京都北区赤羽西2丁目3-6
)
7.8万円 / 管理費12,000円
敷
無料礼
7.8万円1K / 20.34㎡ / 2階
賃貸マンション
グローバリービューテラスIV
)
京浜東北線 / 東十条駅 徒歩14分
築34年 / 11階建
東京都北区王子3丁目
)
7.2万円 / 管理費5,000円
敷
無料礼
7.2万円ワンルーム / 18.03㎡ / 4階
賃貸マンション
プレール・ドゥーク板橋本町II
都営三田線 / 板橋本町駅 徒歩6分
築18年 / 14階建
東京都板橋区宮本町
7.6万円 / 管理費8,000円
敷
無料礼
7.6万円1K / 22.72㎡ / 8階
賃貸マンション
板橋区大和町 7階建 1992年築
)
都営三田線 / 板橋本町駅 徒歩1分
築34年 / 7階建
東京都板橋区大和町20-5
)
6.5万円 / 管理費7,000円
敷
6.5万円礼
6.5万円1K / 18.49㎡ / 4階
賃貸マンション
メインステージ十条

埼京線 / 十条駅 徒歩12分
築35年 / 7階建
東京都北区上十条5丁目8-10

5.9万円 / 管理費6,000円
敷
5.9万円礼
5.9万円1K / 22.04㎡ / 6階
賃貸マンション
M′s Square

京浜東北線 / 東十条駅 徒歩12分
築4年 / 4階建
東京都北区赤羽西2丁目3-6

7.8万円 / 管理費12,000円
敷
無料礼
7.8万円ワンルーム / 20.34㎡ / 2階
賃貸マンション
プレール・ドゥーク東京NORTHⅡ

京浜東北線 / 東十条駅 徒歩5分
築19年 / 9階建
東京都北区中十条3丁目34-11

7.9万円 / 管理費8,000円
敷
無料礼
7.9万円1K / 20.13㎡ / 3階
賃貸マンション
GROWS TOKIWADAI

都営三田線 / 板橋本町駅 徒歩28分
築12年 / 5階建
東京都板橋区南常盤台2丁目18-6

7.6万円 / 管理費10,000円
敷
無料礼
7.6万円1K / 25.73㎡ / 4階
賃貸マンション
北区赤羽西 4階建 2022年築
)
京浜東北線 / 東十条駅 徒歩13分
築4年 / 4階建
東京都北区赤羽西2丁目3-6
)
7.8万円 / 管理費12,000円
敷
無料礼
7.8万円1K / 20.34㎡ / 2階
賃貸マンション
グローバリービューテラスIV
)
京浜東北線 / 東十条駅 徒歩14分
築34年 / 11階建
東京都北区王子3丁目
)
7.2万円 / 管理費5,000円
敷
無料礼
7.2万円ワンルーム / 18.03㎡ / 4階
賃貸マンション
プレール・ドゥーク板橋本町II
都営三田線 / 板橋本町駅 徒歩6分
築18年 / 14階建
東京都板橋区宮本町
7.6万円 / 管理費8,000円
敷
無料礼
7.6万円1K / 22.72㎡ / 8階
賃貸マンション
板橋区大和町 7階建 1992年築
)
都営三田線 / 板橋本町駅 徒歩1分
築34年 / 7階建
東京都板橋区大和町20-5
)
6.5万円 / 管理費7,000円
敷
6.5万円礼
6.5万円1K / 18.49㎡ / 4階












































