地下鉄空港線 唐人町駅 10階建 築20年1LDK/4階(福岡県福岡市中央区 / 唐人町駅)の賃貸
1/20
1/20
9万円
初期費用を知りたい管理費5,000円
適用で最大2年間4.8万円割引
本物件のヘヤワリ適用可否については、不動産会社へご確認ください。
- 敷金
- 無料
- 保証金
- なし
- 礼金
- 18万円
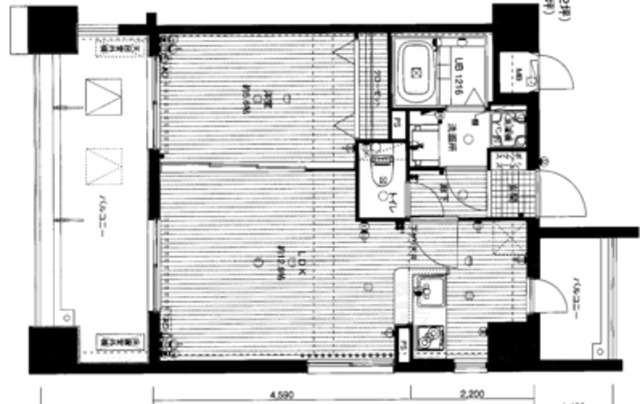
- 広さ
- 42.38㎡
- 階数
- 4階 / 10階建
- 間取り
- 1LDK
- 建物
- マンション (鉄骨鉄筋)
- 築年数
- 築20年
- 向き
- 東
- 交通
- 地下鉄空港線 / 唐人町駅徒歩12分
- 地下鉄七隈線 / 六本松駅徒歩14分
- 地下鉄七隈線 / 別府駅徒歩15分
- 住所
- 福岡県福岡市中央区鳥飼2
六本松421(ショッピングセンター)まで1073m
ニューヨークストア セントラルパーク店(スーパー)まで238m
セブンイレブン 福岡鳥飼1丁目店(コンビニ)まで473m
マックスバリュエクスプレス 今川店(スーパー)まで450m
大濠公園(公園)まで810m
福岡記念病院(病院)まで1009m
無料で10秒! カンタンお問い合わせ
地下鉄空港線 唐人町駅 10階建 築20年
敷
無料礼
18万円特徴
バス・トイレ別
2階以上
エアコン付き
ペット相談可
駐車場あり
室内洗濯機置場
オートロック
洗面所独立
- 入居条件
- 保証人不要、保証金不要、礼金2ヶ月最新の空室状況が知りたい
- バス・トイレ
- バストイレ別、シャワー付洗面台、温水洗浄便座、脱衣所、洗面所独立、洗面化粧台、洗面所にドア
- キッチン
- ガスコンロ対応、システムキッチン、2口コンロ、IHクッキングヒーター
- セキュリティ
- オートロック、防犯カメラ、24時間緊急通報システム
- 室内設備
- エアコン、クロゼット、フローリング、室内洗濯置、シューズボックス、CATV、光ファイバー、オール電化、全居室フローリング、ネット専用回線、ネット使用料不要、玄関収納、BSお部屋の詳しい情報を知りたい
- 部屋の特徴
- バルコニー、陽当り良好、二階以上写真を送ってほしい
- 共用部
- エレベーター、駐輪場、宅配ボックス、バイク置場、敷地内ごみ置き場
- その他の特徴
- 外壁タイル張り、デザイナーズ、駅まで平坦、駐車場あり
無料で10秒! カンタンお問い合わせ
地下鉄空港線 唐人町駅 10階建 築20年
敷
無料礼
18万円不動産会社からのコメント
42平米の広々1LDK。インターネット無料。大濠公園そば。
(株)トーマスリビング直営店20店舗以上!当社は、自社の管理物件だけでなく、他社管理物件も含め、お客様が望むお部屋を優先して探し尽くします。
その他
- 駐車/駐輪
- 敷地内13200円 / あり駐車可能な車種や台数を知りたい
- 入居時期
- 損保
- 要
- 保証人代行
- -
- その他費用
合計4.84万円(内訳:鍵交換代 48400円) 初期費用を知りたい- 情報
情報登録日:2026/2/27
情報更新日:2026/2/25
次回更新予定日:2026/3/13
- 備考
- 契約期間: 普通借家 2年 保証会社: 保証会社利用必 初回賃料総額:70% 1年毎10,000円 月額864円 その他:【(株)トーマスリビング】当社では初期費用の ”クレジットカード” でのお支払いを推奨しております。【お申込み後にわざわざ店頭に来て頂く必要】も【銀行へお振込みに行って頂く必要】も御座いません。支払い回数も一括・分割お選び頂けますので、高い初期費用がお部屋探しを邪魔している方にも、大変ご好評頂いております。 / 条件: 単身者可/二人入居可 / ほか初期費用: 合計4.84万円(内訳:鍵交換代 48400円) / ほか諸費用: 水道料金 3850円/月、24時間安心サポート 2750円/月
取扱い会社
- 取扱い会社
- 株式会社トーマスリビング 博多本店条件が近い物件も紹介してほしい
- 免許番号
- 国土交通大臣(3)第8479号
- 取引態様
- 一般媒介
- 所在地
- 福岡県福岡市博多区博多駅東1-9-1
- 電話番号
- 092-432-0711
- 所属団体名
- 社団法人全日本不動産協会
おすすめ物件 (20件)
賃貸マンション
福岡市中央区 13階建 2007年築

地下鉄空港線 / 唐人町駅 徒歩18分
築19年 / 13階建
福岡県福岡市中央区港3丁目

7.5万円 / 管理費なし
敷
無料礼
15万円1LDK / 40.74㎡ / 8階
賃貸マンション
カーサビアンカ西公園
地下鉄空港線 / 唐人町駅 徒歩16分
築13年 / 10階建
福岡県福岡市中央区西公園
家賃カード決済可
9.4万円 / 管理費8,000円
敷
無料礼
18.8万円1LDK / 40.04㎡ / 8階
賃貸マンション
ネストピア唐人町駅前
地下鉄空港線 / 唐人町駅 徒歩3分
築9年 / 12階建
福岡県福岡市中央区唐人町1
10.4万円 / 管理費5,000円
敷
無料礼
20.8万円1LDK / 34.45㎡ / 9階
賃貸マンション
ヴァン ド メール唐人
地下鉄空港線 / 唐人町駅 徒歩4分
築7年 / 7階建
福岡県福岡市中央区唐人町2
10万円 / 管理費8,500円
敷
無料礼
20万円1LDK / 34.37㎡ / 7階
賃貸マンション
iN SHAPE 港
地下鉄空港線 / 唐人町駅 徒歩20分
築4年 / 13階建
福岡県福岡市中央区港1
8.2万円 / 管理費3,000円
敷
無料礼
16.4万円1LDK / 34.2㎡ / 7階
賃貸マンション
地下鉄空港線 唐人町駅 8階建 築3年
地下鉄空港線 / 唐人町駅 徒歩7分
築3年 / 8階建
福岡県福岡市中央区今川1
9.8万円 / 管理費5,000円
敷
9.8万円礼
19.6万円1LDK / 34.11㎡ / 7階
賃貸マンション
地下鉄空港線 唐人町駅 8階建 築15年
地下鉄空港線 / 唐人町駅 徒歩4分
築15年 / 8階建
福岡県福岡市中央区荒戸3
8.2万円 / 管理費7,500円
敷
無料礼
16.4万円1LDK / 34.87㎡ / 4階
賃貸マンション
バウスステージ大濠
地下鉄空港線 / 唐人町駅 徒歩7分
築3年 / 8階建
福岡県福岡市中央区今川1
8.9万円 / 管理費5,000円
敷
8.9万円礼
17.8万円1LDK / 34.11㎡ / 4階
賃貸マンション
地下鉄空港線 大濠公園駅 13階建 築5年
地下鉄空港線 / 唐人町駅 徒歩20分
築4年 / 13階建
福岡県福岡市中央区港1
8.2万円 / 管理費3,000円
敷
無料礼
16.4万円1LDK / 34.2㎡ / 7階
賃貸マンション
グランジュ大濠
地下鉄空港線 / 唐人町駅 徒歩4分
築15年 / 8階建
福岡県福岡市中央区荒戸3
8.2万円 / 管理費7,500円
敷
無料礼
16.4万円1LDK / 34.87㎡ / 4階
賃貸マンション
グランフォーレ西新
地下鉄空港線 / 唐人町駅 徒歩18分
築20年 / 12階建
福岡県福岡市早良区城西1
10.8万円 / 管理費10,000円
敷
無料礼
無料1LDK / 40.05㎡ / 7階
賃貸マンション
エンクレストけやき通り
地下鉄七隈線 / 六本松駅 徒歩13分
築28年 / 8階建
福岡県福岡市中央区赤坂3
8.4万円 / 管理費5,000円
敷
無料礼
16.8万円1LDK / 33.96㎡ / 7階
賃貸マンション
福岡市中央区 13階建 2007年築

地下鉄空港線 / 唐人町駅 徒歩18分
築19年 / 13階建
福岡県福岡市中央区港3丁目

7.5万円 / 管理費なし
敷
無料礼
15万円1LDK / 40.74㎡ / 8階
賃貸マンション
カーサビアンカ西公園
地下鉄空港線 / 唐人町駅 徒歩16分
築13年 / 10階建
福岡県福岡市中央区西公園
家賃カード決済可
9.4万円 / 管理費8,000円
敷
無料礼
18.8万円1LDK / 40.04㎡ / 8階
賃貸マンション
ネストピア唐人町駅前
地下鉄空港線 / 唐人町駅 徒歩3分
築9年 / 12階建
福岡県福岡市中央区唐人町1
10.4万円 / 管理費5,000円
敷
無料礼
20.8万円1LDK / 34.45㎡ / 9階
賃貸マンション
ヴァン ド メール唐人
地下鉄空港線 / 唐人町駅 徒歩4分
築7年 / 7階建
福岡県福岡市中央区唐人町2
10万円 / 管理費8,500円
敷
無料礼
20万円1LDK / 34.37㎡ / 7階
賃貸マンション
iN SHAPE 港
地下鉄空港線 / 唐人町駅 徒歩20分
築4年 / 13階建
福岡県福岡市中央区港1
8.2万円 / 管理費3,000円
敷
無料礼
16.4万円1LDK / 34.2㎡ / 7階
賃貸マンション
地下鉄空港線 唐人町駅 8階建 築3年
地下鉄空港線 / 唐人町駅 徒歩7分
築3年 / 8階建
福岡県福岡市中央区今川1
9.8万円 / 管理費5,000円
敷
9.8万円礼
19.6万円1LDK / 34.11㎡ / 7階
賃貸マンション
地下鉄空港線 唐人町駅 8階建 築15年
地下鉄空港線 / 唐人町駅 徒歩4分
築15年 / 8階建
福岡県福岡市中央区荒戸3
8.2万円 / 管理費7,500円
敷
無料礼
16.4万円1LDK / 34.87㎡ / 4階
賃貸マンション
バウスステージ大濠
地下鉄空港線 / 唐人町駅 徒歩7分
築3年 / 8階建
福岡県福岡市中央区今川1
8.9万円 / 管理費5,000円
敷
8.9万円礼
17.8万円1LDK / 34.11㎡ / 4階
賃貸マンション
地下鉄空港線 大濠公園駅 13階建 築5年
地下鉄空港線 / 唐人町駅 徒歩20分
築4年 / 13階建
福岡県福岡市中央区港1
8.2万円 / 管理費3,000円
敷
無料礼
16.4万円1LDK / 34.2㎡ / 7階
賃貸マンション
グランジュ大濠
地下鉄空港線 / 唐人町駅 徒歩4分
築15年 / 8階建
福岡県福岡市中央区荒戸3
8.2万円 / 管理費7,500円
敷
無料礼
16.4万円1LDK / 34.87㎡ / 4階
賃貸マンション
グランフォーレ西新
地下鉄空港線 / 唐人町駅 徒歩18分
築20年 / 12階建
福岡県福岡市早良区城西1
10.8万円 / 管理費10,000円
敷
無料礼
無料1LDK / 40.05㎡ / 7階
賃貸マンション
エンクレストけやき通り
地下鉄七隈線 / 六本松駅 徒歩13分
築28年 / 8階建
福岡県福岡市中央区赤坂3
8.4万円 / 管理費5,000円
敷
無料礼
16.8万円1LDK / 33.96㎡ / 7階
