江東区佐賀2丁目 地上8階地下1階建 2009年築(東京都江東区 / 水天宮前駅) の賃貸物件情報
募集中のお部屋が1件あります










1/5
1/5
- 建物
- マンション (鉄筋コンクリート)
- 築年数
- 築17年 (2009年)
- 駐車場
- 無
- 交通
- 東京メトロ半蔵門線 / 水天宮前駅徒歩8分
- 都営大江戸線 / 清澄白河駅徒歩12分
- 住所
- 東京都江東区佐賀2丁目
その他
- 駐車/駐輪
- 無
- 入居時期
- 相談
- 損保
- 住宅保険: 要
- 保証代行人
- 利用可 費用: 利用保証会社必須~50%(最低保証料5万円)
- その他費用
- -
- 情報
情報登録日:2026/2/27
情報更新日:2026/4/2
次回更新予定日:2026/4/8
- 備考
- 現況: 居住中 契約期間: 2年 自社管理番号: 1473373
この建物からのPick Up
1DK/3階
1/14
1/14
15.45 万円 / 管理費20,000円
- 敷金
- 15.45万円
- 保証金
- なし
- 礼金
- 15.45万円
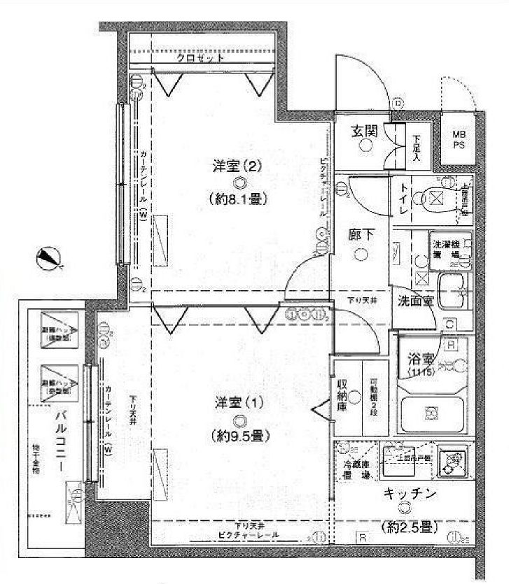
- 広さ
- 37.8㎡
- 階数
- 3階 / 8階建
- 間取り
- 1DK (DK6.2帖 / 洋6.0帖)
- 向き
- 北西
無料で10秒! カンタンお問い合わせ

江東区佐賀2丁目 地上8階地下1階建 2009年築
敷
15.45万円礼
15.45万円特徴
バス・トイレ別
2階以上
エアコン付き
ペット相談可
駐車場あり
室内洗濯機置場
オートロック
洗面所独立
- 入居条件
- ペット相談、保証人不要、二人入居可
- バス・トイレ
- 専用バス、浴室乾燥機、バストイレ別、専用トイレ、温水洗浄便座、洗面所独立
- キッチン
- システムキッチン
- セキュリティ
- オートロック
- 室内設備
- BS、クロゼット、エアコン、室内洗濯置、シューズインクロゼット、フローリング、CS
- 部屋の特徴
- バルコニー、二階以上
- 共用部
- エレベーター、駐輪場、宅配ボックス、バイク置場
- その他の特徴
- 分譲賃貸、デザイナーズ、外壁タイル張り、都市ガス
無料で10秒! カンタンお問い合わせ

江東区佐賀2丁目 地上8階地下1階建 2009年築
敷
15.45万円礼
15.45万円おすすめ物件 (10件)
賃貸マンション
中央区日本橋浜町3丁目 地上8階地下2階建 1966年築
東京メトロ半蔵門線 / 水天宮前駅 徒歩13分
築60年 / 地上8階地下2階建
東京都中央区日本橋浜町3丁目26-12
12.8万円 / 管理費10,000円
敷
12.8万円礼
12.8万円1K / 48.3㎡ / 5階
賃貸マンション
シルバースティック
)
都営大江戸線 / 清澄白河駅 徒歩5分
築37年 / 7階建
東京都江東区森下2丁目1-2
)
13.5万円 / 管理費10,000円
敷
13.5万円礼
13.5万円2DK / 45.62㎡ / 5階
賃貸マンション
シュポール清澄白河

東京メトロ半蔵門線 / 清澄白河駅 徒歩4分
築17年 / 10階建
東京都江東区白河3丁目8-15

14.8万円 / 管理費11,000円
敷
無料礼
29.6万円1K / 38.96㎡ / 4階
賃貸マンション
中央区新川1丁目 10階建 1978年築

東京メトロ半蔵門線 / 水天宮前駅 徒歩8分
築48年 / 10階建
東京都中央区新川1丁目

15万円 / 管理費5,000円
敷
15万円礼
15万円1LDK / 38.88㎡ / 5階
賃貸アパート
ベルコート千田
)
都営大江戸線 / 清澄白河駅 徒歩20分
築16年 / 3階建
東京都江東区千田20-14
)
13.4万円 / 管理費5,000円
敷
13.4万円礼
13.4万円1LDK / 38㎡ / 1階
賃貸マンション
中央区日本橋浜町3丁目 地上8階地下2階建 1966年築
東京メトロ半蔵門線 / 水天宮前駅 徒歩13分
築60年 / 地上8階地下2階建
東京都中央区日本橋浜町3丁目26-12
12.8万円 / 管理費10,000円
敷
12.8万円礼
12.8万円1K / 48.3㎡ / 5階
賃貸マンション
シルバースティック
)
都営大江戸線 / 清澄白河駅 徒歩5分
築37年 / 7階建
東京都江東区森下2丁目1-2
)
13.5万円 / 管理費10,000円
敷
13.5万円礼
13.5万円2DK / 45.62㎡ / 5階
賃貸マンション
シュポール清澄白河

東京メトロ半蔵門線 / 清澄白河駅 徒歩4分
築17年 / 10階建
東京都江東区白河3丁目8-15

14.8万円 / 管理費11,000円
敷
無料礼
29.6万円1K / 38.96㎡ / 4階
賃貸マンション
中央区新川1丁目 10階建 1978年築

東京メトロ半蔵門線 / 水天宮前駅 徒歩8分
築48年 / 10階建
東京都中央区新川1丁目

15万円 / 管理費5,000円
敷
15万円礼
15万円1LDK / 38.88㎡ / 5階
賃貸アパート
ベルコート千田
)
都営大江戸線 / 清澄白河駅 徒歩20分
築16年 / 3階建
東京都江東区千田20-14
)
13.4万円 / 管理費5,000円
敷
13.4万円礼
13.4万円1LDK / 38㎡ / 1階









)
)
)
)


