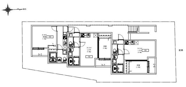
大阪市 東淀川区瑞光5丁目 3階建 2018年築1K/1階/103(大阪府大阪市東淀川区 / 井高野駅)の賃貸
1/26
1/26
5.4万円
初期費用を知りたい管理費3,000円
- 敷金
- 無料
- 保証金
- なし
- 礼金
- 10.8万円
- 広さ
- 24.88㎡
- 階数
- 1階 / 3階建
- 間取り
- 1K
- 建物
- アパート (木造)
- 築年数
- 築8年
- 向き
- 東
- 交通
- 地下鉄今里筋線 / 井高野駅徒歩11分
- 地下鉄今里筋線 / 瑞光四丁目駅徒歩12分
- 地下鉄今里筋線 / だいどう豊里駅徒歩19分
- 阪急京都線 / 上新庄駅徒歩21分
- 阪急京都線 / 相川駅徒歩23分
- 住所
- 大阪府大阪市 東淀川区瑞光5丁目
ライフ江口店 268m
サンディ北江口店 631m
コノミヤ摂津店 878m
ローソン東淀川瑞光店 144m
ローソンストア100東淀川瑞光店 219m
ファミリーマート武岡小松四丁目店 567m
無料で10秒! カンタンお問い合わせ

大阪市 東淀川区瑞光5丁目 3階建 2018年築
敷
無料礼
10.8万円特徴
バス・トイレ別
2階以上
エアコン付き
ペット相談可
駐車場あり
室内洗濯機置場
オートロック
洗面所独立
- 入居条件
- 単身者相談、保証人不要、敷金不要、即入居可最新の空室状況が知りたい
- バス・トイレ
- シャワー、給湯、3点給湯、洗面台、バストイレ別、浴室乾燥機、追焚機能浴室、脱衣所、温水洗浄便座、洗面所独立
- キッチン
- ガスコンロ対応、2口コンロ、システムキッチン
- セキュリティ
- オートロック
- 室内設備
- インターネット対応、ネット使用料不要、エアコン、シューズボックス、クロゼット、室内洗濯置、24時間換気システム、フローリングお部屋の詳しい情報を知りたい
- 部屋の特徴
- 角住戸、バルコニー写真を送ってほしい
- 共用部
- 敷地内ごみ置き場
- その他の特徴
- 駐車場あり、プロパンガス、公営水道、下水、デザイナーズ
無料で10秒! カンタンお問い合わせ

大阪市 東淀川区瑞光5丁目 3階建 2018年築
敷
無料礼
10.8万円同じ建物で掲載中の物件 (1件)
不動産会社からのコメント
当店では、ベテランスタッフがお客様に安心して新生活を送って頂けますよう精一杯のサポートを致しますm(._.)mご内見の際は、現地集合やお問い合わせ物件の最寄り駅集合も可能です♪また、JR大阪駅から1駅隣りの天満駅にございますので、お立ち寄りの際も便利です(^^♪初期費用のクレジット決済も可能ですので、ご利用の際はスタッフまでお申し付け下さいませ(^o^)/
その他
- 駐車/駐輪
- 近隣 費用: 16,500円(税込) 距離: 200m / なし駐車可能な車種や台数を知りたい
- 入居時期
- 損保
- 住宅保険: 要
- 保証人代行
- 連帯保証人: 不要+保証会社利用が必要 保証人代行: 必須 保証人代行会社: オリコフォレントインシュア 初期費用は総賃料の100%
- その他費用
初期費用を知りたい月額費用(ルームサポートサービス:0.27万円/他):3,085円
- 情報
情報登録日:2026/3/31
情報更新日:2026/3/22
次回更新予定日:2026/4/26
- 備考
- 契約期間: 2年
取扱い会社
- 取扱い会社
- 株式会社サイラス ホームメイトFC天満駅前店条件が近い物件も紹介してほしい
- 免許番号
- 国土交通大臣(1)第10411号
- 取引態様
- 一般媒介
- 所在地
- 大阪府大阪市北区浪花町2-1 ユニ・アルス扇町公園1F
- 電話番号
- 06-6131-9300
- 営業時間
- 10:00~19:00
- 定休日
- 無(年末年始)
おすすめ物件 (20件)
賃貸アパート
ハーモニーテラス大桐

地下鉄今里筋線 / 瑞光四丁目駅 徒歩7分
築8年 / 3階建
大阪府大阪市東淀川区大桐2丁目

5.7万円 / 管理費4,000円
敷
無料礼
5.7万円1K / 23.12㎡ / 1階
賃貸アパート
レインボーローズ

地下鉄今里筋線 / 瑞光四丁目駅 徒歩13分
築17年 / 2階建
大阪府大阪市東淀川区瑞光5丁目8-52

5.6万円 / 管理費4,100円
敷
無料礼
5.6万円1K / 29.5㎡ / 1階
賃貸マンション
リアコート上新庄

阪急京都線 / 上新庄駅 徒歩8分
築2年 / 4階建
大阪府吹田市東御旅町8-57

家賃カード決済可
7万円 / 管理費5,000円
敷
無料礼
7万円1LDK / 25.57㎡ / 2階
賃貸マンション
Live Casa 上新庄

阪急京都線 / 上新庄駅 徒歩3分
築8年 / 9階建
大阪府大阪市東淀川区小松1丁目9番36号

6.8万円 / 管理費10,000円
敷
無料礼
無料1K / 20.76㎡ / 9階
賃貸マンション
エスポアール2

阪急京都線 / 上新庄駅 徒歩7分
築15年 / 7階建
大阪府大阪市東淀川区上新庄3丁目19番47号

6.4万円 / 管理費6,000円
敷
無料礼
12.8万円ワンルーム / 34.32㎡ / 5階
賃貸マンション
クレアートアドバンス北大阪

地下鉄今里筋線 / だいどう豊里駅 徒歩7分
築20年 / 12階建
大阪府大阪市東淀川区大道南1丁目

5.85万円 / 管理費4,490円
敷
無料礼
11.7万円1K / 25.84㎡ / 7階
賃貸アパート
プレシャス大桐

地下鉄今里筋線 / だいどう豊里駅 徒歩9分
築3年 / 3階建
大阪府大阪市東淀川区大桐3丁目

6.7万円 / 管理費6,000円
敷
無料礼
6.7万円1LDK / 30.68㎡ / 2階
賃貸マンション
大阪市東淀川区下新庄6丁目 5階建 2011年築

阪急京都線 / 上新庄駅 徒歩10分
築15年 / 6階建
大阪府大阪市東淀川区下新庄6丁目12-12

7万円 / 管理費5,000円
敷
無料礼
14万円1K / 30.08㎡ / 2階
賃貸マンション
サムティ上新庄レジデンス

阪急京都線 / 上新庄駅 徒歩3分
築6年 / 9階建
大阪府大阪市東淀川区上新庄3丁目

6.1万円 / 管理費10,000円
敷
無料礼
6.1万円1K / 25.66㎡ / 3階
賃貸マンション
プレサンスNEO上新庄PRIMECRUIS

阪急京都線 / 上新庄駅 徒歩4分
新築 / 13階建
大阪府大阪市東淀川区上新庄3丁目

7.15万円 / 管理費10,000円
敷
無料礼
無料1K / 24.5㎡ / 13階
賃貸アパート
Maison AIKAWA

阪急京都線 / 相川駅 徒歩3分
築7年 / 3階建
大阪府大阪市東淀川区相川1丁目5番19号

家賃カード決済可
6.5万円 / 管理費7,000円
敷
無料礼
10万円1K / 29.31㎡ / 1階
賃貸マンション
グランドロアール上新庄

阪急京都線 / 上新庄駅 徒歩5分
築1年 / 4階建
大阪府大阪市東淀川区上新庄2丁目6番30号

6.05万円 / 管理費9,300円
敷
無料礼
6.05万円1K / 20.88㎡ / 1階
賃貸マンション
レジュールアッシュOSAKAデイフィール

地下鉄今里筋線 / だいどう豊里駅 徒歩7分
築5年 / 12階建
大阪府大阪市東淀川区豊新5丁目

6万円 / 管理費5,000円
敷
無料礼
無料1K / 21.47㎡ / 7階
賃貸マンション
SAMTY KAMISHINJO RESIDENCE

阪急京都線 / 上新庄駅 徒歩1分
築6年 / 9階建
大阪府大阪市東淀川区上新庄3丁目

7.2万円 / 管理費13,000円
敷
無料礼
3.6万円1K / 25.28㎡ / 8階
賃貸マンション
ルミナス上新庄

阪急京都線 / 上新庄駅 徒歩5分
築10年 / 7階建
大阪府大阪市東淀川区小松2丁目17番72号

7.4万円 / 管理費6,000円
敷
無料礼
7.4万円1K / 30.96㎡ / 7階
賃貸マンション
フローライト上新庄駅前

阪急京都線 / 上新庄駅 徒歩3分
築21年 / 8階建
大阪府大阪市東淀川区瑞光1丁目15番16号

7.1万円 / 管理費5,000円
敷
無料礼
無料ワンルーム / 29㎡ / 8階
賃貸マンション
パイン上新庄

阪急京都線 / 上新庄駅 徒歩4分
築18年 / 4階建
大阪府大阪市東淀川区小松1丁目

5.8万円 / 管理費5,000円
敷
無料礼
5.8万円ワンルーム / 21.11㎡ / 4階
賃貸アパート
ハーモニーテラス大桐

地下鉄今里筋線 / 瑞光四丁目駅 徒歩7分
築8年 / 3階建
大阪府大阪市東淀川区大桐2丁目

5.7万円 / 管理費4,000円
敷
無料礼
5.7万円1K / 23.12㎡ / 1階
賃貸アパート
レインボーローズ

地下鉄今里筋線 / 瑞光四丁目駅 徒歩13分
築17年 / 2階建
大阪府大阪市東淀川区瑞光5丁目8-52

5.6万円 / 管理費4,100円
敷
無料礼
5.6万円1K / 29.5㎡ / 1階
賃貸マンション
リアコート上新庄

阪急京都線 / 上新庄駅 徒歩8分
築2年 / 4階建
大阪府吹田市東御旅町8-57

家賃カード決済可
7万円 / 管理費5,000円
敷
無料礼
7万円1LDK / 25.57㎡ / 2階
賃貸マンション
Live Casa 上新庄

阪急京都線 / 上新庄駅 徒歩3分
築8年 / 9階建
大阪府大阪市東淀川区小松1丁目9番36号

6.8万円 / 管理費10,000円
敷
無料礼
無料1K / 20.76㎡ / 9階
賃貸マンション
エスポアール2

阪急京都線 / 上新庄駅 徒歩7分
築15年 / 7階建
大阪府大阪市東淀川区上新庄3丁目19番47号

6.4万円 / 管理費6,000円
敷
無料礼
12.8万円ワンルーム / 34.32㎡ / 5階
賃貸マンション
クレアートアドバンス北大阪

地下鉄今里筋線 / だいどう豊里駅 徒歩7分
築20年 / 12階建
大阪府大阪市東淀川区大道南1丁目

5.85万円 / 管理費4,490円
敷
無料礼
11.7万円1K / 25.84㎡ / 7階
賃貸アパート
プレシャス大桐

地下鉄今里筋線 / だいどう豊里駅 徒歩9分
築3年 / 3階建
大阪府大阪市東淀川区大桐3丁目

6.7万円 / 管理費6,000円
敷
無料礼
6.7万円1LDK / 30.68㎡ / 2階
賃貸マンション
大阪市東淀川区下新庄6丁目 5階建 2011年築

阪急京都線 / 上新庄駅 徒歩10分
築15年 / 6階建
大阪府大阪市東淀川区下新庄6丁目12-12

7万円 / 管理費5,000円
敷
無料礼
14万円1K / 30.08㎡ / 2階
賃貸マンション
サムティ上新庄レジデンス

阪急京都線 / 上新庄駅 徒歩3分
築6年 / 9階建
大阪府大阪市東淀川区上新庄3丁目

6.1万円 / 管理費10,000円
敷
無料礼
6.1万円1K / 25.66㎡ / 3階
賃貸マンション
プレサンスNEO上新庄PRIMECRUIS

阪急京都線 / 上新庄駅 徒歩4分
新築 / 13階建
大阪府大阪市東淀川区上新庄3丁目

7.15万円 / 管理費10,000円
敷
無料礼
無料1K / 24.5㎡ / 13階
賃貸アパート
Maison AIKAWA

阪急京都線 / 相川駅 徒歩3分
築7年 / 3階建
大阪府大阪市東淀川区相川1丁目5番19号

家賃カード決済可
6.5万円 / 管理費7,000円
敷
無料礼
10万円1K / 29.31㎡ / 1階
賃貸マンション
グランドロアール上新庄

阪急京都線 / 上新庄駅 徒歩5分
築1年 / 4階建
大阪府大阪市東淀川区上新庄2丁目6番30号

6.05万円 / 管理費9,300円
敷
無料礼
6.05万円1K / 20.88㎡ / 1階
賃貸マンション
レジュールアッシュOSAKAデイフィール

地下鉄今里筋線 / だいどう豊里駅 徒歩7分
築5年 / 12階建
大阪府大阪市東淀川区豊新5丁目

6万円 / 管理費5,000円
敷
無料礼
無料1K / 21.47㎡ / 7階
賃貸マンション
SAMTY KAMISHINJO RESIDENCE

阪急京都線 / 上新庄駅 徒歩1分
築6年 / 9階建
大阪府大阪市東淀川区上新庄3丁目

7.2万円 / 管理費13,000円
敷
無料礼
3.6万円1K / 25.28㎡ / 8階
賃貸マンション
ルミナス上新庄

阪急京都線 / 上新庄駅 徒歩5分
築10年 / 7階建
大阪府大阪市東淀川区小松2丁目17番72号

7.4万円 / 管理費6,000円
敷
無料礼
7.4万円1K / 30.96㎡ / 7階
賃貸マンション
フローライト上新庄駅前

阪急京都線 / 上新庄駅 徒歩3分
築21年 / 8階建
大阪府大阪市東淀川区瑞光1丁目15番16号

7.1万円 / 管理費5,000円
敷
無料礼
無料ワンルーム / 29㎡ / 8階
賃貸マンション
パイン上新庄

阪急京都線 / 上新庄駅 徒歩4分
築18年 / 4階建
大阪府大阪市東淀川区小松1丁目

5.8万円 / 管理費5,000円
敷
無料礼
5.8万円ワンルーム / 21.11㎡ / 4階
同じ最寄り駅 × 同じ特徴 で探す
































