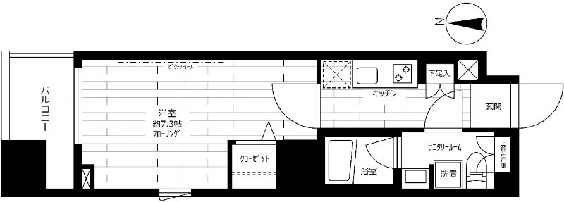
ステージグランデ菊川1K/4階(東京都墨田区 / 菊川駅)の賃貸
1/24
1/24
11.3万円
初期費用を知りたい管理費5,000円
- 敷金
- 11.3万円
- 保証金
- なし
- 礼金
- 11.3万円
- 広さ
- 25.66㎡
- 階数
- 4階 / 10階建
- 間取り
- 1K
- 建物
- マンション (鉄筋コンクリート)
- 築年数
- 築10年
- 向き
- 北
- 交通
- 都営新宿線 / 菊川駅徒歩8分
- 都営大江戸線 / 両国駅徒歩12分
- 住所
- 東京都墨田区緑3丁目
コンビニエンスストア 48m
スーパーマーケット 146m
銀行 255m
セブンイレブン 墨田立川3丁目店 213m
無料で10秒! カンタンお問い合わせ

ステージグランデ菊川
敷
11.3万円礼
11.3万円特徴
バス・トイレ別
2階以上
エアコン付き
ペット相談可
駐車場あり
室内洗濯機置場
オートロック
洗面所独立
- 入居条件
- 初期費用カード決済可、楽器不可、事務所(SOHO)不可、ペット不可最新の空室状況が知りたい
- バス・トイレ
- 専用バス、専用トイレ、バストイレ別、シャワー、給湯、温水洗浄便座、浴室乾燥機、洗面所独立
- キッチン
- ガスコンロ対応、2口コンロ、システムキッチン
- セキュリティ
- オートロック、防犯カメラ
- 室内設備
- エアコン、室内洗濯置、CS、BS、フローリング、光ファイバー、ネット使用料不要、クロゼット、シューズボックス、照明付お部屋の詳しい情報を知りたい
- 部屋の特徴
- バルコニー、角住戸、二階以上写真を送ってほしい
- 共用部
- エレベーター、宅配ボックス、駐輪場
- その他の特徴
- 公営水道、都市ガス、下水、外壁タイル張り、分譲賃貸
無料で10秒! カンタンお問い合わせ

ステージグランデ菊川
敷
11.3万円礼
11.3万円不動産会社からのコメント
☆設備充実1K★インターネット無料☆角部屋・2面採光で通風良好☆オートロック・防犯カメラ・カードキー
システム利用料275円(月額) 初期費用クレジットカード決済可能です!お気軽にお問い合わせください♪
その他
- 駐車/駐輪
- 要確認 / あり駐車可能な車種や台数を知りたい
- 入居時期
- 損保
- 住宅保険: 要
- 保証人代行
- 加入要 費用: 初回:月額総賃料の40% 月次:800円
- その他費用
初期費用を知りたい鍵交換費用:22,000円
アクト安心ライフ24:19,800円
- 情報
情報登録日:2025/12/5
情報更新日:2026/1/23
次回更新予定日:2026/2/6
- 備考
- 現況: 空家 償却・敷引金: 113,000円 更新料: 新賃料の1.0ヶ月分 契約期間: 2年 その他交通: 総武・中央緩行線 錦糸町駅 徒歩15分 自社管理番号: 6481927
取扱い会社
- 取扱い会社
- 株式会社リブマックスリーシング 新橋駅前店条件が近い物件も紹介してほしい
- 免許番号
- 国土交通大臣 (3) 第8116号
- 取引態様
- 仲介
- 所在地
- 東京都港区新橋2丁目6-7 花菱ビル 5F
- 電話番号
- 03-3503-5050
- 定休日
- 無し(年末年始、GW、夏季)
- 所属団体名
- 公益社団法人 全国宅地建物取引業保証協会
おすすめ物件 (20件)
賃貸マンション
フィオレッタ両国

総武線 / 両国駅 徒歩6分
築21年 / 7階建
東京都墨田区両国4丁目7-4

11.8万円 / 管理費7,000円
敷
11.8万円礼
11.8万円1K / 30.09㎡ / 3階
賃貸マンション
墨田区 12階建 2022年築
総武線 / 両国駅 徒歩3分
築4年 / 12階建
東京都墨田区両国1丁目14-9
13.2万円 / 管理費20,000円
敷
無料礼
無料1DK / 25.1㎡ / 9階
賃貸マンション
セナリオフォルム錦糸町

都営大江戸線 / 両国駅 徒歩11分
築5年 / 10階建
東京都墨田区亀沢3丁目

家賃カード決済可
11万円 / 管理費13,000円
敷
無料礼
11万円1K / 25.68㎡ / 3階
賃貸マンション
レジデンス両国駅前
都営大江戸線 / 両国駅 徒歩3分
築20年 / 14階建
東京都墨田区両国4丁目37-10
13万円 / 管理費7,000円
敷
13万円礼
無料ワンルーム / 27.03㎡ / 11階
賃貸マンション
ジェノヴィア両国VIグリーンヴェール
都営大江戸線 / 両国駅 徒歩9分
築4年 / 12階建
東京都墨田区緑3丁目17-11
12万円 / 管理費15,000円
敷
無料礼
無料ワンルーム / 26.53㎡ / 6階
賃貸マンション
プライマルフロント錦糸町
都営新宿線 / 菊川駅 徒歩15分
築6年 / 13階建
東京都墨田区江東橋1丁目7-11
12.3万円 / 管理費10,000円
敷
12.3万円礼
無料ワンルーム / 25.65㎡ / 10階
賃貸マンション
墨田区 11階建 2020年築
都営大江戸線 / 両国駅 徒歩6分
築6年 / 11階建
東京都墨田区緑1丁目1-10
12.7万円 / 管理費10,000円
敷
12.7万円礼
無料1K / 25.78㎡ / 3階
賃貸マンション
パークアクシス錦糸町ウエスト
都営新宿線 / 菊川駅 徒歩9分
築7年 / 9階建
東京都墨田区緑4丁目4-5
11.9万円 / 管理費20,000円
敷
11.9万円礼
無料1K / 25.24㎡ / 3階
賃貸マンション
ラティエラ両国
都営大江戸線 / 両国駅 徒歩7分
築3年 / 10階建
東京都墨田区緑1丁目1-11
12.8万円 / 管理費8,000円
敷
12.8万円礼
無料ワンルーム / 25.95㎡ / 4階
賃貸マンション
ザ・パークハビオ住吉
都営新宿線 / 菊川駅 徒歩6分
築6年 / 7階建
東京都墨田区江東橋5丁目2-5
12.5万円 / 管理費10,000円
敷
12.5万円礼
無料ワンルーム / 25.53㎡ / 2階
賃貸マンション
エスタート両国(旧ディームス両国)
都営新宿線 / 菊川駅 徒歩9分
築5年 / 11階建
東京都墨田区緑3丁目11-8
12.2万円 / 管理費12,000円
敷
無料礼
無料1K / 25.43㎡ / 3階
賃貸マンション
パークアクシス住吉
都営新宿線 / 菊川駅 徒歩8分
築17年 / 7階建
東京都墨田区江東橋5丁目5-7
11.4万円 / 管理費8,000円
敷
11.4万円礼
11.4万円1K / 24.4㎡ / 4階
賃貸マンション
ディームス両国
都営新宿線 / 菊川駅 徒歩9分
築5年 / 11階建
東京都墨田区緑3丁目11-8
12.6万円 / 管理費12,000円
敷
12.6万円礼
無料1K / 25.14㎡ / 10階
賃貸マンション
台東区 14階建 2020年築
総武線 / 両国駅 徒歩12分
築6年 / 14階建
東京都台東区柳橋1丁目9-9
13.3万円 / 管理費12,000円
敷
無料礼
無料1K / 25.49㎡ / 8階
賃貸マンション
グランドコンシェルジュ錦糸町アジールコート

都営新宿線 / 菊川駅 徒歩9分
築17年 / 10階建
東京都墨田区緑3丁目

9.7万円 / 管理費5,000円
敷
9.7万円礼
9.7万円1K / 20.89㎡ / 2階
賃貸マンション
フィオレッタ両国

総武線 / 両国駅 徒歩6分
築21年 / 7階建
東京都墨田区両国4丁目7-4

11.8万円 / 管理費7,000円
敷
11.8万円礼
11.8万円1K / 30.09㎡ / 3階
賃貸マンション
墨田区 12階建 2022年築
総武線 / 両国駅 徒歩3分
築4年 / 12階建
東京都墨田区両国1丁目14-9
13.2万円 / 管理費20,000円
敷
無料礼
無料1DK / 25.1㎡ / 9階
賃貸マンション
セナリオフォルム錦糸町

都営大江戸線 / 両国駅 徒歩11分
築5年 / 10階建
東京都墨田区亀沢3丁目

家賃カード決済可
11万円 / 管理費13,000円
敷
無料礼
11万円1K / 25.68㎡ / 3階
賃貸マンション
レジデンス両国駅前
都営大江戸線 / 両国駅 徒歩3分
築20年 / 14階建
東京都墨田区両国4丁目37-10
13万円 / 管理費7,000円
敷
13万円礼
無料ワンルーム / 27.03㎡ / 11階
賃貸マンション
ジェノヴィア両国VIグリーンヴェール
都営大江戸線 / 両国駅 徒歩9分
築4年 / 12階建
東京都墨田区緑3丁目17-11
12万円 / 管理費15,000円
敷
無料礼
無料ワンルーム / 26.53㎡ / 6階
賃貸マンション
プライマルフロント錦糸町
都営新宿線 / 菊川駅 徒歩15分
築6年 / 13階建
東京都墨田区江東橋1丁目7-11
12.3万円 / 管理費10,000円
敷
12.3万円礼
無料ワンルーム / 25.65㎡ / 10階
賃貸マンション
墨田区 11階建 2020年築
都営大江戸線 / 両国駅 徒歩6分
築6年 / 11階建
東京都墨田区緑1丁目1-10
12.7万円 / 管理費10,000円
敷
12.7万円礼
無料1K / 25.78㎡ / 3階
賃貸マンション
パークアクシス錦糸町ウエスト
都営新宿線 / 菊川駅 徒歩9分
築7年 / 9階建
東京都墨田区緑4丁目4-5
11.9万円 / 管理費20,000円
敷
11.9万円礼
無料1K / 25.24㎡ / 3階
賃貸マンション
ラティエラ両国
都営大江戸線 / 両国駅 徒歩7分
築3年 / 10階建
東京都墨田区緑1丁目1-11
12.8万円 / 管理費8,000円
敷
12.8万円礼
無料ワンルーム / 25.95㎡ / 4階
賃貸マンション
ザ・パークハビオ住吉
都営新宿線 / 菊川駅 徒歩6分
築6年 / 7階建
東京都墨田区江東橋5丁目2-5
12.5万円 / 管理費10,000円
敷
12.5万円礼
無料ワンルーム / 25.53㎡ / 2階
賃貸マンション
エスタート両国(旧ディームス両国)
都営新宿線 / 菊川駅 徒歩9分
築5年 / 11階建
東京都墨田区緑3丁目11-8
12.2万円 / 管理費12,000円
敷
無料礼
無料1K / 25.43㎡ / 3階
賃貸マンション
パークアクシス住吉
都営新宿線 / 菊川駅 徒歩8分
築17年 / 7階建
東京都墨田区江東橋5丁目5-7
11.4万円 / 管理費8,000円
敷
11.4万円礼
11.4万円1K / 24.4㎡ / 4階
賃貸マンション
ディームス両国
都営新宿線 / 菊川駅 徒歩9分
築5年 / 11階建
東京都墨田区緑3丁目11-8
12.6万円 / 管理費12,000円
敷
12.6万円礼
無料1K / 25.14㎡ / 10階
賃貸マンション
台東区 14階建 2020年築
総武線 / 両国駅 徒歩12分
築6年 / 14階建
東京都台東区柳橋1丁目9-9
13.3万円 / 管理費12,000円
敷
無料礼
無料1K / 25.49㎡ / 8階
賃貸マンション
グランドコンシェルジュ錦糸町アジールコート

都営新宿線 / 菊川駅 徒歩9分
築17年 / 10階建
東京都墨田区緑3丁目

9.7万円 / 管理費5,000円
敷
9.7万円礼
9.7万円1K / 20.89㎡ / 2階



































