アクティ東仲通り2LDK/3階(東京都中央区 / 勝どき駅)の賃貸
1/24
1/24
26万円
初期費用を知りたい管理費10,000円
- 敷金
- 26万円
- 保証金
- なし
- 礼金
- 26万円
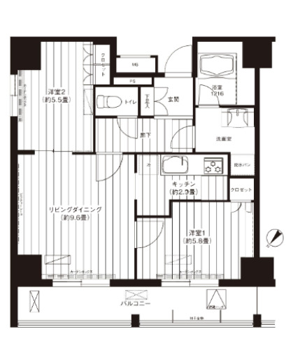
- 広さ
- 51.4㎡
- 階数
- 3階 / 8階建
- 間取り
- 2LDK
- 建物
- マンション (鉄筋コンクリート)
- 築年数
- 築14年
- 向き
- 南東
- 交通
- 都営大江戸線 / 勝どき駅徒歩4分
- 東京メトロ有楽町線 / 月島駅徒歩17分
- 住所
- 東京都中央区勝どき4丁目
コンビニエンスストア 187m
スーパーマーケット 69m
総合病院 1050m
ドラッグストア 1081m
商店街 462m
maruetsu(マルエツ) 勝どき六丁目店 377m
無料で10秒! カンタンお問い合わせ

アクティ東仲通り
敷
26万円礼
26万円特徴
バス・トイレ別
2階以上
エアコン付き
ペット相談可
駐車場あり
室内洗濯機置場
オートロック
洗面所独立
- 入居条件
- 初期費用カード決済可、ペット不可、保証人不要最新の空室状況が知りたい
- バス・トイレ
- 専用バス、専用トイレ、バストイレ別、シャワー、給湯、追焚機能浴室、シャワー付洗面化粧台、温水洗浄便座、浴室乾燥機、洗面所独立、オートバス
- キッチン
- ガスコンロ対応、2口コンロ、システムキッチン
- セキュリティ
- オートロック、防犯カメラ
- 室内設備
- エアコン、室内洗濯置、CS、BS、フローリング、光ファイバー、床暖房、クロゼット、シューズボックス、照明付お部屋の詳しい情報を知りたい
- 部屋の特徴
- バルコニー、角住戸、二階以上写真を送ってほしい
- 共用部
- エレベーター、宅配ボックス、駐輪場、バイク置場
- その他の特徴
- 公営水道、都市ガス、下水、デザイナーズ、分譲賃貸
無料で10秒! カンタンお問い合わせ

アクティ東仲通り
敷
26万円礼
26万円不動産会社からのコメント
★エリア最大級★経験豊富なスタッフが多数在籍しております♪ 初期費用クレジット支払可能!オンライン
初期費用クレジット支払可能!オンライン内覧・オンライン契約等弊社に一度も来店せずとも問題ありません♪弊社ではネットに掲載されている物件も全てご紹介可能になりますので気になる物件は全て申し付けください★
その他
- 駐車/駐輪
- 空無 / あり駐車可能な車種や台数を知りたい
- 入居時期
- 損保
- 住宅保険: 要
- 保証人代行
- 加入要 費用: 初回保証料賃料共益費等50%(連保無)、以後1年毎25%
- その他費用
初期費用を知りたい室内清掃費用:39,600円
エアコン清掃費:16,500円
鍵交換費用:16,500円
- 情報
情報登録日:2026/1/24
情報更新日:2026/2/1
次回更新予定日:2026/2/15
- 備考
- 現況: 居住中 更新料: 新賃料の1.0ヶ月分 契約期間: 2年 管理人: 巡回 その他交通: 東京都大江戸線 築地市場駅 徒歩22分 自社管理番号: 6622157
取扱い会社
- 取扱い会社
- 株式会社リブマックスリーシング 神田店条件が近い物件も紹介してほしい
- 免許番号
- 国土交通大臣 (3) 第8116号
- 取引態様
- 仲介
- 所在地
- 東京都千代田区鍛冶町2丁目1-1 ズイホウビル 6階
- 電話番号
- 03-5295-1515
- 定休日
- 無し(年末年始、GW、夏季)
- 所属団体名
- 公益社団法人 全国宅地建物取引業保証協会
おすすめ物件 (14件)
賃貸マンション
江東区 21階建 2008年築
東京メトロ有楽町線 / 月島駅 徒歩14分
築18年 / 地上20階地下1階建
東京都江東区豊洲1丁目2-39
26万円 / 管理費6,000円
敷
26万円礼
26万円2LDK / 53.53㎡ / 18階
賃貸マンション
晴海フラッグ ポートビレッジ B棟(HARUMI FLAG)
都営大江戸線 / 勝どき駅 徒歩12分
築2年 / 17階建
東京都中央区晴海5丁目3-2
27万円 / 管理費20,000円
敷
27万円礼
無料2LDK / 56.48㎡ / 15階
賃貸マンション
中央区佃2丁目 13階建 2020年築

東京メトロ有楽町線 / 月島駅 徒歩2分
築6年 / 13階建
東京都中央区佃2丁目

28万円 / 管理費10,000円
敷
28万円礼
28万円2LDK / 55.15㎡ / 13階
賃貸マンション
LUMICITY月島

都営大江戸線 / 月島駅 徒歩4分
築1年 / 8階建
東京都中央区月島4丁目12-9

26.8万円 / 管理費なし
敷
26.8万円礼
53.6万円2LDK / 46.52㎡ / 8階
賃貸マンション
THETOKYOTOWERSMIDTOWERS

都営大江戸線 / 勝どき駅 徒歩6分
築18年 / 地上58階地下2階建
東京都中央区勝どき6丁目

25.5万円 / 管理費15,000円
敷
51万円礼
25.5万円1LDK / 53.74㎡ / 27階
賃貸マンション
中央区勝どき4丁目 8階建 2012年築

都営大江戸線 / 勝どき駅 徒歩5分
築14年 / 8階建
東京都中央区勝どき4丁目

26万円 / 管理費10,000円
敷
26万円礼
26万円2LDK / 51.4㎡ / 7階
賃貸マンション
中央区晴海2丁目 地上49階地下2階建 2016年築

東京メトロ有楽町線 / 月島駅 徒歩13分
築10年 / 49階建
東京都中央区晴海2丁目

24.9万円 / 管理費なし
敷
24.9万円礼
24.9万円1LDK / 48.56㎡ / 29階
賃貸マンション
コスモグラン勝どき

都営大江戸線 / 勝どき駅 徒歩2分
築13年 / 12階建
東京都中央区勝どき4丁目

26.8万円 / 管理費8,100円
敷
26.8万円礼
26.8万円2LDK / 55.65㎡ / 5階
賃貸マンション
東京メトロ有楽町線 豊洲駅 地下1地上20階建 築18年
東京メトロ有楽町線 / 月島駅 徒歩16分
築18年 / 地上20階地下1階建
東京都江東区豊洲1
27.9万円 / 管理費7,000円
敷
27.9万円礼
27.9万円2LDK / 57.19㎡ / 6階
賃貸マンション
リバーシティ21新川
東京メトロ有楽町線 / 月島駅 徒歩13分
築31年 / 35階建
東京都中央区新川2
27.5万円 / 管理費10,000円
敷
27.5万円礼
27.5万円2LDK / 60.59㎡ / 10階
賃貸マンション
リバーシティ21イーストタワーズII
東京メトロ有楽町線 / 月島駅 徒歩8分
築26年 / 地上43階地下2階建
東京都中央区佃2
26.6万円 / 管理費10,000円
敷
26.6万円礼
26.6万円1LDK / 55.57㎡ / 28階
賃貸マンション
東京メトロ有楽町線 月島駅 地下1地上12階建 築11年
都営大江戸線 / 月島駅 徒歩2分
築11年 / 地上12階地下1階建
東京都中央区月島1
26.9万円 / 管理費なし
敷
26.9万円礼
無料1LDK / 49.1㎡ / 5階
賃貸マンション
江東区 21階建 2008年築
東京メトロ有楽町線 / 月島駅 徒歩14分
築18年 / 地上20階地下1階建
東京都江東区豊洲1丁目2-39
26万円 / 管理費6,000円
敷
26万円礼
26万円2LDK / 53.53㎡ / 18階
賃貸マンション
晴海フラッグ ポートビレッジ B棟(HARUMI FLAG)
都営大江戸線 / 勝どき駅 徒歩12分
築2年 / 17階建
東京都中央区晴海5丁目3-2
27万円 / 管理費20,000円
敷
27万円礼
無料2LDK / 56.48㎡ / 15階
賃貸マンション
中央区佃2丁目 13階建 2020年築

東京メトロ有楽町線 / 月島駅 徒歩2分
築6年 / 13階建
東京都中央区佃2丁目

28万円 / 管理費10,000円
敷
28万円礼
28万円2LDK / 55.15㎡ / 13階
賃貸マンション
LUMICITY月島

都営大江戸線 / 月島駅 徒歩4分
築1年 / 8階建
東京都中央区月島4丁目12-9

26.8万円 / 管理費なし
敷
26.8万円礼
53.6万円2LDK / 46.52㎡ / 8階
賃貸マンション
THETOKYOTOWERSMIDTOWERS

都営大江戸線 / 勝どき駅 徒歩6分
築18年 / 地上58階地下2階建
東京都中央区勝どき6丁目

25.5万円 / 管理費15,000円
敷
51万円礼
25.5万円1LDK / 53.74㎡ / 27階
賃貸マンション
中央区勝どき4丁目 8階建 2012年築

都営大江戸線 / 勝どき駅 徒歩5分
築14年 / 8階建
東京都中央区勝どき4丁目

26万円 / 管理費10,000円
敷
26万円礼
26万円2LDK / 51.4㎡ / 7階
賃貸マンション
中央区晴海2丁目 地上49階地下2階建 2016年築

東京メトロ有楽町線 / 月島駅 徒歩13分
築10年 / 49階建
東京都中央区晴海2丁目

24.9万円 / 管理費なし
敷
24.9万円礼
24.9万円1LDK / 48.56㎡ / 29階
賃貸マンション
コスモグラン勝どき

都営大江戸線 / 勝どき駅 徒歩2分
築13年 / 12階建
東京都中央区勝どき4丁目

26.8万円 / 管理費8,100円
敷
26.8万円礼
26.8万円2LDK / 55.65㎡ / 5階
賃貸マンション
東京メトロ有楽町線 豊洲駅 地下1地上20階建 築18年
東京メトロ有楽町線 / 月島駅 徒歩16分
築18年 / 地上20階地下1階建
東京都江東区豊洲1
27.9万円 / 管理費7,000円
敷
27.9万円礼
27.9万円2LDK / 57.19㎡ / 6階
賃貸マンション
リバーシティ21新川
東京メトロ有楽町線 / 月島駅 徒歩13分
築31年 / 35階建
東京都中央区新川2
27.5万円 / 管理費10,000円
敷
27.5万円礼
27.5万円2LDK / 60.59㎡ / 10階
賃貸マンション
リバーシティ21イーストタワーズII
東京メトロ有楽町線 / 月島駅 徒歩8分
築26年 / 地上43階地下2階建
東京都中央区佃2
26.6万円 / 管理費10,000円
敷
26.6万円礼
26.6万円1LDK / 55.57㎡ / 28階
賃貸マンション
東京メトロ有楽町線 月島駅 地下1地上12階建 築11年
都営大江戸線 / 月島駅 徒歩2分
築11年 / 地上12階地下1階建
東京都中央区月島1
26.9万円 / 管理費なし
敷
26.9万円礼
無料1LDK / 49.1㎡ / 5階
同じ最寄り駅 × 同じ特徴 で探す
同じ市区町村 × 同じ特徴 で探す




























