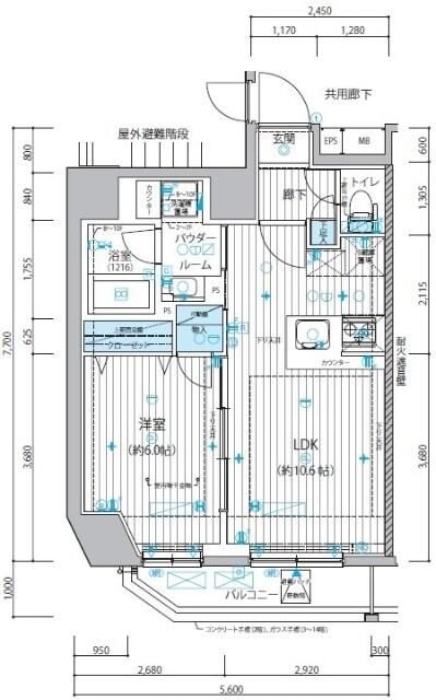
ドゥーエ入谷I2LDK/8階(東京都台東区 / 入谷駅)の賃貸
1/23
1/23
20万円
初期費用を知りたい管理費20,000円
- 敷金
- 無料
- 保証金
- なし
- 礼金
- 無料
- 広さ
- 40.41㎡
- 階数
- 8階 / 12階建
- 間取り
- 2LDK
- 建物
- マンション (鉄筋コンクリート)
- 築年数
- 築3年
- 向き
- 西
- 交通
- 東京メトロ日比谷線 / 入谷駅徒歩3分
- 山手線 / 鶯谷駅徒歩13分
- 住所
- 東京都台東区入谷2丁目35-5
コンビニエンスストア 1490m
スーパーマーケット 730m
総合病院 1710m
銀行 1920m
下谷神社前郵便局 1590m
無料で10秒! カンタンお問い合わせ
ドゥーエ入谷I
敷
無料礼
無料特徴
バス・トイレ別
2階以上
エアコン付き
ペット相談可
駐車場あり
室内洗濯機置場
オートロック
洗面所独立
- 入居条件
- 保証人不要、ペット相談、二人入居可、家賃・初期費用カード決済可、フリーレント最新の空室状況が知りたい
- バス・トイレ
- 給湯、専用バス、追焚機能浴室、浴室乾燥機、シャワー、専用トイレ、温水洗浄便座、バストイレ別、シャワー付洗面化粧台、洗面所独立
- キッチン
- ガスコンロ対応、2口コンロ、システムキッチン
- セキュリティ
- オートロック、防犯カメラ、24時間セキュリティ
- 室内設備
- BS、CS、インターネット対応、光ファイバー、エアコン、クロゼット、シューズボックス、室内洗濯置、フローリング、ネット使用料不要お部屋の詳しい情報を知りたい
- 部屋の特徴
- バルコニー、角住戸、二階以上写真を送ってほしい
- 共用部
- エレベーター、宅配ボックス、駐輪場
- その他の特徴
- 都市ガス、外壁タイル張り、デザイナーズ
無料で10秒! カンタンお問い合わせ
ドゥーエ入谷I
敷
無料礼
無料不動産会社からのコメント
クレジットカード決済・初期費用分割払い対応可能物件です!サポートサービスとして当社未掲載物件の追加提案・家電販売を承っておりますのでお気軽にお問合せ下さい!
■都内でのお部屋探しは【 御茶ノ水不動産スーペリアホーム 】にお任せ下さい。経験豊富なスタッフがお客様のお部屋探しをサポートいたします。
その他
- 駐車/駐輪
- 無 / あり駐車可能な車種や台数を知りたい
- 入居時期
- 2026年6月下旬最新の空室状況が知りたい
- 損保
- 住宅保険: 要
- 保証人代行
- 加入要 会社名: その他 費用: 詳細はお問い合わせください。
- その他費用
初期費用を知りたい鍵交換費用:41,800円
- 情報
情報登録日:2026/4/10
情報更新日:2026/4/20
次回更新予定日:2026/4/28
- 備考
- 現況: 居住中 更新料: 新賃料の1.0ヶ月分 フリーレント: 1ヶ月 契約期間: 2年 管理人: 巡回
取扱い会社
- 取扱い会社
- スーペリアス株式会社 スーペリアホーム条件が近い物件も紹介してほしい
- 免許番号
- 東京都知事(2)第99564号
- 取引態様
- 一般媒介
- 所在地
- 東京都文京区本郷3丁目2-2リベール御茶ノ水ビル1階
- 電話番号
- 03-6801-5861
- 営業時間
- 10:00~19:00(年末年始)
- 定休日
- 水曜日
- 所属団体名
- 全国宅地建物取引業協会
おすすめ物件 (20件)
賃貸マンション
WeaveBase-UENONORTH

東京メトロ日比谷線 / 入谷駅 徒歩5分
新築 / 13階建
東京都台東区入谷2丁目20-7

19.5万円 / 管理費15,000円
敷
無料礼
無料1LDK / 40.93㎡ / 4階
賃貸マンション
Log入谷/ログ入谷

東京メトロ日比谷線 / 入谷駅 徒歩5分
築2年 / 12階建
東京都台東区竜泉1丁目

18.1万円 / 管理費15,000円
敷
無料礼
無料1LDK / 40.55㎡ / 6階
賃貸マンション
アーバンパーク入谷
東京メトロ日比谷線 / 入谷駅 徒歩5分
築4年 / 11階建
東京都台東区入谷2丁目35-7
18万円 / 管理費20,000円
敷
無料礼
無料1LDK / 40.57㎡ / 11階
賃貸マンション
J.リヴェール上野入谷プレイス
東京メトロ日比谷線 / 入谷駅 徒歩4分
築4年 / 12階建
東京都台東区下谷2丁目10-13
20.1万円 / 管理費20,000円
敷
20.1万円礼
無料2LDK / 41.86㎡ / 12階
賃貸マンション
ログ入谷(Log入谷)
東京メトロ日比谷線 / 入谷駅 徒歩5分
築2年 / 12階建
東京都台東区竜泉1丁目5-8
18.1万円 / 管理費15,000円
敷
無料礼
無料1LDK / 40.55㎡ / 6階
賃貸マンション
クレストコート上野
東京メトロ日比谷線 / 入谷駅 徒歩7分
築2年 / 14階建
東京都台東区北上野2丁目
18万円 / 管理費15,000円
敷
18万円礼
無料1LDK / 37.07㎡ / 7階
賃貸マンション
ルフォンプログレ浅草入谷
東京メトロ日比谷線 / 入谷駅 徒歩8分
築4年 / 14階建
東京都台東区千束2丁目17-7
21.7万円 / 管理費25,000円
敷
21.7万円礼
21.7万円2LDK / 50.4㎡ / 3階
賃貸マンション
アーバンパーク三ノ輪
東京メトロ日比谷線 / 入谷駅 徒歩10分
築2年 / 10階建
東京都台東区竜泉3丁目11-2
20万円 / 管理費20,000円
敷
無料礼
無料2LDK / 45.92㎡ / 4階
賃貸マンション
オーキッドレジデンス上野
東京メトロ日比谷線 / 入谷駅 徒歩4分
築7年 / 15階建
東京都台東区北上野2丁目18-2
20.3万円 / 管理費12,000円
敷
20.3万円礼
無料1LDK / 41.03㎡ / 2階
賃貸マンション
ミリアレジデンス根岸柳通り

東京メトロ日比谷線 / 入谷駅 徒歩7分
築5年 / 11階建
東京都台東区根岸3丁目

19.5万円 / 管理費10,000円
敷
無料礼
無料1LDK / 41.24㎡ / 10階
賃貸マンション
ディップス上野ノース(DIPS上野NORTH)
東京メトロ日比谷線 / 入谷駅 徒歩4分
築4年 / 13階建
東京都台東区下谷2丁目3-13
18.5万円 / 管理費15,000円
敷
無料礼
18.5万円1LDK / 40.8㎡ / 3階
賃貸マンション
コンフォリア上野入谷
東京メトロ日比谷線 / 入谷駅 徒歩6分
築10年 / 地上14階地下1階建
東京都台東区竜泉2
20.5万円 / 管理費12,000円
敷
20.5万円礼
無料1LDK / 50.36㎡ / 6階
賃貸マンション
コンフォリア台東根岸
東京メトロ日比谷線 / 入谷駅 徒歩6分
築7年 / 11階建
東京都台東区根岸3丁目18-15
家賃カード決済可
19.1万円 / 管理費10,000円
敷
19.1万円礼
無料1LDK / 41.57㎡ / 5階
賃貸マンション
ジェイグランコート上野入谷
東京メトロ日比谷線 / 入谷駅 徒歩4分
新築 / 11階建
東京都台東区入谷2丁目17-3
家賃カード決済可
19.9万円 / 管理費10,000円
敷
無料礼
19.9万円1SLDK / 40.45㎡ / 2階
賃貸マンション
ジェノヴィア上野Ⅱスカイガーデン

東京メトロ日比谷線 / 入谷駅 徒歩7分
築7年 / 11階建
東京都台東区北上野1丁目

19.7万円 / 管理費11,000円
敷
無料礼
19.7万円1LDK / 40.13㎡ / 8階
賃貸マンション
ザ・パークハビオ入谷

東京メトロ日比谷線 / 入谷駅 徒歩2分
築3年 / 14階建
東京都台東区下谷2丁目6-14

19.1万円 / 管理費20,000円
敷
19.1万円礼
無料1LDK / 40.69㎡ / 11階
賃貸マンション
パークアクシス台東根岸
東京メトロ日比谷線 / 入谷駅 徒歩8分
築17年 / 14階建
東京都台東区根岸5丁目
家賃カード決済可
21.9万円 / 管理費10,000円
敷
21.9万円礼
21.9万円2DK / 48.21㎡ / 11階
賃貸マンション
プラウドフラット浅草アベニュー

東京メトロ日比谷線 / 入谷駅 徒歩11分
築3年 / 15階建
東京都台東区千束1丁目15番8号

18.6万円 / 管理費12,000円
敷
18.6万円礼
18.6万円1LDK / 40.35㎡ / 4階
賃貸マンション
メインステージ入谷III
東京メトロ日比谷線 / 入谷駅 徒歩3分
築6年 / 14階建
東京都台東区入谷1丁目22-5
家賃カード決済可
20.1万円 / 管理費15,000円
敷
無料礼
無料1LDK / 40.2㎡ / 4階
賃貸マンション
WeaveBase-UENONORTH

東京メトロ日比谷線 / 入谷駅 徒歩5分
新築 / 13階建
東京都台東区入谷2丁目20-7

19.5万円 / 管理費15,000円
敷
無料礼
無料1LDK / 40.93㎡ / 4階
賃貸マンション
Log入谷/ログ入谷

東京メトロ日比谷線 / 入谷駅 徒歩5分
築2年 / 12階建
東京都台東区竜泉1丁目

18.1万円 / 管理費15,000円
敷
無料礼
無料1LDK / 40.55㎡ / 6階
賃貸マンション
アーバンパーク入谷
東京メトロ日比谷線 / 入谷駅 徒歩5分
築4年 / 11階建
東京都台東区入谷2丁目35-7
18万円 / 管理費20,000円
敷
無料礼
無料1LDK / 40.57㎡ / 11階
賃貸マンション
J.リヴェール上野入谷プレイス
東京メトロ日比谷線 / 入谷駅 徒歩4分
築4年 / 12階建
東京都台東区下谷2丁目10-13
20.1万円 / 管理費20,000円
敷
20.1万円礼
無料2LDK / 41.86㎡ / 12階
賃貸マンション
ログ入谷(Log入谷)
東京メトロ日比谷線 / 入谷駅 徒歩5分
築2年 / 12階建
東京都台東区竜泉1丁目5-8
18.1万円 / 管理費15,000円
敷
無料礼
無料1LDK / 40.55㎡ / 6階
賃貸マンション
クレストコート上野
東京メトロ日比谷線 / 入谷駅 徒歩7分
築2年 / 14階建
東京都台東区北上野2丁目
18万円 / 管理費15,000円
敷
18万円礼
無料1LDK / 37.07㎡ / 7階
賃貸マンション
ルフォンプログレ浅草入谷
東京メトロ日比谷線 / 入谷駅 徒歩8分
築4年 / 14階建
東京都台東区千束2丁目17-7
21.7万円 / 管理費25,000円
敷
21.7万円礼
21.7万円2LDK / 50.4㎡ / 3階
賃貸マンション
アーバンパーク三ノ輪
東京メトロ日比谷線 / 入谷駅 徒歩10分
築2年 / 10階建
東京都台東区竜泉3丁目11-2
20万円 / 管理費20,000円
敷
無料礼
無料2LDK / 45.92㎡ / 4階
賃貸マンション
オーキッドレジデンス上野
東京メトロ日比谷線 / 入谷駅 徒歩4分
築7年 / 15階建
東京都台東区北上野2丁目18-2
20.3万円 / 管理費12,000円
敷
20.3万円礼
無料1LDK / 41.03㎡ / 2階
賃貸マンション
ミリアレジデンス根岸柳通り

東京メトロ日比谷線 / 入谷駅 徒歩7分
築5年 / 11階建
東京都台東区根岸3丁目

19.5万円 / 管理費10,000円
敷
無料礼
無料1LDK / 41.24㎡ / 10階
賃貸マンション
ディップス上野ノース(DIPS上野NORTH)
東京メトロ日比谷線 / 入谷駅 徒歩4分
築4年 / 13階建
東京都台東区下谷2丁目3-13
18.5万円 / 管理費15,000円
敷
無料礼
18.5万円1LDK / 40.8㎡ / 3階
賃貸マンション
コンフォリア上野入谷
東京メトロ日比谷線 / 入谷駅 徒歩6分
築10年 / 地上14階地下1階建
東京都台東区竜泉2
20.5万円 / 管理費12,000円
敷
20.5万円礼
無料1LDK / 50.36㎡ / 6階
賃貸マンション
コンフォリア台東根岸
東京メトロ日比谷線 / 入谷駅 徒歩6分
築7年 / 11階建
東京都台東区根岸3丁目18-15
家賃カード決済可
19.1万円 / 管理費10,000円
敷
19.1万円礼
無料1LDK / 41.57㎡ / 5階
賃貸マンション
ジェイグランコート上野入谷
東京メトロ日比谷線 / 入谷駅 徒歩4分
新築 / 11階建
東京都台東区入谷2丁目17-3
家賃カード決済可
19.9万円 / 管理費10,000円
敷
無料礼
19.9万円1SLDK / 40.45㎡ / 2階
賃貸マンション
ジェノヴィア上野Ⅱスカイガーデン

東京メトロ日比谷線 / 入谷駅 徒歩7分
築7年 / 11階建
東京都台東区北上野1丁目

19.7万円 / 管理費11,000円
敷
無料礼
19.7万円1LDK / 40.13㎡ / 8階
賃貸マンション
ザ・パークハビオ入谷

東京メトロ日比谷線 / 入谷駅 徒歩2分
築3年 / 14階建
東京都台東区下谷2丁目6-14

19.1万円 / 管理費20,000円
敷
19.1万円礼
無料1LDK / 40.69㎡ / 11階
賃貸マンション
パークアクシス台東根岸
東京メトロ日比谷線 / 入谷駅 徒歩8分
築17年 / 14階建
東京都台東区根岸5丁目
家賃カード決済可
21.9万円 / 管理費10,000円
敷
21.9万円礼
21.9万円2DK / 48.21㎡ / 11階
賃貸マンション
プラウドフラット浅草アベニュー

東京メトロ日比谷線 / 入谷駅 徒歩11分
築3年 / 15階建
東京都台東区千束1丁目15番8号

18.6万円 / 管理費12,000円
敷
18.6万円礼
18.6万円1LDK / 40.35㎡ / 4階
賃貸マンション
メインステージ入谷III
東京メトロ日比谷線 / 入谷駅 徒歩3分
築6年 / 14階建
東京都台東区入谷1丁目22-5
家賃カード決済可
20.1万円 / 管理費15,000円
敷
無料礼
無料1LDK / 40.2㎡ / 4階
同じ最寄り駅 × 同じ特徴 で探す
同じ市区町村 × 同じ特徴 で探す


