KDA品川大崎1K/5階(東京都品川区 / 大崎駅)の賃貸
1/21
1/21
12万円
初期費用を知りたい管理費10,000円
- 敷金
- 12万円
- 保証金
- なし
- 礼金
- 12万円
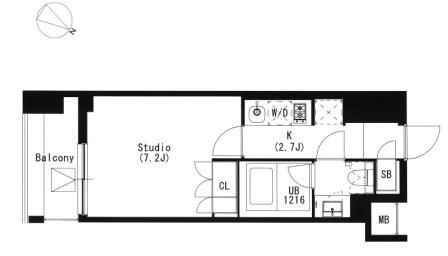
- 広さ
- 22.57㎡
- 階数
- 5階 / 地上9階地下1階建
- 間取り
- 1K
- 建物
- マンション (鉄筋コンクリート)
- 築年数
- 築6年
- 向き
- 東
- 交通
- 山手線 / 大崎駅徒歩6分
- 京急本線 / 北品川駅徒歩16分
- 住所
- 東京都品川区北品川5丁目10-6
コンビニエンスストア 420m
スーパーマーケット 440m
ドラッグストア 160m
ユニクロディラ大崎駅店 640m
無料で10秒! カンタンお問い合わせ
KDA品川大崎
敷
12万円礼
12万円特徴
バス・トイレ別
2階以上
エアコン付き
ペット相談可
駐車場あり
室内洗濯機置場
オートロック
洗面所独立
- バス・トイレ
- 給湯、専用バス、浴室乾燥機、専用トイレ、温水洗浄便座、バストイレ別
- キッチン
- システムキッチン
- セキュリティ
- オートロック
- 室内設備
- エアコン、照明付、室内洗濯置、フローリングお部屋の詳しい情報を知りたい
- 部屋の特徴
- バルコニー、二階以上写真を送ってほしい
- 共用部
- エレベーター
- その他の特徴
- 公営水道、都市ガス
無料で10秒! カンタンお問い合わせ
KDA品川大崎
敷
12万円礼
12万円その他
- 駐車/駐輪
- 無 / なし駐車可能な車種や台数を知りたい
- 入居時期
- 損保
- 住宅保険: 要
- 保証人代行
- 加入要 会社名: オリコ 費用: <保証料>契約時:賃料等の60%(最低3万円)/月額:賃料等の1.5%
- その他費用
初期費用を知りたい賃貸入居サポート会費/月:1,210円
鍵交換費用:47,300円
- 情報
情報登録日:2025/11/26
情報更新日:2026/1/20
次回更新予定日:2026/3/7
- 備考
- 現況: 居住中 更新料: 新賃料の1.0ヶ月分 契約期間: 2年 管理会社: 大京穴吹不動産
取扱い会社
- 取扱い会社
- 株式会社ライフアドバンス 恵比寿不動産条件が近い物件も紹介してほしい
- 免許番号
- 東京都知事(2)第97301号
- 取引態様
- 仲介
- 所在地
- 東京都渋谷区東3丁目25−11TOKYU REIT恵比寿ビル4階
- 電話番号
- 03-6421-0542
- 営業時間
- 10:00~19:00
- 定休日
- 水曜日
- 所属団体名
- (公社)全日本不動産協会
おすすめ物件 (20件)
賃貸マンション
ハーモニーレジデンス品川高輪
京急本線 / 北品川駅 徒歩11分
築9年 / 地上4階地下1階建
東京都港区高輪4丁目18-9
13.6万円 / 管理費12,000円
敷
13.6万円礼
13.6万円1K / 25.98㎡ / 4階
賃貸マンション
レジディア品川
京急本線 / 北品川駅 徒歩8分
築19年 / 11階建
東京都品川区北品川1丁目13-2
13.3万円 / 管理費15,000円
敷
無料礼
無料ワンルーム / 20.61㎡ / 5階
賃貸マンション
品川区 5階建 2020年築
山手線 / 大崎駅 徒歩9分
築6年 / 5階建
東京都品川区西品川2丁目2-25
11.9万円 / 管理費15,000円
敷
11.9万円礼
11.9万円1K / 21.75㎡ / 5階
賃貸マンション
コンフォリア品川EAST
京急本線 / 北品川駅 徒歩5分
築11年 / 12階建
東京都品川区北品川1丁目20-8
12.3万円 / 管理費8,000円
敷
12.3万円礼
無料1K / 22.26㎡ / 6階
賃貸マンション
品川区 8階建 2021年築
りんかい線 / 大崎駅 徒歩10分
築5年 / 8階建
東京都品川区戸越1丁目29-10
12.9万円 / 管理費10,000円
敷
12.9万円礼
無料ワンルーム / 26.19㎡ / 5階
賃貸マンション
スカイコートリュクス品川大崎
りんかい線 / 大崎駅 徒歩9分
新築 / 4階建
東京都品川区西品川2丁目4-6
12.6万円 / 管理費7,000円
敷
12.6万円礼
12.6万円ワンルーム / 23.8㎡ / 4階
賃貸マンション
都営浅草線 戸越駅 12階建 築8年
山手線 / 大崎駅 徒歩16分
築7年 / 12階建
東京都品川区戸越1
11.7万円 / 管理費15,000円
敷
無料礼
11.7万円1K / 21㎡ / 11階
賃貸マンション
品川イースト

京急本線 / 北品川駅 徒歩4分
築15年 / 12階建
東京都品川区北品川1丁目

12.5万円 / 管理費10,000円
敷
12.5万円礼
12.5万円1K / 25.6㎡ / 2階
賃貸マンション
SS.FLAT北品川
京急本線 / 北品川駅 徒歩2分
築5年 / 14階建
東京都品川区北品川1丁目24-5
12.4万円 / 管理費10,000円
敷
無料礼
12.4万円1K / 20.95㎡ / 5階
賃貸マンション
オーキッドレジデンス品川
京急本線 / 北品川駅 徒歩8分
築18年 / 8階建
東京都品川区東品川1丁目10-1
13.7万円 / 管理費10,000円
敷
無料礼
無料ワンルーム / 28.17㎡ / 7階
賃貸マンション
リアン御殿山
りんかい線 / 大崎駅 徒歩15分
築3年 / 10階建
東京都品川区北品川5丁目9-26
13.2万円 / 管理費8,000円
敷
13.2万円礼
19.8万円1K / 25.84㎡ / 4階
賃貸マンション
クレヴィアリグゼ北品川2ステーションコート
京急本線 / 北品川駅 徒歩10分
築4年 / 15階建
東京都品川区北品川2丁目22-10
12.3万円 / 管理費12,000円
敷
12.3万円礼
12.3万円1K / 23.07㎡ / 10階
賃貸マンション
アジールコート北品川
京急本線 / 北品川駅 徒歩8分
築10年 / 12階建
東京都品川区北品川2丁目23-4
12.8万円 / 管理費12,000円
敷
12.8万円礼
12.8万円1K / 23.28㎡ / 12階
賃貸マンション
プレール・ドゥーク北品川

京急本線 / 北品川駅 徒歩9分
築3年 / 13階建
東京都品川区北品川2丁目7-15

13.2万円 / 管理費11,000円
敷
無料礼
13.2万円1K / 20.43㎡ / 5階
賃貸マンション
菱和パレス大崎駅前

山手線 / 大崎駅 徒歩2分
築26年 / 12階建
東京都品川区大崎1丁目20-4

11.2万円 / 管理費11,000円
敷
無料礼
11.2万円1K / 19.88㎡ / 10階
賃貸マンション
プレミアステージ大崎

山手線 / 大崎駅 徒歩6分
築24年 / 9階建
東京都品川区大崎5丁目5-15

10.2万円 / 管理費7,000円
敷
10.2万円礼
10.2万円ワンルーム / 20.6㎡ / 9階
賃貸マンション
PREMIUM CUBE 品川大崎

埼京線 / 大崎駅 徒歩10分
築12年 / 14階建
東京都品川区東五反田3丁目21-7

13.4万円 / 管理費11,000円
敷
無料礼
13.4万円1K / 20.85㎡ / 11階
賃貸マンション
GENOVIA大崎SKYGARDEN(ジェノヴィアオオサキスカイ
)
山手線 / 大崎駅 徒歩12分
築5年 / 5階建
東京都品川区豊町1丁目
)
11.3万円 / 管理費15,000円
敷
無料礼
11.3万円1K / 20.88㎡ / 2階
賃貸マンション
ハーモニーレジデンス品川高輪
京急本線 / 北品川駅 徒歩11分
築9年 / 地上4階地下1階建
東京都港区高輪4丁目18-9
13.6万円 / 管理費12,000円
敷
13.6万円礼
13.6万円1K / 25.98㎡ / 4階
賃貸マンション
レジディア品川
京急本線 / 北品川駅 徒歩8分
築19年 / 11階建
東京都品川区北品川1丁目13-2
13.3万円 / 管理費15,000円
敷
無料礼
無料ワンルーム / 20.61㎡ / 5階
賃貸マンション
品川区 5階建 2020年築
山手線 / 大崎駅 徒歩9分
築6年 / 5階建
東京都品川区西品川2丁目2-25
11.9万円 / 管理費15,000円
敷
11.9万円礼
11.9万円1K / 21.75㎡ / 5階
賃貸マンション
コンフォリア品川EAST
京急本線 / 北品川駅 徒歩5分
築11年 / 12階建
東京都品川区北品川1丁目20-8
12.3万円 / 管理費8,000円
敷
12.3万円礼
無料1K / 22.26㎡ / 6階
賃貸マンション
品川区 8階建 2021年築
りんかい線 / 大崎駅 徒歩10分
築5年 / 8階建
東京都品川区戸越1丁目29-10
12.9万円 / 管理費10,000円
敷
12.9万円礼
無料ワンルーム / 26.19㎡ / 5階
賃貸マンション
スカイコートリュクス品川大崎
りんかい線 / 大崎駅 徒歩9分
新築 / 4階建
東京都品川区西品川2丁目4-6
12.6万円 / 管理費7,000円
敷
12.6万円礼
12.6万円ワンルーム / 23.8㎡ / 4階
賃貸マンション
都営浅草線 戸越駅 12階建 築8年
山手線 / 大崎駅 徒歩16分
築7年 / 12階建
東京都品川区戸越1
11.7万円 / 管理費15,000円
敷
無料礼
11.7万円1K / 21㎡ / 11階
賃貸マンション
品川イースト

京急本線 / 北品川駅 徒歩4分
築15年 / 12階建
東京都品川区北品川1丁目

12.5万円 / 管理費10,000円
敷
12.5万円礼
12.5万円1K / 25.6㎡ / 2階
賃貸マンション
SS.FLAT北品川
京急本線 / 北品川駅 徒歩2分
築5年 / 14階建
東京都品川区北品川1丁目24-5
12.4万円 / 管理費10,000円
敷
無料礼
12.4万円1K / 20.95㎡ / 5階
賃貸マンション
オーキッドレジデンス品川
京急本線 / 北品川駅 徒歩8分
築18年 / 8階建
東京都品川区東品川1丁目10-1
13.7万円 / 管理費10,000円
敷
無料礼
無料ワンルーム / 28.17㎡ / 7階
賃貸マンション
リアン御殿山
りんかい線 / 大崎駅 徒歩15分
築3年 / 10階建
東京都品川区北品川5丁目9-26
13.2万円 / 管理費8,000円
敷
13.2万円礼
19.8万円1K / 25.84㎡ / 4階
賃貸マンション
クレヴィアリグゼ北品川2ステーションコート
京急本線 / 北品川駅 徒歩10分
築4年 / 15階建
東京都品川区北品川2丁目22-10
12.3万円 / 管理費12,000円
敷
12.3万円礼
12.3万円1K / 23.07㎡ / 10階
賃貸マンション
アジールコート北品川
京急本線 / 北品川駅 徒歩8分
築10年 / 12階建
東京都品川区北品川2丁目23-4
12.8万円 / 管理費12,000円
敷
12.8万円礼
12.8万円1K / 23.28㎡ / 12階
賃貸マンション
プレール・ドゥーク北品川

京急本線 / 北品川駅 徒歩9分
築3年 / 13階建
東京都品川区北品川2丁目7-15

13.2万円 / 管理費11,000円
敷
無料礼
13.2万円1K / 20.43㎡ / 5階
賃貸マンション
菱和パレス大崎駅前

山手線 / 大崎駅 徒歩2分
築26年 / 12階建
東京都品川区大崎1丁目20-4

11.2万円 / 管理費11,000円
敷
無料礼
11.2万円1K / 19.88㎡ / 10階
賃貸マンション
プレミアステージ大崎

山手線 / 大崎駅 徒歩6分
築24年 / 9階建
東京都品川区大崎5丁目5-15

10.2万円 / 管理費7,000円
敷
10.2万円礼
10.2万円ワンルーム / 20.6㎡ / 9階
賃貸マンション
PREMIUM CUBE 品川大崎

埼京線 / 大崎駅 徒歩10分
築12年 / 14階建
東京都品川区東五反田3丁目21-7

13.4万円 / 管理費11,000円
敷
無料礼
13.4万円1K / 20.85㎡ / 11階
賃貸マンション
GENOVIA大崎SKYGARDEN(ジェノヴィアオオサキスカイ
)
山手線 / 大崎駅 徒歩12分
築5年 / 5階建
東京都品川区豊町1丁目
)
11.3万円 / 管理費15,000円
敷
無料礼
11.3万円1K / 20.88㎡ / 2階
同じ最寄り駅 × 同じ特徴 で探す
同じ市区町村 × 同じ特徴 で探す
