シェフルール鶴見中央1K/3階/306(神奈川県横浜市鶴見区 / 京急鶴見駅)の賃貸
1/28
1/28
12.5万円
初期費用を知りたい管理費8,000円
適用で最大2年間4.8万円割引
本物件のヘヤワリ適用可否については、不動産会社へご確認ください。
- 敷金
- 12.5万円
- 保証金
- なし
- 礼金
- 18.75万円
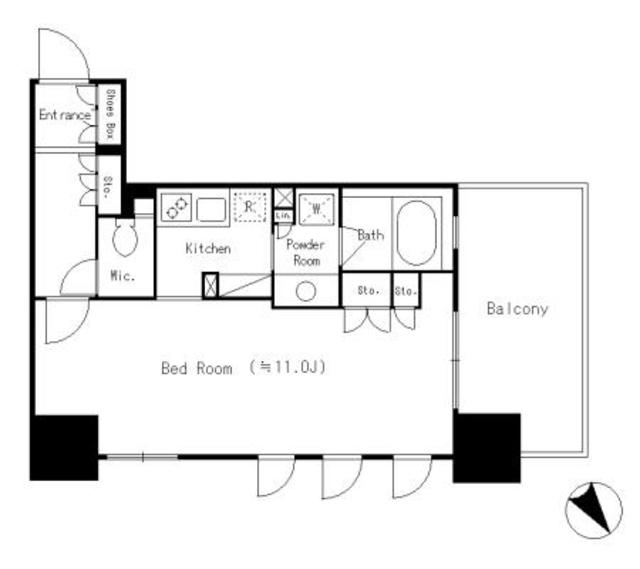
- 広さ
- 34.92㎡
- 階数
- 3階 / 15階建
- 間取り
- 1K
- 建物
- マンション (鉄筋コンクリート)
- 築年数
- 築14年
- 向き
- 南西
- 交通
- 京急本線 / 京急鶴見駅徒歩5分
- 京浜東北線 / 鶴見駅徒歩6分
- 住所
- 神奈川県横浜市鶴見区鶴見中央5丁目3-8
コンビニエンスストア 280m
スーパーマーケット 200m
京急鶴見駅 西口 490m
無料で10秒! カンタンお問い合わせ
シェフルール鶴見中央
敷
12.5万円礼
18.75万円特徴
バス・トイレ別
2階以上
エアコン付き
ペット相談可
駐車場あり
室内洗濯機置場
オートロック
洗面所独立
- 入居条件
- 事務所(SOHO)不可、ペット相談最新の空室状況が知りたい
- バス・トイレ
- 専用バス、バストイレ別、追焚機能浴室、浴室乾燥機、洗面所独立
- キッチン
- システムキッチン
- セキュリティ
- オートロック
- 室内設備
- エアコン、室内洗濯置、フローリング、インターネット対応、BS、CSお部屋の詳しい情報を知りたい
- 部屋の特徴
- バルコニー、二階以上写真を送ってほしい
- 共用部
- エレベーター、宅配ボックス
- その他の特徴
- 定期借家、分譲賃貸
無料で10秒! カンタンお問い合わせ
シェフルール鶴見中央
敷
12.5万円礼
18.75万円不動産会社からのコメント
横浜市・鶴見駅周辺のお部屋探しはタウンハウジング鶴見店へ
鶴見駅・川崎駅周辺のお部屋探しはタウンハウジング鶴見店にお任せください!当社ではオンライン内見も行ってます。お気軽にご相談ください。★★毎日新着物件更新中★★
その他
- 駐車/駐輪
- 近隣 費用: 25,000円 税: 税込み 距離: 300m / なし駐車可能な車種や台数を知りたい
- 入居時期
- 2026年6月上旬最新の空室状況が知りたい
- 損保
- 住宅保険: 要
- 保証人代行
- 加入要 会社名: その他 費用: 初回保証委託料(最低20,000円):月額賃料等の50%、 2年目以降:9,600円/年
- その他費用
初期費用を知りたい口座振替事務手数料/月:110円
鍵交換費:22,000円
室内清掃費用:59,400円
- 情報
情報登録日:2024/4/21
情報更新日:2026/4/25
次回更新予定日:2026/5/5
- 備考
- 現況: 居住中 契約期間: 2年 ※定期借家 管理人: 日勤
取扱い会社
- 取扱い会社
- 株式会社タウンハウジング 鶴見店条件が近い物件も紹介してほしい
- 免許番号
- 国土交通大臣(1)第9928号
- 取引態様
- 仲介
- 所在地
- 神奈川県横浜市鶴見区豊岡町17-5 中野ビル 1階D号室
- 電話番号
- 045-585-9021
- 営業時間
- 10:00~19:00
- 定休日
- 水曜日
- 所属団体名
- 東京都宅地建物取引業協会
おすすめ物件 (3件)
賃貸マンション
BICHINADA
)
鶴見線 / 鶴見駅 徒歩24分
新築 / 6階建
神奈川県横浜市鶴見区下末吉3丁目
)
13.8万円 / 管理費7,000円
敷
13.8万円礼
13.8万円1LDK / 43.66㎡ / 2階
賃貸マンション
ドゥーエ横濱鶴見
京急本線 / 京急鶴見駅 徒歩7分
築2年 / 11階建
神奈川県横浜市鶴見区鶴見中央5丁目15-13
家賃カード決済可
13.3万円 / 管理費8,000円
敷
13.3万円礼
13.3万円1K / 25.6㎡ / 11階
賃貸マンション
BICHINADA
)
鶴見線 / 鶴見駅 徒歩24分
新築 / 6階建
神奈川県横浜市鶴見区下末吉3丁目
)
13.8万円 / 管理費7,000円
敷
13.8万円礼
13.8万円1LDK / 43.66㎡ / 2階
賃貸マンション
ドゥーエ横濱鶴見
京急本線 / 京急鶴見駅 徒歩7分
築2年 / 11階建
神奈川県横浜市鶴見区鶴見中央5丁目15-13
家賃カード決済可
13.3万円 / 管理費8,000円
敷
13.3万円礼
13.3万円1K / 25.6㎡ / 11階
