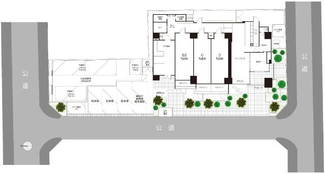
ベルファース蒲田West1LDK/4階/406(東京都大田区 / 蒲田駅)の賃貸
1/12
1/12
22.5万円
初期費用を知りたい管理費15,000円
- 敷金
- 22.5万円
- 保証金
- なし
- 礼金
- 無料
- 広さ
- 42.58㎡
- 階数
- 4階 / 15階建
- 間取り
- 1LDK
- 建物
- マンション (鉄筋コンクリート)
- 築年数
- 新築
- 向き
- 西
- 交通
- 京浜東北線 / 蒲田駅徒歩4分
- 東急池上線 / 蓮沼駅徒歩12分
- 住所
- 東京都大田区西蒲田8丁目22-10
コンビニエンスストア 70m
商店街 317m
ファミリーマート蒲田南口駅前店 191m
無料で10秒! カンタンお問い合わせ

ベルファース蒲田West
敷
22.5万円礼
無料特徴
バス・トイレ別
2階以上
エアコン付き
ペット相談可
駐車場あり
室内洗濯機置場
オートロック
洗面所独立
- 入居条件
- 二人入居可、保証人不要、フリーレント最新の空室状況が知りたい
- バス・トイレ
- 専用バス、専用トイレ、バストイレ別、シャワー、給湯、追焚機能浴室、シャワー付洗面化粧台、温水洗浄便座、浴室乾燥機、洗面所独立
- キッチン
- ガスコンロ対応、3口以上コンロ、システムキッチン、食器洗乾燥機
- セキュリティ
- オートロック、防犯カメラ
- 室内設備
- エアコン、室内洗濯置、CS、BS、光ファイバー、ネット使用料不要、クロゼット、シューズボックス、照明付お部屋の詳しい情報を知りたい
- 部屋の特徴
- バルコニー、角住戸、二階以上写真を送ってほしい
- 共用部
- エレベーター、宅配ボックス、駐輪場、バイク置場、敷地内駐車場
- その他の特徴
- 公営水道、都市ガス、下水、駐車場あり
無料で10秒! カンタンお問い合わせ

ベルファース蒲田West
敷
22.5万円礼
無料同じ建物で掲載中の物件 (15件)
その他
- 駐車/駐輪
- 空有 費用: 33,000円 空き数: 1 / あり駐車可能な車種や台数を知りたい
- 入居時期
- 2026年2月下旬最新の空室状況が知りたい
- 損保
- 住宅保険: 要
- 保証人代行
- 加入要 会社名: オリコフォレントインシュア 費用: 初回月額総賃料の50%+月額1,000円
- その他費用
- 情報
情報登録日:2026/2/14
情報更新日:2026/5/7
次回更新予定日:2026/5/21
- 備考
- 現況: 空家 状態: 未入居 更新料: 新賃料の1.0ヶ月分 フリーレント: 2ヶ月(※賃料のみ、短期解約違約金あり) 契約期間: 2年 自社管理番号: 1073617
取扱い会社
- 取扱い会社
- 株式会社タイセイ・ハウジー 大森営業所条件が近い物件も紹介してほしい
- 免許番号
- 国土交通大臣(10) 第3440号
- 取引態様
- 仲介
- 所在地
- 東京都品川区南大井6-28-1 エムエスビル2F
- 電話番号
- 03-6685-8161
- 営業時間
- 10:00~18:00
- 定休日
- 水曜日(1月~3月は無休)(GW・夏季休暇・年末年始)
おすすめ物件 (13件)
賃貸マンション
グランカーサ蒲田ウエスト

東急池上線 / 蓮沼駅 徒歩2分
築1年 / 9階建
東京都大田区西蒲田7丁目13-12

家賃カード決済可
23.5万円 / 管理費10,000円
敷
無料礼
無料2DK / 46.48㎡ / 8階
賃貸マンション
ガーデンザヴィス南蒲田

京浜東北線 / 蒲田駅 徒歩12分
新築 / 12階建
東京都大田区南蒲田2丁目4-20

23.3万円 / 管理費20,000円
敷
23.3万円礼
無料2LDK / 40.56㎡ / 10階
賃貸マンション
パークアクシス蒲田ステーションゲート

京浜東北線 / 蒲田駅 徒歩5分
築14年 / 14階建
東京都大田区西蒲田8丁目23-1

21万円 / 管理費15,000円
敷
21万円礼
21万円1LDK / 43.78㎡ / 12階
賃貸マンション
ザ・ライオンズフォーシア蒲田

東急多摩川線 / 蒲田駅 徒歩4分
新築 / 15階建
東京都大田区西蒲田8丁目21-8

23万円 / 管理費15,000円
敷
23万円礼
無料2LDK / 41.79㎡ / 13階
賃貸マンション
ハーモニーレジデンス蒲田アートヴィラ

東急池上線 / 蒲田駅 徒歩9分
築2年 / 5階建
東京都大田区蒲田本町1丁目9-7

20.5万円 / 管理費20,000円
敷
無料礼
無料1LDK / 41.03㎡ / 3階
賃貸マンション
フレンシア蒲田

京浜東北線 / 蒲田駅 徒歩8分
築4年 / 13階建
東京都大田区蒲田5丁目49-2

20.7万円 / 管理費13,000円
敷
20.7万円礼
無料1LDK / 42.52㎡ / 3階
賃貸マンション
スタイリオ蒲田WEST

東急多摩川線 / 蒲田駅 徒歩4分
新築 / 14階建
東京都大田区西蒲田7丁目50-10

21.4万円 / 管理費15,000円
敷
21.4万円礼
無料1LDK / 39.38㎡ / 10階
賃貸マンション
クレストコート池上六丁目

東急多摩川線 / 蒲田駅 徒歩19分
築1年 / 5階建
東京都大田区池上6丁目31-1

22.4万円 / 管理費18,000円
敷
22.4万円礼
無料2LDK / 45.06㎡ / 4階
賃貸マンション
ベルファース蒲田ウエスト
東急池上線 / 蒲田駅 徒歩4分
新築 / 15階建
東京都大田区西蒲田8丁目22-10
24.3万円 / 管理費15,000円
敷
24.3万円礼
無料1SLDK / 42.58㎡ / 8階
賃貸マンション
リバーレ蒲田仲六郷

東急多摩川線 / 蒲田駅 徒歩15分
築19年 / 6階建
東京都大田区仲六郷2丁目4-2

22.2万円 / 管理費12,000円
敷
22.2万円礼
無料2DK / 51.41㎡ / 6階
賃貸マンション
RJRプレシア蒲田

東急池上線 / 蒲田駅 徒歩9分
新築 / 8階建
東京都大田区西蒲田4丁目15-11

22万円 / 管理費15,000円
敷
22万円礼
無料2LDK / 41.82㎡ / 3階
賃貸マンション
プラウドフラット西蒲田

東急池上線 / 蓮沼駅 徒歩7分
新築 / 9階建
東京都大田区西蒲田8丁目10-3

23.4万円 / 管理費20,000円
敷
23.4万円礼
無料2LDK / 40.65㎡ / 5階
賃貸マンション
Garden Xavis南蒲田

京浜東北線 / 蒲田駅 徒歩12分
新築 / 12階建
東京都大田区南蒲田2丁目4-20

21.3万円 / 管理費20,000円
敷
無料礼
無料2LDK / 41.98㎡ / 5階
賃貸マンション
グランカーサ蒲田ウエスト

東急池上線 / 蓮沼駅 徒歩2分
築1年 / 9階建
東京都大田区西蒲田7丁目13-12

家賃カード決済可
23.5万円 / 管理費10,000円
敷
無料礼
無料2DK / 46.48㎡ / 8階
賃貸マンション
ガーデンザヴィス南蒲田

京浜東北線 / 蒲田駅 徒歩12分
新築 / 12階建
東京都大田区南蒲田2丁目4-20

23.3万円 / 管理費20,000円
敷
23.3万円礼
無料2LDK / 40.56㎡ / 10階
賃貸マンション
パークアクシス蒲田ステーションゲート

京浜東北線 / 蒲田駅 徒歩5分
築14年 / 14階建
東京都大田区西蒲田8丁目23-1

21万円 / 管理費15,000円
敷
21万円礼
21万円1LDK / 43.78㎡ / 12階
賃貸マンション
ザ・ライオンズフォーシア蒲田

東急多摩川線 / 蒲田駅 徒歩4分
新築 / 15階建
東京都大田区西蒲田8丁目21-8

23万円 / 管理費15,000円
敷
23万円礼
無料2LDK / 41.79㎡ / 13階
賃貸マンション
ハーモニーレジデンス蒲田アートヴィラ

東急池上線 / 蒲田駅 徒歩9分
築2年 / 5階建
東京都大田区蒲田本町1丁目9-7

20.5万円 / 管理費20,000円
敷
無料礼
無料1LDK / 41.03㎡ / 3階
賃貸マンション
フレンシア蒲田

京浜東北線 / 蒲田駅 徒歩8分
築4年 / 13階建
東京都大田区蒲田5丁目49-2

20.7万円 / 管理費13,000円
敷
20.7万円礼
無料1LDK / 42.52㎡ / 3階
賃貸マンション
スタイリオ蒲田WEST

東急多摩川線 / 蒲田駅 徒歩4分
新築 / 14階建
東京都大田区西蒲田7丁目50-10

21.4万円 / 管理費15,000円
敷
21.4万円礼
無料1LDK / 39.38㎡ / 10階
賃貸マンション
クレストコート池上六丁目

東急多摩川線 / 蒲田駅 徒歩19分
築1年 / 5階建
東京都大田区池上6丁目31-1

22.4万円 / 管理費18,000円
敷
22.4万円礼
無料2LDK / 45.06㎡ / 4階
賃貸マンション
ベルファース蒲田ウエスト
東急池上線 / 蒲田駅 徒歩4分
新築 / 15階建
東京都大田区西蒲田8丁目22-10
24.3万円 / 管理費15,000円
敷
24.3万円礼
無料1SLDK / 42.58㎡ / 8階
賃貸マンション
リバーレ蒲田仲六郷

東急多摩川線 / 蒲田駅 徒歩15分
築19年 / 6階建
東京都大田区仲六郷2丁目4-2

22.2万円 / 管理費12,000円
敷
22.2万円礼
無料2DK / 51.41㎡ / 6階
賃貸マンション
RJRプレシア蒲田

東急池上線 / 蒲田駅 徒歩9分
新築 / 8階建
東京都大田区西蒲田4丁目15-11

22万円 / 管理費15,000円
敷
22万円礼
無料2LDK / 41.82㎡ / 3階
賃貸マンション
プラウドフラット西蒲田

東急池上線 / 蓮沼駅 徒歩7分
新築 / 9階建
東京都大田区西蒲田8丁目10-3

23.4万円 / 管理費20,000円
敷
23.4万円礼
無料2LDK / 40.65㎡ / 5階
賃貸マンション
Garden Xavis南蒲田

京浜東北線 / 蒲田駅 徒歩12分
新築 / 12階建
東京都大田区南蒲田2丁目4-20

21.3万円 / 管理費20,000円
敷
無料礼
無料2LDK / 41.98㎡ / 5階
同じ最寄り駅 × 同じ特徴 で探す
同じ市区町村 × 同じ特徴 で探す











)
)
)
)
)
)
)
)
