アルティジャーノD′s SAYAMA1K/7階/704(埼玉県狭山市 / 入間市駅)の賃貸
1/25
1/25
8.35万円
初期費用を知りたい管理費5,000円
- 敷金
- 無料
- 保証金
- なし
- 礼金
- 8.35万円
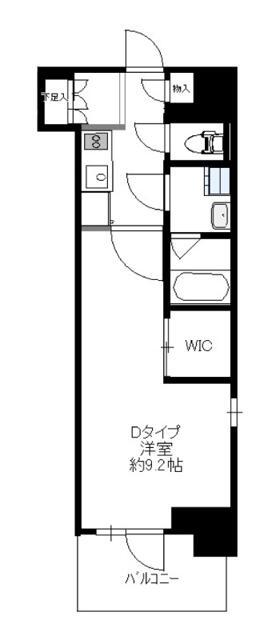
- 広さ
- 30.48㎡
- 階数
- 7階 / 10階建
- 間取り
- 1K
- 建物
- マンション (鉄筋コンクリート)
- 築年数
- 新築
- 向き
- 北西
- 交通
- 西武池袋線 / 入間市駅バス23分 社会福祉会館下車 徒歩1分
- 西武新宿線 / 狭山市駅徒歩7分
- 西武池袋線 / 稲荷山公園駅徒歩28分
- 住所
- 埼玉県狭山市入間川2丁目4-18
スカイテラス 351m
そよら武蔵狭山 583m
セブン-イレブン 狭山市駅西口店 345m
ヘルスケアセイジョー狭山市駅前店 343m
cafe THEME / カフェテーマ 344m
埼玉石心会病院 842m
無料で10秒! カンタンお問い合わせ

アルティジャーノD′s SAYAMA
敷
無料礼
8.35万円特徴
バス・トイレ別
2階以上
エアコン付き
ペット相談可
駐車場あり
室内洗濯機置場
オートロック
洗面所独立
- 入居条件
- 二人入居相談、敷金不要、即入居可最新の空室状況が知りたい
- バス・トイレ
- バストイレ別、浴室乾燥機、温水洗浄便座、洗面所独立
- キッチン
- ガスコンロ対応、2口コンロ、システムキッチン
- セキュリティ
- 防犯カメラ、オートロック
- 室内設備
- インターネット対応、ネット使用料不要、エアコン、全居室収納、2面採光、室内洗濯置お部屋の詳しい情報を知りたい
- 部屋の特徴
- 二階以上、角住戸、バルコニー写真を送ってほしい
- 共用部
- 宅配ボックス、エレベーター、駐輪場
- その他の特徴
- 駐車場あり、都市ガス、公営水道、下水、外壁タイル張り、分譲賃貸
無料で10秒! カンタンお問い合わせ

アルティジャーノD′s SAYAMA
敷
無料礼
8.35万円不動産会社からのコメント
更新料新賃料1ヶ月/更新事務手数料0.55ヶ月/保険2年19000円/24H生活サポート月額880円/1年未満解約の場合、短期解約違約金総賃料の1ヶ月分/駐輪場代借主負担(使用時)/鍵交換代借主負担/室内清掃費用借主負担(退去時)/決済サービス利用料 月額550円
その他
- 駐車/駐輪
- 近隣 費用: 13,750円(税込) 距離: 452m / あり駐車可能な車種や台数を知りたい
- 入居時期
- 損保
- 住宅保険: 要
- 保証人代行
- 保証人代行: 必須 保証人代行会社: その他 初回:賃料等70%、更新料なし
- その他費用
初期費用を知りたい契約事務手数料:11,000円
- 情報
情報登録日:2025/8/31
情報更新日:2025/12/1
次回更新予定日:2025/12/16
- 備考
- 室内清掃費用借主負担(退去時)/決済サービス利用料 月額550円 契約期間: 2年
取扱い会社
- 取扱い会社
- アエラス川越店 (株式会社アエラス)条件が近い物件も紹介してほしい
- 免許番号
- 国土交通大臣(3)第8522号
- 取引態様
- 仲介
- 所在地
- 埼玉県川越市脇田本町15-10 大樹生命川越駅前ビル 3階
- 電話番号
- 049-293-4631
- 営業時間
- 10:00~19:00
- 定休日
- 毎週水曜日
- 所属団体名
- 全日本不動産協会
おすすめ物件 (10件)
賃貸マンション
アルティジャーノディーズ狭山★(D)

西武新宿線 / 狭山市駅 徒歩7分
新築 / 10階建
埼玉県狭山市入間川2丁目

8.35万円 / 管理費5,000円
敷
無料礼
8.35万円1K / 30.48㎡ / 7階
賃貸マンション
アルティジャーノディーズ狭山(C)

西武新宿線 / 狭山市駅 徒歩7分
新築 / 10階建
埼玉県狭山市入間川2丁目

7.95万円 / 管理費5,000円
敷
無料礼
7.95万円1K / 28.5㎡ / 6階
賃貸アパート
狭山市富士見1丁目 4階建 2015年築

西武新宿線 / 狭山市駅 徒歩8分
築10年 / 4階建
埼玉県狭山市富士見1丁目3-28

家賃カード決済可
6.55万円 / 管理費3,500円
敷
無料礼
6.55万円ワンルーム / 34.02㎡ / 2階
賃貸アパート
狭山市新狭山2丁目 3階建 2023年築

西武新宿線 / 狭山市駅 徒歩36分
築2年 / 3階建
埼玉県狭山市新狭山2丁目

7.3万円 / 管理費11,000円
敷
無料礼
7.3万円1K / 25.69㎡ / 2階
賃貸アパート
狭山市富士見1丁目 3階建 2017年築

西武新宿線 / 狭山市駅 徒歩12分
築8年 / 3階建
埼玉県狭山市富士見1丁目

家賃カード決済可
7.2万円 / 管理費5,500円
敷
無料礼
7.2万円1K / 30.03㎡ / 2階
賃貸アパート
クラール新狭山

西武新宿線 / 狭山市駅 徒歩37分
築8年 / 3階建
埼玉県狭山市新狭山2丁目15-5

家賃カード決済可
6.45万円 / 管理費2,300円
敷
無料礼
6.45万円1K / 35.04㎡ / 3階
賃貸マンション
アルティジャーノD′s SAYAMA

西武新宿線 / 狭山市駅 徒歩7分
新築 / 10階建
埼玉県狭山市入間川2丁目4-18

8.05万円 / 管理費5,000円
敷
無料礼
8.05万円1K / 28.28㎡ / 9階
賃貸マンション
アルティジャーノディーズ狭山★(D)

西武新宿線 / 狭山市駅 徒歩7分
新築 / 10階建
埼玉県狭山市入間川2丁目

8.35万円 / 管理費5,000円
敷
無料礼
8.35万円1K / 30.48㎡ / 7階
賃貸マンション
アルティジャーノディーズ狭山(C)

西武新宿線 / 狭山市駅 徒歩7分
新築 / 10階建
埼玉県狭山市入間川2丁目

7.95万円 / 管理費5,000円
敷
無料礼
7.95万円1K / 28.5㎡ / 6階
賃貸アパート
狭山市富士見1丁目 4階建 2015年築

西武新宿線 / 狭山市駅 徒歩8分
築10年 / 4階建
埼玉県狭山市富士見1丁目3-28

家賃カード決済可
6.55万円 / 管理費3,500円
敷
無料礼
6.55万円ワンルーム / 34.02㎡ / 2階
賃貸アパート
狭山市新狭山2丁目 3階建 2023年築

西武新宿線 / 狭山市駅 徒歩36分
築2年 / 3階建
埼玉県狭山市新狭山2丁目

7.3万円 / 管理費11,000円
敷
無料礼
7.3万円1K / 25.69㎡ / 2階
賃貸アパート
狭山市富士見1丁目 3階建 2017年築

西武新宿線 / 狭山市駅 徒歩12分
築8年 / 3階建
埼玉県狭山市富士見1丁目

家賃カード決済可
7.2万円 / 管理費5,500円
敷
無料礼
7.2万円1K / 30.03㎡ / 2階
賃貸アパート
クラール新狭山

西武新宿線 / 狭山市駅 徒歩37分
築8年 / 3階建
埼玉県狭山市新狭山2丁目15-5

家賃カード決済可
6.45万円 / 管理費2,300円
敷
無料礼
6.45万円1K / 35.04㎡ / 3階
賃貸マンション
アルティジャーノD′s SAYAMA

西武新宿線 / 狭山市駅 徒歩7分
新築 / 10階建
埼玉県狭山市入間川2丁目4-18

8.05万円 / 管理費5,000円
敷
無料礼
8.05万円1K / 28.28㎡ / 9階
同じ最寄り駅 で探す
同じ最寄り駅 × 同じ特徴 で探す
同じ市区町村 × 同じ特徴 で探す




























