ヘイワハイム1DK/2階/202(東京都足立区 / 北千住駅)の賃貸
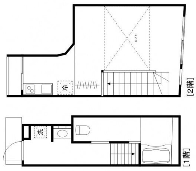
1/20
1/20
7万円
初期費用を知りたい管理費3,500円
- 敷金
- 7万円
- 保証金
- なし
- 礼金
- 7万円
- 広さ
- 22㎡
- 階数
- 2階 / 3階建
- 間取り
- 1DK
- 建物
- マンション (鉄骨)
- 築年数
- 築43年
- 向き
- 南
- 交通
- 東京メトロ千代田線 / 北千住駅徒歩14分
- 京成本線 / 千住大橋駅徒歩16分
- 住所
- 東京都足立区千住龍田町1-4
千寿桜小学校 543m
無料で10秒! カンタンお問い合わせ
)
ヘイワハイム
敷
7万円礼
7万円特徴
バス・トイレ別
2階以上
エアコン付き
ペット相談可
駐車場あり
室内洗濯機置場
オートロック
洗面所独立
- バス・トイレ
- シャワー
- キッチン
- ガスキッチン、コンロ2口以上、ガスコンロ対応
- 室内設備
- エアコン、冷房、暖房、ネット使用料不要、フローリング、室内洗濯置、押入、シューズボックスお部屋の詳しい情報を知りたい
- 部屋の特徴
- ベランダ、バルコニー、二階以上写真を送ってほしい
- 共用部
- 駐輪場
無料で10秒! カンタンお問い合わせ
)
ヘイワハイム
敷
7万円礼
7万円同じ建物で掲載中の物件 (1件)
その他
- 駐車/駐輪
- 無し / あり駐車可能な車種や台数を知りたい
- 入居時期
- 損保
- 住宅保険: 要 20000円
- 保証人代行
- 保証人: 不要
- その他費用
- 情報
情報登録日:2025/12/11
情報更新日:2026/4/24
次回更新予定日:2026/5/11
- 備考
- 更新料: 70000円 退去時費用備考: 退去費用実費精算 その他: 保証会社利用必須 アドヴェント/初回:賃料等合計額の50%~※最低保証料25,000円~、年会費12,000円 その他初期費用 60500円 業者管理CD: 1000641915
取扱い会社
- 取扱い会社
- アパマンショップ池袋駅前公園店 アルプス住宅サービス株式会社条件が近い物件も紹介してほしい
- 免許番号
- 東京都知事(10)48597
- 取引態様
- 一般媒介
- 所在地
- 東京都豊島区東池袋1丁目
- 電話番号
- 03-3986-6821
- 所属団体名
- (公社)東京都宅地建物取引業協会,(公社) 首都圏不動産公正取引協議会加盟
おすすめ物件 (16件)
賃貸マンション
マテリア千住大橋

京成本線 / 千住大橋駅 徒歩9分
築3年 / 8階建
東京都足立区千住緑町3丁目

8.95万円 / 管理費20,000円
敷
8.95万円礼
8.95万円1DK / 25.82㎡ / 6階
賃貸マンション
ベルグレードSK
京成本線 / 千住大橋駅 徒歩3分
築12年 / 12階建
東京都足立区千住河原町27-1
8.9万円 / 管理費15,000円
敷
8.9万円礼
8.9万円1K / 25.5㎡ / 5階
賃貸マンション
アレグレット掃部宿(かもんしゅく)

京成本線 / 千住大橋駅 徒歩3分
築23年 / 11階建
東京都足立区千住橋戸町

8.6万円 / 管理費8,000円
敷
4.3万円礼
12.9万円ワンルーム / 31.34㎡ / 3階
賃貸マンション
アイフォート千住曙町

つくばエクスプレス / 北千住駅 徒歩13分
築17年 / 9階建
東京都足立区千住曙町

家賃カード決済可
8.2万円 / 管理費10,000円
敷
無料礼
無料ワンルーム / 24.63㎡ / 5階
賃貸マンション
プレール・ドゥーク東京EAST Ⅳ RiverSide

京成本線 / 千住大橋駅 徒歩7分
築18年 / 14階建
東京都荒川区南千住7丁目

8.4万円 / 管理費8,000円
敷
無料礼
8.4万円1K / 21.82㎡ / 10階
賃貸アパート
グランリバー北千住

常磐線 / 北千住駅 徒歩14分
築1年 / 地上3階地下14階建
東京都足立区千住大川町

7.3万円 / 管理費4,000円
敷
7.3万円礼
無料ワンルーム / 18.15㎡ / 2階
賃貸マンション
ラミティエ北千住

つくばエクスプレス / 北千住駅 徒歩12分
築7年 / 3階建
東京都足立区千住龍田町

8.2万円 / 管理費5,000円
敷
8.2万円礼
12.3万円1K / 27.88㎡ / 2階
賃貸マンション
ライオンズマンション北千住第3

東京メトロ千代田線 / 北千住駅 徒歩9分
築35年 / 8階建
東京都足立区千住 中居町10-11

7.8万円 / 管理費なし
敷
7.8万円礼
7.8万円1K / 24.03㎡ / 2階
賃貸マンション
ミュオン北千住

常磐線 / 北千住駅 徒歩14分
築2年 / 3階建
東京都足立区千住 龍田町6-18

8.3万円 / 管理費7,000円
敷
8.3万円礼
8.3万円1K / 19.17㎡ / 2階
賃貸マンション
マテリア千住大橋

京成本線 / 千住大橋駅 徒歩9分
築3年 / 8階建
東京都足立区千住緑町3丁目

8.95万円 / 管理費20,000円
敷
8.95万円礼
8.95万円1DK / 25.82㎡ / 6階
賃貸マンション
ベルグレードSK
京成本線 / 千住大橋駅 徒歩3分
築12年 / 12階建
東京都足立区千住河原町27-1
8.9万円 / 管理費15,000円
敷
8.9万円礼
8.9万円1K / 25.5㎡ / 5階
賃貸マンション
アレグレット掃部宿(かもんしゅく)

京成本線 / 千住大橋駅 徒歩3分
築23年 / 11階建
東京都足立区千住橋戸町

8.6万円 / 管理費8,000円
敷
4.3万円礼
12.9万円ワンルーム / 31.34㎡ / 3階
賃貸マンション
アイフォート千住曙町

つくばエクスプレス / 北千住駅 徒歩13分
築17年 / 9階建
東京都足立区千住曙町

家賃カード決済可
8.2万円 / 管理費10,000円
敷
無料礼
無料ワンルーム / 24.63㎡ / 5階
賃貸マンション
プレール・ドゥーク東京EAST Ⅳ RiverSide

京成本線 / 千住大橋駅 徒歩7分
築18年 / 14階建
東京都荒川区南千住7丁目

8.4万円 / 管理費8,000円
敷
無料礼
8.4万円1K / 21.82㎡ / 10階
賃貸アパート
グランリバー北千住

常磐線 / 北千住駅 徒歩14分
築1年 / 地上3階地下14階建
東京都足立区千住大川町

7.3万円 / 管理費4,000円
敷
7.3万円礼
無料ワンルーム / 18.15㎡ / 2階
賃貸マンション
ラミティエ北千住

つくばエクスプレス / 北千住駅 徒歩12分
築7年 / 3階建
東京都足立区千住龍田町

8.2万円 / 管理費5,000円
敷
8.2万円礼
12.3万円1K / 27.88㎡ / 2階
賃貸マンション
ライオンズマンション北千住第3

東京メトロ千代田線 / 北千住駅 徒歩9分
築35年 / 8階建
東京都足立区千住 中居町10-11

7.8万円 / 管理費なし
敷
7.8万円礼
7.8万円1K / 24.03㎡ / 2階
賃貸マンション
ミュオン北千住

常磐線 / 北千住駅 徒歩14分
築2年 / 3階建
東京都足立区千住 龍田町6-18

8.3万円 / 管理費7,000円
敷
8.3万円礼
8.3万円1K / 19.17㎡ / 2階
)
)
)
)
)
)
)
)
)
)
)
)
)
)
)
)
)
)
)
)










