大阪市中央区瓦町2丁目 15階建 2025年築2LDK/14階(大阪府大阪市中央区 / 堺筋本町駅)の賃貸
1/30
1/30
18.9万円
初期費用を知りたい管理費12,000円
- 敷金
- 無料
- 保証金
- なし
- 礼金
- 37.8万円
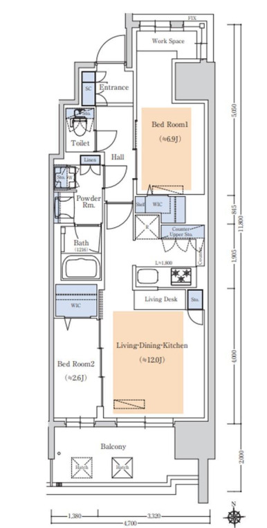
- 広さ
- 41.65㎡
- 階数
- 14階 / 15階建
- 間取り
- 2LDK
- 建物
- マンション (鉄筋コンクリート)
- 築年数
- 新築
- 向き
- 東
- 交通
- 地下鉄中央線 / 堺筋本町駅徒歩9分
- 地下鉄御堂筋線 / 本町駅徒歩10分
- 住所
- 大阪府大阪市中央区瓦町2丁目
コンビニエンスストア 41m
スーパーマーケット 1071m
総合病院 1940m
公園 1057m
ドラッグストア 216m
銀行 209m
商店街 1852m
業務スーパー・松屋町筋本町橋店 1023m
無料で10秒! カンタンお問い合わせ

大阪市中央区瓦町2丁目 15階建 2025年築
敷
無料礼
37.8万円特徴
バス・トイレ別
2階以上
エアコン付き
ペット相談可
駐車場あり
室内洗濯機置場
オートロック
洗面所独立
- 入居条件
- 初期費用カード決済可、二人入居可、即入居可最新の空室状況が知りたい
- バス・トイレ
- 専用バス、専用トイレ、バストイレ別、シャワー、給湯、追焚機能浴室、シャワー付洗面化粧台、温水洗浄便座、浴室乾燥機、洗面所独立
- キッチン
- IHクッキングヒーター、3口以上コンロ、システムキッチン、カウンターキッチン
- セキュリティ
- オートロック、防犯カメラ
- 室内設備
- エアコン、室内洗濯置、フローリング、インターネット対応、ネット使用料不要、クロゼット、シューズボックス、シューズインクロゼットお部屋の詳しい情報を知りたい
- 部屋の特徴
- バルコニー、角住戸、二階以上写真を送ってほしい
- 共用部
- エレベーター、宅配ボックス、駐輪場、バイク置場
- その他の特徴
- 公営水道、都市ガス、下水
無料で10秒! カンタンお問い合わせ

大阪市中央区瓦町2丁目 15階建 2025年築
敷
無料礼
37.8万円同じ建物で掲載中の物件 (14件)
不動産会社からのコメント
仲介手数料無料でご案内できます!
仲介手数料無料でご案内できます!!初期費用・家賃交渉・入居日など諸条件何でもご相談下さい。 現地待ち合わせもお気軽にお申し付けください。他の気になる物件もまとめてご案内致します。
その他
- 駐車/駐輪
- 要確認 / あり駐車可能な車種や台数を知りたい
- 入居時期
- 損保
- 住宅保険: 要
- 保証人代行
- 加入要 会社名: エポスカード 費用: 初回総賃料の50%、以後毎月更新で総賃料の1%
- その他費用
初期費用を知りたい鍵交換費用:22,000円
- 情報
情報登録日:2025/12/6
情報更新日:2026/4/13
次回更新予定日:2026/4/20
- 備考
- 現況: 空家 状態: 未入居 更新料: 30,000円 契約期間: 2年 自社管理番号: 1988766
取扱い会社
- 取扱い会社
- 株式会社アンティ 新大阪店条件が近い物件も紹介してほしい
- 免許番号
- 大阪府知事 (1) 第58744号
- 取引態様
- 仲介
- 所在地
- 大阪府大阪市淀川区西中島5丁目1-4モジュール新大阪 501
- 電話番号
- 06-6379-3448
- 営業時間
- 10:00~19:30
- 定休日
- お盆年末年始
- 所属団体名
- (公社)全日本不動産協会
おすすめ物件 (20件)
賃貸マンション
大阪市中央区博労町1丁目 15階建 2022年築

地下鉄堺筋線 / 堺筋本町駅 徒歩5分
築4年 / 15階建
大阪府大阪市中央区博労町1丁目

16.9万円 / 管理費10,000円
敷
無料礼
無料1LDK / 41.75㎡ / 10階
賃貸マンション
セイワパレス本町東

地下鉄堺筋線 / 堺筋本町駅 徒歩7分
新築 / 15階建
大阪府大阪市中央区常盤町1丁目

家賃カード決済可
20.1万円 / 管理費8,500円
敷
無料礼
20.1万円2SLDK / 50.87㎡ / 3階
賃貸マンション
セイワパレス本町東

地下鉄堺筋線 / 堺筋本町駅 徒歩9分
築1年 / 15階建
大阪府大阪市中央区常盤町1丁目3-21

家賃カード決済可
20.6万円 / 管理費8,500円
敷
無料礼
20.6万円2SLDK / 50.87㎡ / 8階
賃貸マンション
コンフォリア・リヴ博労町一丁目Q

地下鉄中央線 / 堺筋本町駅 徒歩8分
新築 / 15階建
大阪府大阪市中央区博労町1丁目

19.8万円 / 管理費12,000円
敷
無料礼
19.8万円2LDK / 42.84㎡ / 9階
賃貸マンション
スプランディッド安土町

地下鉄堺筋線 / 堺筋本町駅 徒歩4分
築7年 / 15階建
大阪府大阪市中央区安土町1丁目

16.9万円 / 管理費10,000円
敷
無料礼
無料1LDK / 41.31㎡ / 13階
賃貸マンション
コンフォリア・リヴ本町WEST Q

地下鉄四つ橋線 / 本町駅 徒歩9分
築1年 / 17階建
大阪府大阪市西区立売堀3丁目

19.5万円 / 管理費12,000円
敷
無料礼
無料1LDK / 45.44㎡ / 6階
賃貸マンション
BRAVE常盤町Ⅱ

地下鉄中央線 / 堺筋本町駅 徒歩5分
築3年 / 14階建
大阪府大阪市中央区常盤町2丁目

17.1万円 / 管理費12,000円
敷
無料礼
無料1LDK / 41.54㎡ / 13階
賃貸マンション
アーバネックス堺筋本町

地下鉄中央線 / 堺筋本町駅 徒歩4分
新築 / 15階建
大阪府大阪市中央区南本町2丁目

18万円 / 管理費13,000円
敷
無料礼
無料2LDK / 49.01㎡ / 6階
賃貸マンション
アーバネックス本町II

地下鉄御堂筋線 / 本町駅 徒歩6分
築2年 / 14階建
大阪府大阪市西区阿波座1丁目2-5

19.1万円 / 管理費12,000円
敷
無料礼
無料2LDK / 51.15㎡ / 5階
賃貸マンション
ユニーク靭公園前

地下鉄四つ橋線 / 本町駅 徒歩10分
築5年 / 10階建
大阪府大阪市西区靱本町3丁目

17万円 / 管理費15,000円
敷
17万円礼
18.7万円1LDK / 50.05㎡ / 10階
賃貸マンション
地下鉄谷町線 谷町四丁目駅 15階建 新築
地下鉄堺筋線 / 堺筋本町駅 徒歩12分
新築 / 15階建
大阪府大阪市中央区常盤町1
家賃カード決済可
20.2万円 / 管理費8,500円
敷
無料礼
20.2万円2SLDK / 50.87㎡ / 4階
賃貸マンション
地下鉄堺筋線 堺筋本町駅 14階建 築9年
地下鉄堺筋線 / 堺筋本町駅 徒歩10分
築8年 / 14階建
大阪府大阪市中央区農人橋3
19.1万円 / 管理費15,000円
敷
無料礼
無料2LDK / 49.95㎡ / 3階
賃貸マンション
地下鉄谷町線 谷町四丁目駅 15階建 築3年
地下鉄堺筋線 / 堺筋本町駅 徒歩11分
築2年 / 15階建
大阪府大阪市中央区南新町2
18.6万円 / 管理費12,000円
敷
無料礼
27.9万円2LDK / 49.81㎡ / 9階
賃貸マンション
エステムプラザ南船場レジスタ

地下鉄中央線 / 堺筋本町駅 徒歩8分
築3年 / 15階建
大阪府大阪市中央区南船場1丁目

20.79万円 / 管理費16,640円
敷
20.79万円礼
20.79万円1SLDK / 50.89㎡ / 13階
賃貸マンション
RJR堺筋本町タワー

地下鉄中央線 / 堺筋本町駅 徒歩2分
築5年 / 37階建
大阪府大阪市中央区南本町1丁目

18.8万円 / 管理費25,000円
敷
18.8万円礼
37.6万円1LDK / 50.28㎡ / 10階
賃貸マンション
コンフォリア・リヴ大阪本町

地下鉄中央線 / 堺筋本町駅 徒歩5分
新築 / 15階建
大阪府大阪市中央区瓦町2丁目

18.3万円 / 管理費12,000円
敷
無料礼
36.6万円2LDK / 41.65㎡ / 4階
賃貸マンション
アーバネックス南新町

地下鉄中央線 / 堺筋本町駅 徒歩9分
築2年 / 15階建
大阪府大阪市中央区南新町2丁目

18.6万円 / 管理費12,000円
敷
無料礼
28.2万円2LDK / 49.81㎡ / 12階
賃貸マンション
レジディア堺筋本町プレイス

地下鉄中央線 / 堺筋本町駅 徒歩5分
築8年 / 14階建
大阪府大阪市中央区農人橋3丁目

18.2万円 / 管理費15,000円
敷
無料礼
無料2LDK / 49.95㎡ / 3階
賃貸マンション
コンフォリア・リヴ北浜淡路町

地下鉄中央線 / 堺筋本町駅 徒歩9分
新築 / 15階建
大阪府大阪市中央区淡路町1丁目

17.7万円 / 管理費12,000円
敷
無料礼
無料1LDK / 40.36㎡ / 12階
賃貸マンション
コンフォリア・リヴ淡路町一丁
地下鉄中央線 / 堺筋本町駅 徒歩10分
新築 / 15階建
大阪府大阪市中央区淡路町1
17万円 / 管理費15,000円
敷
無料礼
無料2LDK / 40.37㎡ / 7階
賃貸マンション
大阪市中央区博労町1丁目 15階建 2022年築

地下鉄堺筋線 / 堺筋本町駅 徒歩5分
築4年 / 15階建
大阪府大阪市中央区博労町1丁目

16.9万円 / 管理費10,000円
敷
無料礼
無料1LDK / 41.75㎡ / 10階
賃貸マンション
セイワパレス本町東

地下鉄堺筋線 / 堺筋本町駅 徒歩7分
新築 / 15階建
大阪府大阪市中央区常盤町1丁目

家賃カード決済可
20.1万円 / 管理費8,500円
敷
無料礼
20.1万円2SLDK / 50.87㎡ / 3階
賃貸マンション
セイワパレス本町東

地下鉄堺筋線 / 堺筋本町駅 徒歩9分
築1年 / 15階建
大阪府大阪市中央区常盤町1丁目3-21

家賃カード決済可
20.6万円 / 管理費8,500円
敷
無料礼
20.6万円2SLDK / 50.87㎡ / 8階
賃貸マンション
コンフォリア・リヴ博労町一丁目Q

地下鉄中央線 / 堺筋本町駅 徒歩8分
新築 / 15階建
大阪府大阪市中央区博労町1丁目

19.8万円 / 管理費12,000円
敷
無料礼
19.8万円2LDK / 42.84㎡ / 9階
賃貸マンション
スプランディッド安土町

地下鉄堺筋線 / 堺筋本町駅 徒歩4分
築7年 / 15階建
大阪府大阪市中央区安土町1丁目

16.9万円 / 管理費10,000円
敷
無料礼
無料1LDK / 41.31㎡ / 13階
賃貸マンション
コンフォリア・リヴ本町WEST Q

地下鉄四つ橋線 / 本町駅 徒歩9分
築1年 / 17階建
大阪府大阪市西区立売堀3丁目

19.5万円 / 管理費12,000円
敷
無料礼
無料1LDK / 45.44㎡ / 6階
賃貸マンション
BRAVE常盤町Ⅱ

地下鉄中央線 / 堺筋本町駅 徒歩5分
築3年 / 14階建
大阪府大阪市中央区常盤町2丁目

17.1万円 / 管理費12,000円
敷
無料礼
無料1LDK / 41.54㎡ / 13階
賃貸マンション
アーバネックス堺筋本町

地下鉄中央線 / 堺筋本町駅 徒歩4分
新築 / 15階建
大阪府大阪市中央区南本町2丁目

18万円 / 管理費13,000円
敷
無料礼
無料2LDK / 49.01㎡ / 6階
賃貸マンション
アーバネックス本町II

地下鉄御堂筋線 / 本町駅 徒歩6分
築2年 / 14階建
大阪府大阪市西区阿波座1丁目2-5

19.1万円 / 管理費12,000円
敷
無料礼
無料2LDK / 51.15㎡ / 5階
賃貸マンション
ユニーク靭公園前

地下鉄四つ橋線 / 本町駅 徒歩10分
築5年 / 10階建
大阪府大阪市西区靱本町3丁目

17万円 / 管理費15,000円
敷
17万円礼
18.7万円1LDK / 50.05㎡ / 10階
賃貸マンション
地下鉄谷町線 谷町四丁目駅 15階建 新築
地下鉄堺筋線 / 堺筋本町駅 徒歩12分
新築 / 15階建
大阪府大阪市中央区常盤町1
家賃カード決済可
20.2万円 / 管理費8,500円
敷
無料礼
20.2万円2SLDK / 50.87㎡ / 4階
賃貸マンション
地下鉄堺筋線 堺筋本町駅 14階建 築9年
地下鉄堺筋線 / 堺筋本町駅 徒歩10分
築8年 / 14階建
大阪府大阪市中央区農人橋3
19.1万円 / 管理費15,000円
敷
無料礼
無料2LDK / 49.95㎡ / 3階
賃貸マンション
地下鉄谷町線 谷町四丁目駅 15階建 築3年
地下鉄堺筋線 / 堺筋本町駅 徒歩11分
築2年 / 15階建
大阪府大阪市中央区南新町2
18.6万円 / 管理費12,000円
敷
無料礼
27.9万円2LDK / 49.81㎡ / 9階
賃貸マンション
エステムプラザ南船場レジスタ

地下鉄中央線 / 堺筋本町駅 徒歩8分
築3年 / 15階建
大阪府大阪市中央区南船場1丁目

20.79万円 / 管理費16,640円
敷
20.79万円礼
20.79万円1SLDK / 50.89㎡ / 13階
賃貸マンション
RJR堺筋本町タワー

地下鉄中央線 / 堺筋本町駅 徒歩2分
築5年 / 37階建
大阪府大阪市中央区南本町1丁目

18.8万円 / 管理費25,000円
敷
18.8万円礼
37.6万円1LDK / 50.28㎡ / 10階
賃貸マンション
コンフォリア・リヴ大阪本町

地下鉄中央線 / 堺筋本町駅 徒歩5分
新築 / 15階建
大阪府大阪市中央区瓦町2丁目

18.3万円 / 管理費12,000円
敷
無料礼
36.6万円2LDK / 41.65㎡ / 4階
賃貸マンション
アーバネックス南新町

地下鉄中央線 / 堺筋本町駅 徒歩9分
築2年 / 15階建
大阪府大阪市中央区南新町2丁目

18.6万円 / 管理費12,000円
敷
無料礼
28.2万円2LDK / 49.81㎡ / 12階
賃貸マンション
レジディア堺筋本町プレイス

地下鉄中央線 / 堺筋本町駅 徒歩5分
築8年 / 14階建
大阪府大阪市中央区農人橋3丁目

18.2万円 / 管理費15,000円
敷
無料礼
無料2LDK / 49.95㎡ / 3階
賃貸マンション
コンフォリア・リヴ北浜淡路町

地下鉄中央線 / 堺筋本町駅 徒歩9分
新築 / 15階建
大阪府大阪市中央区淡路町1丁目

17.7万円 / 管理費12,000円
敷
無料礼
無料1LDK / 40.36㎡ / 12階
賃貸マンション
コンフォリア・リヴ淡路町一丁
地下鉄中央線 / 堺筋本町駅 徒歩10分
新築 / 15階建
大阪府大阪市中央区淡路町1
17万円 / 管理費15,000円
敷
無料礼
無料2LDK / 40.37㎡ / 7階





































)
)
