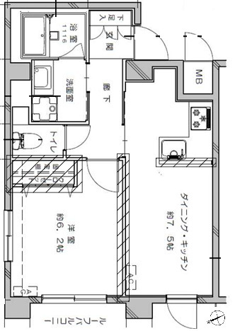
シーズンフラッツ浅草六丁目1DK/5階/502(東京都台東区 / 浅草駅)の賃貸
1/28
1/28
16.3万円
初期費用を知りたい管理費14,000円
- 敷金
- 16.3万円
- 保証金
- なし
- 礼金
- 無料
- 広さ
- 30.2㎡
- 階数
- 5階 / 13階建
- 間取り
- 1DK
- 建物
- マンション (鉄筋コンクリート)
- 築年数
- 新築
- 向き
- 南
- 交通
- 東京メトロ銀座線 / 浅草駅徒歩6分
- つくばエクスプレス / 浅草駅徒歩11分
- 住所
- 東京都台東区浅草6丁目1-1
コンビニエンスストア 31m
スーパーマーケット 145m
総合病院 489m
公園 265m
ドラッグストア 407m
銀行 646m
白洋舎松屋浅草店 646m
無料で10秒! カンタンお問い合わせ

シーズンフラッツ浅草六丁目
敷
16.3万円礼
無料特徴
バス・トイレ別
2階以上
エアコン付き
ペット相談可
駐車場あり
室内洗濯機置場
オートロック
洗面所独立
- 入居条件
- 二人入居可、保証人不要、初期費用カード決済可、フリーレント最新の空室状況が知りたい
- バス・トイレ
- バストイレ別、温水洗浄便座、追焚機能浴室、浴室乾燥機、洗面所独立、専用バス、専用トイレ
- キッチン
- システムキッチン、ガスコンロ対応、2口コンロ
- セキュリティ
- オートロック
- 室内設備
- 室内洗濯置、フローリング、エアコン、クロゼット、シューズインクロゼットお部屋の詳しい情報を知りたい
- 部屋の特徴
- バルコニー、二階以上写真を送ってほしい
- 共用部
- エレベーター、宅配ボックス、駐輪場
- その他の特徴
- 家賃保証付き、公営水道、下水、都市ガス
無料で10秒! カンタンお問い合わせ

シーズンフラッツ浅草六丁目
敷
16.3万円礼
無料同じ建物で掲載中の物件 (33件)
不動産会社からのコメント
当物件はオンラインまたはお近くの店舗でご相談お申込を承ります
当物件はオンラインまたはお近くの店舗でご相談お申込を承ります。リライフは首都圏23店舗のネットワークで豊富な物件情報をご提供いたします。当物件に類似した未公開物件のご提案も可能です。お気軽にお問い合わせください。違約金有:詳細はお問い合わせください
その他
- 駐車/駐輪
- 空無 / あり駐車可能な車種や台数を知りたい
- 入居時期
- 損保
- 住宅保険: 要
- 保証人代行
- 加入要 費用: 初回保証料:月額賃料等50%、2年目以降:10000円/年
- その他費用
初期費用を知りたい室内清掃費用:48,400円
口座振替事務手数料(月額):110円
- 情報
情報登録日:2025/12/21
情報更新日:2026/5/15
次回更新予定日:2026/5/22
- 備考
- 現況: 空家 状態: 未入居 更新料: 新賃料の1.0ヶ月分 フリーレント: 1ヶ月 契約期間: 2年 総戸数: 48戸 自社管理番号: B124823R458739
取扱い会社
- 取扱い会社
- 株式会社 リライフ 浅草店条件が近い物件も紹介してほしい
- 免許番号
- 国土交通大臣(1)第10792号
- 取引態様
- 仲介
- 所在地
- 東京都台東区雷門2-17-9 Relink KAMINARIMON 5F
- 電話番号
- 03-6756-7467
- 営業時間
- 10:00~18:30
- 定休日
- 毎週火・水曜日
- 所属団体名
- 公益社団法⼈東京都宅地建物取引業協会、公益社団法⼈全国宅地建物取引業保証協会
おすすめ物件 (20件)
賃貸マンション
WeaveBase-UENONORTH

つくばエクスプレス / 浅草駅 徒歩14分
新築 / 13階建
東京都台東区入谷2丁目20-7

14.3万円 / 管理費10,000円
敷
無料礼
無料1K / 25.42㎡ / 6階
賃貸マンション
台東区 9階建 2023年築
つくばエクスプレス / 浅草駅 徒歩14分
築3年 / 9階建
東京都台東区竜泉3丁目
15.5万円 / 管理費9,200円
敷
無料礼
23.25万円1LDK / 40.2㎡ / 7階
賃貸マンション
オルサス浅草(ORSUS ASAKUSA)
東武伊勢崎線 / 浅草駅 徒歩10分
築5年 / 8階建
東京都台東区浅草6丁目22-7
14.7万円 / 管理費10,000円
敷
14.7万円礼
無料ワンルーム / 34.59㎡ / 3階
賃貸マンション
ニド元浅草(nido MOTOASAKUSA)
つくばエクスプレス / 浅草駅 徒歩14分
新築 / 13階建
東京都台東区元浅草4丁目2-13
16.7万円 / 管理費10,000円
敷
無料礼
無料1DK / 28.95㎡ / 11階
賃貸マンション
台東区 15階建 2020年築
つくばエクスプレス / 浅草駅 徒歩5分
築6年 / 15階建
東京都台東区西浅草2丁目21-4
16.5万円 / 管理費12,000円
敷
無料礼
無料1LDK / 35.09㎡ / 15階
賃貸マンション
日神デュオステージ浅草

つくばエクスプレス / 浅草駅 徒歩2分
築18年 / 地上13階地下1階建
東京都台東区西浅草2丁目12-1

16万円 / 管理費15,000円
敷
16万円礼
16万円1LDK / 40.19㎡ / 10階
賃貸マンション
Brillia ist 浅草
つくばエクスプレス / 浅草駅 徒歩1分
新築 / 15階建
東京都台東区西浅草2丁目27-12
家賃カード決済可
16.1万円 / 管理費10,000円
敷
16.1万円礼
無料1DK / 27.25㎡ / 9階
賃貸マンション
台東区 13階建 2026年築
東武伊勢崎線 / 浅草駅 徒歩7分
新築 / 13階建
東京都台東区浅草6丁目
16.4万円 / 管理費14,000円
敷
16.4万円礼
無料1DK / 30.2㎡ / 6階
賃貸マンション
デュオフラッツ浅草田原町

東京メトロ銀座線 / 浅草駅 徒歩6分
築2年 / 13階建
東京都台東区寿3丁目21-5

17.8万円 / 管理費10,000円
敷
17.8万円礼
8.9万円1LDK / 31.82㎡ / 12階
賃貸マンション
シーズンフラッツ浅草六丁目

東京メトロ銀座線 / 浅草駅 徒歩6分
新築 / 13階建
東京都台東区浅草6丁目1-1

17万円 / 管理費14,000円
敷
17万円礼
無料1DK / 30.2㎡ / 11階
賃貸マンション
リビオメゾン浅草雷門

東京メトロ銀座線 / 浅草駅 徒歩4分
新築 / 15階建
東京都台東区雷門2丁目15

16.7万円 / 管理費12,000円
敷
16.7万円礼
無料1DK / 26.54㎡ / 8階
賃貸マンション
ルネサンスコート上野入谷

つくばエクスプレス / 浅草駅 徒歩14分
築5年 / 12階建
東京都台東区竜泉1丁目17-6

16.5万円 / 管理費15,000円
敷
無料礼
無料1LDK / 40.02㎡ / 6階
賃貸マンション
J.GRAN Court浅草

つくばエクスプレス / 浅草駅 徒歩9分
築3年 / 12階建
東京都台東区浅草3丁目25-1

14.7万円 / 管理費10,000円
敷
14.7万円礼
無料1DK / 26.26㎡ / 8階
賃貸マンション
ザ・グローヴ浅草

都営浅草線 / 浅草駅 徒歩5分
築5年 / 10階建
東京都台東区浅草1丁目35-9

15.9万円 / 管理費8,000円
敷
15.9万円礼
15.9万円1LDK / 30.96㎡ / 5階
賃貸マンション
リビオメゾン上野松が谷

つくばエクスプレス / 浅草駅 徒歩7分
築4年 / 14階建
東京都台東区松が谷3丁目4-2

14.7万円 / 管理費10,000円
敷
14.7万円礼
14.7万円1DK / 30㎡ / 5階
賃貸マンション
ライトテラス浅草

東京メトロ銀座線 / 浅草駅 徒歩10分
築6年 / 10階建
東京都台東区浅草6丁目27-3

15万円 / 管理費10,000円
敷
15万円礼
15万円1LDK / 30.16㎡ / 4階
賃貸マンション
ラヴィエント浅草言問

東京メトロ銀座線 / 浅草駅 徒歩11分
築10年 / 10階建
東京都台東区浅草6丁目26-11

16.9万円 / 管理費15,000円
敷
無料礼
無料1LDK / 40.14㎡ / 7階
賃貸マンション
ジニア浅草

東京メトロ銀座線 / 浅草駅 徒歩13分
築5年 / 10階建
東京都台東区東浅草1丁目4-4

14.9万円 / 管理費10,000円
敷
14.9万円礼
無料1LDK / 33.75㎡ / 7階
賃貸マンション
ZOOM浅草WEST

つくばエクスプレス / 浅草駅 徒歩8分
築3年 / 12階建
東京都台東区松が谷2丁目22-5

16.6万円 / 管理費15,000円
敷
16.6万円礼
16.6万円1LDK / 40.03㎡ / 8階
賃貸マンション
WeaveBase-UENONORTH

つくばエクスプレス / 浅草駅 徒歩14分
新築 / 13階建
東京都台東区入谷2丁目20-7

14.3万円 / 管理費10,000円
敷
無料礼
無料1K / 25.42㎡ / 6階
賃貸マンション
台東区 9階建 2023年築
つくばエクスプレス / 浅草駅 徒歩14分
築3年 / 9階建
東京都台東区竜泉3丁目
15.5万円 / 管理費9,200円
敷
無料礼
23.25万円1LDK / 40.2㎡ / 7階
賃貸マンション
オルサス浅草(ORSUS ASAKUSA)
東武伊勢崎線 / 浅草駅 徒歩10分
築5年 / 8階建
東京都台東区浅草6丁目22-7
14.7万円 / 管理費10,000円
敷
14.7万円礼
無料ワンルーム / 34.59㎡ / 3階
賃貸マンション
ニド元浅草(nido MOTOASAKUSA)
つくばエクスプレス / 浅草駅 徒歩14分
新築 / 13階建
東京都台東区元浅草4丁目2-13
16.7万円 / 管理費10,000円
敷
無料礼
無料1DK / 28.95㎡ / 11階
賃貸マンション
台東区 15階建 2020年築
つくばエクスプレス / 浅草駅 徒歩5分
築6年 / 15階建
東京都台東区西浅草2丁目21-4
16.5万円 / 管理費12,000円
敷
無料礼
無料1LDK / 35.09㎡ / 15階
賃貸マンション
日神デュオステージ浅草

つくばエクスプレス / 浅草駅 徒歩2分
築18年 / 地上13階地下1階建
東京都台東区西浅草2丁目12-1

16万円 / 管理費15,000円
敷
16万円礼
16万円1LDK / 40.19㎡ / 10階
賃貸マンション
Brillia ist 浅草
つくばエクスプレス / 浅草駅 徒歩1分
新築 / 15階建
東京都台東区西浅草2丁目27-12
家賃カード決済可
16.1万円 / 管理費10,000円
敷
16.1万円礼
無料1DK / 27.25㎡ / 9階
賃貸マンション
台東区 13階建 2026年築
東武伊勢崎線 / 浅草駅 徒歩7分
新築 / 13階建
東京都台東区浅草6丁目
16.4万円 / 管理費14,000円
敷
16.4万円礼
無料1DK / 30.2㎡ / 6階
賃貸マンション
デュオフラッツ浅草田原町

東京メトロ銀座線 / 浅草駅 徒歩6分
築2年 / 13階建
東京都台東区寿3丁目21-5

17.8万円 / 管理費10,000円
敷
17.8万円礼
8.9万円1LDK / 31.82㎡ / 12階
賃貸マンション
シーズンフラッツ浅草六丁目

東京メトロ銀座線 / 浅草駅 徒歩6分
新築 / 13階建
東京都台東区浅草6丁目1-1

17万円 / 管理費14,000円
敷
17万円礼
無料1DK / 30.2㎡ / 11階
賃貸マンション
リビオメゾン浅草雷門

東京メトロ銀座線 / 浅草駅 徒歩4分
新築 / 15階建
東京都台東区雷門2丁目15

16.7万円 / 管理費12,000円
敷
16.7万円礼
無料1DK / 26.54㎡ / 8階
賃貸マンション
ルネサンスコート上野入谷

つくばエクスプレス / 浅草駅 徒歩14分
築5年 / 12階建
東京都台東区竜泉1丁目17-6

16.5万円 / 管理費15,000円
敷
無料礼
無料1LDK / 40.02㎡ / 6階
賃貸マンション
J.GRAN Court浅草

つくばエクスプレス / 浅草駅 徒歩9分
築3年 / 12階建
東京都台東区浅草3丁目25-1

14.7万円 / 管理費10,000円
敷
14.7万円礼
無料1DK / 26.26㎡ / 8階
賃貸マンション
ザ・グローヴ浅草

都営浅草線 / 浅草駅 徒歩5分
築5年 / 10階建
東京都台東区浅草1丁目35-9

15.9万円 / 管理費8,000円
敷
15.9万円礼
15.9万円1LDK / 30.96㎡ / 5階
賃貸マンション
リビオメゾン上野松が谷

つくばエクスプレス / 浅草駅 徒歩7分
築4年 / 14階建
東京都台東区松が谷3丁目4-2

14.7万円 / 管理費10,000円
敷
14.7万円礼
14.7万円1DK / 30㎡ / 5階
賃貸マンション
ライトテラス浅草

東京メトロ銀座線 / 浅草駅 徒歩10分
築6年 / 10階建
東京都台東区浅草6丁目27-3

15万円 / 管理費10,000円
敷
15万円礼
15万円1LDK / 30.16㎡ / 4階
賃貸マンション
ラヴィエント浅草言問

東京メトロ銀座線 / 浅草駅 徒歩11分
築10年 / 10階建
東京都台東区浅草6丁目26-11

16.9万円 / 管理費15,000円
敷
無料礼
無料1LDK / 40.14㎡ / 7階
賃貸マンション
ジニア浅草

東京メトロ銀座線 / 浅草駅 徒歩13分
築5年 / 10階建
東京都台東区東浅草1丁目4-4

14.9万円 / 管理費10,000円
敷
14.9万円礼
無料1LDK / 33.75㎡ / 7階
賃貸マンション
ZOOM浅草WEST

つくばエクスプレス / 浅草駅 徒歩8分
築3年 / 12階建
東京都台東区松が谷2丁目22-5

16.6万円 / 管理費15,000円
敷
16.6万円礼
16.6万円1LDK / 40.03㎡ / 8階
同じ最寄り駅 × 同じ特徴 で探す
同じ市区町村 × 同じ特徴 で探す





















































