福岡市東区千早5丁目 15階建 2024年築1LDK/5階(福岡県福岡市東区 / 香椎宮前駅)の賃貸
1/22
1/22
8.1万円
初期費用を知りたい管理費5,000円
- 敷金
- 8.1万円
- 保証金
- なし
- 礼金
- 8.1万円
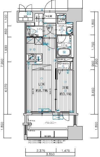
- 広さ
- 27.28㎡
- 階数
- 5階 / 15階建
- 間取り
- 1LDK
- 建物
- マンション (鉄筋コンクリート)
- 築年数
- 築2年
- 向き
- 北
- 交通
- 西鉄貝塚線 / 香椎宮前駅徒歩2分
- 鹿児島本線 / 千早駅徒歩9分
- 住所
- 福岡県福岡市東区千早5丁目
コンビニエンスストア 203m
スーパーマーケット 578m
ローソン 香椎駅前一丁目店 271m
無料で10秒! カンタンお問い合わせ

福岡市東区千早5丁目 15階建 2024年築
敷
8.1万円礼
8.1万円特徴
バス・トイレ別
2階以上
エアコン付き
ペット相談可
駐車場あり
室内洗濯機置場
オートロック
洗面所独立
- 入居条件
- ペット相談最新の空室状況が知りたい
- バス・トイレ
- 専用バス、専用トイレ、バストイレ別、追焚機能浴室、シャワー付洗面化粧台、温水洗浄便座、浴室乾燥機
- キッチン
- ガスコンロ対応、システムキッチン
- セキュリティ
- オートロック
- 室内設備
- 室内洗濯置、CS、BS、フローリング、ネット使用料不要、クロゼット、シューズボックスお部屋の詳しい情報を知りたい
- 部屋の特徴
- バルコニー、角住戸、二階以上写真を送ってほしい
- 共用部
- エレベーター、宅配ボックス
無料で10秒! カンタンお問い合わせ

福岡市東区千早5丁目 15階建 2024年築
敷
8.1万円礼
8.1万円同じ建物で掲載中の物件 (17件)
不動産会社からのコメント
当店はとにかく初期費用に拘ります! 初期費用を抑える【ゼロスタプラン】を導入し、引越しハードルを下げ
・初期費用0円! ・オンライン内見可能! ・LINEでの相談可! ・福岡市内エリアに強い! ・他サイトに掲載物件もご案内可能! ・お部屋探しからお引越し後のライフラインの手続きまでサポート!
その他
- 駐車/駐輪
- 要確認 / なし駐車可能な車種や台数を知りたい
- 入居時期
- 損保
- 住宅保険: 要
- 保証人代行
- -
- その他費用
- 情報
情報登録日:2026/3/3
情報更新日:2026/3/3
次回更新予定日:2026/3/10
- 備考
- 現況: 居住中 契約期間: 2年 自社管理番号: 1326708
取扱い会社
- 取扱い会社
- 株式会社Lien リアン不動産 薬院店条件が近い物件も紹介してほしい
- 免許番号
- 福岡県知事(1)第21072号
- 取引態様
- 仲介
- 所在地
- 福岡県福岡市中央区薬院2丁目2-24-805
- 電話番号
- 092-401-3457
- 定休日
- 無
- 所属団体名
- 福岡県宅地建物取引業協会
おすすめ物件 (14件)
賃貸マンション
ブランシエスタ千早RJR

西鉄貝塚線 / 香椎宮前駅 徒歩5分
築2年 / 15階建
福岡県福岡市東区千早5丁目

8.5万円 / 管理費5,000円
敷
8.5万円礼
8.5万円1LDK / 27.28㎡ / 12階
賃貸マンション
福岡市東区千早4丁目 15階建 2020年築

鹿児島本線 / 千早駅 徒歩4分
築6年 / 15階建
福岡県福岡市東区千早4丁目

8.1万円 / 管理費3,000円
敷
8.1万円礼
16.2万円1LDK / 30.6㎡ / 7階
賃貸マンション
クリスタル&リゾートスカイプレミア
鹿児島本線 / 千早駅 徒歩14分
築8年 / 9階建
福岡県福岡市東区名島3
7.1万円 / 管理費5,000円
敷
無料礼
14.2万円1LDK / 30.96㎡ / 8階
賃貸マンション
JR鹿児島本線 香椎駅 11階建 築3年
西鉄貝塚線 / 香椎宮前駅 徒歩4分
築3年 / 11階建
福岡県福岡市東区千早5
8万円 / 管理費5,000円
敷
無料礼
8万円1LDK / 30.9㎡ / 6階
賃貸マンション
西鉄貝塚線 西鉄香椎駅 14階建 築3年
西鉄貝塚線 / 香椎宮前駅 徒歩10分
築3年 / 14階建
福岡県福岡市東区香椎駅前2
8万円 / 管理費6,000円
敷
8万円礼
16万円1LDK / 33.4㎡ / 7階
賃貸マンション
グランフォーレ千早マークスクエアイーストウイング
鹿児島本線 / 千早駅 徒歩4分
築5年 / 15階建
福岡県福岡市東区千早4
7.6万円 / 管理費4,300円
敷
無料礼
15.2万円1LDK / 30.6㎡ / 6階
賃貸マンション
アールズプレイス福岡香椎駅前
)
西鉄貝塚線 / 香椎宮前駅 徒歩11分
築7年 / 9階建
福岡県福岡市東区香椎駅前1丁目24-28
)
8万円 / 管理費5,000円
敷
無料礼
8万円1LDK / 34.1㎡ / 4階
賃貸マンション
グランフォーレ千早マークスクエア イーストウイング

鹿児島本線 / 千早駅 徒歩6分
築6年 / 15階建
福岡県福岡市東区千早4丁目14番26号

7.5万円 / 管理費5,000円
敷
無料礼
7.5万円1LDK / 30.6㎡ / 2階
賃貸マンション
西鉄貝塚線 香椎宮前駅 14階建 築14年
西鉄貝塚線 / 香椎宮前駅 徒歩2分
築14年 / 14階建
福岡県福岡市東区千早5
6.4万円 / 管理費4,000円
敷
無料礼
6.4万円1DK / 29.48㎡ / 12階
賃貸マンション
LUXCAS香椎浜
)
鹿児島本線 / 千早駅 徒歩19分
築2年 / 4階建
福岡県福岡市東区香椎浜2丁目
)
7.3万円 / 管理費3,300円
敷
無料礼
7.3万円ワンルーム / 27.95㎡ / 4階
賃貸マンション
ブランシエスタ千早RJR

西鉄貝塚線 / 香椎宮前駅 徒歩5分
築2年 / 15階建
福岡県福岡市東区千早5丁目

8.5万円 / 管理費5,000円
敷
8.5万円礼
8.5万円1LDK / 27.28㎡ / 12階
賃貸マンション
福岡市東区千早4丁目 15階建 2020年築

鹿児島本線 / 千早駅 徒歩4分
築6年 / 15階建
福岡県福岡市東区千早4丁目

8.1万円 / 管理費3,000円
敷
8.1万円礼
16.2万円1LDK / 30.6㎡ / 7階
賃貸マンション
クリスタル&リゾートスカイプレミア
鹿児島本線 / 千早駅 徒歩14分
築8年 / 9階建
福岡県福岡市東区名島3
7.1万円 / 管理費5,000円
敷
無料礼
14.2万円1LDK / 30.96㎡ / 8階
賃貸マンション
JR鹿児島本線 香椎駅 11階建 築3年
西鉄貝塚線 / 香椎宮前駅 徒歩4分
築3年 / 11階建
福岡県福岡市東区千早5
8万円 / 管理費5,000円
敷
無料礼
8万円1LDK / 30.9㎡ / 6階
賃貸マンション
西鉄貝塚線 西鉄香椎駅 14階建 築3年
西鉄貝塚線 / 香椎宮前駅 徒歩10分
築3年 / 14階建
福岡県福岡市東区香椎駅前2
8万円 / 管理費6,000円
敷
8万円礼
16万円1LDK / 33.4㎡ / 7階
賃貸マンション
グランフォーレ千早マークスクエアイーストウイング
鹿児島本線 / 千早駅 徒歩4分
築5年 / 15階建
福岡県福岡市東区千早4
7.6万円 / 管理費4,300円
敷
無料礼
15.2万円1LDK / 30.6㎡ / 6階
賃貸マンション
アールズプレイス福岡香椎駅前
)
西鉄貝塚線 / 香椎宮前駅 徒歩11分
築7年 / 9階建
福岡県福岡市東区香椎駅前1丁目24-28
)
8万円 / 管理費5,000円
敷
無料礼
8万円1LDK / 34.1㎡ / 4階
賃貸マンション
グランフォーレ千早マークスクエア イーストウイング

鹿児島本線 / 千早駅 徒歩6分
築6年 / 15階建
福岡県福岡市東区千早4丁目14番26号

7.5万円 / 管理費5,000円
敷
無料礼
7.5万円1LDK / 30.6㎡ / 2階
賃貸マンション
西鉄貝塚線 香椎宮前駅 14階建 築14年
西鉄貝塚線 / 香椎宮前駅 徒歩2分
築14年 / 14階建
福岡県福岡市東区千早5
6.4万円 / 管理費4,000円
敷
無料礼
6.4万円1DK / 29.48㎡ / 12階
賃貸マンション
LUXCAS香椎浜
)
鹿児島本線 / 千早駅 徒歩19分
築2年 / 4階建
福岡県福岡市東区香椎浜2丁目
)
7.3万円 / 管理費3,300円
敷
無料礼
7.3万円ワンルーム / 27.95㎡ / 4階



























)
)
)
)



