ザ・パークハビオ横浜山手1DK/4階(神奈川県横浜市中区 / 石川町駅)の賃貸
1/19
1/19
17.6万円
初期費用を知りたい管理費15,000円
- 敷金
- 17.6万円
- 保証金
- なし
- 礼金
- 17.6万円
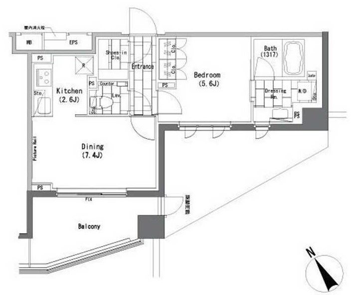
- 広さ
- 40.92㎡
- 階数
- 4階 / 7階建
- 間取り
- 1DK
- 建物
- マンション (鉄筋コンクリート)
- 築年数
- 築11年
- 向き
- 交通
- 京浜東北線 / 石川町駅徒歩2分
- みなとみらい線 / 元町・中華街駅徒歩12分
- 京浜東北線 / 関内駅徒歩15分
- 住所
- 神奈川県横浜市中区石川町2
石川町駅前郵便局(郵便局)まで77m
ローソン・スリーエフ 中区石川町店(コンビニ)まで100m
セブンイレブン 横浜石川町2丁目店(コンビニ)まで173m
ファミリーマート 鈴木石川町店(コンビニ)まで178m
ハックドラッグ石川町店(ドラッグストア)まで180m
無料で10秒! カンタンお問い合わせ
ザ・パークハビオ横浜山手
敷
17.6万円礼
17.6万円特徴
バス・トイレ別
2階以上
エアコン付き
ペット相談可
駐車場あり
室内洗濯機置場
オートロック
洗面所独立
- 入居条件
- 即入居可、ペット相談、保証人不要、敷金1ヶ月、二人入居相談、保証金不要、事務所相談、楽器相談、礼金1ヶ月最新の空室状況が知りたい
- バス・トイレ
- バストイレ別、シャワー付洗面台、浴室乾燥機、追焚機能浴室、温水洗浄便座、脱衣所、洗面所独立
- キッチン
- ガスコンロ対応、システムキッチン、2口コンロ
- セキュリティ
- オートロック、防犯カメラ、セキュリティ会社加入済
- 室内設備
- エアコン、クロゼット、フローリング、室内洗濯置、シューズボックス、CATV、光ファイバー、BS・CS、照明付、全居室フローリング、24時間換気システムお部屋の詳しい情報を知りたい
- 部屋の特徴
- バルコニー、二階以上写真を送ってほしい
- 共用部
- エレベーター、駐輪場、宅配ボックス、敷地内ごみ置き場
- その他の特徴
- 外壁タイル張り、デザイナーズ、駅まで平坦、都市ガス、駐車場あり
無料で10秒! カンタンお問い合わせ
ザ・パークハビオ横浜山手
敷
17.6万円礼
17.6万円同じ建物で掲載中の物件 (10件)
不動産会社からのコメント
人気の施工会社が手掛けた、パークハビオシリーズに募集です!
GOIng関内店では、初期費用を分割でお支払い頂くことが可能です☆他社さん掲載のお部屋でも対応可能です!!初期費用の減額交渉もさせて頂きます!また、近隣へのお迎え、送迎のサービスもしております♪
その他
- 駐車/駐輪
- 敷地内33000円 / あり駐車可能な車種や台数を知りたい
- 入居時期
- 損保
- 要
- 保証人代行
- -
- その他費用
合計3.3万円(内訳:鍵交換代 33000円) 初期費用を知りたい- 情報
情報登録日:2026/2/6
情報更新日:2026/5/10
次回更新予定日:2026/5/26
- 備考
- 契約期間: 普通借家 2年 保証会社: 保証会社利用必 初年度保証料:賃料等合計額の40%(最低保証料2万円)2年目以降:1年毎8千円 その他:伊勢佐木長者町駅徒歩5秒!! GOIng関内店では、近隣への送迎サービスをしておりますので、ぜひご活用ください☆ また各種カードで初期費用分割払いご利用可能です!! 手数料も不要!3回から24回まで可能です♪ お手間取らせる審査なども一切ございませんので、お気軽にご相談ください☆カードのポイント等も貯まりますよ!!045-325-9704 / 条件: 単身者可/ペット相談/楽器相談/事務所利用相談 / ほか初期費用: 合計3.3万円(内訳:鍵交換代 33000円)
取扱い会社
- 取扱い会社
- 株式会社GOIng 関内店条件が近い物件も紹介してほしい
- 免許番号
- 神奈川県知事(1)第32309号
- 取引態様
- 一般媒介
- 所在地
- 神奈川県横浜市中区長者町4-11-7 長者町朝日ビル6階
- 電話番号
- 045-325-9704
- 営業時間
- 10:00~10:30
- 定休日
- なし
- 所属団体名
- 全国宅地建物取引業保証協会
おすすめ物件 (10件)
賃貸マンション
コンフォリア・リヴ関内

京浜東北線 / 関内駅 徒歩8分
築1年 / 10階建
神奈川県横浜市中区長者町5丁目

19万円 / 管理費15,000円
敷
19万円礼
無料ワンルーム / 42.59㎡ / 6階
賃貸マンション
グランカーサ横濱石川町

京浜東北線 / 石川町駅 徒歩10分
築2年 / 10階建
神奈川県横浜市中区長者町1丁目

19.4万円 / 管理費10,000円
敷
19.4万円礼
19.4万円2LDK / 45.15㎡ / 4階
賃貸マンション
ザ・パークハビオ横浜関内

京浜東北線 / 関内駅 徒歩3分
築9年 / 15階建
神奈川県横浜市中区羽衣町2丁目

18.5万円 / 管理費15,000円
敷
18.5万円礼
18.5万円1LDK / 42.78㎡ / 14階
賃貸マンション
パークアクシス横濱関内スクエア

ブルーライン / 関内駅 徒歩2分
築10年 / 15階建
神奈川県横浜市中区相生町3丁目

17.3万円 / 管理費12,000円
敷
17.3万円礼
無料1LDK / 34.47㎡ / 7階
賃貸マンション
ザ・パークハビオ横浜山手

京浜東北線 / 石川町駅 徒歩2分
築11年 / 7階建
神奈川県横浜市中区石川町2丁目

17.7万円 / 管理費15,000円
敷
17.7万円礼
17.7万円1LDK / 40.92㎡ / 3階
賃貸マンション
グラマシー横濱関内

京浜東北線 / 関内駅 徒歩5分
築17年 / 10階建
神奈川県横浜市中区翁町2丁目

家賃カード決済可
16.9万円 / 管理費10,000円
敷
無料礼
無料1LDK / 42.57㎡ / 7階
賃貸マンション
パークアクシス横濱関内SQUARE

ブルーライン / 関内駅 徒歩2分
築10年 / 地上15階地下1階建
神奈川県横浜市中区相生町3丁目

17万円 / 管理費12,000円
敷
17万円礼
無料1LDK / 44.48㎡ / 8階
賃貸マンション
シーフォルム関内Ⅱ

京浜東北線 / 関内駅 徒歩7分
築6年 / 地上11階地下1階建
神奈川県横浜市中区長者町5丁目

家賃カード決済可
15.8万円 / 管理費12,000円
敷
15.8万円礼
15.8万円1LDK / 41.78㎡ / 4階
賃貸マンション
メイクスWアート横浜関内
京浜東北線 / 関内駅 徒歩10分
築2年 / 11階建
神奈川県横浜市中区曙町2
15.8万円 / 管理費12,000円
敷
無料礼
15.8万円1SLDK / 38.72㎡ / 9階
賃貸マンション
SYFORME KANNAIII
京浜東北線 / 関内駅 徒歩7分
築6年 / 11階建
神奈川県横浜市中区長者町5
15.8万円 / 管理費12,000円
敷
15.8万円礼
15.8万円1LDK / 41.78㎡ / 4階
賃貸マンション
コンフォリア・リヴ関内

京浜東北線 / 関内駅 徒歩8分
築1年 / 10階建
神奈川県横浜市中区長者町5丁目

19万円 / 管理費15,000円
敷
19万円礼
無料ワンルーム / 42.59㎡ / 6階
賃貸マンション
グランカーサ横濱石川町

京浜東北線 / 石川町駅 徒歩10分
築2年 / 10階建
神奈川県横浜市中区長者町1丁目

19.4万円 / 管理費10,000円
敷
19.4万円礼
19.4万円2LDK / 45.15㎡ / 4階
賃貸マンション
ザ・パークハビオ横浜関内

京浜東北線 / 関内駅 徒歩3分
築9年 / 15階建
神奈川県横浜市中区羽衣町2丁目

18.5万円 / 管理費15,000円
敷
18.5万円礼
18.5万円1LDK / 42.78㎡ / 14階
賃貸マンション
パークアクシス横濱関内スクエア

ブルーライン / 関内駅 徒歩2分
築10年 / 15階建
神奈川県横浜市中区相生町3丁目

17.3万円 / 管理費12,000円
敷
17.3万円礼
無料1LDK / 34.47㎡ / 7階
賃貸マンション
ザ・パークハビオ横浜山手

京浜東北線 / 石川町駅 徒歩2分
築11年 / 7階建
神奈川県横浜市中区石川町2丁目

17.7万円 / 管理費15,000円
敷
17.7万円礼
17.7万円1LDK / 40.92㎡ / 3階
賃貸マンション
グラマシー横濱関内

京浜東北線 / 関内駅 徒歩5分
築17年 / 10階建
神奈川県横浜市中区翁町2丁目

家賃カード決済可
16.9万円 / 管理費10,000円
敷
無料礼
無料1LDK / 42.57㎡ / 7階
賃貸マンション
パークアクシス横濱関内SQUARE

ブルーライン / 関内駅 徒歩2分
築10年 / 地上15階地下1階建
神奈川県横浜市中区相生町3丁目

17万円 / 管理費12,000円
敷
17万円礼
無料1LDK / 44.48㎡ / 8階
賃貸マンション
シーフォルム関内Ⅱ

京浜東北線 / 関内駅 徒歩7分
築6年 / 地上11階地下1階建
神奈川県横浜市中区長者町5丁目

家賃カード決済可
15.8万円 / 管理費12,000円
敷
15.8万円礼
15.8万円1LDK / 41.78㎡ / 4階
賃貸マンション
メイクスWアート横浜関内
京浜東北線 / 関内駅 徒歩10分
築2年 / 11階建
神奈川県横浜市中区曙町2
15.8万円 / 管理費12,000円
敷
無料礼
15.8万円1SLDK / 38.72㎡ / 9階
賃貸マンション
SYFORME KANNAIII
京浜東北線 / 関内駅 徒歩7分
築6年 / 11階建
神奈川県横浜市中区長者町5
15.8万円 / 管理費12,000円
敷
15.8万円礼
15.8万円1LDK / 41.78㎡ / 4階








