シーズンフラッツ木場2K/8階/802(東京都江東区 / 木場駅)の賃貸
1/18
1/18
13万円
初期費用を知りたい管理費15,000円
適用で最大2年間4.8万円割引
本物件のヘヤワリ適用可否については、不動産会社へご確認ください。
- 敷金
- 13万円
- 保証金
- なし
- 礼金
- 無料
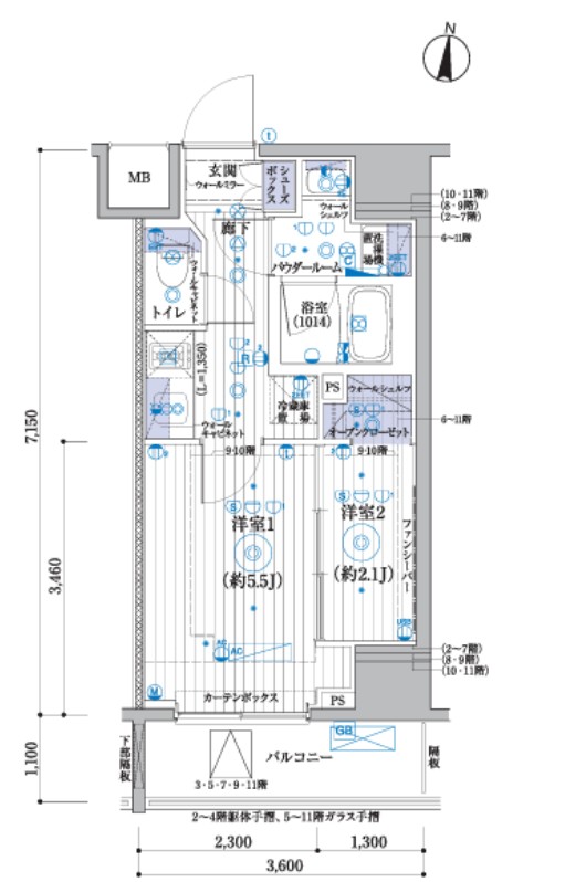
- 広さ
- 25.3㎡
- 階数
- 8階 / 9階建
- 間取り
- 2K
- 建物
- マンション (鉄筋コンクリート)
- 築年数
- 築3年
- 向き
- 東
- 交通
- 東京メトロ東西線 / 木場駅徒歩8分
- 住所
- 東京都江東区木場3丁目6-16
コンビニエンスストア 217m
スーパーマーケット 453m
総合病院 485m
ドラッグストア 264m
大黒屋 門前仲町店 452m
無料で10秒! カンタンお問い合わせ

シーズンフラッツ木場
敷
13万円礼
無料特徴
バス・トイレ別
2階以上
エアコン付き
ペット相談可
駐車場あり
室内洗濯機置場
オートロック
洗面所独立
- 入居条件
- 二人入居可最新の空室状況が知りたい
- バス・トイレ
- 専用バス、専用トイレ、バストイレ別、シャワー、追焚機能浴室、温水洗浄便座、浴室乾燥機
- キッチン
- ガスコンロ対応、システムキッチン
- セキュリティ
- 防犯カメラ
- 室内設備
- エアコン、室内洗濯置、CS、BS、フローリング、光ファイバー、ネット使用料不要お部屋の詳しい情報を知りたい
- 部屋の特徴
- バルコニー、二階以上写真を送ってほしい
- 共用部
- エレベーター、宅配ボックス、駐輪場、バイク置場
- その他の特徴
- 公営水道、都市ガス、下水
無料で10秒! カンタンお問い合わせ

シーズンフラッツ木場
敷
13万円礼
無料同じ建物で掲載中の物件 (1件)
不動産会社からのコメント
室内設備はBS・追い焚きなど充実した設備を備え付けています。こちらの物件は閑静な住宅地にあります。
室内設備はエアコン・追い焚きなど豊富に揃っており、過ごしやすいお部屋になっております。二人入居を希望される際はぜひご相談ください。マンションに光回線を繋いでパソコンを使いやすくしました。急なお引越しにもうれしい、すぐに入居ができる空き部屋となっております。賃貸住宅情報をお探しの方で、お困りでしたら当社にご連絡下さい。お客様がご希望することや不明な点についてお伺いいたします。
その他
- 駐車/駐輪
- 空無 / あり駐車可能な車種や台数を知りたい
- 入居時期
- 2026年4月中旬最新の空室状況が知りたい
- 損保
- 住宅保険: 不要
- 保証人代行
- 加入要 費用: 初回契約時:25%、更新時:10,000円、その他保証会社あり。法人の場合は更新料30,000円
- その他費用
初期費用を知りたい鍵交換費用:33,000円
- 情報
情報登録日:2026/4/14
情報更新日:2026/4/16
次回更新予定日:2026/4/20
- 備考
- 現況: 空家 更新料: 新賃料の1.0ヶ月分 契約期間: 2年 自社管理番号: 4696648
取扱い会社
- 取扱い会社
- 株式会社チアエステート条件が近い物件も紹介してほしい
- 免許番号
- 東京都知事(1)第106849号
- 取引態様
- 仲介
- 所在地
- 東京都千代田区神田須田町2丁目6-20マリアナ神田須田町3階
- 電話番号
- 03-5296-9335
- 定休日
- 不定休
- 所属団体名
- 全国宅地建物取引業保証協会
おすすめ物件 (20件)
賃貸マンション
ES-Grande門前仲町デュオ

東京メトロ東西線 / 木場駅 徒歩9分
築1年 / 5階建
東京都江東区古石場3丁目11-22

13.9万円 / 管理費10,000円
敷
無料礼
無料1DK / 25.2㎡ / 2階
賃貸マンション
アーバネックス深川木場

東京メトロ東西線 / 木場駅 徒歩3分
築5年 / 14階建
東京都江東区東陽3丁目6-11

13.9万円 / 管理費10,000円
敷
13.9万円礼
13.9万円1DK / 25.25㎡ / 5階
賃貸マンション
プラウドフラット木場Ⅱ

東京メトロ東西線 / 木場駅 徒歩2分
築6年 / 15階建
東京都江東区木場5丁目4-1

13.6万円 / 管理費15,000円
敷
13.6万円礼
13.6万円1K / 25.08㎡ / 3階
賃貸マンション
ル・リオン豊洲ワイズレジデンス

東京メトロ東西線 / 木場駅 徒歩11分
築18年 / 10階建
東京都江東区塩浜2丁目7-11

11.2万円 / 管理費なし
敷
11.2万円礼
11.2万円1K / 20.58㎡ / 4階
賃貸マンション
パークアクシス東陽町レジデンス

東京メトロ東西線 / 木場駅 徒歩13分
築4年 / 12階建
東京都江東区東陽5丁目31-12

12.6万円 / 管理費15,000円
敷
12.6万円礼
12.6万円ワンルーム / 25.55㎡ / 6階
賃貸マンション
パークアクシス木場キャナル ウエスト

東京メトロ東西線 / 木場駅 徒歩11分
築8年 / 12階建
東京都江東区塩浜2丁目4-35

14.3万円 / 管理費12,000円
敷
14.3万円礼
14.3万円1DK / 29.28㎡ / 7階
賃貸マンション
MFPRコート木場公園

東京メトロ東西線 / 木場駅 徒歩9分
築19年 / 14階建
東京都江東区東陽6丁目2-13

12.2万円 / 管理費15,000円
敷
12.2万円礼
12.2万円1K / 24.18㎡ / 14階
賃貸マンション
江東区 地上8階地下1階建 2005年築

東京メトロ東西線 / 木場駅 徒歩7分
築21年 / 8階建
東京都江東区牡丹3丁目28-4

12万円 / 管理費11,000円
敷
無料礼
12万円ワンルーム / 27.1㎡ / 5階
賃貸マンション
GRAN PASEO門前仲町Ⅱ

東京メトロ東西線 / 木場駅 徒歩7分
築3年 / 11階建
東京都江東区富岡2丁目11-7

13.5万円 / 管理費15,000円
敷
無料礼
無料1K / 25.32㎡ / 8階
賃貸マンション
パークアクシス木場

東京メトロ東西線 / 木場駅 徒歩2分
築12年 / 13階建
東京都江東区木場2丁目18-4

13.2万円 / 管理費10,000円
敷
13.2万円礼
無料1K / 25.12㎡ / 12階
賃貸マンション
パークハビオ東陽町

東京メトロ東西線 / 木場駅 徒歩13分
築12年 / 地上9階地下1階建
東京都江東区東陽2丁目4-42

11.1万円 / 管理費10,000円
敷
11.1万円礼
11.1万円ワンルーム / 25.01㎡ / 3階
賃貸マンション
江東区 9階建 2023年築

東京メトロ東西線 / 木場駅 徒歩9分
築3年 / 9階建
東京都江東区東陽5丁目13-15

13.7万円 / 管理費11,000円
敷
無料礼
13.7万円1K / 25.76㎡ / 3階
賃貸マンション
SYFORME木場

東京メトロ東西線 / 木場駅 徒歩7分
築4年 / 10階建
東京都江東区東陽1丁目26-2

13.4万円 / 管理費10,000円
敷
無料礼
無料1DK / 25.13㎡ / 7階
賃貸マンション
CREAL門前仲町Ⅱ

東京メトロ東西線 / 木場駅 徒歩11分
築4年 / 5階建
東京都江東区冬木11-9

13.1万円 / 管理費8,000円
敷
無料礼
13.1万円1DK / 25.28㎡ / 5階
賃貸マンション
ザ・パークハビオ木場

東京メトロ東西線 / 木場駅 徒歩5分
築7年 / 15階建
東京都江東区木場6丁目3-4

14.9万円 / 管理費15,000円
敷
14.9万円礼
無料1K / 25.3㎡ / 13階
賃貸マンション
LaSante木場公園

東京メトロ東西線 / 木場駅 徒歩11分
築24年 / 11階建
東京都江東区平野3丁目2-3

12.5万円 / 管理費10,000円
敷
12.5万円礼
12.5万円1K / 22.91㎡ / 7階
賃貸マンション
江東区 地上14階地下1階建 2013年築

東京メトロ東西線 / 木場駅 徒歩3分
築13年 / 14階建
東京都江東区東陽3丁目4-4

14.4万円 / 管理費11,000円
敷
無料礼
14.4万円1K / 25.67㎡ / 10階
賃貸マンション
ES-Grande門前仲町デュオ

東京メトロ東西線 / 木場駅 徒歩9分
築1年 / 5階建
東京都江東区古石場3丁目11-22

13.9万円 / 管理費10,000円
敷
無料礼
無料1DK / 25.2㎡ / 2階
賃貸マンション
アーバネックス深川木場

東京メトロ東西線 / 木場駅 徒歩3分
築5年 / 14階建
東京都江東区東陽3丁目6-11

13.9万円 / 管理費10,000円
敷
13.9万円礼
13.9万円1DK / 25.25㎡ / 5階
賃貸マンション
プラウドフラット木場Ⅱ

東京メトロ東西線 / 木場駅 徒歩2分
築6年 / 15階建
東京都江東区木場5丁目4-1

13.6万円 / 管理費15,000円
敷
13.6万円礼
13.6万円1K / 25.08㎡ / 3階
賃貸マンション
ル・リオン豊洲ワイズレジデンス

東京メトロ東西線 / 木場駅 徒歩11分
築18年 / 10階建
東京都江東区塩浜2丁目7-11

11.2万円 / 管理費なし
敷
11.2万円礼
11.2万円1K / 20.58㎡ / 4階
賃貸マンション
パークアクシス東陽町レジデンス

東京メトロ東西線 / 木場駅 徒歩13分
築4年 / 12階建
東京都江東区東陽5丁目31-12

12.6万円 / 管理費15,000円
敷
12.6万円礼
12.6万円ワンルーム / 25.55㎡ / 6階
賃貸マンション
パークアクシス木場キャナル ウエスト

東京メトロ東西線 / 木場駅 徒歩11分
築8年 / 12階建
東京都江東区塩浜2丁目4-35

14.3万円 / 管理費12,000円
敷
14.3万円礼
14.3万円1DK / 29.28㎡ / 7階
賃貸マンション
MFPRコート木場公園

東京メトロ東西線 / 木場駅 徒歩9分
築19年 / 14階建
東京都江東区東陽6丁目2-13

12.2万円 / 管理費15,000円
敷
12.2万円礼
12.2万円1K / 24.18㎡ / 14階
賃貸マンション
江東区 地上8階地下1階建 2005年築

東京メトロ東西線 / 木場駅 徒歩7分
築21年 / 8階建
東京都江東区牡丹3丁目28-4

12万円 / 管理費11,000円
敷
無料礼
12万円ワンルーム / 27.1㎡ / 5階
賃貸マンション
GRAN PASEO門前仲町Ⅱ

東京メトロ東西線 / 木場駅 徒歩7分
築3年 / 11階建
東京都江東区富岡2丁目11-7

13.5万円 / 管理費15,000円
敷
無料礼
無料1K / 25.32㎡ / 8階
賃貸マンション
パークアクシス木場

東京メトロ東西線 / 木場駅 徒歩2分
築12年 / 13階建
東京都江東区木場2丁目18-4

13.2万円 / 管理費10,000円
敷
13.2万円礼
無料1K / 25.12㎡ / 12階
賃貸マンション
パークハビオ東陽町

東京メトロ東西線 / 木場駅 徒歩13分
築12年 / 地上9階地下1階建
東京都江東区東陽2丁目4-42

11.1万円 / 管理費10,000円
敷
11.1万円礼
11.1万円ワンルーム / 25.01㎡ / 3階
賃貸マンション
江東区 9階建 2023年築

東京メトロ東西線 / 木場駅 徒歩9分
築3年 / 9階建
東京都江東区東陽5丁目13-15

13.7万円 / 管理費11,000円
敷
無料礼
13.7万円1K / 25.76㎡ / 3階
賃貸マンション
SYFORME木場

東京メトロ東西線 / 木場駅 徒歩7分
築4年 / 10階建
東京都江東区東陽1丁目26-2

13.4万円 / 管理費10,000円
敷
無料礼
無料1DK / 25.13㎡ / 7階
賃貸マンション
CREAL門前仲町Ⅱ

東京メトロ東西線 / 木場駅 徒歩11分
築4年 / 5階建
東京都江東区冬木11-9

13.1万円 / 管理費8,000円
敷
無料礼
13.1万円1DK / 25.28㎡ / 5階
賃貸マンション
ザ・パークハビオ木場

東京メトロ東西線 / 木場駅 徒歩5分
築7年 / 15階建
東京都江東区木場6丁目3-4

14.9万円 / 管理費15,000円
敷
14.9万円礼
無料1K / 25.3㎡ / 13階
賃貸マンション
LaSante木場公園

東京メトロ東西線 / 木場駅 徒歩11分
築24年 / 11階建
東京都江東区平野3丁目2-3

12.5万円 / 管理費10,000円
敷
12.5万円礼
12.5万円1K / 22.91㎡ / 7階
賃貸マンション
江東区 地上14階地下1階建 2013年築

東京メトロ東西線 / 木場駅 徒歩3分
築13年 / 14階建
東京都江東区東陽3丁目4-4

14.4万円 / 管理費11,000円
敷
無料礼
14.4万円1K / 25.67㎡ / 10階
同じ最寄り駅 で探す
同じ最寄り駅 × 同じ特徴 で探す
同じ市区町村 × 同じ特徴 で探す























