堀切ガーデンテラス1R/3階/0303(東京都葛飾区 / 堀切菖蒲園駅)の賃貸
1/15
1/15
8.4万円
初期費用を知りたい管理費12,000円
- 敷金
- 無料
- 保証金
- なし
- 礼金
- 無料
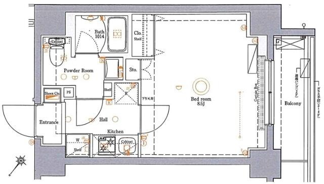
- 広さ
- 24.42㎡
- 階数
- 3階 / 5階建
- 間取り
- 1R
- 建物
- マンション (鉄筋コンクリート)
- 築年数
- 築3年
- 向き
- 南東
- 交通
- 京成本線 / 堀切菖蒲園駅徒歩4分
- 東武伊勢崎線 / 堀切駅徒歩15分
- 住所
- 東京都葛飾区堀切4丁目
堀切小学校 491m
綾瀬中学校 1175m
コンビニエンスストア 69m
スーパーマーケット 286m
総合病院 303m
無料で10秒! カンタンお問い合わせ

堀切ガーデンテラス
敷
無料礼
無料特徴
バス・トイレ別
2階以上
エアコン付き
ペット相談可
駐車場あり
室内洗濯機置場
オートロック
洗面所独立
- 入居条件
- 二人入居可、高齢者歓迎、保証人不要、ルームシェア不可、礼金不要、敷金不要最新の空室状況が知りたい
- バス・トイレ
- バストイレ別、シャワー付洗面化粧台、温水洗浄便座、浴室乾燥機、洗面所独立
- キッチン
- 2口コンロ、システムキッチン
- セキュリティ
- オートロック
- 室内設備
- 室内洗濯置、BS、フローリング、インターネット対応、照明付お部屋の詳しい情報を知りたい
- 部屋の特徴
- 角住戸、二階以上写真を送ってほしい
- 共用部
- エレベーター、宅配ボックス
無料で10秒! カンタンお問い合わせ

堀切ガーデンテラス
敷
無料礼
無料不動産会社からのコメント
[退去時費用 退去費用実費精算※故意・過失等別途実費]
その他
- 駐車/駐輪
- 無 / なし駐車可能な車種や台数を知りたい
- 入居時期
- 2026年4月中旬最新の空室状況が知りたい
- 損保
- 住宅保険: 要
- 保証人代行
- 加入要 会社名: エムぞう君 費用: 初回:月額総賃料の50%(最低金額55000円)、更新料:11000円/年
- その他費用
初期費用を知りたい鍵交換代/リテインシステム料/室内抗菌処理代/事務手数料:63,800円
- 情報
情報登録日:2026/1/23
情報更新日:2026/1/31
次回更新予定日:2026/2/8
提供元:LIFULL HOME'S
- 備考
- 更新料: 126,000円 契約期間: 2年 総戸数: 16戸 LIFULL HOME'S物件番号: 31033180105673
取扱い会社
- 取扱い会社
- アパマンショップ西新井店 北澤商事株式会社条件が近い物件も紹介してほしい
- 免許番号
- 東京都知事(12)第38326号
- 取引態様
- 仲介
- 所在地
- 東京都足立区西新井栄町2丁目2番2号
- 電話番号
- 03-5845-1141
- 定休日
- 第二 第三 火曜日・毎週水曜日・夏季休暇・年末年始
- 所属団体名
- (公社)首都圏不動産公正取引協議会,(公社)東京都宅地建物取引業協会,(公財)日本賃貸住宅管理協会,全国賃貸管理ビジネス協会
おすすめ物件 (10件)
賃貸マンション
コンシェリア東京 <OHANAJAYA THE RESIDEN

京成本線 / 堀切菖蒲園駅 徒歩15分
築1年 / 5階建
東京都葛飾区宝町1丁目27番12

9.75万円 / 管理費12,000円
敷
無料礼
無料1DK / 26.69㎡ / 4階
賃貸マンション
MAXIV CITY堀切RIVER SIDE

東武伊勢崎線 / 堀切駅 徒歩3分
新築 / 4階建
東京都墨田区墨田5丁目25-8

10万円 / 管理費5,000円
敷
無料礼
無料1DK / 28.37㎡ / 4階
賃貸マンション
メインステージ四ツ木

京成本線 / 堀切菖蒲園駅 徒歩17分
新築 / 5階建
東京都葛飾区堀切1丁目2-23

9.25万円 / 管理費15,000円
敷
無料礼
無料1K / 25.52㎡ / 3階
賃貸マンション
GROWS堀切菖蒲園AZ

京成本線 / 堀切菖蒲園駅 徒歩10分
築9年 / 10階建
東京都葛飾区堀切3丁目32-4

7.7万円 / 管理費10,000円
敷
無料礼
7.7万円1K / 25.42㎡ / 3階
賃貸マンション
GENOVIAお花茶屋skygarden

京成本線 / 堀切菖蒲園駅 徒歩29分
築5年 / 13階建
東京都葛飾区白鳥2丁目21-20

8.1万円 / 管理費15,000円
敷
無料礼
無料1K / 22.04㎡ / 3階
賃貸マンション
Genovia 京成立石Ⅳ skyagarden

京成本線 / 堀切菖蒲園駅 徒歩28分
築4年 / 5階建
東京都葛飾区立石5丁目14-9

10.1万円 / 管理費10,000円
敷
無料礼
無料1K / 24.07㎡ / 4階
賃貸マンション
墨田区墨田2丁目 9階建 2023年築

東武伊勢崎線 / 堀切駅 徒歩14分
築3年 / 9階建
東京都墨田区墨田2丁目

9.35万円 / 管理費10,000円
敷
無料礼
無料1DK / 27.14㎡ / 5階
賃貸マンション
コンシェリア東京 <OHANAJAYA THE RESIDEN

京成本線 / 堀切菖蒲園駅 徒歩15分
築1年 / 5階建
東京都葛飾区宝町1丁目27番12

9.75万円 / 管理費12,000円
敷
無料礼
無料1DK / 26.69㎡ / 4階
賃貸マンション
MAXIV CITY堀切RIVER SIDE

東武伊勢崎線 / 堀切駅 徒歩3分
新築 / 4階建
東京都墨田区墨田5丁目25-8

10万円 / 管理費5,000円
敷
無料礼
無料1DK / 28.37㎡ / 4階
賃貸マンション
メインステージ四ツ木

京成本線 / 堀切菖蒲園駅 徒歩17分
新築 / 5階建
東京都葛飾区堀切1丁目2-23

9.25万円 / 管理費15,000円
敷
無料礼
無料1K / 25.52㎡ / 3階
賃貸マンション
GROWS堀切菖蒲園AZ

京成本線 / 堀切菖蒲園駅 徒歩10分
築9年 / 10階建
東京都葛飾区堀切3丁目32-4

7.7万円 / 管理費10,000円
敷
無料礼
7.7万円1K / 25.42㎡ / 3階
賃貸マンション
GENOVIAお花茶屋skygarden

京成本線 / 堀切菖蒲園駅 徒歩29分
築5年 / 13階建
東京都葛飾区白鳥2丁目21-20

8.1万円 / 管理費15,000円
敷
無料礼
無料1K / 22.04㎡ / 3階
賃貸マンション
Genovia 京成立石Ⅳ skyagarden

京成本線 / 堀切菖蒲園駅 徒歩28分
築4年 / 5階建
東京都葛飾区立石5丁目14-9

10.1万円 / 管理費10,000円
敷
無料礼
無料1K / 24.07㎡ / 4階
賃貸マンション
墨田区墨田2丁目 9階建 2023年築

東武伊勢崎線 / 堀切駅 徒歩14分
築3年 / 9階建
東京都墨田区墨田2丁目

9.35万円 / 管理費10,000円
敷
無料礼
無料1DK / 27.14㎡ / 5階
同じ最寄り駅 で探す
同じ最寄り駅 × 同じ特徴 で探す
同じ市区町村 × 同じ特徴 で探す




















