レフィールオーブ代々木2LDK/7階/701(東京都渋谷区 / 南新宿駅)の賃貸
1/11
1/11
34.5万円
初期費用を知りたい管理費10,000円
- 敷金
- 34.5万円
- 保証金
- なし
- 礼金
- 34.5万円
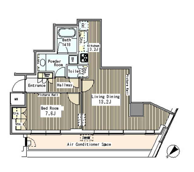
- 広さ
- 50.86㎡
- 階数
- 7階 / 15階建
- 間取り
- 2LDK
- 建物
- マンション (鉄筋コンクリート)
- 築年数
- 築3年
- 向き
- 南東
- 交通
- 小田急小田原線 / 南新宿駅徒歩3分
- 都営新宿線 / 新宿駅徒歩4分
- 住所
- 東京都渋谷区代々木2丁目27-18
コンビニエンスストア 241m
スーパーマーケット 25m
総合病院 105m
公園 304m
ドラッグストア 409m
銀行 587m
ポニークリーニング 代々木1丁目店 432m
無料で10秒! カンタンお問い合わせ

レフィールオーブ代々木
敷
34.5万円礼
34.5万円特徴
バス・トイレ別
2階以上
エアコン付き
ペット相談可
駐車場あり
室内洗濯機置場
オートロック
洗面所独立
- 入居条件
- 保証人不要、初期費用カード決済可、即入居可最新の空室状況が知りたい
- バス・トイレ
- バストイレ別、温水洗浄便座、追焚機能浴室、浴室乾燥機、洗面所独立、専用バス、専用トイレ
- キッチン
- システムキッチン、ガスコンロ対応、3口以上コンロ
- セキュリティ
- オートロック、防犯カメラ
- 室内設備
- 室内洗濯置、フローリング、ネット使用料不要、CS、CATV、エアコン、クロゼット、シューズボックスお部屋の詳しい情報を知りたい
- 部屋の特徴
- バルコニー、二階以上写真を送ってほしい
- 共用部
- エレベーター、宅配ボックス、駐輪場、バイク置場
- その他の特徴
- 家賃保証付き、公営水道、下水、都市ガス
無料で10秒! カンタンお問い合わせ

レフィールオーブ代々木
敷
34.5万円礼
34.5万円同じ建物で掲載中の物件 (17件)
不動産会社からのコメント
当物件はオンラインまたはお近くの店舗でご相談お申込を承ります
当物件はオンラインまたはお近くの店舗でご相談お申込を承ります。リライフは首都圏23店舗のネットワークで豊富な物件情報をご提供いたします。当物件に類似した未公開物件のご提案も可能です。お気軽にお問い合わせください。
その他
- 駐車/駐輪
- 無 / あり駐車可能な車種や台数を知りたい
- 入居時期
- 損保
- 住宅保険: 要
- 保証人代行
- 加入要 会社名: エポスカード 費用: 保証料:賃料等の50%(最低2万円)月次保証料:賃料等の1%
- その他費用
初期費用を知りたいエアコンクリーニング費用(月額):33,000円
鍵交換費用:33,000円
室内清掃費用:53,900円
- 情報
情報登録日:2026/1/17
情報更新日:2026/3/3
次回更新予定日:2026/3/10
- 備考
- 現況: 空家 更新料: 新賃料の1.0ヶ月分 契約期間: 2年 管理会社: 東急住宅リース株式会社 リーシングサポートグループ 管理人: 日勤 総戸数: 72戸 自社管理番号: B103845R464079
取扱い会社
- 取扱い会社
- 株式会社 リライフ 渋谷店条件が近い物件も紹介してほしい
- 免許番号
- 国土交通大臣(1)第10792号
- 取引態様
- 仲介
- 所在地
- 東京都渋谷区渋谷1丁目24番14号 渋谷トライアングルビル6階
- 電話番号
- 03-6372-4991
- 営業時間
- 10:00~20:00
- 定休日
- 無し
- 所属団体名
- 公益社団法人東京都宅地建物取引業協会 公益社団法人全国宅地建物取引業保証協会 公益財団法人日本賃貸住宅管理協会 全国賃貸管理ビジネス協会
おすすめ物件 (8件)
賃貸マンション
渋谷区 15階建 2023年築
都営新宿線 / 新宿駅 徒歩4分
築3年 / 15階建
東京都渋谷区代々木2丁目27-18
34.9万円 / 管理費15,000円
敷
34.9万円礼
34.9万円2LDK / 50.86㎡ / 6階
賃貸マンション
ザパークハウス新宿タワー
山手線 / 新宿駅 徒歩15分
築14年 / 地上20階地下1階建
東京都新宿区北新宿2
35万円 / 管理費なし
敷
35万円礼
35万円2LDK / 60.27㎡ / 14階
賃貸マンション
MY TOWER RESIDENCE

小田急小田原線 / 南新宿駅 徒歩2分
築19年 / 27階建
東京都渋谷区代々木1丁目

家賃カード決済可
32.5万円 / 管理費12,000円
敷
32.5万円礼
32.5万円1LDK / 54.56㎡ / 14階
賃貸マンション
マイタワーレジデンス

山手線 / 新宿駅 徒歩9分
築19年 / 地上27階地下3階建
東京都渋谷区代々木1丁目

家賃カード決済可
32.5万円 / 管理費12,000円
敷
32.5万円礼
32.5万円1LDK / 54.56㎡ / 14階
賃貸マンション
Fullea代々木

小田急小田原線 / 南新宿駅 徒歩1分
新築 / 6階建
東京都渋谷区代々木1丁目51-3

35.3万円 / 管理費15,000円
敷
35.3万円礼
無料2LDK / 52.39㎡ / 3階
賃貸マンション
ライトテラス新宿御苑
山手線 / 新宿駅 徒歩16分
築5年 / 18階建
東京都新宿区新宿1丁目28-17
35.2万円 / 管理費15,000円
敷
無料礼
無料1SLDK / 57.97㎡ / 8階
賃貸マンション
渋谷区 15階建 2023年築
都営新宿線 / 新宿駅 徒歩4分
築3年 / 15階建
東京都渋谷区代々木2丁目27-18
34.9万円 / 管理費15,000円
敷
34.9万円礼
34.9万円2LDK / 50.86㎡ / 6階
賃貸マンション
ザパークハウス新宿タワー
山手線 / 新宿駅 徒歩15分
築14年 / 地上20階地下1階建
東京都新宿区北新宿2
35万円 / 管理費なし
敷
35万円礼
35万円2LDK / 60.27㎡ / 14階
賃貸マンション
MY TOWER RESIDENCE

小田急小田原線 / 南新宿駅 徒歩2分
築19年 / 27階建
東京都渋谷区代々木1丁目

家賃カード決済可
32.5万円 / 管理費12,000円
敷
32.5万円礼
32.5万円1LDK / 54.56㎡ / 14階
賃貸マンション
マイタワーレジデンス

山手線 / 新宿駅 徒歩9分
築19年 / 地上27階地下3階建
東京都渋谷区代々木1丁目

家賃カード決済可
32.5万円 / 管理費12,000円
敷
32.5万円礼
32.5万円1LDK / 54.56㎡ / 14階
賃貸マンション
Fullea代々木

小田急小田原線 / 南新宿駅 徒歩1分
新築 / 6階建
東京都渋谷区代々木1丁目51-3

35.3万円 / 管理費15,000円
敷
35.3万円礼
無料2LDK / 52.39㎡ / 3階
賃貸マンション
ライトテラス新宿御苑
山手線 / 新宿駅 徒歩16分
築5年 / 18階建
東京都新宿区新宿1丁目28-17
35.2万円 / 管理費15,000円
敷
無料礼
無料1SLDK / 57.97㎡ / 8階
同じ最寄り駅 × 同じ特徴 で探す
同じ市区町村 × 同じ特徴 で探す



















)




