レジディア東日本橋1R/3階/303(東京都中央区 / 東日本橋駅)の賃貸
1/30
1/30
12.5万円
初期費用を知りたい管理費15,000円
- 敷金
- 無料
- 保証金
- なし
- 礼金
- 無料
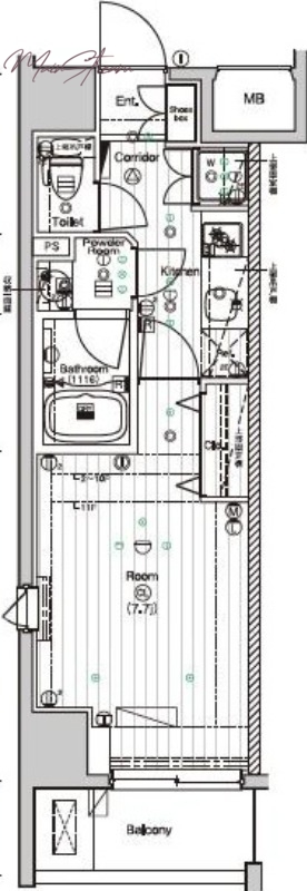
- 広さ
- 23.66㎡
- 階数
- 3階 / 10階建
- 間取り
- 1R
- 建物
- マンション (鉄筋コンクリート)
- 築年数
- 築20年
- 向き
- 北東
- 交通
- 都営浅草線 / 東日本橋駅徒歩4分
- 都営新宿線 / 馬喰横山駅徒歩5分
- 住所
- 東京都中央区東日本橋1丁目2-11
久松小学校 200m
コンビニエンスストア 110m
スーパーマーケット 160m
総合病院 450m
馬喰横山駅(都営地下鉄 新宿線) 370m
無料で10秒! カンタンお問い合わせ
レジディア東日本橋
敷
無料礼
無料特徴
バス・トイレ別
2階以上
エアコン付き
ペット相談可
駐車場あり
室内洗濯機置場
オートロック
洗面所独立
- 入居条件
- 保証人不要、即入居可最新の空室状況が知りたい
- バス・トイレ
- 給湯、専用バス、浴室乾燥機、シャワー、専用トイレ、温水洗浄便座、バストイレ別、洗面所独立
- キッチン
- ガスコンロ対応、2口コンロ、システムキッチン
- セキュリティ
- オートロック、防犯カメラ
- 室内設備
- インターネット対応、光ファイバー、エアコン、冷房、照明付、クロゼット、全居室収納、シューズボックス、室内洗濯置、フローリングお部屋の詳しい情報を知りたい
- 部屋の特徴
- バルコニー、二階以上写真を送ってほしい
- 共用部
- エレベーター、宅配ボックス
- その他の特徴
- 下水、公営水道、都市ガス、外壁タイル張り、分譲賃貸
無料で10秒! カンタンお問い合わせ
レジディア東日本橋
敷
無料礼
無料不動産会社からのコメント
敷金礼金0 東日本橋駅徒歩2分 馬喰横山駅・馬喰町駅徒歩圏内 ペット飼育可 独立洗面台 宅配ボックス
その他
- 駐車/駐輪
- 無 / なし駐車可能な車種や台数を知りたい
- 入居時期
- 損保
- 住宅保険: 要
- 保証人代行
- 加入要 会社名: その他 費用: 初回:賃料等の40% 月額:1000円 2年目以降:10000円
- その他費用
初期費用を知りたい鍵交換費用:22,000円
インターネット使用料/月:1,650円
24時間緊急対応費:11,000円
- 情報
情報登録日:2025/1/20
情報更新日:2026/4/24
次回更新予定日:2026/5/4
- 備考
- 現況: 空家 更新料: 新賃料の1.0ヶ月分 契約期間: 2年
取扱い会社
- 取扱い会社
- スタートライングループ株式会社 日本橋人形町店条件が近い物件も紹介してほしい
- 免許番号
- 東京都知事(6)第76891号
- 取引態様
- 仲介
- 所在地
- 東京都中央区日本橋人形町2-14-2 ビビアン人形町1F
- 電話番号
- 03-6231-0711
- 営業時間
- 10:00~19:00
- 定休日
- 受付:年中無休/店舗:水曜日(年末年始/GW/お盆)
- 所属団体名
- 公益社団法人全日本不動産協会
おすすめ物件 (20件)
賃貸マンション
オープンブルーム東日本橋
都営浅草線 / 東日本橋駅 徒歩4分
築4年 / 10階建
東京都中央区東日本橋2丁目
14万円 / 管理費15,000円
敷
14万円礼
14万円1K / 25.37㎡ / 4階
賃貸マンション
日本橋ファーストレジデンス
都営新宿線 / 馬喰横山駅 徒歩5分
築21年 / 13階建
東京都中央区日本橋富沢町10-2
13.2万円 / 管理費6,000円
敷
13.2万円礼
26.4万円ワンルーム / 28.23㎡ / 8階
賃貸マンション
エスレジデンス日本橋馬喰町
都営新宿線 / 馬喰横山駅 徒歩2分
築7年 / 10階建
東京都中央区日本橋馬喰町1丁目3-10
12.2万円 / 管理費15,000円
敷
無料礼
無料1K / 25.38㎡ / 4階
賃貸マンション
メゾンカルム日本橋馬喰町
都営新宿線 / 馬喰横山駅 徒歩1分
築4年 / 地上15階地下1階建
東京都中央区日本橋馬喰町1丁目4-16
14.4万円 / 管理費10,000円
敷
14.4万円礼
14.4万円1K / 25.17㎡ / 3階
賃貸マンション
スカイコート日本橋浜町第3

都営浅草線 / 東日本橋駅 徒歩5分
築24年 / 12階建
東京都中央区日本橋浜町2丁目61-6

11.6万円 / 管理費11,000円
敷
無料礼
11.6万円1K / 21.7㎡ / 8階
賃貸マンション
中央区東日本橋3丁目 10階建 2006年築

都営新宿線 / 馬喰横山駅 徒歩3分
築20年 / 10階建
東京都中央区東日本橋3丁目6-4

13.2万円 / 管理費8,000円
敷
13.2万円礼
無料1K / 25.71㎡ / 5階
賃貸マンション
アジュールテラス日本橋浜町
都営浅草線 / 東日本橋駅 徒歩5分
築6年 / 10階建
東京都中央区日本橋浜町1丁目10-1
13.3万円 / 管理費10,000円
敷
13.3万円礼
13.3万円1K / 25.05㎡ / 7階
賃貸マンション
SARA東日本橋

都営浅草線 / 東日本橋駅 徒歩3分
築1年 / 10階建
東京都中央区東日本橋1丁目

13.8万円 / 管理費12,000円
敷
13.8万円礼
13.8万円1K / 27.69㎡ / 6階
賃貸マンション
ブライズ東日本橋
都営浅草線 / 東日本橋駅 徒歩4分
築5年 / 13階建
東京都中央区東日本橋2丁目24-16
家賃カード決済可
13.6万円 / 管理費8,000円
敷
無料礼
13.6万円1K / 25.59㎡ / 13階
賃貸マンション
ガラ・シティ東日本橋

都営浅草線 / 東日本橋駅 徒歩3分
築22年 / 12階建
東京都中央区東日本橋1丁目

11.8万円 / 管理費11,000円
敷
無料礼
11.8万円1K / 23.2㎡ / 10階
賃貸マンション
プレミアムキューブ日本橋浜町

都営浅草線 / 東日本橋駅 徒歩5分
築10年 / 11階建
東京都中央区日本橋浜町1丁目

12.9万円 / 管理費15,000円
敷
12.9万円礼
12.9万円1K / 26.1㎡ / 5階
賃貸マンション
クロスレジデンス日本橋浜町

都営浅草線 / 東日本橋駅 徒歩6分
築4年 / 10階建
東京都中央区日本橋浜町1丁目

14.5万円 / 管理費10,000円
敷
14.5万円礼
無料1K / 25.39㎡ / 5階
賃貸マンション
プラウドフラット東神田

都営新宿線 / 馬喰横山駅 徒歩4分
築11年 / 13階建
東京都千代田区東神田1丁目

13.4万円 / 管理費8,000円
敷
13.4万円礼
13.4万円1K / 25.15㎡ / 4階
賃貸マンション
Espoir Asakusabashi
都営新宿線 / 馬喰横山駅 徒歩7分
築16年 / 8階建
東京都台東区柳橋2丁目
12.3万円 / 管理費12,000円
敷
無料礼
12.3万円1K / 31.81㎡ / 7階
賃貸マンション
都営浅草線 人形町駅 13階建 築22年
都営新宿線 / 馬喰横山駅 徒歩5分
築21年 / 13階建
東京都中央区日本橋富沢町
13.2万円 / 管理費6,000円
敷
13.2万円礼
26.4万円1K / 28.23㎡ / 8階
賃貸マンション
JR総武線快速 馬喰町駅 12階建 築20年
都営新宿線 / 馬喰横山駅 徒歩3分
築20年 / 12階建
東京都中央区日本橋馬喰町1
12.8万円 / 管理費10,000円
敷
無料礼
無料1K / 26.68㎡ / 9階
賃貸マンション
ベルトロワ人形町

都営浅草線 / 東日本橋駅 徒歩6分
築3年 / 10階建
東京都中央区日本橋堀留町2丁目

14万円 / 管理費10,000円
敷
14万円礼
無料1DK / 25.14㎡ / 2階
賃貸マンション
スカイコート日本橋第5
都営浅草線 / 東日本橋駅 徒歩3分
築22年 / 11階建
東京都中央区東日本橋2丁目15-11
12.7万円 / 管理費5,000円
敷
無料礼
12.7万円1K / 25.49㎡ / 7階
賃貸マンション
ルクレ日本橋馬喰町

都営新宿線 / 馬喰横山駅 徒歩4分
築20年 / 12階建
東京都中央区日本橋馬喰町1丁目4-2

12.6万円 / 管理費10,000円
敷
無料礼
無料1K / 25.13㎡ / 5階
賃貸マンション
オープンブルーム東日本橋
都営浅草線 / 東日本橋駅 徒歩4分
築4年 / 10階建
東京都中央区東日本橋2丁目
14万円 / 管理費15,000円
敷
14万円礼
14万円1K / 25.37㎡ / 4階
賃貸マンション
日本橋ファーストレジデンス
都営新宿線 / 馬喰横山駅 徒歩5分
築21年 / 13階建
東京都中央区日本橋富沢町10-2
13.2万円 / 管理費6,000円
敷
13.2万円礼
26.4万円ワンルーム / 28.23㎡ / 8階
賃貸マンション
エスレジデンス日本橋馬喰町
都営新宿線 / 馬喰横山駅 徒歩2分
築7年 / 10階建
東京都中央区日本橋馬喰町1丁目3-10
12.2万円 / 管理費15,000円
敷
無料礼
無料1K / 25.38㎡ / 4階
賃貸マンション
メゾンカルム日本橋馬喰町
都営新宿線 / 馬喰横山駅 徒歩1分
築4年 / 地上15階地下1階建
東京都中央区日本橋馬喰町1丁目4-16
14.4万円 / 管理費10,000円
敷
14.4万円礼
14.4万円1K / 25.17㎡ / 3階
賃貸マンション
スカイコート日本橋浜町第3

都営浅草線 / 東日本橋駅 徒歩5分
築24年 / 12階建
東京都中央区日本橋浜町2丁目61-6

11.6万円 / 管理費11,000円
敷
無料礼
11.6万円1K / 21.7㎡ / 8階
賃貸マンション
中央区東日本橋3丁目 10階建 2006年築

都営新宿線 / 馬喰横山駅 徒歩3分
築20年 / 10階建
東京都中央区東日本橋3丁目6-4

13.2万円 / 管理費8,000円
敷
13.2万円礼
無料1K / 25.71㎡ / 5階
賃貸マンション
アジュールテラス日本橋浜町
都営浅草線 / 東日本橋駅 徒歩5分
築6年 / 10階建
東京都中央区日本橋浜町1丁目10-1
13.3万円 / 管理費10,000円
敷
13.3万円礼
13.3万円1K / 25.05㎡ / 7階
賃貸マンション
SARA東日本橋

都営浅草線 / 東日本橋駅 徒歩3分
築1年 / 10階建
東京都中央区東日本橋1丁目

13.8万円 / 管理費12,000円
敷
13.8万円礼
13.8万円1K / 27.69㎡ / 6階
賃貸マンション
ブライズ東日本橋
都営浅草線 / 東日本橋駅 徒歩4分
築5年 / 13階建
東京都中央区東日本橋2丁目24-16
家賃カード決済可
13.6万円 / 管理費8,000円
敷
無料礼
13.6万円1K / 25.59㎡ / 13階
賃貸マンション
ガラ・シティ東日本橋

都営浅草線 / 東日本橋駅 徒歩3分
築22年 / 12階建
東京都中央区東日本橋1丁目

11.8万円 / 管理費11,000円
敷
無料礼
11.8万円1K / 23.2㎡ / 10階
賃貸マンション
プレミアムキューブ日本橋浜町

都営浅草線 / 東日本橋駅 徒歩5分
築10年 / 11階建
東京都中央区日本橋浜町1丁目

12.9万円 / 管理費15,000円
敷
12.9万円礼
12.9万円1K / 26.1㎡ / 5階
賃貸マンション
クロスレジデンス日本橋浜町

都営浅草線 / 東日本橋駅 徒歩6分
築4年 / 10階建
東京都中央区日本橋浜町1丁目

14.5万円 / 管理費10,000円
敷
14.5万円礼
無料1K / 25.39㎡ / 5階
賃貸マンション
プラウドフラット東神田

都営新宿線 / 馬喰横山駅 徒歩4分
築11年 / 13階建
東京都千代田区東神田1丁目

13.4万円 / 管理費8,000円
敷
13.4万円礼
13.4万円1K / 25.15㎡ / 4階
賃貸マンション
Espoir Asakusabashi
都営新宿線 / 馬喰横山駅 徒歩7分
築16年 / 8階建
東京都台東区柳橋2丁目
12.3万円 / 管理費12,000円
敷
無料礼
12.3万円1K / 31.81㎡ / 7階
賃貸マンション
都営浅草線 人形町駅 13階建 築22年
都営新宿線 / 馬喰横山駅 徒歩5分
築21年 / 13階建
東京都中央区日本橋富沢町
13.2万円 / 管理費6,000円
敷
13.2万円礼
26.4万円1K / 28.23㎡ / 8階
賃貸マンション
JR総武線快速 馬喰町駅 12階建 築20年
都営新宿線 / 馬喰横山駅 徒歩3分
築20年 / 12階建
東京都中央区日本橋馬喰町1
12.8万円 / 管理費10,000円
敷
無料礼
無料1K / 26.68㎡ / 9階
賃貸マンション
ベルトロワ人形町

都営浅草線 / 東日本橋駅 徒歩6分
築3年 / 10階建
東京都中央区日本橋堀留町2丁目

14万円 / 管理費10,000円
敷
14万円礼
無料1DK / 25.14㎡ / 2階
賃貸マンション
スカイコート日本橋第5
都営浅草線 / 東日本橋駅 徒歩3分
築22年 / 11階建
東京都中央区東日本橋2丁目15-11
12.7万円 / 管理費5,000円
敷
無料礼
12.7万円1K / 25.49㎡ / 7階
賃貸マンション
ルクレ日本橋馬喰町

都営新宿線 / 馬喰横山駅 徒歩4分
築20年 / 12階建
東京都中央区日本橋馬喰町1丁目4-2

12.6万円 / 管理費10,000円
敷
無料礼
無料1K / 25.13㎡ / 5階


