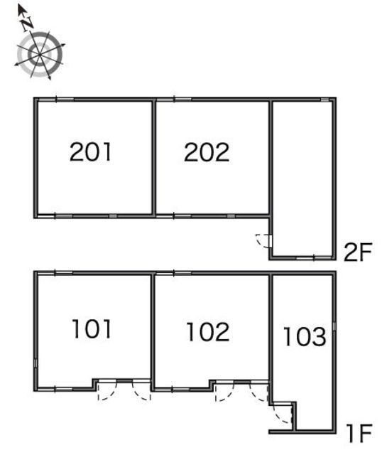
レオネクストエレガンスフジ(45789)1K/1階/103(東京都日野市 / 南平駅)の賃貸
1/16
1/16
6.7万円
初期費用を知りたい管理費5,000円
- 敷金
- 無料
- 保証金
- なし
- 礼金
- 6.7万円
- 広さ
- 36㎡
- 階数
- 1階 / 2階建
- 間取り
- 1K
- 建物
- アパート (木造)
- 築年数
- 築16年
- 向き
- 南
- 交通
- 京王線 / 南平駅徒歩2分
- 中央線 / 豊田駅徒歩26分
- 京王線 / 高幡不動駅徒歩31分
- 住所
- 東京都日野市南平6丁目25-18
ワークマンプラス日野東豊田店 1351m
ジーユーイオンモール多摩平の森店 2164m
ヤオコー日野南平店 273m
スーパーアルプス南平店 573m
セブンイレブン日野南平7丁目店 566m
クリエイトエス・ディー日野南平店 523m
無料で10秒! カンタンお問い合わせ

レオネクストエレガンスフジ(45789)
敷
無料礼
6.7万円特徴
バス・トイレ別
2階以上
エアコン付き
ペット相談可
駐車場あり
室内洗濯機置場
オートロック
洗面所独立
- 入居条件
- 二人入居相談、単身者相談、子供可、フリーレント、敷金不要、即入居可最新の空室状況が知りたい
- バス・トイレ
- シャワー、給湯、3点給湯、洗面台、バストイレ別、オートバス、浴室乾燥機、追焚機能浴室、脱衣所、温水洗浄便座、洗面所独立
- キッチン
- IHクッキングヒーター、2口コンロ、システムキッチン
- 室内設備
- CS、インターネット対応、CATV、BS、ネット専用回線、エアコン、全居室収納、シューズボックス、全室照明付、室内洗濯置、24時間換気システム、フローリング、全居室フローリングお部屋の詳しい情報を知りたい
- 部屋の特徴
- 角住戸、最上階、陽当り良好、収納2ヵ所写真を送ってほしい
- 共用部
- ゴミ置場、敷地内ごみ置き場、駐輪場
- その他の特徴
- 地デジ対応、眺望良好、玄関ホール、駐車場あり、公営水道、下水、火災警報器等設置済み
無料で10秒! カンタンお問い合わせ

レオネクストエレガンスフジ(45789)
敷
無料礼
6.7万円不動産会社からのコメント
数多くの不動産会社との情報共有により、インターネットに掲載されているお部屋がほぼ全てご紹介可能となっております☆ご条件をお伺いし、最新の情報の中からご希望のお部屋をお調べしてご紹介させていただきます! 京王相模原線・小田急多摩線・多摩都市モノレール等はお任せください★物件をまとめてご案内させていただきます★
その他
- 駐車/駐輪
- 近隣 費用: 10,000円(税込) 距離: 300m / あり駐車可能な車種や台数を知りたい
- 入居時期
- 損保
- 住宅保険: 要
- 保証人代行
- 保証人代行: 必須 保証人代行会社: その他 保証委託料 : 利料の100%120%
- その他費用
初期費用を知りたい室内清掃費:38,500円
鍵交換費:16,500円
その他月額費用:550円
- 情報
情報登録日:2026/2/17
情報更新日:2026/2/16
次回更新予定日:2026/2/27
- 備考
- フリーレント: 1.0ヶ月分 契約期間: 2年 管理人: 巡回
取扱い会社
- 取扱い会社
- 株式会社 BRAVE ルームシークレット多摩センター条件が近い物件も紹介してほしい
- 免許番号
- 東京都知事(1)第108406号
- 取引態様
- 仲介
- 所在地
- 東京都多摩市豊ヶ丘1-61-1ターマ・サンゴ1B
- 電話番号
- 042-401-8815
- 営業時間
- 09:00~18:00
- 定休日
- 水曜日
- 所属団体名
- 公益社団法人全日本不動産保証協会
おすすめ物件 (10件)
賃貸マンション
メゾンドフルール

中央線 / 豊田駅 徒歩19分
築8年 / 5階建
東京都八王子市高倉町33-5

家賃カード決済可
7.6万円 / 管理費4,100円
敷
無料礼
15.2万円1K / 27.84㎡ / 5階
賃貸アパート
リブリverdemare

中央線 / 豊田駅 徒歩18分
築10年 / 2階建
東京都日野市多摩平5丁目22-7

6.4万円 / 管理費4,000円
敷
無料礼
6.4万円1K / 27.24㎡ / 2階
賃貸アパート
ロイヤルコートKay B

京王線 / 高幡不動駅 徒歩27分
築19年 / 3階建
東京都日野市万願寺3丁目28-6

8.5万円 / 管理費4,000円
敷
無料礼
10万円1DK / 30.13㎡ / 1階
賃貸マンション
サンモールMARUHARA

京王線 / 高幡不動駅 徒歩17分
築18年 / 3階建
東京都日野市大字川辺堀之内282-1

6.6万円 / 管理費4,000円
敷
無料礼
無料1K / 29.7㎡ / 3階
賃貸マンション
レオネクストレーヴ(54806)

京王線 / 高幡不動駅 徒歩21分
築11年 / 3階建
東京都日野市万願寺3丁目13-7

8万円 / 管理費5,000円
敷
無料礼
8万円ワンルーム / 27.8㎡ / 1階
賃貸アパート
ロイヤルコートKay

京王線 / 高幡不動駅 徒歩23分
築19年 / 3階建
東京都日野市万願寺3丁目28-6

8.5万円 / 管理費4,000円
敷
無料礼
10万円1DK / 30.13㎡ / 1階
賃貸アパート
マロンII

京王線 / 高幡不動駅 徒歩13分
築10年 / 2階建
東京都日野市石田1丁目10-6

7.55万円 / 管理費3,500円
敷
無料礼
15.1万円ワンルーム / 35.96㎡ / 2階
賃貸マンション
メゾンドフルール

中央線 / 豊田駅 徒歩19分
築8年 / 5階建
東京都八王子市高倉町33-5

家賃カード決済可
7.6万円 / 管理費4,100円
敷
無料礼
15.2万円1K / 27.84㎡ / 5階
賃貸アパート
リブリverdemare

中央線 / 豊田駅 徒歩18分
築10年 / 2階建
東京都日野市多摩平5丁目22-7

6.4万円 / 管理費4,000円
敷
無料礼
6.4万円1K / 27.24㎡ / 2階
賃貸アパート
ロイヤルコートKay B

京王線 / 高幡不動駅 徒歩27分
築19年 / 3階建
東京都日野市万願寺3丁目28-6

8.5万円 / 管理費4,000円
敷
無料礼
10万円1DK / 30.13㎡ / 1階
賃貸マンション
サンモールMARUHARA

京王線 / 高幡不動駅 徒歩17分
築18年 / 3階建
東京都日野市大字川辺堀之内282-1

6.6万円 / 管理費4,000円
敷
無料礼
無料1K / 29.7㎡ / 3階
賃貸マンション
レオネクストレーヴ(54806)

京王線 / 高幡不動駅 徒歩21分
築11年 / 3階建
東京都日野市万願寺3丁目13-7

8万円 / 管理費5,000円
敷
無料礼
8万円ワンルーム / 27.8㎡ / 1階
賃貸アパート
ロイヤルコートKay

京王線 / 高幡不動駅 徒歩23分
築19年 / 3階建
東京都日野市万願寺3丁目28-6

8.5万円 / 管理費4,000円
敷
無料礼
10万円1DK / 30.13㎡ / 1階
賃貸アパート
マロンII

京王線 / 高幡不動駅 徒歩13分
築10年 / 2階建
東京都日野市石田1丁目10-6

7.55万円 / 管理費3,500円
敷
無料礼
15.1万円ワンルーム / 35.96㎡ / 2階





















