レオパレスさくらブリッサ1K/3階/305(東京都小金井市 / 武蔵小金井駅)の賃貸
1/29
1/29
5.5万円
初期費用を知りたい管理費7,000円
- 敷金
- 無料
- 保証金
- なし
- 礼金
- 5.5万円
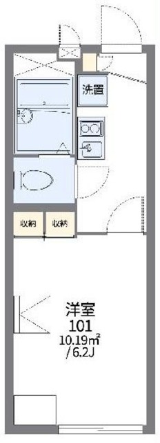
- 広さ
- 19.87㎡
- 階数
- 3階 / 3階建
- 間取り
- 1K
- 建物
- マンション (鉄骨)
- 築年数
- 築25年
- 向き
- 交通
- 中央線 / 武蔵小金井駅バス23分 新小金橋下車 徒歩2分
- 中央線 / 東小金井駅徒歩27分
- 西武新宿線 / 花小金井駅徒歩28分
- 住所
- 東京都小金井市関野町2丁目
法政大学小金井キャンパス 1139m
華屋与兵衛東小金井店 1988m
魚勝・グレース東小金井店 1992m
マルエツ東小金井駅北口店 2097m
コクミンドラッグ東小金井店 2029m
(株)大丸ピーコック/東小金井店 2044m
セブンイレブン 2112m
くじら食堂 2251m
小金井市立緑小学校 809m
小金井市立緑中学校 1149m
コンビニ 294m
スーパー 1511m
無料で10秒! カンタンお問い合わせ
)
レオパレスさくらブリッサ
敷
無料礼
5.5万円特徴
バス・トイレ別
2階以上
エアコン付き
ペット相談可
駐車場あり
室内洗濯機置場
オートロック
洗面所独立
- バス・トイレ
- シャワー、バストイレ別、浴室乾燥機、温水洗浄便座
- キッチン
- コンロ2口以上、システムキッチン
- セキュリティ
- 防犯カメラ
- 室内設備
- エアコン、CATV、インターネット対応お部屋の詳しい情報を知りたい
- 部屋の特徴
- ベランダ、ロフト、バルコニー、二階以上、最上階写真を送ってほしい
- 共用部
- 駐輪場
- その他の特徴
- プロパンガス
無料で10秒! カンタンお問い合わせ
)
レオパレスさくらブリッサ
敷
無料礼
5.5万円同じ建物で掲載中の物件 (1件)
その他
- 駐車/駐輪
- 無し / あり駐車可能な車種や台数を知りたい
- 入居時期
- 2026年4月下旬最新の空室状況が知りたい
- 損保
- 住宅保険: 要 26680円
- 保証人代行
- 保証人: 不要
- その他費用
- 情報
情報登録日:2026/3/4
情報更新日:2026/3/20
次回更新予定日:2026/4/6
- 備考
- 退去時費用備考: 退去費用実費精算 その他: 環境維持費:1ヶ月550円(税込)、鍵交換費:ご契約時16500円(税込)、退去時清掃費:41800円(税込)、インターネット利用料:有料、更新手数料:16500円(税込)、保証委託料:必要 保証会社利用必須 家賃等の100%または120% 業者管理CD: 72214908
取扱い会社
- 取扱い会社
- アパマンショップ三鷹店 Apaman Leasing 株式会社条件が近い物件も紹介してほしい
- 免許番号
- 国土交通大臣(1)10927
- 取引態様
- 一般媒介
- 所在地
- 東京都三鷹市下連雀3丁目
- 電話番号
- 0422-72-8892
- 所属団体名
- (公社)東京都宅地建物取引業協会,(公社) 首都圏不動産公正取引協議会加盟
おすすめ物件 (11件)
賃貸アパート
パークサイド武蔵野

西武新宿線 / 花小金井駅 徒歩27分
築36年 / 2階建
東京都武蔵野市桜堤3丁目6-5

5.2万円 / 管理費2,000円
敷
5.2万円礼
5.2万円1K / 17.3㎡ / 2階
賃貸アパート
レオパレスSUN花小金井

西武新宿線 / 花小金井駅 徒歩10分
築19年 / 2階建
東京都小平市鈴木町2丁目195-29

7万円 / 管理費5,000円
敷
無料礼
7万円1K / 19.87㎡ / 2階
賃貸アパート
アーバンライフ

西武新宿線 / 花小金井駅 徒歩7分
築32年 / 2階建
東京都小平市花小金井南町1丁目6-8

5.6万円 / 管理費3,000円
敷
5.6万円礼
5.6万円1K / 19.87㎡ / 2階
賃貸マンション
レオパレスさくらブリッサ

中央線 / 武蔵小金井駅 徒歩27分
築25年 / 3階建
東京都小金井市関野町2丁目4-6

6.5万円 / 管理費7,000円
敷
無料礼
6.5万円1K / 19.87㎡ / 3階
賃貸マンション
レオパレスガーデンプレイス

西武新宿線 / 花小金井駅 徒歩36分
築22年 / 3階建
東京都西東京市新町3丁目11-5

7万円 / 管理費7,000円
敷
無料礼
7万円1K / 19.87㎡ / 2階
賃貸マンション
レオパレスさくらブリッサⅡ

中央線 / 武蔵小金井駅 徒歩27分
築21年 / 3階建
東京都小金井市関野町2丁目4-6

5.8万円 / 管理費5,000円
敷
無料礼
5.8万円1K / 19.87㎡ / 2階
賃貸アパート
小金井市東町 2階建 2014年築
)
中央線 / 東小金井駅 徒歩13分
築12年 / 2階建
東京都小金井市東町2丁目
)
6.9万円 / 管理費4,000円
敷
13.8万円礼
6.9万円ワンルーム / 22.54㎡ / 2階
賃貸マンション
小金井市本町 9階建 2000年築
)
中央線 / 武蔵小金井駅 徒歩2分
築26年 / 9階建
東京都小金井市本町1丁目
)
7万円 / 管理費5,000円
敷
7万円礼
7万円1K / 20.45㎡ / 6階
賃貸アパート
バーミープレイス東小金井
)
中央線 / 東小金井駅 徒歩10分
築9年 / 2階建
東京都小金井市中町2丁目19-31
)
6.6万円 / 管理費3,000円
敷
無料礼
無料ワンルーム / 20.06㎡ / 2階
賃貸アパート
武蔵野市境 2階建 2008年築
)
中央線 / 東小金井駅 徒歩30分
築18年 / 2階建
東京都武蔵野市境3丁目
)
6.5万円 / 管理費2,000円
敷
6.5万円礼
6.5万円ワンルーム / 17.23㎡ / 2階
賃貸アパート
パークサイド武蔵野

西武新宿線 / 花小金井駅 徒歩27分
築36年 / 2階建
東京都武蔵野市桜堤3丁目6-5

5.2万円 / 管理費2,000円
敷
5.2万円礼
5.2万円1K / 17.3㎡ / 2階
賃貸アパート
レオパレスSUN花小金井

西武新宿線 / 花小金井駅 徒歩10分
築19年 / 2階建
東京都小平市鈴木町2丁目195-29

7万円 / 管理費5,000円
敷
無料礼
7万円1K / 19.87㎡ / 2階
賃貸アパート
アーバンライフ

西武新宿線 / 花小金井駅 徒歩7分
築32年 / 2階建
東京都小平市花小金井南町1丁目6-8

5.6万円 / 管理費3,000円
敷
5.6万円礼
5.6万円1K / 19.87㎡ / 2階
賃貸マンション
レオパレスさくらブリッサ

中央線 / 武蔵小金井駅 徒歩27分
築25年 / 3階建
東京都小金井市関野町2丁目4-6

6.5万円 / 管理費7,000円
敷
無料礼
6.5万円1K / 19.87㎡ / 3階
賃貸マンション
レオパレスガーデンプレイス

西武新宿線 / 花小金井駅 徒歩36分
築22年 / 3階建
東京都西東京市新町3丁目11-5

7万円 / 管理費7,000円
敷
無料礼
7万円1K / 19.87㎡ / 2階
賃貸マンション
レオパレスさくらブリッサⅡ

中央線 / 武蔵小金井駅 徒歩27分
築21年 / 3階建
東京都小金井市関野町2丁目4-6

5.8万円 / 管理費5,000円
敷
無料礼
5.8万円1K / 19.87㎡ / 2階
賃貸アパート
小金井市東町 2階建 2014年築
)
中央線 / 東小金井駅 徒歩13分
築12年 / 2階建
東京都小金井市東町2丁目
)
6.9万円 / 管理費4,000円
敷
13.8万円礼
6.9万円ワンルーム / 22.54㎡ / 2階
賃貸マンション
小金井市本町 9階建 2000年築
)
中央線 / 武蔵小金井駅 徒歩2分
築26年 / 9階建
東京都小金井市本町1丁目
)
7万円 / 管理費5,000円
敷
7万円礼
7万円1K / 20.45㎡ / 6階
賃貸アパート
バーミープレイス東小金井
)
中央線 / 東小金井駅 徒歩10分
築9年 / 2階建
東京都小金井市中町2丁目19-31
)
6.6万円 / 管理費3,000円
敷
無料礼
無料ワンルーム / 20.06㎡ / 2階
賃貸アパート
武蔵野市境 2階建 2008年築
)
中央線 / 東小金井駅 徒歩30分
築18年 / 2階建
東京都武蔵野市境3丁目
)
6.5万円 / 管理費2,000円
敷
6.5万円礼
6.5万円ワンルーム / 17.23㎡ / 2階
)
)
)
)
)
)
)
)
)
)
)
)
)
)
)
)
)
)
)
)
)
)
)
)


