ディームス横濱青木町3SLDK/8階(神奈川県横浜市神奈川区 / 神奈川駅)の賃貸
1/26
1/26
29.7万円
初期費用を知りたい管理費15,000円
- 敷金
- 29.7万円
- 保証金
- なし
- 礼金
- 29.7万円
- 広さ
- 70.95㎡
- 階数
- 8階 / 10階建
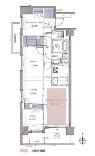
- 間取り
- 3SLDK
- 建物
- マンション (鉄筋コンクリート)
- 築年数
- 築6年
- 向き
- 南
- 交通
- 京急本線 / 神奈川駅徒歩2分
- 東海道本線 / 横浜駅徒歩9分
- 住所
- 神奈川県横浜市神奈川区青木町
コンビニエンスストア 273m
スーパーマーケット 146m
総合病院 1891m
プラザ栄光 生鮮館 ポートサイド店 479m
無料で10秒! カンタンお問い合わせ

ディームス横濱青木町
敷
29.7万円礼
29.7万円特徴
バス・トイレ別
2階以上
エアコン付き
ペット相談可
駐車場あり
室内洗濯機置場
オートロック
洗面所独立
- 入居条件
- 初期費用カード決済可、二人入居可、ペット相談、保証人不要、即入居可最新の空室状況が知りたい
- バス・トイレ
- 専用バス、専用トイレ、バストイレ別、シャワー、給湯、追焚機能浴室、シャワー付洗面化粧台、温水洗浄便座、浴室乾燥機、洗面所独立、オートバス
- キッチン
- ガスコンロ対応、3口以上コンロ、システムキッチン、カウンターキッチン
- セキュリティ
- オートロック、防犯カメラ
- 室内設備
- エアコン、室内洗濯置、CATV、フローリング、光ファイバー、床暖房、ネット使用料不要、クロゼット、シューズボックス、シューズインクロゼット、照明付お部屋の詳しい情報を知りたい
- 部屋の特徴
- バルコニー、二階以上写真を送ってほしい
- 共用部
- エレベーター、宅配ボックス、駐輪場、バイク置場、敷地内駐車場
- その他の特徴
- 公営水道、都市ガス、下水、定期借家、駐車場あり
無料で10秒! カンタンお問い合わせ

ディームス横濱青木町
敷
29.7万円礼
29.7万円不動産会社からのコメント
~リブマックスでは全てのお部屋の仲介手数料が賃料の55%以下にてご紹介~
横浜駅徒歩9分 インターネット無料 ペット可(敷金積み増し/小型犬・猫1匹迄) 南向き角住戸 エアコン5台 全室照明 床暖房 初期費用はクレジット決済対応可★当社専用のLINEございます★ご来店予約!気になる物件も一括でご紹介できます お気軽にご連絡ください★電力会社指定あり 清掃費73700円 エアコン清掃費55000円 定期借家2年(更新型)
その他
- 駐車/駐輪
- 空有 費用: 25,300円 税: 税込み / あり駐車可能な車種や台数を知りたい
- 入居時期
- 損保
- 住宅保険: 要
- 保証人代行
- 加入要 費用: 初回:総賃料50%、月額:総賃料1%
- その他費用
初期費用を知りたい鍵交換費用:33,000円
- 情報
情報登録日:2026/2/20
情報更新日:2026/4/25
次回更新予定日:2026/5/9
- 備考
- 現況: 空家 更新料: 新賃料の1.0ヶ月分 契約期間: 2年 ※定期借家 その他交通: 東急東横線 反町駅 徒歩10分 自社管理番号: 6717630
取扱い会社
- 取扱い会社
- 株式会社リブマックスリーシング 川崎店条件が近い物件も紹介してほしい
- 免許番号
- 国土交通大臣 (3) 第8116号
- 取引態様
- 仲介
- 所在地
- 神奈川県川崎市幸区南幸町2丁目20-8 ホテルリブマックスBUDGET川崎駅前 1F
- 電話番号
- 044-540-0505
- 定休日
- 水曜日(年末年始、GW、夏季)
- 所属団体名
- 公益社団法人 全国宅地建物取引業保証協会
おすすめ物件 (1件)
賃貸マンション
JR京浜東北線 横浜駅 6階建 築18年
京浜東北線 / 横浜駅 徒歩9分
築17年 / 6階建
神奈川県横浜市神奈川区高島台
30万円 / 管理費15,000円
敷
30万円礼
30万円3LDK / 78.51㎡ / 5階
賃貸マンション
JR京浜東北線 横浜駅 6階建 築18年
京浜東北線 / 横浜駅 徒歩9分
築17年 / 6階建
神奈川県横浜市神奈川区高島台
30万円 / 管理費15,000円
敷
30万円礼
30万円3LDK / 78.51㎡ / 5階


























