The Log日本橋1K/11階/1104(東京都中央区 / 馬喰町駅)の賃貸
1/22
1/22
14.7万円
初期費用を知りたい管理費10,000円
- 敷金
- なし
- 保証金
- 14.7万円
- 礼金
- 無料
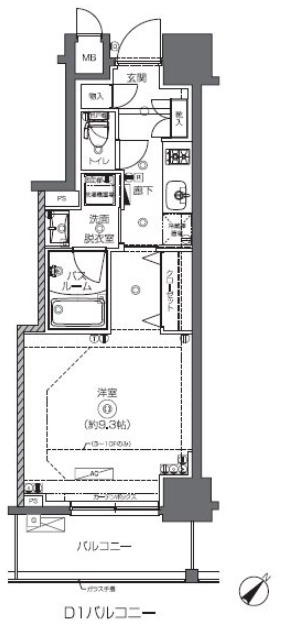
- 広さ
- 25.28㎡
- 階数
- 11階 / 12階建
- 間取り
- 1K
- 建物
- マンション (鉄筋コンクリート)
- 築年数
- 築3年
- 向き
- 北西
- 交通
- 総武本線 / 馬喰町駅徒歩2分
- 都営新宿線 / 馬喰横山駅徒歩3分
- 住所
- 東京都中央区日本橋横山町8-6
コンビニエンスストア 213m
スーパーマーケット 1590m
総合病院 412m
公園 3456m
ドラッグストア 401m
無料で10秒! カンタンお問い合わせ

The Log日本橋
敷
無料礼
無料特徴
バス・トイレ別
2階以上
エアコン付き
ペット相談可
駐車場あり
室内洗濯機置場
オートロック
洗面所独立
- 入居条件
- 二人入居可、ペット相談、保証人不要、初期費用カード決済可、礼金不要最新の空室状況が知りたい
- バス・トイレ
- 給湯、シャワー付洗面化粧台、温水洗浄便座、浴室乾燥機、オートバス、専用バス、バストイレ別、シャワー
- キッチン
- システムキッチン、ガスコンロ対応、2口コンロ
- セキュリティ
- 防犯カメラ、オートロック
- 室内設備
- CS、BS、クロゼット、シューズボックス、照明付、エアコン、室内洗濯置、フローリング、光ファイバー、ネット使用料不要お部屋の詳しい情報を知りたい
- 部屋の特徴
- バルコニー、二階以上写真を送ってほしい
- 共用部
- 宅配ボックス、駐輪場、エレベーター
- その他の特徴
- 外壁タイル張り、公営水道、都市ガス、下水
無料で10秒! カンタンお問い合わせ

The Log日本橋
敷
無料礼
無料同じ建物で掲載中の物件 (14件)
不動産会社からのコメント
★初期費用カード決済も承りますので、詳細はお気軽にお問い合わせくださいませ。
駅徒歩5分以内、エレベーター、ペット相談、24時間緊急対応、防犯カメラ、オートロック、24Hゴミ出し可、宅配ボックス、フローリング、バストイレ別、人感センサー、ディンプルキー、火災報知器、照明機器、浴室乾燥機、温水洗浄便座、シャンプードレッサー、BS+CS
その他
- 駐車/駐輪
- 無 / あり駐車可能な車種や台数を知りたい
- 入居時期
- 2026年3月下旬最新の空室状況が知りたい
- 損保
- 住宅保険: 要
- 保証人代行
- 加入要 会社名: オリコ 費用: 初回契約時:50%、月額:1,000円、オリコ等 【初回】総賃料50% 【年額】 なし 【月額】 1,000円
- その他費用
初期費用を知りたい室内抗菌代:16,500円
契約事務手数料:11,000円
24時間サポート:980円
- 情報
情報登録日:2026/3/8
情報更新日:2026/3/9
次回更新予定日:2026/3/16
- 備考
- 現況: 居住中 更新料: 新賃料の1.5ヶ月分 契約期間: 2年 管理人: 巡回 その他交通: 都営浅草線東日本橋駅 徒歩3分 自社管理番号: 13962223
取扱い会社
- 取扱い会社
- 株式会社メインストリーム 本店条件が近い物件も紹介してほしい
- 免許番号
- 東京都知事免許 (01)第110887号
- 取引態様
- 仲介
- 所在地
- 東京都千代田区外神田1-16-8 GEEKS秋葉原9階
- 電話番号
- 03-3525-8300
- 営業時間
- 10:00~19:00
- 定休日
- 毎週水曜日(夏季、年末年始、GW休暇)
- 所属団体名
- 公益社団法人不動産保証協会
おすすめ物件 (19件)
賃貸マンション
クオリタス浅草橋

総武本線 / 馬喰町駅 徒歩11分
築4年 / 13階建
東京都台東区浅草橋2丁目22-4

14.3万円 / 管理費15,000円
敷
無料礼
無料1DK / 25.14㎡ / 2階
賃貸マンション
プラウドフラット東日本橋

総武本線 / 馬喰町駅 徒歩3分
築8年 / 10階建
東京都中央区東日本橋2丁目27-7

14.6万円 / 管理費10,000円
敷
14.6万円礼
14.6万円1K / 25.67㎡ / 8階
賃貸マンション
コンフォリア秋葉原EAST

総武本線 / 馬喰町駅 徒歩4分
築10年 / 12階建
東京都千代田区東神田2丁目9-19

16.4万円 / 管理費6,000円
敷
16.4万円礼
無料1K / 30.34㎡ / 9階
賃貸マンション
プライムメゾン日本橋馬喰町

総武本線 / 馬喰町駅 徒歩3分
築3年 / 10階建
東京都中央区日本橋馬喰町2丁目4-3

15.5万円 / 管理費15,000円
敷
15.5万円礼
15.5万円ワンルーム / 26.77㎡ / 9階
賃貸マンション
東神田テラスレジデンス

総武本線 / 馬喰町駅 徒歩6分
築8年 / 13階建
東京都千代田区東神田1丁目6-4

16.1万円 / 管理費12,000円
敷
無料礼
無料1K / 27.42㎡ / 9階
賃貸マンション
The Log日本橋/ザ ログ日本橋

総武本線 / 馬喰町駅 徒歩2分
築3年 / 12階建
東京都中央区日本橋横山町

14.2万円 / 管理費10,000円
敷
無料礼
無料1K / 25.58㎡ / 6階
賃貸マンション
中央区日本橋富沢町 12階建 2004年築

都営新宿線 / 馬喰横山駅 徒歩5分
築22年 / 12階建
東京都中央区日本橋富沢町8-12

16.2万円 / 管理費10,000円
敷
16.2万円礼
16.2万円1LDK / 34.64㎡ / 2階
賃貸マンション
ザ・パークハビオ人形町レジデンス
都営新宿線 / 馬喰横山駅 徒歩5分
築3年 / 12階建
東京都中央区日本橋久松町
家賃カード決済可
14.8万円 / 管理費15,000円
敷
14.8万円礼
14.8万円1K / 25.56㎡ / 3階
賃貸マンション
プラウドフラット浅草橋II
総武線快速 / 馬喰町駅 徒歩10分
築7年 / 14階建
東京都台東区柳橋2
13.7万円 / 管理費10,000円
敷
13.7万円礼
13.7万円1K / 25.1㎡ / 8階
賃貸マンション
東京メトロ日比谷線 人形町駅 12階建 築16年
都営新宿線 / 馬喰横山駅 徒歩4分
築15年 / 12階建
東京都中央区日本橋堀留町2
15.7万円 / 管理費8,000円
敷
15.7万円礼
15.7万円1K / 26.06㎡ / 5階
賃貸マンション
メゾンカルム日本橋馬喰町

都営新宿線 / 馬喰横山駅 徒歩2分
築4年 / 地上15階地下1階建
東京都中央区日本橋馬喰町1丁目4-16

14.5万円 / 管理費10,000円
敷
14.5万円礼
14.5万円ワンルーム / 25.09㎡ / 10階
賃貸マンション
プライマル日本橋馬喰町

総武本線 / 馬喰町駅 徒歩1分
築3年 / 15階建
東京都中央区日本橋馬喰町2丁目2-3

15.1万円 / 管理費10,000円
敷
無料礼
15.1万円1DK / 25.47㎡ / 3階
賃貸マンション
ルフォンプログレ蔵前プレミア

総武本線 / 馬喰町駅 徒歩12分
築4年 / 14階建
東京都台東区浅草橋3丁目

13.8万円 / 管理費15,000円
敷
13.8万円礼
13.8万円1K / 25.3㎡ / 6階
賃貸マンション
エスレジデンス神田アバンス

都営新宿線 / 馬喰横山駅 徒歩4分
築5年 / 14階建
東京都千代田区岩本町1丁目

15.7万円 / 管理費15,000円
敷
無料礼
15.7万円1DK / 32.11㎡ / 8階
賃貸マンション
東神田テラスレジデンス

総武本線 / 馬喰町駅 徒歩1分
築8年 / 地上13階地下1階建
東京都千代田区東神田1-6-4

16.1万円 / 管理費12,000円
敷
無料礼
無料1K / 27.42㎡ / 9階
賃貸マンション
クロスレジデンス日本橋浜町

総武本線 / 馬喰町駅 徒歩11分
築4年 / 10階建
東京都中央区日本橋浜町1丁目

14.5万円 / 管理費10,000円
敷
14.5万円礼
無料1K / 25.39㎡ / 10階
賃貸マンション
ZOOM日本橋馬喰町

総武本線 / 馬喰町駅 徒歩2分
築7年 / 13階建
東京都千代田区東神田1丁目

15.7万円 / 管理費11,000円
敷
15.7万円礼
15.7万円1K / 31.07㎡ / 9階
賃貸マンション
グランカーサ日本橋馬喰町

総武本線 / 馬喰町駅 徒歩1分
築3年 / 15階建
東京都中央区日本橋馬喰町2丁目

家賃カード決済可
14.7万円 / 管理費10,000円
敷
無料礼
無料ワンルーム / 27.07㎡ / 13階
賃貸マンション
クオリタス浅草橋

総武本線 / 馬喰町駅 徒歩11分
築4年 / 13階建
東京都台東区浅草橋2丁目22-4

14.3万円 / 管理費15,000円
敷
無料礼
無料1DK / 25.14㎡ / 2階
賃貸マンション
プラウドフラット東日本橋

総武本線 / 馬喰町駅 徒歩3分
築8年 / 10階建
東京都中央区東日本橋2丁目27-7

14.6万円 / 管理費10,000円
敷
14.6万円礼
14.6万円1K / 25.67㎡ / 8階
賃貸マンション
コンフォリア秋葉原EAST

総武本線 / 馬喰町駅 徒歩4分
築10年 / 12階建
東京都千代田区東神田2丁目9-19

16.4万円 / 管理費6,000円
敷
16.4万円礼
無料1K / 30.34㎡ / 9階
賃貸マンション
プライムメゾン日本橋馬喰町

総武本線 / 馬喰町駅 徒歩3分
築3年 / 10階建
東京都中央区日本橋馬喰町2丁目4-3

15.5万円 / 管理費15,000円
敷
15.5万円礼
15.5万円ワンルーム / 26.77㎡ / 9階
賃貸マンション
東神田テラスレジデンス

総武本線 / 馬喰町駅 徒歩6分
築8年 / 13階建
東京都千代田区東神田1丁目6-4

16.1万円 / 管理費12,000円
敷
無料礼
無料1K / 27.42㎡ / 9階
賃貸マンション
The Log日本橋/ザ ログ日本橋

総武本線 / 馬喰町駅 徒歩2分
築3年 / 12階建
東京都中央区日本橋横山町

14.2万円 / 管理費10,000円
敷
無料礼
無料1K / 25.58㎡ / 6階
賃貸マンション
中央区日本橋富沢町 12階建 2004年築

都営新宿線 / 馬喰横山駅 徒歩5分
築22年 / 12階建
東京都中央区日本橋富沢町8-12

16.2万円 / 管理費10,000円
敷
16.2万円礼
16.2万円1LDK / 34.64㎡ / 2階
賃貸マンション
ザ・パークハビオ人形町レジデンス
都営新宿線 / 馬喰横山駅 徒歩5分
築3年 / 12階建
東京都中央区日本橋久松町
家賃カード決済可
14.8万円 / 管理費15,000円
敷
14.8万円礼
14.8万円1K / 25.56㎡ / 3階
賃貸マンション
プラウドフラット浅草橋II
総武線快速 / 馬喰町駅 徒歩10分
築7年 / 14階建
東京都台東区柳橋2
13.7万円 / 管理費10,000円
敷
13.7万円礼
13.7万円1K / 25.1㎡ / 8階
賃貸マンション
東京メトロ日比谷線 人形町駅 12階建 築16年
都営新宿線 / 馬喰横山駅 徒歩4分
築15年 / 12階建
東京都中央区日本橋堀留町2
15.7万円 / 管理費8,000円
敷
15.7万円礼
15.7万円1K / 26.06㎡ / 5階
賃貸マンション
メゾンカルム日本橋馬喰町

都営新宿線 / 馬喰横山駅 徒歩2分
築4年 / 地上15階地下1階建
東京都中央区日本橋馬喰町1丁目4-16

14.5万円 / 管理費10,000円
敷
14.5万円礼
14.5万円ワンルーム / 25.09㎡ / 10階
賃貸マンション
プライマル日本橋馬喰町

総武本線 / 馬喰町駅 徒歩1分
築3年 / 15階建
東京都中央区日本橋馬喰町2丁目2-3

15.1万円 / 管理費10,000円
敷
無料礼
15.1万円1DK / 25.47㎡ / 3階
賃貸マンション
ルフォンプログレ蔵前プレミア

総武本線 / 馬喰町駅 徒歩12分
築4年 / 14階建
東京都台東区浅草橋3丁目

13.8万円 / 管理費15,000円
敷
13.8万円礼
13.8万円1K / 25.3㎡ / 6階
賃貸マンション
エスレジデンス神田アバンス

都営新宿線 / 馬喰横山駅 徒歩4分
築5年 / 14階建
東京都千代田区岩本町1丁目

15.7万円 / 管理費15,000円
敷
無料礼
15.7万円1DK / 32.11㎡ / 8階
賃貸マンション
東神田テラスレジデンス

総武本線 / 馬喰町駅 徒歩1分
築8年 / 地上13階地下1階建
東京都千代田区東神田1-6-4

16.1万円 / 管理費12,000円
敷
無料礼
無料1K / 27.42㎡ / 9階
賃貸マンション
クロスレジデンス日本橋浜町

総武本線 / 馬喰町駅 徒歩11分
築4年 / 10階建
東京都中央区日本橋浜町1丁目

14.5万円 / 管理費10,000円
敷
14.5万円礼
無料1K / 25.39㎡ / 10階
賃貸マンション
ZOOM日本橋馬喰町

総武本線 / 馬喰町駅 徒歩2分
築7年 / 13階建
東京都千代田区東神田1丁目

15.7万円 / 管理費11,000円
敷
15.7万円礼
15.7万円1K / 31.07㎡ / 9階
賃貸マンション
グランカーサ日本橋馬喰町

総武本線 / 馬喰町駅 徒歩1分
築3年 / 15階建
東京都中央区日本橋馬喰町2丁目

家賃カード決済可
14.7万円 / 管理費10,000円
敷
無料礼
無料ワンルーム / 27.07㎡ / 13階
同じ最寄り駅 × 同じ特徴 で探す
同じ市区町村 × 同じ特徴 で探す





























)




